S
skybiker200025.10.16 14:37Hallo zusammen,
wir planen gerade unser Haus (Holzständerbauweise KfW 50 oder KfW 40) und ich überlege mir, ob ich nicht doch eine Heizung im Keller einplanen soll.
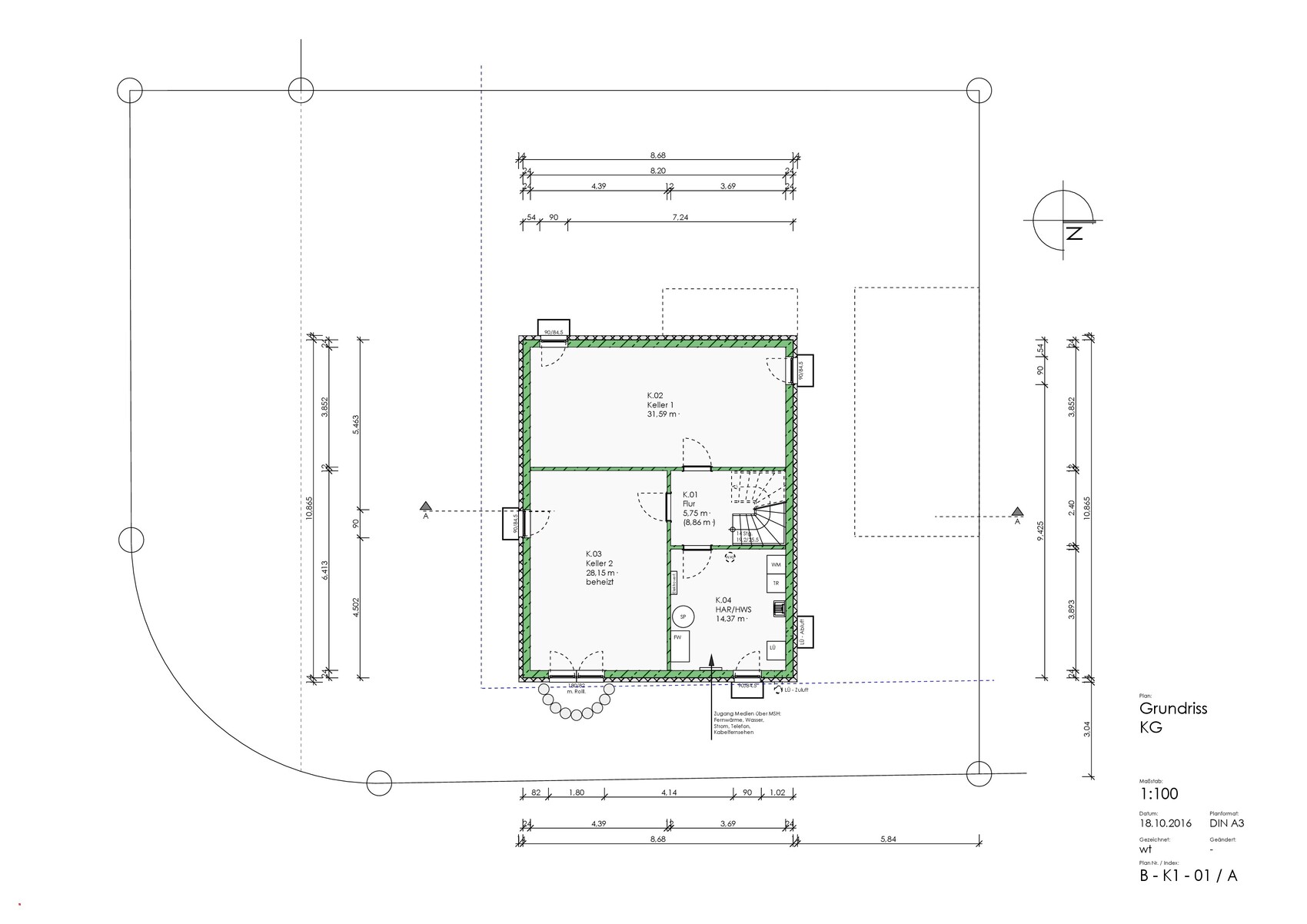
Hier unser Kellerplan und der Wandaufbau.

Die Perimeterdämmung ist bei uns 14 cm dick. Die Bodenplatte in der Güte C 25/30 und in einer Stärke von 20 cm. Die Außenwände bestehen aus 2-schaligen Betonfertigteilen (Güte C 25/30) und der entsprechenden Bewehrung.
Im Moment stehen zwei Wärmequellen zur Diskussion:
Variante 1: Nahwärme + Fußbodenheizung EG/OG
Variante 2: Luft-Wasser-Wärmepumpe + Fußbodenheizung EG/OG
Ich würde gerne den Raum K.03 (Keller 2) als Büro nutzen, wenn ich im Homeoffice arbeite.
Ist es sinnvoll, dass ich auch im Keller eine Fußbodenheizung einbaue oder gibt es Alternativen für oben genannte Wärmequellen. Ist es sinnvoll die Kontrollierte-Wohnraumlüftung auch auf den Keller auszudehnen?
Vielen Dank für eure Rückmeldungen bzw. Antworten!
Viele Grüße
Björn
wir planen gerade unser Haus (Holzständerbauweise KfW 50 oder KfW 40) und ich überlege mir, ob ich nicht doch eine Heizung im Keller einplanen soll.
Hier unser Kellerplan und der Wandaufbau.
Die Perimeterdämmung ist bei uns 14 cm dick. Die Bodenplatte in der Güte C 25/30 und in einer Stärke von 20 cm. Die Außenwände bestehen aus 2-schaligen Betonfertigteilen (Güte C 25/30) und der entsprechenden Bewehrung.
Im Moment stehen zwei Wärmequellen zur Diskussion:
Variante 1: Nahwärme + Fußbodenheizung EG/OG
Variante 2: Luft-Wasser-Wärmepumpe + Fußbodenheizung EG/OG
Ich würde gerne den Raum K.03 (Keller 2) als Büro nutzen, wenn ich im Homeoffice arbeite.
Ist es sinnvoll, dass ich auch im Keller eine Fußbodenheizung einbaue oder gibt es Alternativen für oben genannte Wärmequellen. Ist es sinnvoll die Kontrollierte-Wohnraumlüftung auch auf den Keller auszudehnen?
Vielen Dank für eure Rückmeldungen bzw. Antworten!
Viele Grüße
Björn
Moin,
Kontrollierte-Wohnraumlüftung im Keller, absolutes Ja. Vor allem wenn du auf Heizung verzichten möchtest.
Wenn ohnehin eine Kontrollierte-Wohnraumlüftung geplant ist, sind die Mehrkosten auch nicht die Welt. Die Kontrollierte-Wohnraumlüftung im Keller ermöglicht dir auch bei reinen Lagerräumen oder dem Hauswirtschaftsraum Raum auf die Fenster zu verzichten. Spart wieder Geld ein.
Heizung ist so 'ne Frage, die ich auch lange überlegt habe. Bei 14 cm Dämmung im Keller sollte eigentlich die Lüftung schon fast ausreichend sein. und für das Home Office kannst du immer noch einen Elektroheizkörper an die Wand schrauben (der natürlich deine Ökobilanz massiv verschlechtert, aber den kann man ja aus der KWF Rechnung rauslassen). Finanziell dürfte das günstiger sein. Fußbodenheizung im Keller ist allerdings auch schon nett, vor allem als Büroraum.
Wir haben letztendlich das Geld in die Hand genommen für die Fußbodenheizung.
Viele Grüße,
Andreas
Kontrollierte-Wohnraumlüftung im Keller, absolutes Ja. Vor allem wenn du auf Heizung verzichten möchtest.
Wenn ohnehin eine Kontrollierte-Wohnraumlüftung geplant ist, sind die Mehrkosten auch nicht die Welt. Die Kontrollierte-Wohnraumlüftung im Keller ermöglicht dir auch bei reinen Lagerräumen oder dem Hauswirtschaftsraum Raum auf die Fenster zu verzichten. Spart wieder Geld ein.
Heizung ist so 'ne Frage, die ich auch lange überlegt habe. Bei 14 cm Dämmung im Keller sollte eigentlich die Lüftung schon fast ausreichend sein. und für das Home Office kannst du immer noch einen Elektroheizkörper an die Wand schrauben (der natürlich deine Ökobilanz massiv verschlechtert, aber den kann man ja aus der KWF Rechnung rauslassen). Finanziell dürfte das günstiger sein. Fußbodenheizung im Keller ist allerdings auch schon nett, vor allem als Büroraum.
Wir haben letztendlich das Geld in die Hand genommen für die Fußbodenheizung.
Viele Grüße,
Andreas
P
Peanuts7426.10.16 07:25Wenn die Heizung eh im Keller steht ist das kein großer Aufwand.
Im Flur und im Büro/Gästezimmer haben wir auch Fußbodenheizung, im Technikraum und Abstellraum nicht. Die Technik heizt das ganze eh etwas auf und im Abstellraum soll es eh etwas kühler sein. Da ist aber auch der Heizkreisverteiler, so dass es hier nicht ganz kalt wird.
Im Flur und im Büro/Gästezimmer haben wir auch Fußbodenheizung, im Technikraum und Abstellraum nicht. Die Technik heizt das ganze eh etwas auf und im Abstellraum soll es eh etwas kühler sein. Da ist aber auch der Heizkreisverteiler, so dass es hier nicht ganz kalt wird.
S
skybiker200017.11.16 20:53Wir haben ja im Keller 2 große Räume, den HAR und den Flur.
Nutzung
Den Raum K.03 möchte ich als Arbeitszimmer/Hobbyraum nutzen.
Im Raum K.02 möchte ich eine Werkstatt einrichten und Vorräte lagern.
Ist es sinnvoll in allen Räumen Heizung/Kontrollierte-Wohnraumlüftung zu installieren oder nur im Raum K.03?
Danke für eure Tipps!
Nutzung
Den Raum K.03 möchte ich als Arbeitszimmer/Hobbyraum nutzen.
Im Raum K.02 möchte ich eine Werkstatt einrichten und Vorräte lagern.
Ist es sinnvoll in allen Räumen Heizung/Kontrollierte-Wohnraumlüftung zu installieren oder nur im Raum K.03?
Danke für eure Tipps!
G
Gartenfreund18.11.16 06:16Da wo Vorräte gelagert werden würde ich keine Heizung einbauen. Je nachdem welche Vorräte dort gelagert werden sollen ist es besser wenn Sie möglichst kühl gelagert werden. In einem Kühlen Keller ist übrigens auch eine Gefriertruhe recht gut aufgehoben.
Wir haben Kontrollierte-Wohnraumlüftung zu allen 5 Kellerräumen gelegt und uns im Gegenzug die kleinen Fensterchen gespart, weil ich die Lichtschächte/Gitter extrem störend empfinde und die Lösung sowieso nicht genügend Licht in die Kellerräume bringt. Fußbodenheizung bekommen 3 Räume: Gast, Bad, Hobby. Ohne Fußbodenheizung bleiben Hausanschlussraum und Vorratsraum. Im Vorratsraum sind zusätzlich 2 komplett getrennt abgesicherte Steckdosen, die für einen zusätzlichen Kühlschrank und Gefrierschrank gedacht sind.
Ähnliche Themen