P
pagoni202013.11.21 11:01Kurzfristig ergibt sich für uns die Option, die Außenanlage bzw. die Hauszufahrt/Carport zu gestalten.
Wir möchten so wenig wie möglich bzw. kein Betonpflaster einsetzen, höchstens vlt. unter dem dem Carport.
Die Fläche ist recht groß und würde wohl zu glatt wirken und eben auch zu betonlastig.
Ideen bestehen in Richtung Kies/Split mit/ohne Wabenuntergrund oder nur eine Fahrspur zu pflastern. Die zündende Idee dazu fehlt aber noch.
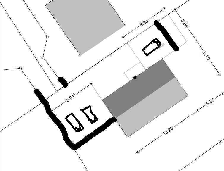
Auf dem Plan habe ich die schmale Zufahrt eingezeichnet, wo es dann links um die Kurve geht und den hinteren Teil des Carports begrenzt, weil darunter dann ein Abstellraum hinkommt. Des Weiteren soll die Park-/Nutzfläche seitlich an der rechten Giebelseite nur bis Hausmitte gehen, weil danach die großen Fenster schon kommen und wir nicht auf ein Auto schauen wollen, sondern in das dortige Grün.
Jeder Vorschlag ist Willkommen, dann müssen wir sehen, ob bzw. wie unser Dienstleister das machen kann.
Generell gefallen wprde uns eine Art wassergebundene Wegedecke, hier nennt man sie sächsische Wegedecke, letztlich eine große Fläche mit Kies/Split o.ä., jedoch aber eben sinnvoll amngelegt auch für das Begehen und drüberfahren einmal am Tag.
Das Grundstück ist nahezu gerade, nur ein kleiner Anstieg in der Zufahrt von 20cm.
Übrigens: Über meine Zeichen-Fähigkeiten am PC gebe ich auf Anfrage gerne Kurse 🙂

Wir möchten so wenig wie möglich bzw. kein Betonpflaster einsetzen, höchstens vlt. unter dem dem Carport.
Die Fläche ist recht groß und würde wohl zu glatt wirken und eben auch zu betonlastig.
Ideen bestehen in Richtung Kies/Split mit/ohne Wabenuntergrund oder nur eine Fahrspur zu pflastern. Die zündende Idee dazu fehlt aber noch.
Auf dem Plan habe ich die schmale Zufahrt eingezeichnet, wo es dann links um die Kurve geht und den hinteren Teil des Carports begrenzt, weil darunter dann ein Abstellraum hinkommt. Des Weiteren soll die Park-/Nutzfläche seitlich an der rechten Giebelseite nur bis Hausmitte gehen, weil danach die großen Fenster schon kommen und wir nicht auf ein Auto schauen wollen, sondern in das dortige Grün.
Jeder Vorschlag ist Willkommen, dann müssen wir sehen, ob bzw. wie unser Dienstleister das machen kann.
Generell gefallen wprde uns eine Art wassergebundene Wegedecke, hier nennt man sie sächsische Wegedecke, letztlich eine große Fläche mit Kies/Split o.ä., jedoch aber eben sinnvoll amngelegt auch für das Begehen und drüberfahren einmal am Tag.
Das Grundstück ist nahezu gerade, nur ein kleiner Anstieg in der Zufahrt von 20cm.
Übrigens: Über meine Zeichen-Fähigkeiten am PC gebe ich auf Anfrage gerne Kurse 🙂
pagoni2020 schrieb:
Auf dem Plan habe ich die schmale Zufahrt eingezeichnet, wo es dann links um die Kurve geht und den hinteren Teil des Carports begrenzt,Du fährst also erst am Carport vorbei und kurbelst dann in den Selbigen? Oder wie darf man das verstehen?P
pagoni202013.11.21 11:17B
Bertram10013.11.21 11:31Je nach Stil des Hauses würde ich wohl Klinkersteine nehmen. Die werden einfach in ein Sandbett gelegt und sehen auch noch gut wenn sie nach ein paar Jahren schief werden (wie beim Holzboden macht Gebrauch die Sache nur noch schöner). So werden in Norddeutschland die Strassen gepflastert und das hat sich bewährt.
P
pagoni202013.11.21 11:56@Bertram100
Nun war ich ja jahrelang immer wieder im hohen Norden aber das ist mir so gar nicht aufgefallen 😱
Habs mir mal angesehen und ich verstehe es so, dass dass gebrannte Tonklinker sind, richtig?
Die Idee klingt gut und könnte auch passen zur grauen Holzfassade.......jedoch fehlt mir noch die passende Idee, ob ich z.B. diese Klinker dann auf der gesamten Fläche von ca. 150qm legen sollte....nicht zuletzt auch wg. Versickerung des Regenwassers oder eben doch nur eine Fahr- und Gehspur o.ä....?
Nun war ich ja jahrelang immer wieder im hohen Norden aber das ist mir so gar nicht aufgefallen 😱
Habs mir mal angesehen und ich verstehe es so, dass dass gebrannte Tonklinker sind, richtig?
Die Idee klingt gut und könnte auch passen zur grauen Holzfassade.......jedoch fehlt mir noch die passende Idee, ob ich z.B. diese Klinker dann auf der gesamten Fläche von ca. 150qm legen sollte....nicht zuletzt auch wg. Versickerung des Regenwassers oder eben doch nur eine Fahr- und Gehspur o.ä....?
B
Bertram10013.11.21 12:01Ich persönlich würde nur Fahrspuren legen, glaube ich. Dann hat man drumherum Grün. Das finde ich schön. Aber man hat mehr Arbeit.
Auf die schnelle habe ich kein gutes Foto gefunden, aber hier sieht man ein wenig wie es aussehen könnte. Es gibt schmale und breite Steine in allen Farben. Frostbeständig und recht günstig.

Auf die schnelle habe ich kein gutes Foto gefunden, aber hier sieht man ein wenig wie es aussehen könnte. Es gibt schmale und breite Steine in allen Farben. Frostbeständig und recht günstig.
Ähnliche Themen