Hallo zusammen,
meine bessere Hälfte und ich machen uns jetzt gerade Gedanken über die Planung der Beleuchtung in unserem Haus. Wir hatten dazu mal einen Termin bei einem Lichtberater, was allerdings recht enttäuschend war. Bis auf das Zeigen von sehr schönen, aber auch sehr teuren Leuchten, konnte er bei der Planung kaum Ideen einbringen, auf die wir nicht selber gekommen sind. Also haben wir uns jetzt selber erste Gedanken gemacht. Generell mag meine Freundin leider keine indirekte Beleuchtung oder ähnliches :-((((, weshalb unsere erste Planung wohl recht "ungewöhnlich" ist. Für (auch spezielle) Ideen bin ich aber sehr offen.
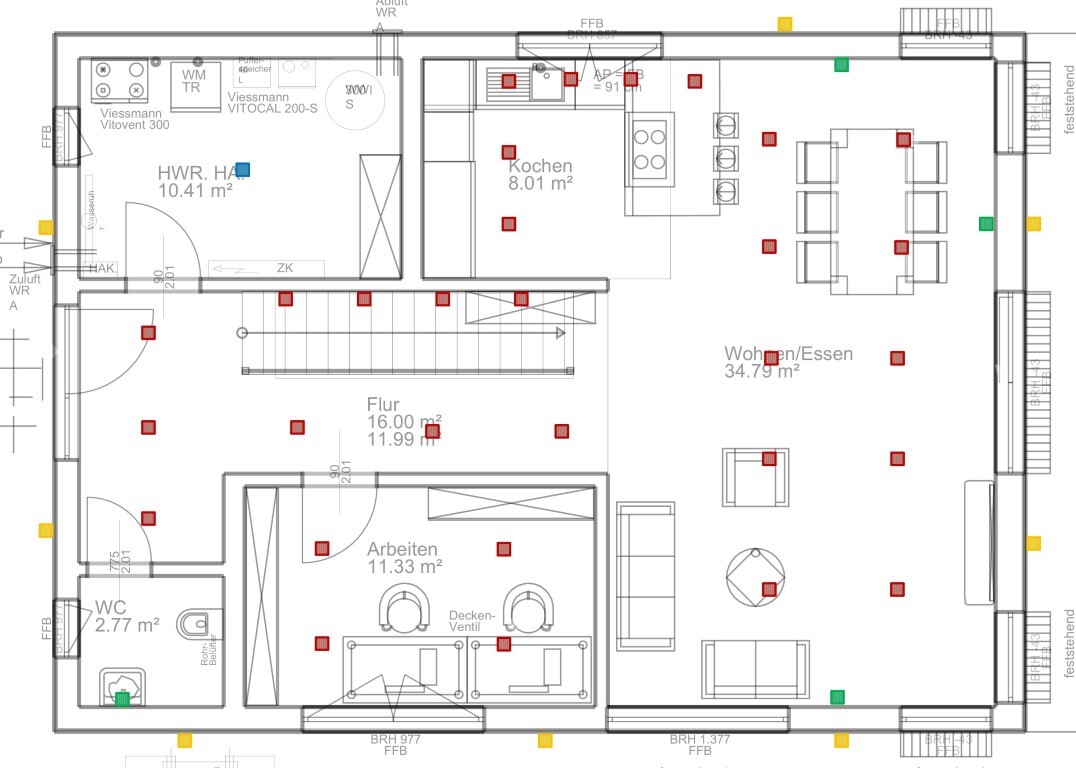
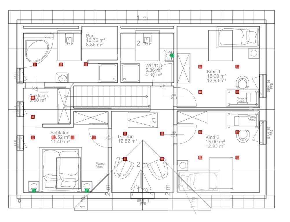
Wir möchten gerne weitestgehend auf Spots und im Wohnbereich auf Wandleuchten als Sekundärbeleuchtung setzen. Kinderbad und Gäste-WC bekommen eine einfach Beleuchtung am Spiegel.
Mit dem Elternbad sind wir so gar nicht glücklich. Habt ihr da eventuell Ideen?
Habt ihr sonst irgendwelche Vorschläge?
Danke schon mal für konstruktive Kritik.
Grüße aus dem sonnigen Aachen,
Christian
Legende:
Rot - Deckenspots
Blau - Normale Deckenleuchte
Gründe - Wandleuchte (innen)
Gelb - Wandleuchte (Außen)


meine bessere Hälfte und ich machen uns jetzt gerade Gedanken über die Planung der Beleuchtung in unserem Haus. Wir hatten dazu mal einen Termin bei einem Lichtberater, was allerdings recht enttäuschend war. Bis auf das Zeigen von sehr schönen, aber auch sehr teuren Leuchten, konnte er bei der Planung kaum Ideen einbringen, auf die wir nicht selber gekommen sind. Also haben wir uns jetzt selber erste Gedanken gemacht. Generell mag meine Freundin leider keine indirekte Beleuchtung oder ähnliches :-((((, weshalb unsere erste Planung wohl recht "ungewöhnlich" ist. Für (auch spezielle) Ideen bin ich aber sehr offen.
Wir möchten gerne weitestgehend auf Spots und im Wohnbereich auf Wandleuchten als Sekundärbeleuchtung setzen. Kinderbad und Gäste-WC bekommen eine einfach Beleuchtung am Spiegel.
Mit dem Elternbad sind wir so gar nicht glücklich. Habt ihr da eventuell Ideen?
Habt ihr sonst irgendwelche Vorschläge?
Danke schon mal für konstruktive Kritik.
Grüße aus dem sonnigen Aachen,
Christian
Legende:
Rot - Deckenspots
Blau - Normale Deckenleuchte
Gründe - Wandleuchte (innen)
Gelb - Wandleuchte (Außen)
B
Bieber081511.05.16 22:07ONeill schrieb:
Danke schon mal für konstruktive Kritik.Viel zu viele Spots . Cool finde ich abgehängte Decken mit indirekter Beleuchtung (Spanndecken?). Das erfordert aber mindestens 10 bis 15 cm überflüssige Raumhöhe, die AFAIK keiner hat im Neubau. Von daher nehmen wir ausschließlich normale Deckenauslässe und normale Leuchten.
B
Bauexperte11.05.16 23:49ONeill schrieb:
Mit dem Elternbad sind wir so gar nicht glücklich.Ich auch nicht; ich würde vermutlich alles schminken, nur nicht mein Gesicht Ich mag aber auch keine Deckenspots; zu viele gleich gar nicht. Das hat für mich den Charme eines Büros. Ich mag es dezent und punktuell; @ypg und ich haben wieder etwas gemeinsam.
Grüße, Bauexperte
Morgen zusammen,
danke für die ersten Antworten. Der allgemeine Tenor scheint wohl gegen die Anzahl der Sports zu gehen. Also ich finde Spots generell schon sehr schick, allerdings lässt sich natürlich schon darüber diskutieren in welcher Form oder wie viele.
1. Wie habt ihr das denn gelöst? Habt ihr da eventuell ein paar Bilder. Gerne auch über PN.
2. Ich finde abgehangene Decken mit indirekter Beleuchtung auch sehr schön, aber meine Freundin kann ich dafür nicht so recht begeistern. Falls doch, ist es wirklich so, dass ich dafür keinen Platz haben in meinem Neubau. Deckenhöhe ist 2,50. Würde ich die Räume dadurch zu eng machen? Was wäre mit einer abgehangenen Decke am Rand der Räume?
Wie wären denn weitere Vorschläge:
1. Also ich könnte mir schon vorstellen, dass wir über den Esszimmer-Tisch doch eine schöne Hängelampe hinhängen. Wir hatten mal überlegt, dass wir dadurch natürlich sehr fest damit sind, wo wir später den Tisch haben wohl. Umstellen, etc. ist dann wegen der Lampe ungünstig. Allerdings frage ich mich, wie oft man das tatsächlich macht und wenn man es dauerhaft haben will, dann könnte man die Lampe ja auch noch verschieben.
2. Im Flur könnte ich mir auch Wandleuchten schön vorstellen. Das fände ich schon nett. Die Spots an der Treppe sollten bleiben, eventuell wird diese Beleuchtung aber auch über die Stufen gemacht. Das steht noch aus.
3. Ich würde gerne die Spots so schön über den Arbeitsbereich haben. Würde das aber nicht für die Beleuchtung der Küche schon reichen oder muss im Arbeitsraum sozusagen noch eine Leuchte hin. Dann könnte diese Spot-Gruppe auch weg, was ich gut fänden würde. Meine Freundin hat Angst, dass es zu dunkel Sein könnte und sie fände es halt schön, wenn unsere Küchenwand irgendwie beleuchtet würde. Gibt es da Möglichkeiten?
Ich finde dieses Thema echt schwierig, da man sich das nur bedingt im gesamten Eindruck vorstellen kann. Die Lichtberatung war da halt sehr enttäuschend. Wisst ihr, wo man sich Lichtgestaltung mal live anschauen könnte? Eventuell mal in Musterhausparks?
Danke auf jeden Fall für Anregungen und Kritik.
Grüße,
Christian
danke für die ersten Antworten. Der allgemeine Tenor scheint wohl gegen die Anzahl der Sports zu gehen. Also ich finde Spots generell schon sehr schick, allerdings lässt sich natürlich schon darüber diskutieren in welcher Form oder wie viele.
1. Wie habt ihr das denn gelöst? Habt ihr da eventuell ein paar Bilder. Gerne auch über PN.
2. Ich finde abgehangene Decken mit indirekter Beleuchtung auch sehr schön, aber meine Freundin kann ich dafür nicht so recht begeistern. Falls doch, ist es wirklich so, dass ich dafür keinen Platz haben in meinem Neubau. Deckenhöhe ist 2,50. Würde ich die Räume dadurch zu eng machen? Was wäre mit einer abgehangenen Decke am Rand der Räume?
Wie wären denn weitere Vorschläge:
1. Also ich könnte mir schon vorstellen, dass wir über den Esszimmer-Tisch doch eine schöne Hängelampe hinhängen. Wir hatten mal überlegt, dass wir dadurch natürlich sehr fest damit sind, wo wir später den Tisch haben wohl. Umstellen, etc. ist dann wegen der Lampe ungünstig. Allerdings frage ich mich, wie oft man das tatsächlich macht und wenn man es dauerhaft haben will, dann könnte man die Lampe ja auch noch verschieben.
2. Im Flur könnte ich mir auch Wandleuchten schön vorstellen. Das fände ich schon nett. Die Spots an der Treppe sollten bleiben, eventuell wird diese Beleuchtung aber auch über die Stufen gemacht. Das steht noch aus.
3. Ich würde gerne die Spots so schön über den Arbeitsbereich haben. Würde das aber nicht für die Beleuchtung der Küche schon reichen oder muss im Arbeitsraum sozusagen noch eine Leuchte hin. Dann könnte diese Spot-Gruppe auch weg, was ich gut fänden würde. Meine Freundin hat Angst, dass es zu dunkel Sein könnte und sie fände es halt schön, wenn unsere Küchenwand irgendwie beleuchtet würde. Gibt es da Möglichkeiten?
Ich finde dieses Thema echt schwierig, da man sich das nur bedingt im gesamten Eindruck vorstellen kann. Die Lichtberatung war da halt sehr enttäuschend. Wisst ihr, wo man sich Lichtgestaltung mal live anschauen könnte? Eventuell mal in Musterhausparks?
Danke auf jeden Fall für Anregungen und Kritik.
Grüße,
Christian
B
Bauexperte12.05.16 09:03Hallo Christian,
ich kenne ein gutes, aber auch nicht ganz preiswertes Lichtstudio. Wenn Hilden von der Fahrtzeit für Dich akzeptabel ist, schicke ich Dir gern den link.
Bauexperte
ich kenne ein gutes, aber auch nicht ganz preiswertes Lichtstudio. Wenn Hilden von der Fahrtzeit für Dich akzeptabel ist, schicke ich Dir gern den link.
Bauexperte
Ähnliche Themen