ᐅ Haus erweitern oder Schnapsidee
Erstellt am: 09.01.19 12:13
B
Basti270909.01.19 12:13Hallo Liebe Forumsgemeinde,
mir geistert seit einigen Tagen eine Schnapsidee (???) im Kopf herum.
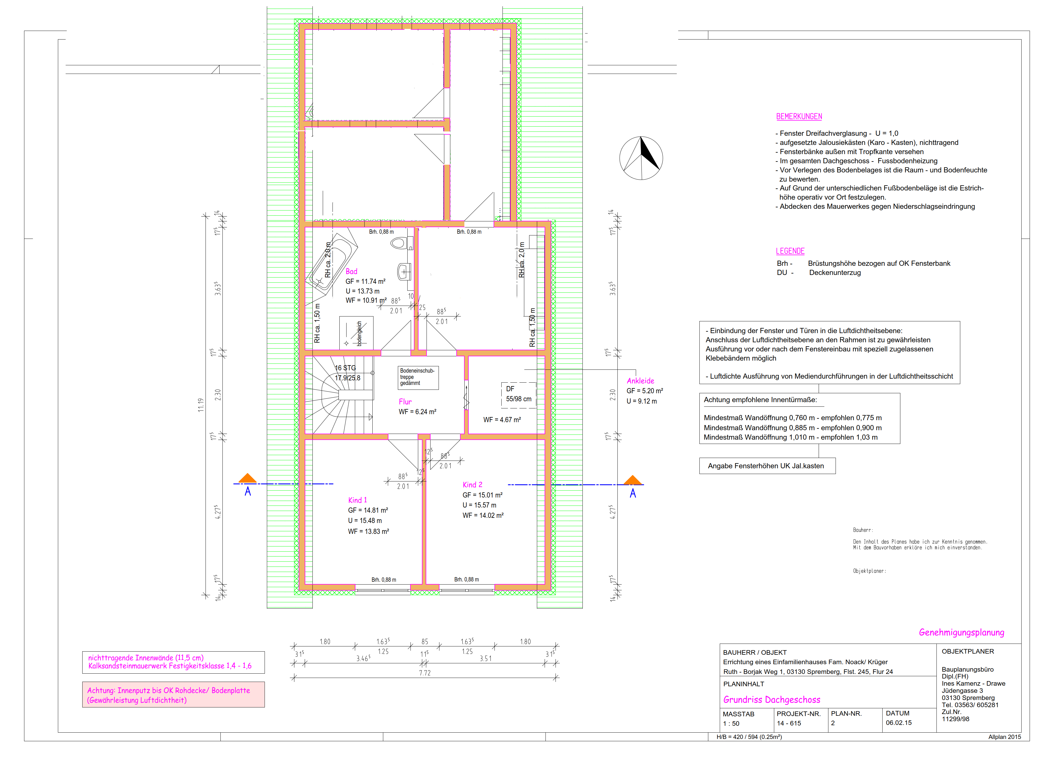
Und zwar haben wir 2015 unser Häuschen gebaut, für uns ist eigentlich alles perfekt. Nun haben wir aber in 2017 noch einmal Nachwuchs bekommen und sind nun zu fünft. Leider sieht unser Haus keine 3 Kinderzimmer vor, sodass sich die beiden Mädels ein Zimmer teilen. Das mag jetzt im Kleinkindalter noch gehen, aber ich befürchte das dies nicht immer funktionieren wird...?
Da mein Vati und ich sehr viel an unserem Haus in Eigenleistung gemacht haben, haben wir uns versucht hierzu etwas zu überlegen. Leider gibt der Grundriss nicht viele Möglichkeiten und es kommt eigentlich nur ein Anbau in Frage.
Leider ist durch den Bebauungsplan ein Baufeld vorgegeben. Dieses ist bereits in alle Richtungen voll ausgenutzt. Außer Richtung Norden hätten wir noch ca. 8 Meter Spielraum....dort steht derzeit unsere Garage + Carport.
Hier könnte ich mir eine Erweiterung auf dem Carport/Garage vorstellen...
Dazu müsste die bisherige Decke aus Sparren und Lattung gegen eine Betondecke getauscht werden (Filigrandecke?). Carport und Garage würde ich gerne so behalten....nur einen Aufbau auf eben dieser. Die Garage steht 1 Meter außerhalb des Baufeldes, sodass ich nicht alles bebauen könnte. Es würde aber trotzdem etwa eine Fläche von ca. 8 x 6 Meter entstehen. Dann hätten alle ihren Platz im Haus...
Meine Fragen hierzu:
1. Wäre sowas machbar oder ist so ein Bauvorhaben nicht umsetzbar wegen Baurechtlicher Regelungen?
2. Könnte man die Garage/Carport erhalten oder wäre das auch in Bezug auf die Statik nicht möglich? Auf die bereits gemauerten Garage müsste ja die Betondecke aufgesetzt werden.
3. Das Bad sowie ein neu entstandener Raum hätten dann nur Licht durch (große) Dachfenster - ist dies erlaubt?
4. Was wäre heizungstechnisch sinnvoll/machbar? Der Anschlussraum liegt genau neben dem Carport...wir haben eine Gastherme verbaut.
5. Das bisherige Zimmer "Eltern" wäre dann ein großer "Flur"...was könnte man hier draus machen?
Ich weiß es gibt keine 100% Beantwortung der Fragen...mir geht es viel mehr um wesentliche Punkte die ich nicht Betrachtet habe und die es zu einer Schnapsidee machen könnten...






mir geistert seit einigen Tagen eine Schnapsidee (???) im Kopf herum.
Und zwar haben wir 2015 unser Häuschen gebaut, für uns ist eigentlich alles perfekt. Nun haben wir aber in 2017 noch einmal Nachwuchs bekommen und sind nun zu fünft. Leider sieht unser Haus keine 3 Kinderzimmer vor, sodass sich die beiden Mädels ein Zimmer teilen. Das mag jetzt im Kleinkindalter noch gehen, aber ich befürchte das dies nicht immer funktionieren wird...?
Da mein Vati und ich sehr viel an unserem Haus in Eigenleistung gemacht haben, haben wir uns versucht hierzu etwas zu überlegen. Leider gibt der Grundriss nicht viele Möglichkeiten und es kommt eigentlich nur ein Anbau in Frage.
Leider ist durch den Bebauungsplan ein Baufeld vorgegeben. Dieses ist bereits in alle Richtungen voll ausgenutzt. Außer Richtung Norden hätten wir noch ca. 8 Meter Spielraum....dort steht derzeit unsere Garage + Carport.
Hier könnte ich mir eine Erweiterung auf dem Carport/Garage vorstellen...
Dazu müsste die bisherige Decke aus Sparren und Lattung gegen eine Betondecke getauscht werden (Filigrandecke?). Carport und Garage würde ich gerne so behalten....nur einen Aufbau auf eben dieser. Die Garage steht 1 Meter außerhalb des Baufeldes, sodass ich nicht alles bebauen könnte. Es würde aber trotzdem etwa eine Fläche von ca. 8 x 6 Meter entstehen. Dann hätten alle ihren Platz im Haus...
Meine Fragen hierzu:
1. Wäre sowas machbar oder ist so ein Bauvorhaben nicht umsetzbar wegen Baurechtlicher Regelungen?
2. Könnte man die Garage/Carport erhalten oder wäre das auch in Bezug auf die Statik nicht möglich? Auf die bereits gemauerten Garage müsste ja die Betondecke aufgesetzt werden.
3. Das Bad sowie ein neu entstandener Raum hätten dann nur Licht durch (große) Dachfenster - ist dies erlaubt?
4. Was wäre heizungstechnisch sinnvoll/machbar? Der Anschlussraum liegt genau neben dem Carport...wir haben eine Gastherme verbaut.
5. Das bisherige Zimmer "Eltern" wäre dann ein großer "Flur"...was könnte man hier draus machen?
Ich weiß es gibt keine 100% Beantwortung der Fragen...mir geht es viel mehr um wesentliche Punkte die ich nicht Betrachtet habe und die es zu einer Schnapsidee machen könnten...
Ich würde sagen: Schnapsidee.
Selbst wenn das so genehmigt würde, dürfte das sehr, sehr teuer werden. 150k locker.
Ich schätze auf Grund der massiv erhöhten Lasten müssen Carport und Garage vom Fundament aus neu, dann die Dacherweiterung...
Da dürfte es wirtschaftlicher sein das Haus zu verkaufen und ein größeres Haus zu beziehen.
Davon abgesehen ist das Ergebnis auch nicht gut.
Durchgangszimmer ist verschenkt und die zwei neuen Räume sind eigentlich auch zu klein.
viel Flur für viel Geld.
Selbst wenn das so genehmigt würde, dürfte das sehr, sehr teuer werden. 150k locker.
Ich schätze auf Grund der massiv erhöhten Lasten müssen Carport und Garage vom Fundament aus neu, dann die Dacherweiterung...
Da dürfte es wirtschaftlicher sein das Haus zu verkaufen und ein größeres Haus zu beziehen.
Davon abgesehen ist das Ergebnis auch nicht gut.
Durchgangszimmer ist verschenkt und die zwei neuen Räume sind eigentlich auch zu klein.
viel Flur für viel Geld.
B
Basti270909.01.19 13:17apokolok schrieb:
Ich würde sagen: Schnapsidee.
Selbst wenn das so genehmigt würde, dürfte das sehr, sehr teuer werden. 150k locker.
Ich schätze auf Grund der massiv erhöhten Lasten müssen Carport und Garage vom Fundament aus neu, dann die Dacherweiterung...
Da dürfte es wirtschaftlicher sein das Haus zu verkaufen und ein größeres Haus zu beziehen.
Davon abgesehen ist das Ergebnis auch nicht gut.
Durchgangszimmer ist verschenkt und die zwei neuen Räume sind eigentlich auch zu klein.
viel Flur für viel Geld.Das Haus hat eine Frostschürze mind. 1 Meter tief bekommen und darauf erfolgt die Bodenplatte...die Garage hat aber ebenfalls mind. 1 Meter tiefe Streifenfundamente bekommen...
Bei der Dacherweiterung sehe ich jetzt auch nicht so die Probleme. Das haben wir beim Haus komplett alleine gemacht.
Holz und Kran waren 3.600 Euro...Dachstuhl haben wir alleine gerichtet. Die Dachsteine für das gesamte Haus waren 4.500 Euro...Lattung und Eindecken waren dann nochmal etwa 2.000 Euro...also für das Haus etwa 10.000 Euro...dürfte für den kleineren Anbau dann auch etwa hinkommen.
Auch reden wir hier von Brandenburg...für 150.000 Euro habe ich unser ganzes Haus gebaut/bauen lassen. ;-) Mein Bruder hat das Haus meiner Großeltern aufgestockt. Das war eine Etage mit 115 qm und er hat ca. 100.000 Euro bezahlt.
Die beiden neuen Räume wären abzüglich Wände etwa 3,80 x 4,20 Meter = knapp 15qm. Also so groß wie die bisherigen Kidnerzimmer...und die finde ich eigentlich nicht klein....Ich hatte als Kind damals 10qm...
Ihr seht, so schnell geb ich nicht auf....
Ein Umzug steht aber auch auf der was wäre möglich Liste...leider gefällt es uns aber sehr gut dort wo wir wohnen...Lage, Nachbarn, Grundstück....sodass ich dies nur sehr ungern machen würde...
B
Basti270909.01.19 13:24halmi schrieb:
Wie sieht denn der Grundriss vom EG aus?
Ich bin auch der Meinung dass es eine Schnapsidee ist. Im Endeffekt verlierst du ein schönes Zimmer und gewinnst zwei kleinere dazu.Ich verliere das Elternschlafzimmer mit knapp 13,6 qm und bekomme 2 mit jeweils 15 qm dazu...ist trotzdem doof...deswegen ja auch die Frage, ob man da noch was draus machen könnte...?
Ähnliche Themen