ᐅ Haupt-Beleuchtung mit LED-Stripes sinnvoll?
Erstellt am: 27.07.21 15:03
J
JürgenJosef27.07.21 15:03Hallo,
hat jemand schon einmal die Hauptbeleuchtung im Haus/Wohnung mit LED-Stripes gemacht?
Eventuell in Trockenbau Decke und Wände?
Oder ist das zu störanfällig?
Was ist bei der Planung unbedingt zu beachten?
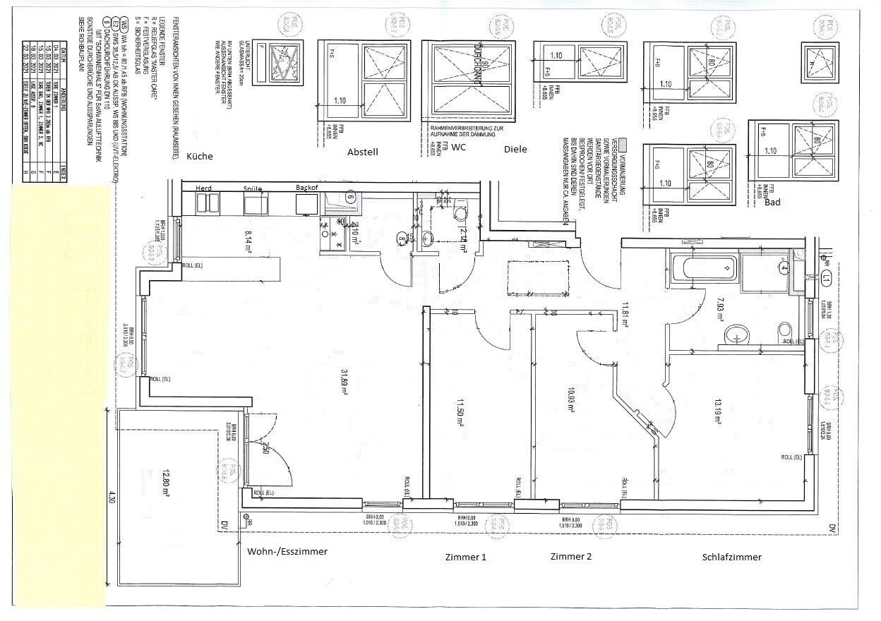
Die Wohnung besteht aus einem Schlafzimmer, Bad, 2 KInderzimmer, Diele/Flur, Abstellraum, Gäste-WC und einem Raum mit Wohnbereich, Essbereich und Küche sowie einem Balkon mit 106 am Wohnfläche.
Vielen Dank für die Hinweise.
Jürgen

hat jemand schon einmal die Hauptbeleuchtung im Haus/Wohnung mit LED-Stripes gemacht?
Eventuell in Trockenbau Decke und Wände?
Oder ist das zu störanfällig?
Was ist bei der Planung unbedingt zu beachten?
Die Wohnung besteht aus einem Schlafzimmer, Bad, 2 KInderzimmer, Diele/Flur, Abstellraum, Gäste-WC und einem Raum mit Wohnbereich, Essbereich und Küche sowie einem Balkon mit 106 am Wohnfläche.
Vielen Dank für die Hinweise.
Jürgen
J
JürgenJosef27.07.21 16:50Ja, ich habe bereits mit einem Kontakt aufgenommen.
Trotzdem wäre mir wichtig zu wissen, ob die Leistung von LED-Stripes ausreicht, um auf klassische Deckenlampen zu verzichten, was ich eigentlich vorhabe.
Trotzdem wäre mir wichtig zu wissen, ob die Leistung von LED-Stripes ausreicht, um auf klassische Deckenlampen zu verzichten, was ich eigentlich vorhabe.
J
JürgenJosef27.07.21 16:53Ich habe bei KNX so viele verschiedene Meinungen gehört, die von einzelnen Betrachtungsweise jeder für sich Recht hat und alle Systeme funktionieren. Aber schließlich muss man sich für etwas entscheiden und sofern genügend Information vorliegen, tut man sich da leichter.
JürgenJosef schrieb:
Ja, ich habe bereits mit einem Kontakt aufgenommen.
Trotzdem wäre mir wichtig zu wissen, ob die Leistung von LED-Stripes ausreicht, um auf klassische Deckenlampen zu verzichten, was ich eigentlich vorhabe.Die Frage zeigt schon, dass Du den Lichtberater brauchst.An der Leistung scheitert es nicht, aber ein ganzes Haus ausschließlich mit LED Stripes zu beleuchten ist trotzdem eine Schnappsidee...
Ähnliche Themen