Hallo an Alle,
Wir sind seit längerer Zeit auf Grundstücksuche, sind bisher an der Ausrichtung und den örtlichen Gegebenheiten gescheitert. So hatte das zuletzt reservierte Grundstück einen Garten im Norden und wurde zuletzt vom Planungsunternehmen als Lagerfläche für den Straßenaushub genutzt. Daraufhin haben wir uns entschieden weiter zu suchen.
Fündig geworden sind wir zufällig, als ein Generalunternehmen uns ein Grundstück ohne den Zwang mit Ihnen zu bauen anbot.
Das Grundstück ist nicht rechteckig geschnitten, was einen laienhaften Entwurf schwer macht. Die Größe sind 919m², Bebauungsplan und Richtlinien anbei.
Eine Idee für die Gestaltung der Aufstellung habe ich ebenfalls angehangen, allerdings passt die von der Größe eher nicht darauf.
Wir wollen einen Bungalow inklusive Garage (optimal Doppelgarage für 2 Autos und 1 Motorrad) mit großem Wohn-/ Essbereich, 2 Kinderzimmer, Schlafzimmer mit Ankleide und zwei Badezimmer planen lassen. Außerdem haben wir bei Freunden eine teiloffene Küchengestaltung gesehen, die im Bedarfsfall durch eine Schiebetür abgeschlossen werden kann. Wir wollen möglichst nicht viel Platz vor dem Haus "verschwenden".
Als ungefähre Größe haben wir uns zwischen 130m² und 140m² vorgestellt.
Bisher haben wir eigene Grundrisse anhand von Beispielen aus Magazinen oder Internetseiten gezeichnet.
Was sind eure Ideen/ Vorschläge für die Bebauung von diesem Grundstück?
Über Meinungen und Ideen wäre ich sehr erfreut.
Vielen lieben Dank.



Wir sind seit längerer Zeit auf Grundstücksuche, sind bisher an der Ausrichtung und den örtlichen Gegebenheiten gescheitert. So hatte das zuletzt reservierte Grundstück einen Garten im Norden und wurde zuletzt vom Planungsunternehmen als Lagerfläche für den Straßenaushub genutzt. Daraufhin haben wir uns entschieden weiter zu suchen.
Fündig geworden sind wir zufällig, als ein Generalunternehmen uns ein Grundstück ohne den Zwang mit Ihnen zu bauen anbot.
Das Grundstück ist nicht rechteckig geschnitten, was einen laienhaften Entwurf schwer macht. Die Größe sind 919m², Bebauungsplan und Richtlinien anbei.
Eine Idee für die Gestaltung der Aufstellung habe ich ebenfalls angehangen, allerdings passt die von der Größe eher nicht darauf.
Wir wollen einen Bungalow inklusive Garage (optimal Doppelgarage für 2 Autos und 1 Motorrad) mit großem Wohn-/ Essbereich, 2 Kinderzimmer, Schlafzimmer mit Ankleide und zwei Badezimmer planen lassen. Außerdem haben wir bei Freunden eine teiloffene Küchengestaltung gesehen, die im Bedarfsfall durch eine Schiebetür abgeschlossen werden kann. Wir wollen möglichst nicht viel Platz vor dem Haus "verschwenden".
Als ungefähre Größe haben wir uns zwischen 130m² und 140m² vorgestellt.
Bisher haben wir eigene Grundrisse anhand von Beispielen aus Magazinen oder Internetseiten gezeichnet.
Was sind eure Ideen/ Vorschläge für die Bebauung von diesem Grundstück?
Über Meinungen und Ideen wäre ich sehr erfreut.
Vielen lieben Dank.
S
Stulli19124.04.20 10:26ypg schrieb:
Mit Kindern würde ich keinen Bungalow bauen.Wieso würdest du mit Kindern keinen Bungalow bauen?Ich sehe hier den Vorteil, dass alles auf einer Ebene und auch für uns im Alter einfacher ist.
Ich vermute mal
Fürs Alter hingegen ist der Bungalow natürlich wieder vom Vorteil.
Aber egal wie du es machst, alles hat Vor- und Nachteile....alles zu "seiner Zeit" halt....
Stulli191 schrieb:Ich sehe den Vorteil wie du bei kleinen Kindern alles auf einer Ebene zu haben, wenn die Kinder aber größer werden finde ich es wiederum vom Vorteil, wenn die Kinder nicht mehr auf der selben Ebene sind. Spreche da aus eigener Erfahrung, hatte zu Jugendzeiten zwischen mir und meinen Eltern ein ganzes Stockwerk und man hatte auch mal seine Ruhe und war für sich.
Wieso würdest du mit Kindern keinen Bungalow bauen?
Ich sehe hier den Vorteil, dass alles auf einer Ebene und auch für uns im Alter einfacher ist.
Fürs Alter hingegen ist der Bungalow natürlich wieder vom Vorteil.
Aber egal wie du es machst, alles hat Vor- und Nachteile....alles zu "seiner Zeit" halt....
Eine Laienplanung sehe ich hier nicht von der Grundstücksform erschwert, sondern von seiner angenehm "ebenen" Oberfläche begünstigt. Einen Bungalow sehe ich da auf keinen Fall geboten, der ist nur unnötig teuer, aber immerhin ließe die Grundstücksgröße ihn gut zu. Altersgerechtes Bauen mit Anfang 30 ist Quatsch, diese Generation wird geradezu "regelmäßig" ruhestandsnah erneut bauen.
https://www.instagram.com/11antgmxde/
https://www.linkedin.com/company/bauen-jetzt/
https://www.instagram.com/11antgmxde/
https://www.linkedin.com/company/bauen-jetzt/
S
Stulli19129.05.20 10:25Guten Morgen an Alle,
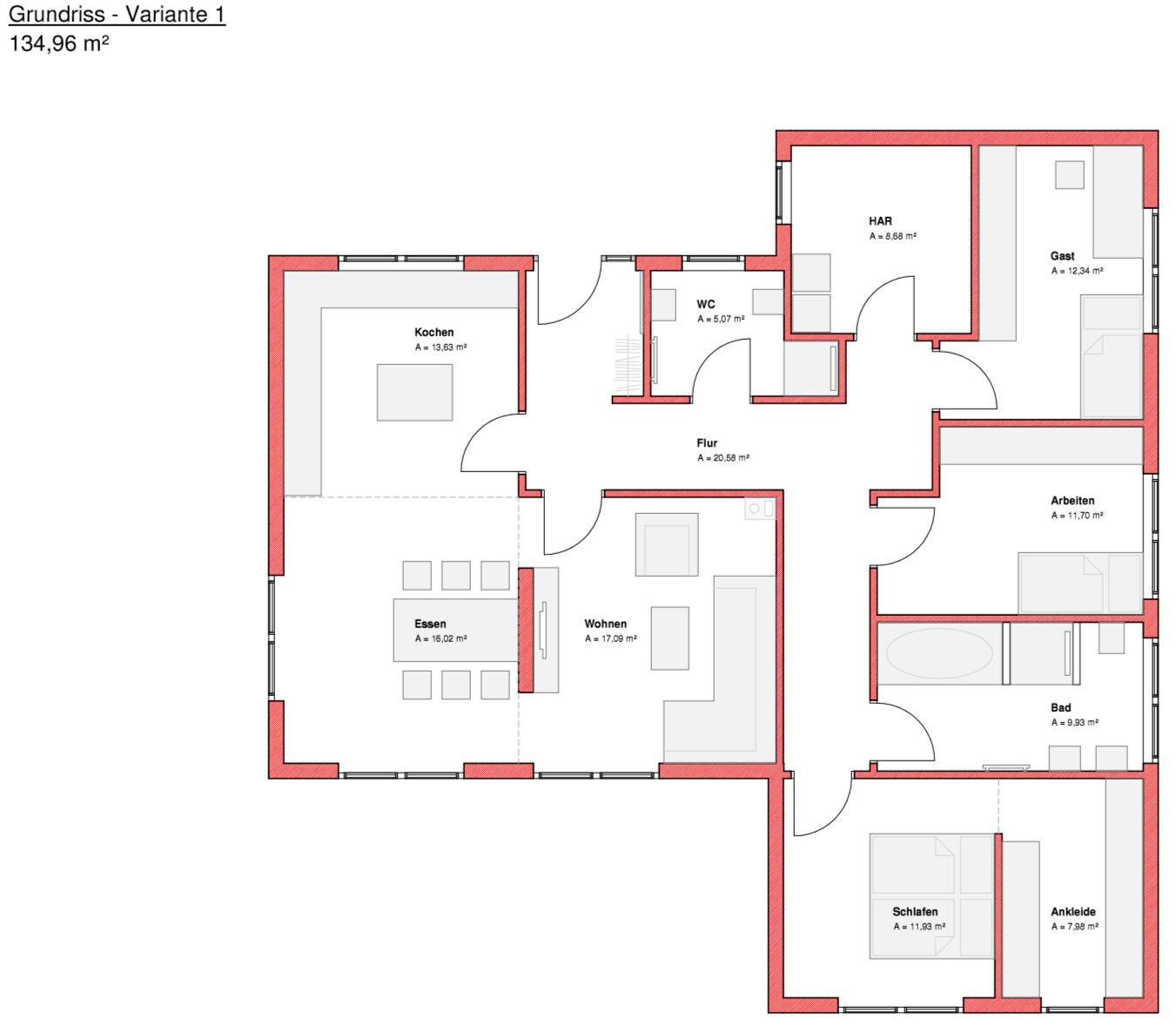
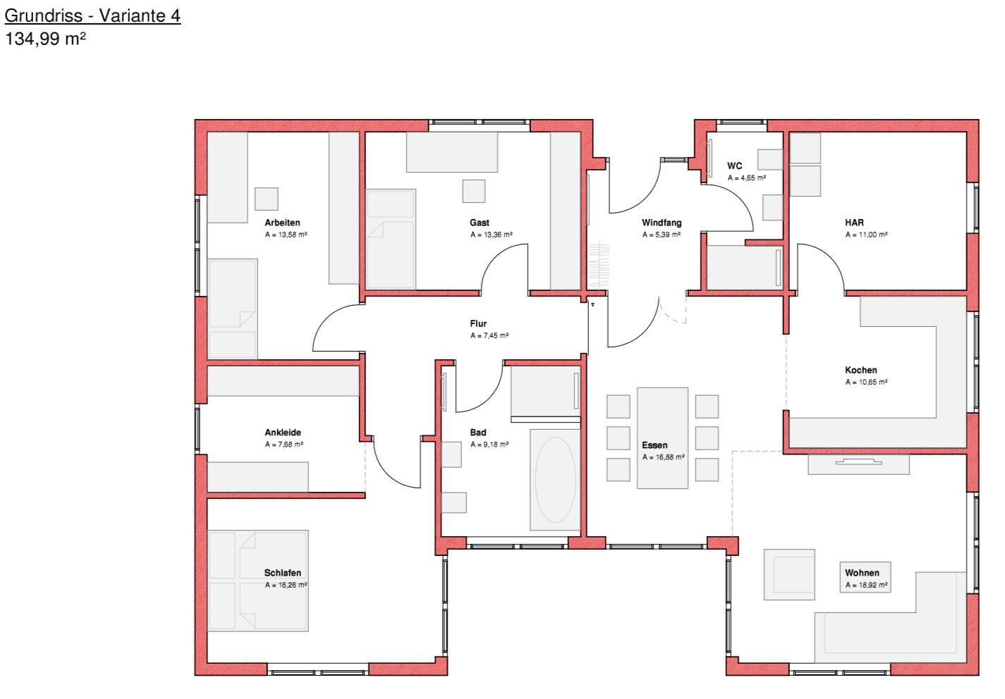
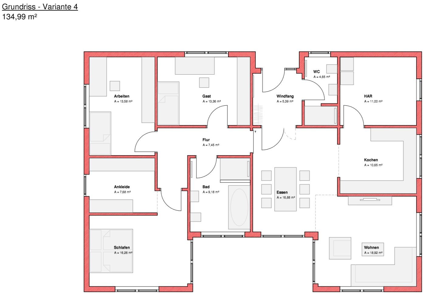
Wir haben gestern die ersten Vorschläge unseres Architekten erhalten.
Die verschiedenen Grundrisse hat er auf Grundlage unseres ersten Gespräches erstellt.
Allgemein finden wir die Zwischenwände im Wohn/ Essbereich sehr interessant, allerdings tendieren wir zu Variante 4.
Wärt ihr so lieb und könnt eure Gedanken/ Anregungen und Meinungen dazu schreiben?
Vielen Dank




Wir haben gestern die ersten Vorschläge unseres Architekten erhalten.
Die verschiedenen Grundrisse hat er auf Grundlage unseres ersten Gespräches erstellt.
Allgemein finden wir die Zwischenwände im Wohn/ Essbereich sehr interessant, allerdings tendieren wir zu Variante 4.
Wärt ihr so lieb und könnt eure Gedanken/ Anregungen und Meinungen dazu schreiben?
Vielen Dank
Stulli191 schrieb:
Guten Morgen an Alle,
Wir haben gestern die ersten Vorschläge unseres Architekten erhalten.
Die verschiedenen Grundrisse hat er auf Grundlage unseres ersten Gespräches erstellt.
Allgemein finden wir die Zwischenwände im Wohn/ Essbereich sehr interessant, allerdings tendieren wir zu Variante 4.
Wärt ihr so lieb und könnt eure Gedanken/ Anregungen und Meinungen dazu schreiben?
Vielen Dank Ich habe immer etwas Bauchschmerzen mit Lösungen, wo ein Raum als Durchgang genutzt wird. Die Kinder werden auch irgendwann älter und sind Abends unterwegs, ihr habt Besuch und da würde ich es als störend empfinden, wenn das Esszimmer die einzige Möglichkeit ist, um von der Haustür in die anderen Zimmer zu gelangen. Sowohl als "Durchreisender" als auch als "Wegelagerer" am Esszimmertisch. Offene Wohnräume sind schön und großzügig - zumindest bei der vorgeschlagenen Konstellation würde ich aber auch auf die Nachteile schauen. Ich persönlich würde einen durchgehenden Flur vorsehen.Fraglich wäre für mich auch das Gäste-WC vorne an der Tür mit Dusche. Wenn das als Gästebad / Kinderbad genutzt werden soll, müsste ich ja auch hier immer durchs Wohnzimmer marschieren. Ungünstig aus meiner Sicht. Wenn es nicht so genutzt wird, dann kann man sich fragen, ob man dort eine Dusche braucht.
Öffnungsrichtung Windfangtür finde ich auch ungünstig. Wenn die Offen ist, steht Sie voll vor der Flurtür.
A
Aphrodithe29.05.20 12:45Am ehesten wohl Variante 1 wobei ich hier eventuell Küche und wohnen tauschen würde sowie die Anordnung der Kinderzimmer überdenken würde!Wobei steht ja nur noch Gast und Büro?Gibt es keine Kinder mehr?Ist das Grundstück den jetzt fix oder seit ihr noch in der Überlegung?Wenn fix dann Grundrissdiskussion mit Fragebogen aufmachen!
Ähnliche Themen