Hallo liebe community,
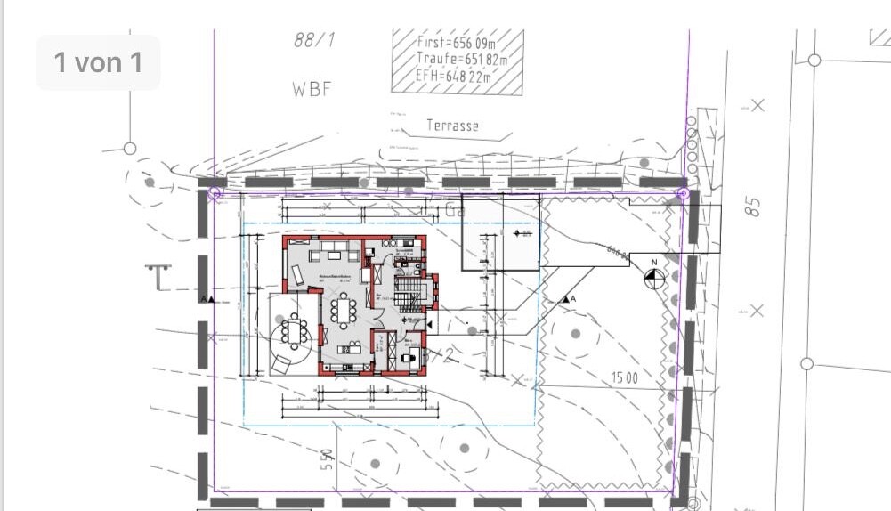
ich würde sehr gerne eure Meinung zu unserer Grundrissplanung hören. Wir feilen schon eine ganze Weile daran. Wichtig ist uns sehr viel Licht, ein großer offener Wohn-, Essbereich, ein Arbeitszimmer, gleich große Kinderzimmer und eigens Areal für uns (Schlafzimmer, Ankleidezimmer, Bad). Deshalb auch noch die Überlegung die Tür am Bad in „Flur“ durch eine Tür Richtung Schlafzimmer zu ersetzen. Wichtig zu wissen ist, dass es in Richtung Westen nur Felder und Wälder gibt die in Zukunft nicht verbaut werden. Ansonsten kann ich euch gerne weiter Informationen zukommen lassen wenn sie gewünscht sind.
Ich bedanke mich bereits im Vorfeld.
LG, Lukas

ich würde sehr gerne eure Meinung zu unserer Grundrissplanung hören. Wir feilen schon eine ganze Weile daran. Wichtig ist uns sehr viel Licht, ein großer offener Wohn-, Essbereich, ein Arbeitszimmer, gleich große Kinderzimmer und eigens Areal für uns (Schlafzimmer, Ankleidezimmer, Bad). Deshalb auch noch die Überlegung die Tür am Bad in „Flur“ durch eine Tür Richtung Schlafzimmer zu ersetzen. Wichtig zu wissen ist, dass es in Richtung Westen nur Felder und Wälder gibt die in Zukunft nicht verbaut werden. Ansonsten kann ich euch gerne weiter Informationen zukommen lassen wenn sie gewünscht sind.
Ich bedanke mich bereits im Vorfeld.
LG, Lukas
kbt09 schrieb:
Aber so:
ist doch die Terrasse in der Hausecke Richtung Nord/Ost - oder?Verwechselst du gerade Terrasse mit Garage? Terrasse ist unten im Bild und in Westausrichtung.
kbt09 schrieb:
Na, die Grundrisse in Beitrag 7 sind wohl nicht identisch ausgerichtet? Wäre ein Akt der Höflichkeit und der Übersichtlichkeit, ansonsten eben bitte in jedes Machwerk den Nordpfeil eintragen. Manchmal frage ich mich wirklich, wer hier mitdenkt, wenn er einen Beitrag erstellt.Die Terrasse ist in jedem Beitrag im Westen.
ullw889 schrieb:
Das Problem ist das man im Süden auf die Dorfstraße in Richtung nächstes Dorf schaut (inkl. Bauernhof) und somit den Verkehr etwas hört. D.h Westseiten ist 100 mal schöner.Es geht nicht um den Ausblick, es geht um die Sonneneinstrahlung in die Innenräume und deren folgliche Helligkeit bzw Behaglichkeit.
Ich habe es in einem anderen Thread gerade geschrieben: ich würde "Ausblicke" nicht überbewerten: klar setzt man den Fokus auf den tollen Ausblick, aber man schaut eben nicht nur in seiner Freizeit. Tagsüber ist man auf Arbeit oder hat sein Tageswerk im Haus, abends schaut man Fern oder sitzt im Sommer auf der Terrasse... aber man gärtnert auch oder was weiss ich.
Man baut nicht nur um in seiner Zukunft "nur nach draußen zu schauen".
ullw889 schrieb:
Warum kann ich meine eigenen Beiträge nicht bearbeiten bzw. löschen? Kann mir da jemand helfen?Kann man, aber natürlich nicht ewig, ansonsten gibt ja die Diskussion keinen Sinn mehr.
Ähnliche Themen