Hausbau - Ratgeber
Bauherrenhilfe
- Bauherrenhilfe vor Vertragsabschluss
-- Warum einen unabhängigen Baubetreuer?
-- Vertragsgrundlagen
-- Bausumme
-- Zahlungsplan zur Kostenkontrolle
-- Pflichten des Bauherren vor Vertragsabschluss
-- Unterlagen beim Hausbau vor Vertragsabschluss
- Bauherrenhilfe nach Vertragsabschluss
-- Bauantrag bei Behörden
-- Bau-Genehmigungsverfahren bei Baubehörden
-- Bauspezifische Versicherungen
-- Bauzeitenplan
-- Baubeginn - die Letzten Pflichten der Bauherrschaft
- Bauherrenhilfe während der Bauzeit
- Gewährleistungsansprüche
- Bauabnahme
Baufinanzierung
- Baufinanzierung - Allgemeine Fragen
- Kreditarten
- Kredit-Konditionen
- Bausparen
- Staatliche Förderungen
- Verkehrswert
- Haushaltsrechnung und Bonität
Hausbau Planung
- Haustypen
- Hausbau Vorbereitungsarbeiten
- Das Baugrundstück
- Baugrund beim Hausbau
- Baurecht
- Gebäudeschutz
- Erdarbeiten und Wasserhaltung
- Stützmauern
- Einfriedung
- Untergeschoss
- Kanalisation
- Tragende Elemente
- Nichttragende Innenwände
- Fundation / Fundament
- Deckenkonstruktionen
- Dächer
- Kaminanlagen
- Treppen Rampen Leitern
- Dachbeläge und Spengler
- Fenster
- Sonnen und Wetterschutz
- Aussenputze
- Einbauten, Küchen, Türen
- Bodenbeläge und Unterlagsböden
- Parkett
- Gips, Wand, Decke
Haustechnik und Energie
- Heiztechnik
- Lüftung und Klimatechnik
- Sanitärtechnik
- Elektrotechnik
- Erneuerbare Energie
Whirlpools / Jacuzzi
Hausbau Magazin
- Baufinanzierung trotz Krise?
- Das Blockhaus
- Moderne Dämmstoffe im Vergleich
- Erker Vor- und Nachteile
- Glasflächen beim Hausbau
- Günstig ein Haus Bauen
- Mediterraner Hausbaustil
- Mehrgenerationenhaus
- Moderne Architektur
- Gartengestaltung leicht gemacht
- Traditioneller Ziegelbau
- Villa als höchster Traum
- Im Eigenheim Ruhestand geniessen
- Altbau sanieren
- Kauf einer Holzgarage
- Immobilienmakler
- Arbeitshandschuhe für den Winter
- Zuhause verschönern
- Outdoor-Plissees
- Schlafzimmer planen
- Terrassenüberdachung
- Wohngebäudeversicherung
- Girokonto für Bauherren finden
- Hauseingang gestalten
- Zaunarten und Eigenschaften
- Der perfekte Grundriss
- Sparsamer heizen im Altbau
- Einfamilienhaus smart finanzieren
- Planung einer PV-Anlage
- Neues Haus
- Immobilienfinanzierung
- Installation einer Photovoltaikanlage
- Asbest erkennen und entfernen
- Gartenpflege im Frühling – worauf achten
- Sauna im Fokus - Wellness zuhause
- Erfolgreich vermieten
- Die perfekte Winterbekleidung
- Das Niedrigenergiehaus
- Der April und seine Stürme
- Architektonische Vielfalt
- Ökologisch und nachhaltig bauen
- Das perfekte Schlafzimmer
- Nachhaltige Energieversorgung
- Zukunftsorientiert bauen
- Nachhaltigkeit beim Hausbau
- Tiny Houses
- Wärmepumpen als nachhaltige Heizvariante
- Maßgeschneiderten Kleiderschrank
- Der richtige Baukredit
- Ratgeber für erfolgreichen Hausbau
- Haus als Altersvorsorge
Do-it-yourself Anleitungen
- Verlegeanleitung für Bodenbeläge und Parkett
- Bodenbeläge und Parkett reinigen und pflegen
- Malerarbeiten am Haus
- Garten Tipps
- Umzug und Reinigung

ᐅ Grundrissplanung, Badplanung, Erfahrungen

Erstellt am: 02.03.23 19:54
S
Shelly_1999
Hallo,

wir benötigen Hilfe bei der Badplanung. Hatten bereits 3 Termine, sind aber mit der Grundrissplanung immer noch nicht zufrieden. Habt ihr noch Ideen?

Wichtig ist uns, dass wir Platz beim waschbecken haben für noch weitere schränke.

Die erste Variante gefällt uns ganz gut, allerdings ist dort die Toilette direkt neben der Tür. Das finden wir nicht so gut.
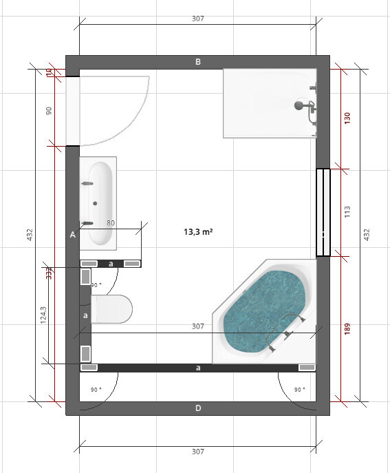
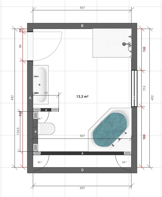
Badezimmer-Grundriss: Dusche links, Badewanne rechts, Toilette und Waschbecken mittig

Grundriss eines Badezimmers: Badewanne rechts, Toilette unten links, Waschbecken oben rechts.
H
hanghaus2023
02.03.23 21:24
Shelly_1999 schrieb:

Anbei noch ein Grundrissplan. Dachschräge ist rechts vorhanden. Kniestock 1m.
Danke Dir. Warum nicht gleich so?
S
Shelly_1999
02.03.23 22:27
Shelly_1999 schrieb:

Anbei noch ein Grundrissplan. Dachschräge ist rechts vorhanden. Kniestock 1m.

Ich gelobe Besserung :-D :-D :-D
K a t j a02.03.23 22:50
Ich denke, ich würde es so machen:


Grundriss eines Badezimmers mit Badewanne/Dusche, Dusche 1,5×0,9 m, Waschbecken, Toilette.

Das gibt bei mir bislang das beste Raumgefühl. Duschwände sind nur halbhoch gemauert und der Rest aus Glas - sonst wirkt es zu klotzig. Noch besser wäre eine bescheidenere Dusche, die sich in die Ecke schmiegt (90x90).
Über Wanne und Waschbecken idealerweise noch ein Dachflächenfenster einbauen, damit das Licht am Spiegel nicht nur von hinten kommt.
H
hanghaus2023
03.03.23 09:53
Hier mal noch ein Vorschlag von mir.

Grundriss eines Badezimmers mit Badewanne, Dusche, Waschbecken und Toilette, Maßangaben.
K a t j a03.03.23 10:16
Wenn das Dachflächenfenster möglich ist, wird der Platz unter der Schräge noch mehr nutzbar (wegen etwas mehr Höhe) und das Licht wäre auch ein Gewinn. Das würde ich auf jeden Fall einplanen lassen.
H
hanghaus2023
03.03.23 12:04
In dem Drempel kann man noch Waschmaschine und Trockner einplanen.
dachflächenfenster