Grundrisspläne - Seht Ihr Verbesserungspotenziel? Ideen?

5,00 Stern(e) 3 Votes
Zuletzt aktualisiert 11.01.2026
Sie befinden sich auf der Seite 7 der Diskussion zum Thema: Grundrisspläne - Seht Ihr Verbesserungspotenziel? Ideen?
>> Zum 1. Beitrag <<

S

skybiker2000

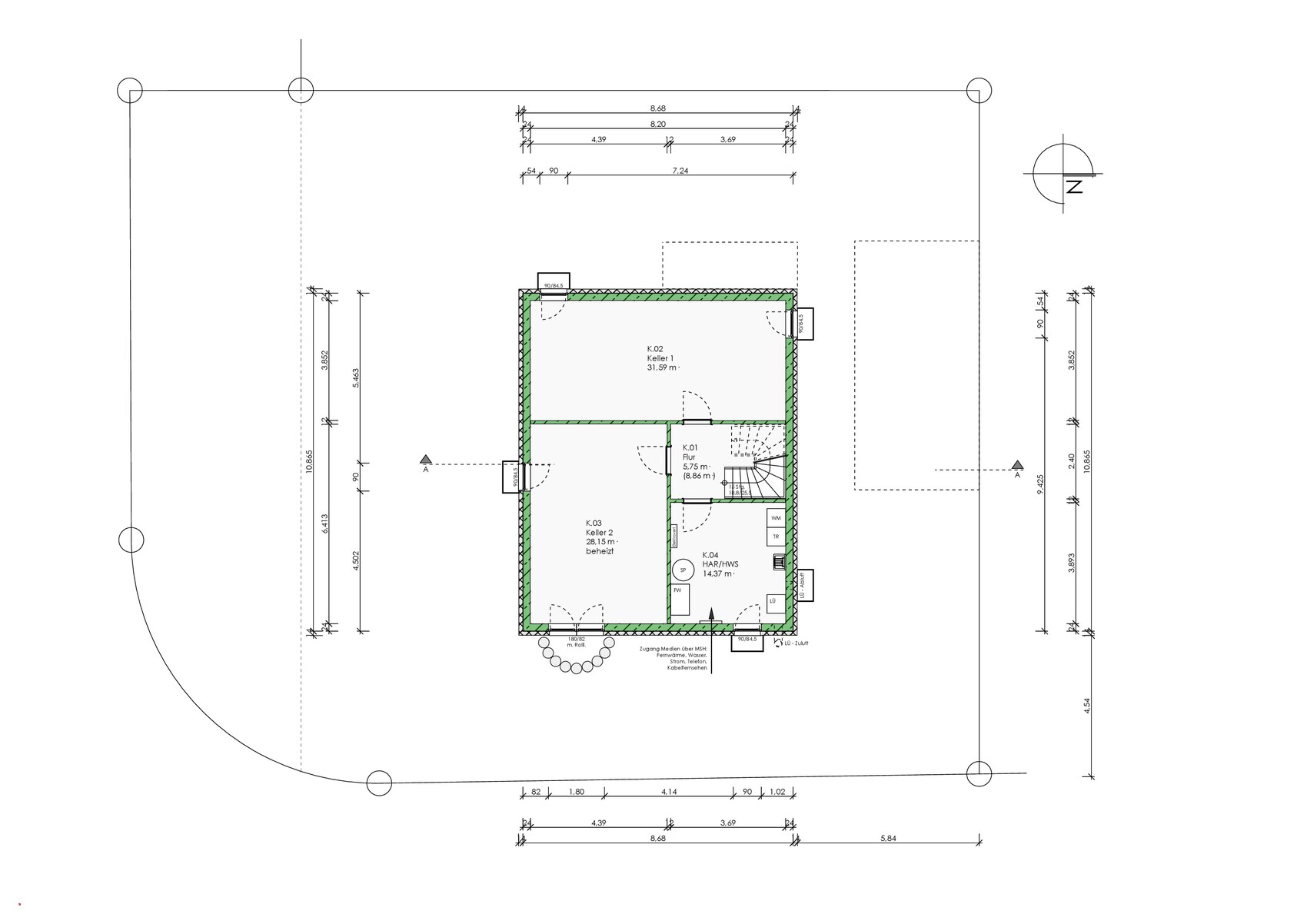
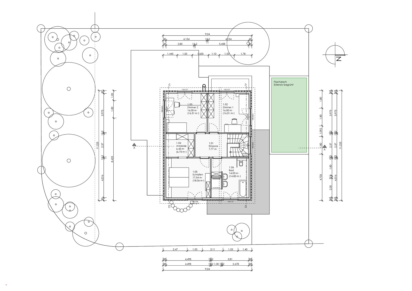
Das sind jetzt die Pläne, mit denen wir ins Rennen gehen wollen. Zumindest bis März besteht noch die Möglichkeit Innen Themen anzupassen.

Vielen Dank für eure Unterstützung!


Grundriss eines Gebäudes mit grün umrandeten Kellerräumen, Türen, Treppen und Maßlinien

Grundriss eines Hauses mit Garten, Terrasse, Garage und Eingangsbereich

Architektur-Grundriss eines Hauses mit Garten, Bäumen und Maßangaben.

Schnitt durch ein mehrstöckiges Haus mit Keller, Treppen, Garage und Bäumen am Hang.

Ansicht eines modernen zweigeschossigen Hauses mit Garage, Auto, Eingang, Garten und Bäumen.

Architekten-Ansicht eines zweigeschossigen Hauses mit Garage am Hang und Bäumen.

Ansicht eines modernen zweistöckigen Hauses mit grauem Satteldach, Terrasse, Sonnenschirm und Bäume

Architekturzeichnung: Zweigeschossiges Haus mit Satteldach, Terrasse, Bäume; Figuren am Eingang.
 
S

skybiker2000

Noch eine abschließende Frage.

Wir haben nochmals aktualisierte Pläne erhalten. Steigung und Auftritt der Treppen hat wohl nicht gepasst und mussten korrigiert werden.

Wir haben jetzt für die Treppe (Keller -> EG)
15 Stufen / Steigung 18,9 / Auftritt 26 -> Schrittmaß 63,8
und für die Treppe (EG -> OG)
16 Stufen / Steigung 19,4 / Auftritt 26 -> Schrittmaß 64,8

Eine Steigung von 19,4 erscheint mir recht hoch. Was meint ihr?

Danke!
 
B

Bieber0815

Steigung 19,4 / Auftritt 26
In unserem ersten Entwurf (des Bauträgers) stand 19,1/25. Das habe ich mit uns bekannten real-existierenden Treppen verglichen und fand es sehr steil. Wir haben jetzt 19,7/27, was ich als sehr angenehm, aber auch nicht übertrieben flach empfinde.

Ob Dir das hilft? Wir konnten in einem Elternhaus und zwei Großelternhäusern nachmessen. Kann man auch in der Mietskaserne tun ...
 
Zuletzt aktualisiert 11.01.2026
Im Forum Grundrissplanung / Grundstücksplanung gibt es 2565 Themen mit insgesamt 88793 Beiträgen


Ähnliche Themen zu Grundrisspläne - Seht Ihr Verbesserungspotenziel? Ideen?
Nr.ErgebnisBeiträge
1Treppe im Grundriss okay? Was bedeutet Zahl 18.3/28? - Seite 213
2Planung der Auffahrt für großes Hanggrundstück - 25% Steigung 43
3Steigung bei Hofeinfahrt? 16
4Steigung Garageneinfahrt zu steil? 10
5Bauen am Hang mit ungefähr 30 Prozent Steigung 41
6Steigung Hofeinfahrt / Höhenunterschied 20
7Auffahrt erstellen mit 25% Steigung? - Seite 223
8Erstkontakt und Vorstellung unserer Pläne 10

Oben