ᐅ Grundrissentwurf Einfamilienhaus165qm ohne Keller auf 400qm Grundstück
Erstellt am: 10.08.23 09:33
M
MaulwurfbauMaulwurfbau schrieb:
Klingt auch ein wenig nach, wenn du schon die gerade Treppe behalten willst, dann dann behalte sie aber Rest lieber anders anordnen.Nicht unbedingt. Ich würde das planen, was am besten passt! Das „Leiden mögen“ kann auch vergehen. Außerdem baut man ja auch nicht alles in sein Häusle, was man mag. Ansonsten müsste man ja 500qm aufwärts planen, so vieles ist nett anzusehen.Aber was soll ich denn auch gegen Mühlen reden, wenn Ihr da festgefahren seid. Ich bin nicht zum Stänkern hier, sondern will konstruktive Kritik geben. Aber wie schon gesagt: Theorie ist das eine, in der Praxis schließt man Kompromisse.
Maulwurfbau schrieb:
Eine Sache interessiert mich dann doch.
Was wäre denn modern dann?Das ist recht subjektiv.Modern ist ja nicht, Mainstream-Dinge haben zu wollen oder je mehr, desto moderner.
Modern in der Audrucksform hier heißt zeitgemäß.
Das Gesamtbild muss stimmen. Für mich persönlich gehören zu einem modernen Haus auf jeden Fall Sichtachsen, die sich in einem Entwurf wiederfinden sollten., dazu.
Das hat das Haus eine - der Weg von der Treppe runter mit Blick durch ein Fenster.
H
hanghaus202312.08.23 13:36H
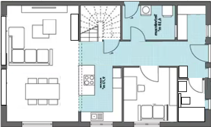
hanghaus202312.08.23 14:08hanghaus2023 schrieb:
Hier mal noch mein Vorschlag etwas optimiert. Das OG kann auch noch angepasst werden an Deine Vorgaben. Die hatte ich ja damals noch nicht.Allerdings gehört zu denen ja auch eine ungewendelte Treppe.https://www.instagram.com/11antgmxde/
https://www.linkedin.com/company/bauen-jetzt/
Ähnliche Themen