Hausbau - Ratgeber
Bauherrenhilfe
- Bauherrenhilfe vor Vertragsabschluss
-- Warum einen unabhängigen Baubetreuer?
-- Vertragsgrundlagen
-- Bausumme
-- Zahlungsplan zur Kostenkontrolle
-- Pflichten des Bauherren vor Vertragsabschluss
-- Unterlagen beim Hausbau vor Vertragsabschluss
- Bauherrenhilfe nach Vertragsabschluss
-- Bauantrag bei Behörden
-- Bau-Genehmigungsverfahren bei Baubehörden
-- Bauspezifische Versicherungen
-- Bauzeitenplan
-- Baubeginn - die Letzten Pflichten der Bauherrschaft
- Bauherrenhilfe während der Bauzeit
- Gewährleistungsansprüche
- Bauabnahme
Baufinanzierung
- Baufinanzierung - Allgemeine Fragen
- Kreditarten
- Kredit-Konditionen
- Bausparen
- Staatliche Förderungen
- Verkehrswert
- Haushaltsrechnung und Bonität
Hausbau Planung
- Haustypen
- Hausbau Vorbereitungsarbeiten
- Das Baugrundstück
- Baugrund beim Hausbau
- Baurecht
- Gebäudeschutz
- Erdarbeiten und Wasserhaltung
- Stützmauern
- Einfriedung
- Untergeschoss
- Kanalisation
- Tragende Elemente
- Nichttragende Innenwände
- Fundation / Fundament
- Deckenkonstruktionen
- Dächer
- Kaminanlagen
- Treppen Rampen Leitern
- Dachbeläge und Spengler
- Fenster
- Sonnen und Wetterschutz
- Aussenputze
- Einbauten, Küchen, Türen
- Bodenbeläge und Unterlagsböden
- Parkett
- Gips, Wand, Decke
Haustechnik und Energie
- Heiztechnik
- Lüftung und Klimatechnik
- Sanitärtechnik
- Elektrotechnik
- Erneuerbare Energie
Whirlpools / Jacuzzi
Hausbau Magazin
- Baufinanzierung trotz Krise?
- Das Blockhaus
- Moderne Dämmstoffe im Vergleich
- Erker Vor- und Nachteile
- Glasflächen beim Hausbau
- Günstig ein Haus Bauen
- Mediterraner Hausbaustil
- Mehrgenerationenhaus
- Moderne Architektur
- Gartengestaltung leicht gemacht
- Traditioneller Ziegelbau
- Villa als höchster Traum
- Im Eigenheim Ruhestand geniessen
- Altbau sanieren
- Kauf einer Holzgarage
- Immobilienmakler
- Arbeitshandschuhe für den Winter
- Zuhause verschönern
- Outdoor-Plissees
- Schlafzimmer planen
- Terrassenüberdachung
- Wohngebäudeversicherung
- Girokonto für Bauherren finden
- Hauseingang gestalten
- Zaunarten und Eigenschaften
- Der perfekte Grundriss
- Sparsamer heizen im Altbau
- Einfamilienhaus smart finanzieren
- Planung einer PV-Anlage
- Neues Haus
- Immobilienfinanzierung
- Installation einer Photovoltaikanlage
- Asbest erkennen und entfernen
- Gartenpflege im Frühling – worauf achten
- Sauna im Fokus - Wellness zuhause
- Erfolgreich vermieten
- Die perfekte Winterbekleidung
- Das Niedrigenergiehaus
- Der April und seine Stürme
- Architektonische Vielfalt
- Ökologisch und nachhaltig bauen
- Das perfekte Schlafzimmer
- Nachhaltige Energieversorgung
- Zukunftsorientiert bauen
- Nachhaltigkeit beim Hausbau
- Tiny Houses
- Wärmepumpen als nachhaltige Heizvariante
- Maßgeschneiderten Kleiderschrank
- Der richtige Baukredit
- Ratgeber für erfolgreichen Hausbau
- Haus als Altersvorsorge
Do-it-yourself Anleitungen
- Verlegeanleitung für Bodenbeläge und Parkett
- Bodenbeläge und Parkett reinigen und pflegen
- Malerarbeiten am Haus
- Garten Tipps
- Umzug und Reinigung

ᐅ Grundriss: Treppenplanung stufen in der Wendung

Erstellt am: 21.01.25 10:26
C
Contact2001
Hallo allerseits,
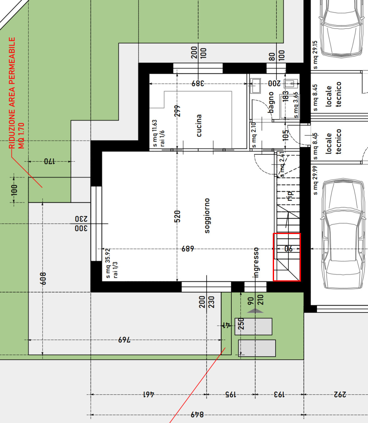
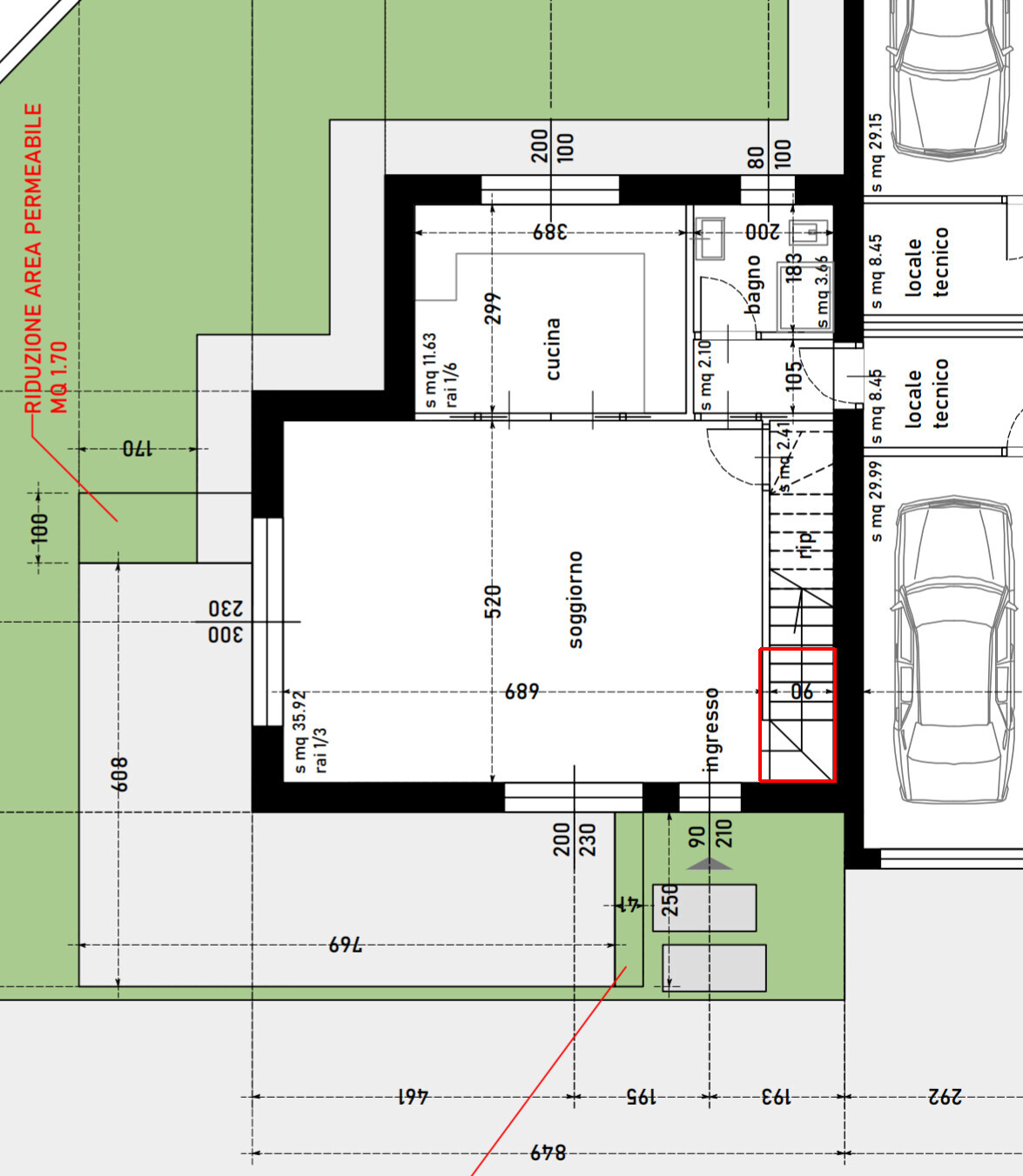
ich habe hier einen Grundriss, die Treppe wurde geplant unten in der Wendung nur zwei stufen oben aber Drei, macht das sinn?
Die Geschosshöhe ist 3.15m 17 Stufen den Rest seht Ihr auf den Zeichnungen.
Würdet Ihr das so ausführen bzw. was würdet Ihr unter umständen anders machen?

Vielen Dank
Mike
Grundriss eines Hauses mit Wohnzimmer, Küche, Eingang, Garage (Autos), Garten.
W
wiltshire
21.01.25 18:22
11ant schrieb:

Diese übliche Form der zeichnerischen Darstellung kann zu Trugschlüssen führen, weil Laien darin häufig nur "eine" Treppe sehen.
touché!
11ant schrieb:

... stolpert man aus sanitäterischer Sicht prinzipiell besser aufwärts als abwärts, weil abwärts eher zum Sturz gerät.
Das war mein Gedankenspiel: Lieber oben sicher stehen und unten stolpern als umgekehrt.
11ant21.01.25 18:32
Contact2001 schrieb:

danke auch für deine schnelle Rückmeldung.
Nein es ist eine Treppe da kein Keller vorhanden die Treppe würde gerade auslaufend, in der Dusche enden.
In der Zeichnung ist ein Strich in der Treppe. Dann hat man wohl in Italien (/ Tessin ?) andere Planzeichen.
https://www.instagram.com/11antgmxde/
https://www.linkedin.com/company/bauen-jetzt/
Y
ypg
21.01.25 19:15
Contact2001 schrieb:

Nein es ist eine Treppe
Wenn das OG tatsächlich so geplant ist, dann habt Ihr mit der Treppe ein Problem, da das Treppenauge nicht groß genug ist. Ihr büßt Kopffreiheit ein. @kbt09
H
hanghaus2023
21.01.25 21:48
gezeichnet sind 18 Stufen. Tritthöhe sind dann 17,5cm Die Gehlinie ist dann ca. 5,3m 5,3/17= 30,5 cm Trittlänge. Die teilt man am besten gleichmassig auf.


Technische Zeichnung eines Plans mit gestapelten Feldern und von einer Ecke ausgehenden Linien.
K
kbt09
21.01.25 22:33
ypg schrieb:

Ihr büßt Kopffreiheit ein.
Du meinst, weil die Zeichnung vom OG so aussieht, als sei der rot umrandete Bereich des Treppenaufgangs mit Decke aus dem OG überbaut? Man kann es leider nicht ganz genau zuordnen, da Ausrichtung und Maßstäbe nicht so passen.


Grundriss: Wohnzimmer zentral; Küche links; Bad/Technik rechts; Eingang, Parkplätze, Garten.


Dürften dann aber 5 Stufen von 18 sein = 87,5 cm Höhe, die von der lichten Raumhöhe weggenommen wird.

Ja, das könnte sehr kritisch werden mit dem Überbau im OG. Die Frage ist, was da sein soll in dem Bereich .. OG mal gedreht und Bereich auch rot markiert.


Grundriss eines Wohnbereichs mit Schlafzimmer, Bad, Ankleide und Terrasse; rotes Rechteck markiert.
C
Contact2001
22.01.25 13:39
kbt09 schrieb:

Du meinst, weil die Zeichnung vom OG so aussieht, als sei der rot umrandete Bereich des Treppenaufgangs mit Decke aus dem OG überbaut? Man kann es leider nicht ganz genau zuordnen, da Ausrichtung und Maßstäbe nicht so passen.

[ATTACH alt="grundriss-treppenplanung-stufen-in-der-wendung-680826-1.png"]90108[/ATTACH]

Dürften dann aber 5 Stufen von 18 sein = 87,5 cm Höhe, die von der lichten Raumhöhe weggenommen wird.

Ja, das könnte sehr kritisch werden mit dem Überbau im OG. Die Frage ist, was da sein soll in dem Bereich .. OG mal gedreht und Bereich auch rot markiert.

[ATTACH width="304px" alt="grundriss-treppenplanung-stufen-in-der-wendung-680826-2.png"]90109[/ATTACH]

Das ist ein abgestufter Bereich die untere Hälfte hat normale Bodenhöhe die obere Hälfte ist ca, 1-1.3 m hoch, quasi ein Podest. Es ist auf dieser Zeichnung nicht ersichtlich. Die Kopffreiheit ist gegeben.
zeichnungtreppekopffreiheit