Bebauungsplan/Einschränkungen
Größe des Grundstücks: 667qm; Breite = 16 m
Hang: Ja, 2m auf einer Breite von 16 m
Grundflächenzahl: §34
Geschossflächenzahl: §34
Baufenster, Baulinie und -grenze: §34
Randbebauung: Nein
Anzahl Stellplatz: Ja
Geschossigkeit: 2
Dachform
Stilrichtung: Satteldach
Ausrichtung: Südazimut +20°
Anforderungen der Bauherren
Einfamilienhaus freistehend
kein Keller, Geschosse: 2
Anzahl der Personen: 3, davon 1 Kind
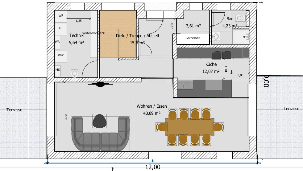
Raumbedarf im EG, OG
Büro: Homeoffice
offene Architektur
moderne Bauweise
offene Küche, Kochinsel
Anzahl Essplätze: 6-10
Kamin: Nein
Terrassen an den Giebelseiten
Hausentwurf
Von wem stammt die Planung:
-Do-it-Yourself; Ursprünglicher Entwurf eines Bauunternehmens wurde leicht angepasst
Was gefällt nicht? Wie könnte man noch eine Speisekammer im EG sinnvoll integrieren.
Preisschätzung laut Architekt/Planer: 400k
favorisierte Heiztechnik: Wärmepumpe
Wenn Ihr verzichten müsst, auf welche Details/Ausbauten
-könnt Ihr verzichten: Garage wird später gebaut. KNX wird vorbereitet in der Grundausstattung und nach und nach ergänzt
-könnt Ihr nicht verzichten: Große Ankleide als Multiraum


Größe des Grundstücks: 667qm; Breite = 16 m
Hang: Ja, 2m auf einer Breite von 16 m
Grundflächenzahl: §34
Geschossflächenzahl: §34
Baufenster, Baulinie und -grenze: §34
Randbebauung: Nein
Anzahl Stellplatz: Ja
Geschossigkeit: 2
Dachform
Stilrichtung: Satteldach
Ausrichtung: Südazimut +20°
Anforderungen der Bauherren
Einfamilienhaus freistehend
kein Keller, Geschosse: 2
Anzahl der Personen: 3, davon 1 Kind
Raumbedarf im EG, OG
Büro: Homeoffice
offene Architektur
moderne Bauweise
offene Küche, Kochinsel
Anzahl Essplätze: 6-10
Kamin: Nein
Terrassen an den Giebelseiten
Hausentwurf
Von wem stammt die Planung:
-Do-it-Yourself; Ursprünglicher Entwurf eines Bauunternehmens wurde leicht angepasst
Was gefällt nicht? Wie könnte man noch eine Speisekammer im EG sinnvoll integrieren.
Preisschätzung laut Architekt/Planer: 400k
favorisierte Heiztechnik: Wärmepumpe
Wenn Ihr verzichten müsst, auf welche Details/Ausbauten
-könnt Ihr verzichten: Garage wird später gebaut. KNX wird vorbereitet in der Grundausstattung und nach und nach ergänzt
-könnt Ihr nicht verzichten: Große Ankleide als Multiraum
Exziton schrieb:
Wie könnte man noch eine Speisekammer im EG sinnvoll integrieren.Unter die Treppe (?)Exziton schrieb:
-Do-it-Yourself; Ursprünglicher Entwurf eines Bauunternehmens wurde leicht angepasstWas waren denn die Anpassungen und deren Gründe; der Ausgangsentwurf und vor allem Maße wären hilfreich.https://www.instagram.com/11antgmxde/
https://www.linkedin.com/company/bauen-jetzt/
11ant schrieb:
Unter die Treppe (?)
Was waren denn die Anpassungen und deren Gründe; der Ausgangsentwurf und vor allem Maße wären hilfreich.11ant schrieb:
Unter die Treppe (?)
Was waren denn die Anpassungen und deren Gründe; der Ausgangsentwurf und vor allem Maße wären hilfreich.Unter die Treppe kommt eine Abstellkammer
kbt09 schrieb:
Und ein Lageplan mit Haus auf dem Grundstück incl. Nordpfeil. Und, wo kommt denn der Hang zum Tragen?Norden ist auf 11 Uhr. Hang ist unten. Wird aber per Stützmauer abgefangen.
Da passt doch trotzdem etwas nicht zusammen, Grundstück 16 m breit, Haus 12 m und rechts und links Terrassen.
Exziton schrieb:
Größe des Grundstücks: 667qm; Breite = 16 m
Hang: Ja, 2m auf einer Breite von 16 m
Exziton schrieb:Gibt es einen Plan mit Höhenlinien?
Hang ist unten. Wird aber per Stützmauer abgefangen.
Ähnliche Themen