Hallo zusammen,
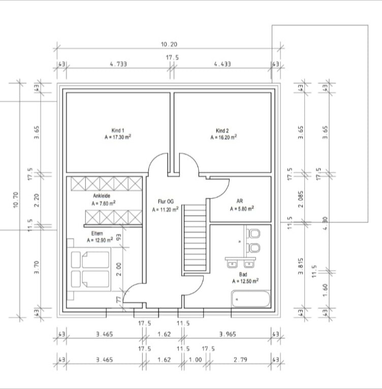
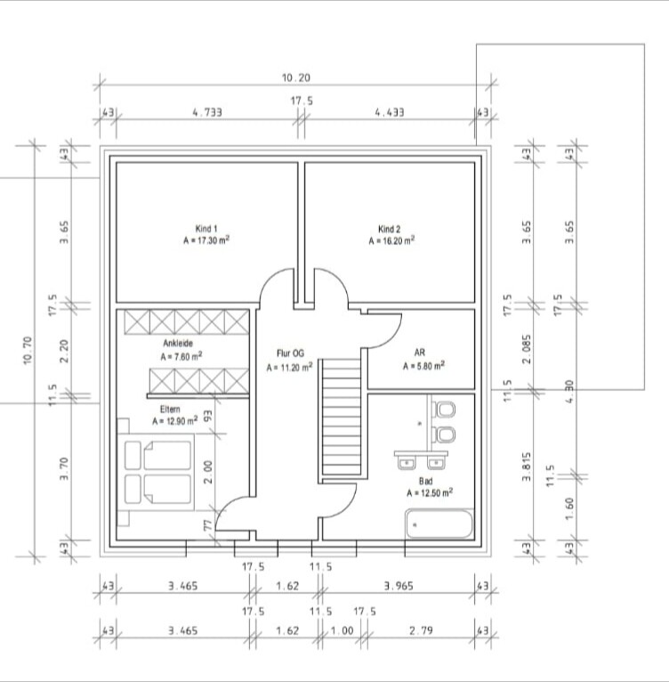
dies ist mein erster Beitrag und hoffe hier durch auf Vorschläge und Euren Rat. Wir sind an unserem Grundriss am basteln, stehen aber im OG, bzw. Ankleideraum mit Elternschlafbereich auf dem Schlauch. İch möchte einen 3 m Pax Schrank, mein Mann einen mit 2.75 m. İirgendwie kriegen wir das bei einer Gesamtfäche von 169 qm nicht unter. Das Schlafzimmer inkl Ankleide hat ca. 20 qm Fläche. Wüssten auch nicht wie wir die Räume anders aufteilen sollen. Daher sind wir auf Eure Vorschläge sehr dankbar.

dies ist mein erster Beitrag und hoffe hier durch auf Vorschläge und Euren Rat. Wir sind an unserem Grundriss am basteln, stehen aber im OG, bzw. Ankleideraum mit Elternschlafbereich auf dem Schlauch. İch möchte einen 3 m Pax Schrank, mein Mann einen mit 2.75 m. İirgendwie kriegen wir das bei einer Gesamtfäche von 169 qm nicht unter. Das Schlafzimmer inkl Ankleide hat ca. 20 qm Fläche. Wüssten auch nicht wie wir die Räume anders aufteilen sollen. Daher sind wir auf Eure Vorschläge sehr dankbar.
H
hemali200313.08.19 13:20Evtl Position AR und Bad tauschen, AR wäre dann vom Bad oder Schlafzimmer zugänglich (evtl von beiden).
Dann kann man den Flur planunten dem Schlafzimmer zuschreiben und den kleiderschrank vergrößern. Zugang Schlafzimmer durch Kleiderschrank.
Dann kann man den Flur planunten dem Schlafzimmer zuschreiben und den kleiderschrank vergrößern. Zugang Schlafzimmer durch Kleiderschrank.
H
hemali200313.08.19 13:37Was für Türen bekommen die Schränke denn? Bei normalen Türen würde ich eh mehr Durchgang lassen, dem Schrankraum also mehr Breite/Tiefe verschaffen.
Davon ausgehend, dass das OG ein Vollgeschoss ist, würde ich auch, wenn schon den Durchgang zur Ankleide auf die andere Seite legen.
Sollen das jeweils 60 cm - Elemente sein? Also fehlen 35cm (5*0,6 + 4*0,6)? Bevor ihr jetzt sonst total umplant...wie wäre es mit einer Kommode im Schlafzimmer?
Und nur so eine Nebenbemerkung am Rande...wie lang soll die Treppe sein. Hab es nicht so genau angeguckt aber sieht irgendwie ziemlich kurz aus.
Sollen das jeweils 60 cm - Elemente sein? Also fehlen 35cm (5*0,6 + 4*0,6)? Bevor ihr jetzt sonst total umplant...wie wäre es mit einer Kommode im Schlafzimmer?
Und nur so eine Nebenbemerkung am Rande...wie lang soll die Treppe sein. Hab es nicht so genau angeguckt aber sieht irgendwie ziemlich kurz aus.
Ähnliche Themen