ᐅ Heizlastberechnung&Verlegeplan DIN: Neue Berechnung notwendig?
Erstellt am: 02.11.20 11:15
T
TolentinoT
Tolentino02.11.20 11:15Hallo liebe Forianer,
ich habe heute meinem Heizi eine Mail geschrieben, in der ich meine Wunschtemperaturen für die einzelnen Räume vorgegeben hatte. Leider hat er mir sehr schnell mit einer schon durchgeführten Berechnung und Verlegeplänen zurückgeschrieben, die einfach nach DIN vorgenommen wurde.
Da bislang der Statiker auch noch nichts gerechnet hat, bin ich mir sicher, dass ohne Solare Einträge gerechnet wurde.
Jedenfalls kommt mit die berechnete Gesamtheizlast relativ hoch vor.
Wie seht ihr das?
Ich hatte auch darauf hingewiesen, dass ich ersten 30°C Vorlauf haben möchte und maximal 10 cm Verlegabstand.
Dazu hat er dann folgendes geantwortet:
da sie hier Einzelraumregelung haben gilt hier immer der Wärmste Raum als Auslegungsspitze für die Vorlauftemperatur, 30grad sind möglich, auch einen Pauschalen Abstand der Rohrleitungen ist nicht sinnvoll, hier wird unnötig Pumpenleistung durch Volumenstromdrosselung benötigt.
Einzelraumregeleung hatten wir eigentlich schon besprochen, dass wir die deaktivieren und nur für die Energieeinsparverordnung überhaupt installieren. Weiß ich nicht, warum er das jetzt wieder vergessen hat.
Das andere verstehe ich nicht ganz. Kennt sich jemand aus und kann was dazu sagen? @Daniel-Sp , @T_im_Norden , z.B.? Ihr seid doch die Cracks...
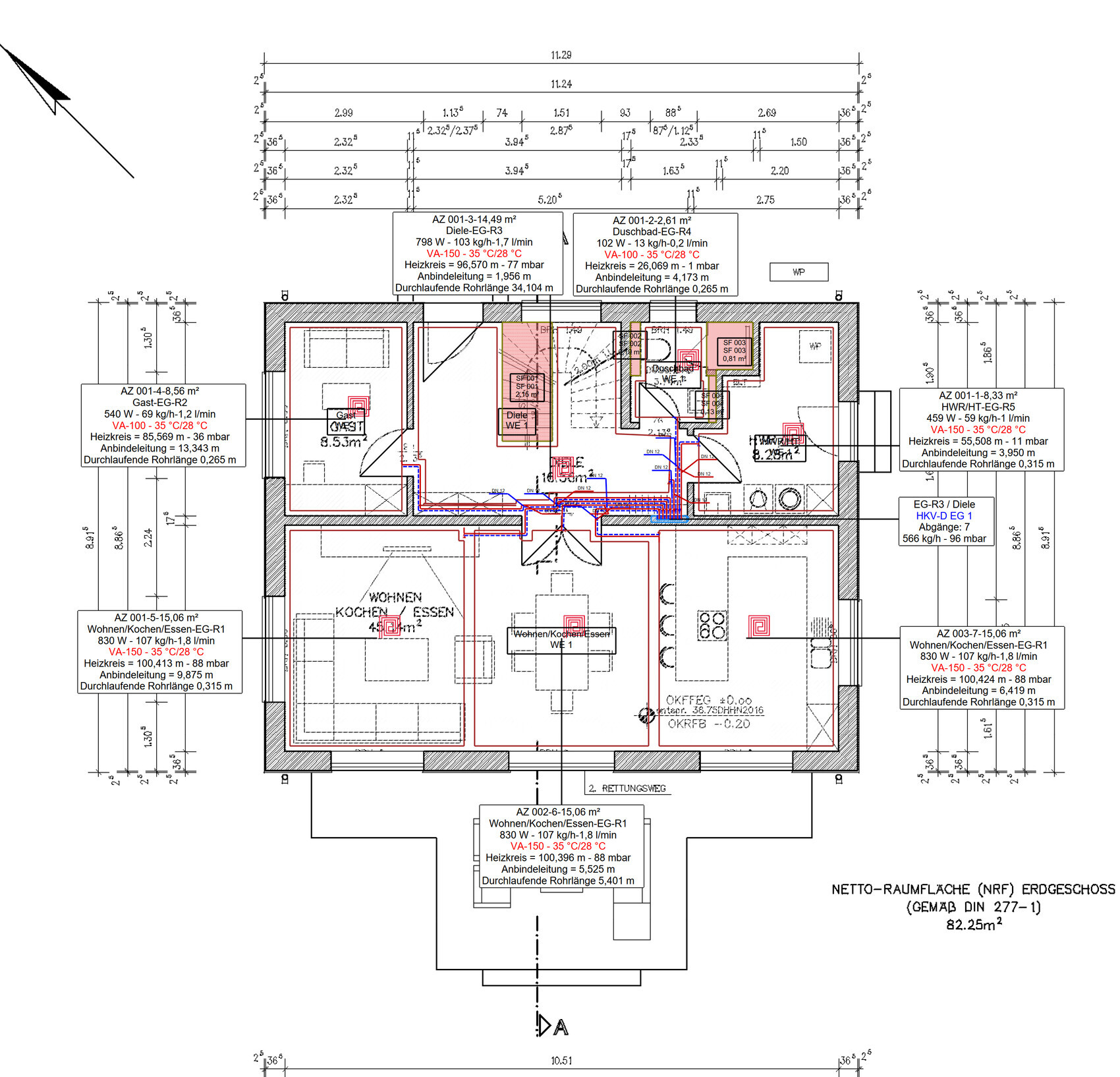
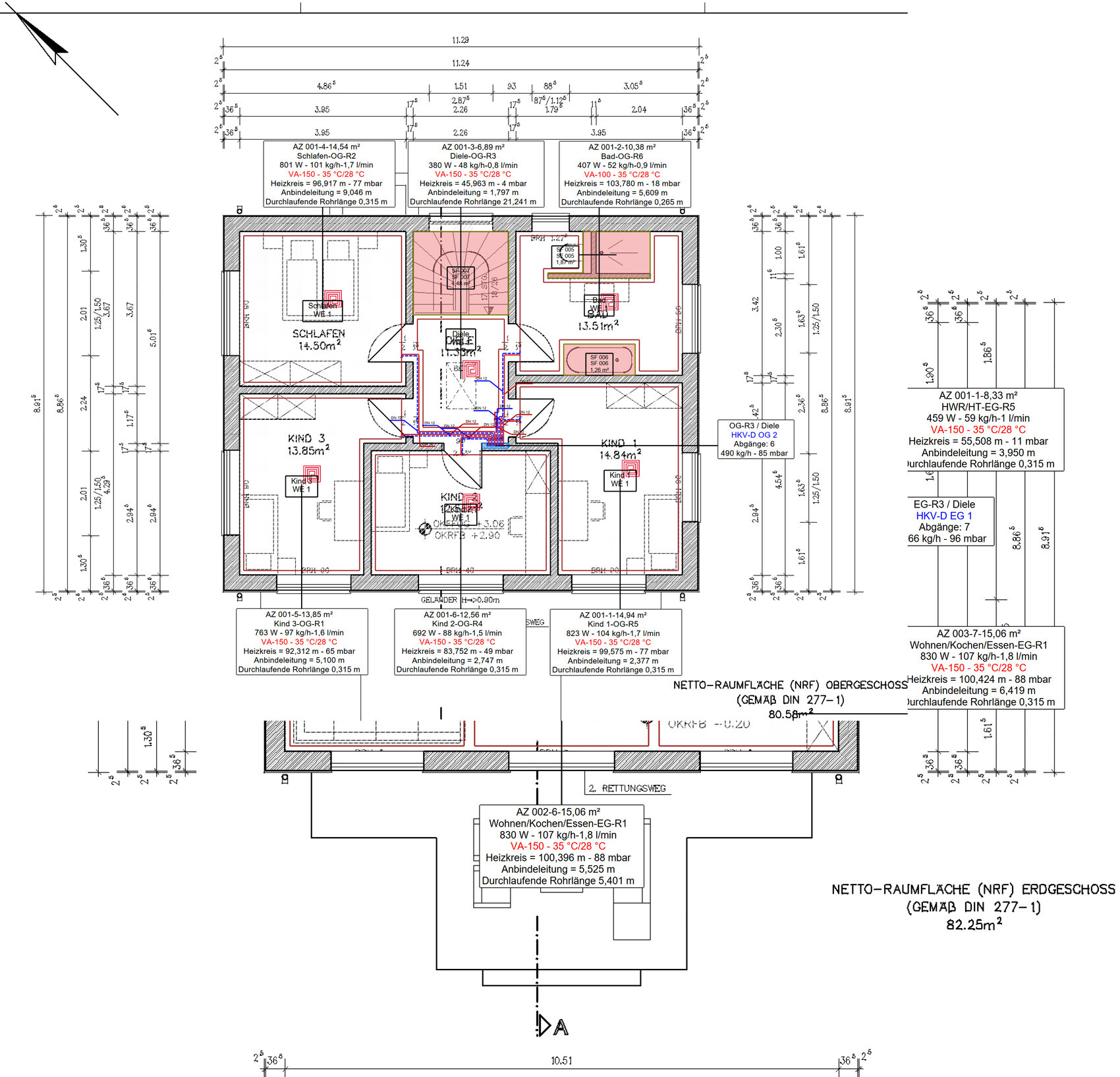
Anbei erstmal die letzte Seite der Heizlastberechnung und der Verlegeplan. Wenn ihr auch noch die Berechnung der Einzelnen Räume braucht, kann ich die auch noch snippen...
Brauche ich eine neue Berechnung? Kann man die vorhandene irgendwie umrechnen, auf die von mir gewünschten Parameter?
Danke und Gruß
Tolentino



ich habe heute meinem Heizi eine Mail geschrieben, in der ich meine Wunschtemperaturen für die einzelnen Räume vorgegeben hatte. Leider hat er mir sehr schnell mit einer schon durchgeführten Berechnung und Verlegeplänen zurückgeschrieben, die einfach nach DIN vorgenommen wurde.
Da bislang der Statiker auch noch nichts gerechnet hat, bin ich mir sicher, dass ohne Solare Einträge gerechnet wurde.
Jedenfalls kommt mit die berechnete Gesamtheizlast relativ hoch vor.
Wie seht ihr das?
Ich hatte auch darauf hingewiesen, dass ich ersten 30°C Vorlauf haben möchte und maximal 10 cm Verlegabstand.
Dazu hat er dann folgendes geantwortet:
da sie hier Einzelraumregelung haben gilt hier immer der Wärmste Raum als Auslegungsspitze für die Vorlauftemperatur, 30grad sind möglich, auch einen Pauschalen Abstand der Rohrleitungen ist nicht sinnvoll, hier wird unnötig Pumpenleistung durch Volumenstromdrosselung benötigt.
Einzelraumregeleung hatten wir eigentlich schon besprochen, dass wir die deaktivieren und nur für die Energieeinsparverordnung überhaupt installieren. Weiß ich nicht, warum er das jetzt wieder vergessen hat.
Das andere verstehe ich nicht ganz. Kennt sich jemand aus und kann was dazu sagen? @Daniel-Sp , @T_im_Norden , z.B.? Ihr seid doch die Cracks...
Anbei erstmal die letzte Seite der Heizlastberechnung und der Verlegeplan. Wenn ihr auch noch die Berechnung der Einzelnen Räume braucht, kann ich die auch noch snippen...
Brauche ich eine neue Berechnung? Kann man die vorhandene irgendwie umrechnen, auf die von mir gewünschten Parameter?
Danke und Gruß
Tolentino
D
Daniel-Sp02.11.20 11:46Ob eine Auslegung mit 15cm VA und im Bad 10cm VA ausreicht, hängt natürlich vom Transmissionswärmeverlust ab. Ich habe eigentlich überall ca 15cm und im Bad 10cm und brauche keine 35°C Vorlauf. Welchen H`t hat deine Hülle?
Plant ihr bodenebene geflieste Duschen, dann solltet ihr die auch belegen lasen, in der Planung sind die im OG und EG ausgespart.
Interessant wäre noch Über- und Unterdeckung der einzelnen Räume.
Bzgl Pumpenstrom. Ja, da hat er Recht, durch die engeren Biegeradien bei geringeren VA hast du einen höhern Widerstand im Heizkreis und verbrauchst mehr Pumpenstrom. Welche Rohrdimension ist geplant 17/2 , 16/2?
Plant ihr bodenebene geflieste Duschen, dann solltet ihr die auch belegen lasen, in der Planung sind die im OG und EG ausgespart.
Interessant wäre noch Über- und Unterdeckung der einzelnen Räume.
Bzgl Pumpenstrom. Ja, da hat er Recht, durch die engeren Biegeradien bei geringeren VA hast du einen höhern Widerstand im Heizkreis und verbrauchst mehr Pumpenstrom. Welche Rohrdimension ist geplant 17/2 , 16/2?
D
Daniel-Sp02.11.20 11:50Und es stimmt auch, wenn du unnötigt viel Rohr im Estrich hast im Vergleich zu anderen Räumen, dass Du dann drosseln musst, da du in anderen Räumen den Vorlauf vielleicht nicht zurückfahren kannst.
T
Tolentino02.11.20 11:51H't finde ich nicht. Ist hier was dabei (evtl. die letzten beiden Werte?)?
ALLGEMEINE GEBÄUDEDATEN Datum: 18.07.2020 Seite G1
GEOMETRIE
Länge lbuild 11,26 m Anzahl Geschosse 3 -
Breite bbuild 8,88 m
Höhe hbuild 8,82 m Volumen Ve,build 730,72 m3
Grundfläche Abuild 99,91 m2 Hüllfläche Aenv,build 352,57 m2
WÄRMEBRÜCKENZUSCHLAG
Kategorie Berechnung nach DIN 4108 Beiblatt 2 ΔUTB 0,05 W/(m2K)
WÄRMESPEICHERKAPAZITÄT
Wärmespeicherkapazität ceff 50,0 Wh/(m3K) Ceff 36536 Wh/K
Wärmeverlustkoeffizient H 200 W/K
Zeitkonstante des Gebäudes τ 156,6 h
Aber ist das schlimmer mehr Pumpenstrom zu Verbrauchen als eine höhere Vorlauf-Temperatur?
Rohrdurchmesser - Wenn im Verlegeplan nichts steht, weiß ich's nicht, kann aber fragen, ich nehme an für den Widerstand ist ein größerer Durchmesser besser?
ALLGEMEINE GEBÄUDEDATEN Datum: 18.07.2020 Seite G1
GEOMETRIE
Länge lbuild 11,26 m Anzahl Geschosse 3 -
Breite bbuild 8,88 m
Höhe hbuild 8,82 m Volumen Ve,build 730,72 m3
Grundfläche Abuild 99,91 m2 Hüllfläche Aenv,build 352,57 m2
WÄRMEBRÜCKENZUSCHLAG
Kategorie Berechnung nach DIN 4108 Beiblatt 2 ΔUTB 0,05 W/(m2K)
WÄRMESPEICHERKAPAZITÄT
Wärmespeicherkapazität ceff 50,0 Wh/(m3K) Ceff 36536 Wh/K
Wärmeverlustkoeffizient H 200 W/K
Zeitkonstante des Gebäudes τ 156,6 h
Aber ist das schlimmer mehr Pumpenstrom zu Verbrauchen als eine höhere Vorlauf-Temperatur?
Rohrdurchmesser - Wenn im Verlegeplan nichts steht, weiß ich's nicht, kann aber fragen, ich nehme an für den Widerstand ist ein größerer Durchmesser besser?
D
Daniel-Sp02.11.20 11:56Manchmal findet man den auch im Energieausweis. Baut ihr nach Energieeinsparverordnung?
T
Tolentino02.11.20 12:28rw HL Berechnung Räume Deckung
EG Verlegung Normheizlast
Gast 540 542
Wohnen/
Essen/Kochen 2490 2198
Diele 798 592
Bad 102 299
Hauswirtschaftsraum 459 396
OG
Schlafen 801 605
Diele 380 286
Bad 407 763
Kind1 823 627
Kind2 692 469
Kind3 763 648
Bäder sind ja krass unterdeckt. Was heißt das? Wandheizung unbedingt nötig?
EG Verlegung Normheizlast
Gast 540 542
Wohnen/
Essen/Kochen 2490 2198
Diele 798 592
Bad 102 299
Hauswirtschaftsraum 459 396
OG
Schlafen 801 605
Diele 380 286
Bad 407 763
Kind1 823 627
Kind2 692 469
Kind3 763 648
Bäder sind ja krass unterdeckt. Was heißt das? Wandheizung unbedingt nötig?
Ähnliche Themen