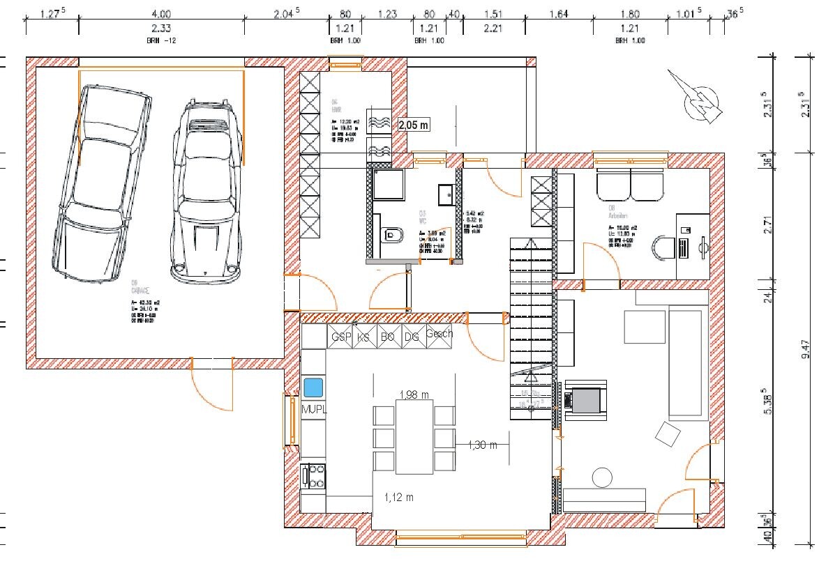
Der Grundansatz von dem ganzen Plan gefällt mir, auch die Treppe usw. Der Teufel liegt einfach im Detail und da wird es in der praktischen Nutzung hapern. Auch ein 400 cm breites Garagentor für 2 Autos .. hm .. Da sollte man vielleicht doch über 2 einzelne Tore nachdenken, das ist auch handhabbarer, wenn man nur die Fahrräder rausschieben will.
Der Technikraum mit 223 cm Breite an der breitesten Stelle, sonst nur 163 cm und dann noch Stauraum.
Der Technikraum mit 223 cm Breite an der breitesten Stelle, sonst nur 163 cm und dann noch Stauraum.
MrIcemanLE schrieb:
Die Treppe haben wir bewusst aus dem Wohnbereich ins OG geführt, da uns die "klassische" Variante (vom Eingang aus) nicht gefällt.
Zwischen Terrassentür und Treppe sind 2,60m Platz. Das sollte doch für einen Essplatz reichen, oder?Finde ich grundsätzlich (ohne Kinder) auch besser. Aber dann sollte zumindest ein Meter vor Treppenantritt als Verkehrsfläche ohne Stuhl im Weg eingeplant werden.
Und zeichne dort mal einen anständigen esstisch ein: der sollte dann schon seine 2 Meter Länge haben.
BeHaElJa schrieb:
Wie ich heute gelernt hab sagt der Neufert 3.2 m - wir planen 3.7 m. Also nein, 2.6 m reichen nicht.😀 😀 😀
Jetzt mal allgemein: das Haus wirkt auf mich... kompakt. War da ein Keller bei?
Das Haus ist (relativ) klein, soll für 5 Personen ausgelegt werden. Manche planen Kinderzimmers im Überfluss (von der Größe), hier geht wieder gen <12qm. Irgendwie wird's gehen, da oben. Muss ja 🙂
Aber ich verstehe dann nicht diese Treppe, die von allen Treppen am meisten Platz beansprucht. So hier und da ein Qm mehr an reeller Wohnfläche zu haben, wäre bestimmt schön - und wenn es nur ein Abstellraum im OG wird.
Unten würde ich, trotz aller Blödheit der klassischen Variante die Treppe drehen, und die Küchenwände in den Papierkorb schmeissen: der Flur zwischen Küche und Treppe hat so gar keinen Sinn als Platz zu verbrennen. Dann die Wand vom Wohnzimmer etwas einkürzen und den Kamin unter die Treppe (darf man das?)
Die eingezeichneten Möbel zeigen es ja: so, wie es jetzt ist, ist da kein Durchkommen, statt dessen hat die Küche sehr viel Fläche über.
Frage: soll das ein Doppelhaushälfte werden, oder warum gibt es im Osten kein Fenster?
Aber: wie meine Vorredner es sagen: neu bitte!
Gruss Yvonne
MrIcemanLE schrieb:
Zwischen Terrassentür und Treppe sind 2,60m Platz. Das sollte doch für einen Essplatz reichen, oder?Äh, nee. Definitiv nicht. Wir hatten im alten Haus 3 Meter und das war ein Stühle rücken ohne Ende. Ihr wollt doch an dem Tisch noch vorbeilaufen können. Rechne 1 Meter Tisch und um den Tisch herum MINDESTENS jeweils 1 Meter.Und was dein Kamin betrifft: es sind auch Mindestabstände zu Wände und Möbel einzuhalten.
@ypg ... das habe ich gerade mal gemacht .. ein paar Wände rausgeschmissen 😉
Und dann habe ich die Wand vom Gäste-Bad noch nach planrechts verrückt, so dass der Raum jetzt etwa 205 cm breit ist.
Trennwand zum Wohnbereich .. Fenster dorthin, den Erker nach planlinks in den neuen Koch-Essraum. Der Küche links noch ein Fenster gegönnt und dort dann mal ein schönes L reingesetzt. Esstisch mit 180x90 cm.
Im Wohnbereich dann nur ein 280 cm breites Sofa mit so einem verschiebbarem Fußteil. An der Wand zum Arbeitszimmer dann ein kleines Regal oder so als Abstellfläche vom Sofasitzplatz und nach planunten hin so etwas wie einen kleinen Minicouchtisch.
An die untere Wand dann noch das Wandklavier und 2 bodentiefe Fenster ... könnte sein, dass die sich mit dem Klavier wg. der Sonne nicht so gut vertragen.
Den Wohnbereich könnte man mit einer Schiebetür schließen.
Beispiel für die Küche ist diese Küche.

Und dann habe ich die Wand vom Gäste-Bad noch nach planrechts verrückt, so dass der Raum jetzt etwa 205 cm breit ist.
Trennwand zum Wohnbereich .. Fenster dorthin, den Erker nach planlinks in den neuen Koch-Essraum. Der Küche links noch ein Fenster gegönnt und dort dann mal ein schönes L reingesetzt. Esstisch mit 180x90 cm.
Im Wohnbereich dann nur ein 280 cm breites Sofa mit so einem verschiebbarem Fußteil. An der Wand zum Arbeitszimmer dann ein kleines Regal oder so als Abstellfläche vom Sofasitzplatz und nach planunten hin so etwas wie einen kleinen Minicouchtisch.
An die untere Wand dann noch das Wandklavier und 2 bodentiefe Fenster ... könnte sein, dass die sich mit dem Klavier wg. der Sonne nicht so gut vertragen.
Den Wohnbereich könnte man mit einer Schiebetür schließen.
Beispiel für die Küche ist diese Küche.
L
Lebensprojekt19.08.15 08:17Hallo,
Habe ich das richtig gesehen, Kinderzimmer nur ca. 10 m² ?? Finde ich zu wenig.
Wir planen pro Kind mindestens 13-14 m²
Gruss
Habe ich das richtig gesehen, Kinderzimmer nur ca. 10 m² ?? Finde ich zu wenig.
Wir planen pro Kind mindestens 13-14 m²
Gruss
M
MrIcemanLE19.08.15 17:56@kbt09 ... vielen vielen Dank für deine Mühe. Man wird mit der Zeit echt Betriebsblind. Deine Variante hat einige schöne Seiten. Ich finde es schade, dass man aus dem Wohnbereich nur schlecht in den Garten schauen kann. Die Küche könnte mir gefallen. Werde mir mal anschauen, wo ich den Schornstein/Kaminzug im Wohnzimmer noch unterbringen kann. Das Gäste-WC sieht geräumiger aus. Vielleicht könnte man das WC auch unters Fenster machen.
@Lebensprojekt ... Bei der Zimmergröße lässt sich nicht viel machen. Der Flur ist aufgrund der Treppe sehr geräumig und somit bleibt für die drei Kinderzimmer nicht viel Platz.
Vielen Dank nochmal an alle, die sich die Zeit für uns nehmen. Auch wenn die Kritik "weh tut" ... ;-)
@Lebensprojekt ... Bei der Zimmergröße lässt sich nicht viel machen. Der Flur ist aufgrund der Treppe sehr geräumig und somit bleibt für die drei Kinderzimmer nicht viel Platz.
Vielen Dank nochmal an alle, die sich die Zeit für uns nehmen. Auch wenn die Kritik "weh tut" ... ;-)
Ähnliche Themen