Gewöhnungsbedürftig finde ich den Gang nach unten von der Oma. Auch ist der Hauptraum nicht gemütlich zu möblieren. Ich habe beim Betrachten mit der Info Einliegerwohnung an einen Single gedacht, der keinen Anspruch hat

Waschmaschine hat leider auch nicht so den Platz.
Eingang ist schön grosszügig.
Abgerundete Dusche und Eckbadewanne sowie Ecktoilette und Rundbögen sind nun gar nicht zeitgemäss... na gut, Geschmackssache.
Speisekammer ist gar nicht zu möblieren ausser einem 20cm Regal ggü der Tür.
Essbereich könnte wegen Platzmangel mit den Stühlen am Tresen kollidieren. Dafür ist das Wohnzimmer megagross.
Die Wandbürzel im Flur und zwischen Wohn und Ess erschliessen sich mir nicht. Wofür sind die?
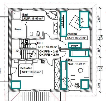
Im OG gibts ein grosses Schlafzimmer, aber nur 3 Meter Stellfläche.
Stellfläche scheint es soundso wenig zu geben ausser im Keller und im Dach. Auch die Wände bieten wegen der vielen Fenster keinen Platz für Schränke.
Bad ist auch ein Tanzsaal. Nach dem Duschen muss man an einem Fenster vorbei. Nungut, es gibt teure Plissees... Der erste Waschplatz an der Tür ist nicht benutzbar wegen der Tür - die Person wird immer im Weg stehen. Aber die Möblierung kann man ja ändern.
Ich habe jetzt auch nicht mehr die Himmelsrichtungen auf dem Schirm... ich denk mal, die Garage sitzt im Westen?
Ich würde mich - glaube ich - in den Räumen nicht wohl fühlen... irgendwie ist alles (bis auf Essecke) einfach nur gross
Hallo ypg,
vielen Dank für Deinen Beitrag. Ich versuche mal auf die Punkte einzugehen.
Einliegerwohnung:
Der Zugang zur Einliegerwohnung ist in der Tat gewöhnungsbedürftig. Wir hatten im Erstentwurf den Zugang zur Einliegerwohnung über eine zweite Treppe im EG. Dadurch ist leider viel Platz im EG verloren gegangen. Deshalb hat der Architekt nach einem Weg gesucht die Treppe nach außen zu verlagern, um keinen Platz im EG zu verlieren. Ich finde, das ist gut gelungen.
Hmm mit der gemütlichen Möblierung hast du Recht. Da ist nicht viel mit möblieren. Es gibt im Wohnzimmer nur die eine Stellwand mit 3 Metern für den TV Schrank. Was will man denn sonst noch so möblieren?

. Was meinst du mit Waschmaschine? Waschmaschine? Ist im Moment im Bad eingezeichnet, wird aber vielleicht auch im Hauswirtschaftsraum stehen.
Eingang:
Den Eingang mögen wir großzügig. Wir haben derzeit einen recht engen und da ärgern wir uns ständig drüber. Wenn man mit mehreren leuten reinläuft steht jeder jeden im Weg.
Abrundungen:
Bad und Dusche werden eckig. Ecktoilette kommt an die Nordwand und ist dann eine normale Toilette. Rundbogen kommt weg.
Speisekammer:
Ja die Speisekammer bekommt jetzt noch kleinere Maße und wandert an die Wand zwischen Flur und Küche. Dort hat sie dann die Maße von ca. 75cm x 130cm. Uns sind mehr Küchenelemente lieber. Meine Frau will halt unbedingt noch einen kleinen Ort, wo sie den gelben Sack Müll, Staubsauger, Spülmaschinentabs, Putzmittel, etc. lagern kann. Die Tür bei der Speisekammer wird eine Schiebetür. Wir hämmern da halt Regale in die SK rein.
Essbereich:
Hmm der Essbereich ist schon etwas eng, da hast du Recht. Die Maße liegen so bei 3,5 Meter in der Breite und 2,5 Meter in der Tiefe. Vielleicht kann man die Küche noch etwas einrücken und dort 1 Element weglassen. Dann hätten wir ca. 3,5 Meter x ca. 3 Meter. Was meint ihr?
Wandbürzel:
Was ist das

?. Google findet auch nichts zu dem Begriff. Zwischen Wohnen und essen die Wandverlängerung ist, damit die Küche vom Wohnbereich aus nicht so gut sichtbar ist. Küche soll vom Essbereich aus sichtbar sein. Essbereich soll vom Wohnzimmer aus sichtbar sein. Aber nicht Küche vom Wohnbereich aus.
Schlafzimmer:
Im Schlafzimmer ist die Stellfläche hinter der Tür 3,50 Meter. Die Fenster im Schlafzimmer ziehen wir zusammen. So dass sich vielleicht an der Südwand noch 1 Meter ergibt. An der Süd/West Ecke ist auch noch Stellfläche. Das reicht uns.
Stellfläche:
Ja, das stimmt, haben wir nicht viel von. Man kann halt nicht beides haben. Viele Fenster und viel Stellfläche. Wir haben uns für mehr Fenster entschieden. Wir lieben große Fensterflächen. Müssen wir halt häufiger ausmisten, statt alles für immer zu verstauen.
Bad:
Wird ja jetzt komplett umgestellt. Siehe Beitrag Nr. 7 von mir in diesem Thread.
Wir hatten es früher mal großzügig und leben nun nach einem Umzug wieder etwas beengt. Das ist total nervig, wenn es überall ob Eingang, Küche, Essen, Wohnen eng ist. Deshalb haben wir es versucht, da wo es geht wieder etwas luftiger zu machen.