ᐅ Grundriss Einfamilienhaus mit ca 150 qm auf Hinterliegergrundstück
Erstellt am: 27.02.23 08:24
H
HausbaurerJa, wobei wir tatsächlich die Idee mit dem Carport im Westen gar nicht so schlecht finden.
Küche und Wohnzimmer tauschen, hat dann aber den Effekt.

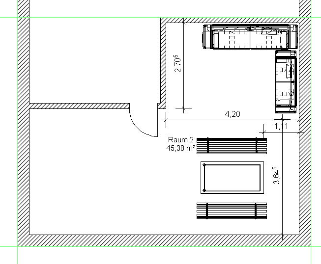
Die 4,20 ist ok, ein bissl mehr durch Erker geht auch. Der TV steht dann ja z.B. an der westlichen Innenwand. Aber die 2,70 funktionieren nicht gut. Dh Raum dafür müsste man über das Büro schaffen. Halben Meter kürzer, nehm ich gerne, wüsste aber eben nicht, wie man das dann gut mit dem Wohnzimmer im Osten machen soll. Mit WZ im Westen kann man das Haus tatsächlich gut noch nen halben Meter kleiner machen. Irgendwo hab ich da auch eine Version. Mit dem halben meter ist es aber "luftiger". Man merkt es dann an ein paar Stellen, zumindest auf dem Plan schon.
Die Wand hinter der Tür hätte die Funktion gehabt ein wenig als Sichtschutz zu funktionieren und Stellfläche für ein Bücherregal oä zu schaffen.
Wir waren gestern nochmal da und hab nochmal geschaut, wie es sich verhält, wenn wir das Haus an die 3m Grenze im Norden schieben, 4m von der Westgrenze weg und aber eben die 9,25 haben. Es ist schon Gewinn für den Süden, wenn die 1,5m + 1,75 zum Garten kommen, wenn das Haus wie beim ersten Plan gedreht ist.
Budget: ja, also irgendwo ist dann bei 660k inkl der Baunebenkosten, ohne Außenanlagen bei mir auch Schluss. Nu muss man aber auch sagen, dass wir eben ein Holzhaus möchten und das schon teurer ist, als massiv, zumindest das was wir so an Angeboten bekommen haben. Von Fertighausbauern habe ich konkrete Zahlen, bei Massiv bisher noch kein fertig ausgearbeitetes, sondern eher so grobe Schätzungen.
Küche und Wohnzimmer tauschen, hat dann aber den Effekt.
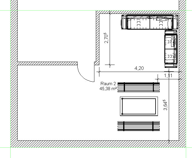
Die 4,20 ist ok, ein bissl mehr durch Erker geht auch. Der TV steht dann ja z.B. an der westlichen Innenwand. Aber die 2,70 funktionieren nicht gut. Dh Raum dafür müsste man über das Büro schaffen. Halben Meter kürzer, nehm ich gerne, wüsste aber eben nicht, wie man das dann gut mit dem Wohnzimmer im Osten machen soll. Mit WZ im Westen kann man das Haus tatsächlich gut noch nen halben Meter kleiner machen. Irgendwo hab ich da auch eine Version. Mit dem halben meter ist es aber "luftiger". Man merkt es dann an ein paar Stellen, zumindest auf dem Plan schon.
Die Wand hinter der Tür hätte die Funktion gehabt ein wenig als Sichtschutz zu funktionieren und Stellfläche für ein Bücherregal oä zu schaffen.
Wir waren gestern nochmal da und hab nochmal geschaut, wie es sich verhält, wenn wir das Haus an die 3m Grenze im Norden schieben, 4m von der Westgrenze weg und aber eben die 9,25 haben. Es ist schon Gewinn für den Süden, wenn die 1,5m + 1,75 zum Garten kommen, wenn das Haus wie beim ersten Plan gedreht ist.
Budget: ja, also irgendwo ist dann bei 660k inkl der Baunebenkosten, ohne Außenanlagen bei mir auch Schluss. Nu muss man aber auch sagen, dass wir eben ein Holzhaus möchten und das schon teurer ist, als massiv, zumindest das was wir so an Angeboten bekommen haben. Von Fertighausbauern habe ich konkrete Zahlen, bei Massiv bisher noch kein fertig ausgearbeitetes, sondern eher so grobe Schätzungen.
dieJulia schrieb:
Mir gibt es halt nix, ein großes Schlafzimmer zu haben und meinem Mann auch nichts.Nicht vergessen: je kleiner das Schlafzimmer, desto bedeutender die (möglichst: zentrale) Kontrollierte-Wohnraumlüftung.dieJulia schrieb:
zig mal die Nachbarn befragt, deren Bauvorhaben sich massiv verzögert hat, weil der Bauantrag nicht durch ging (der im übrigen von einem Architekten stammt)Da würde ich doch einen von deren Architekten nehmen, wenn die schon Erfahrung mit diesem Baugebiet haben. So hätte sich das Architektensuchen in NüFüErl schon erledigt (andernfalls stehe ich natürlich gerne zur Verfügung).dieJulia schrieb:
Hier die gedrehte Version.Was sind das für Wandstärken und Öffnungsmaße - soll mit einem Holzer (Bien-Zenker ?) gebaut werden ?https://www.instagram.com/11antgmxde/
https://www.linkedin.com/company/bauen-jetzt/
Ja, holzständer, aber nicht Bien-Zenker. Die Angebote der Holzhäuser wurden in den entsprechenden Standardwandstärken der jeweiligen Anbieter erstellt. Zwischen 345 bis 410 außen war so ziemlich alles gängiges dabei. Dadurch schiebt sich natürlich alles ein wenig, ist aber in Summe kein Problem.
H
hanghaus202305.03.23 19:11Ähnliche Themen