
kbt09
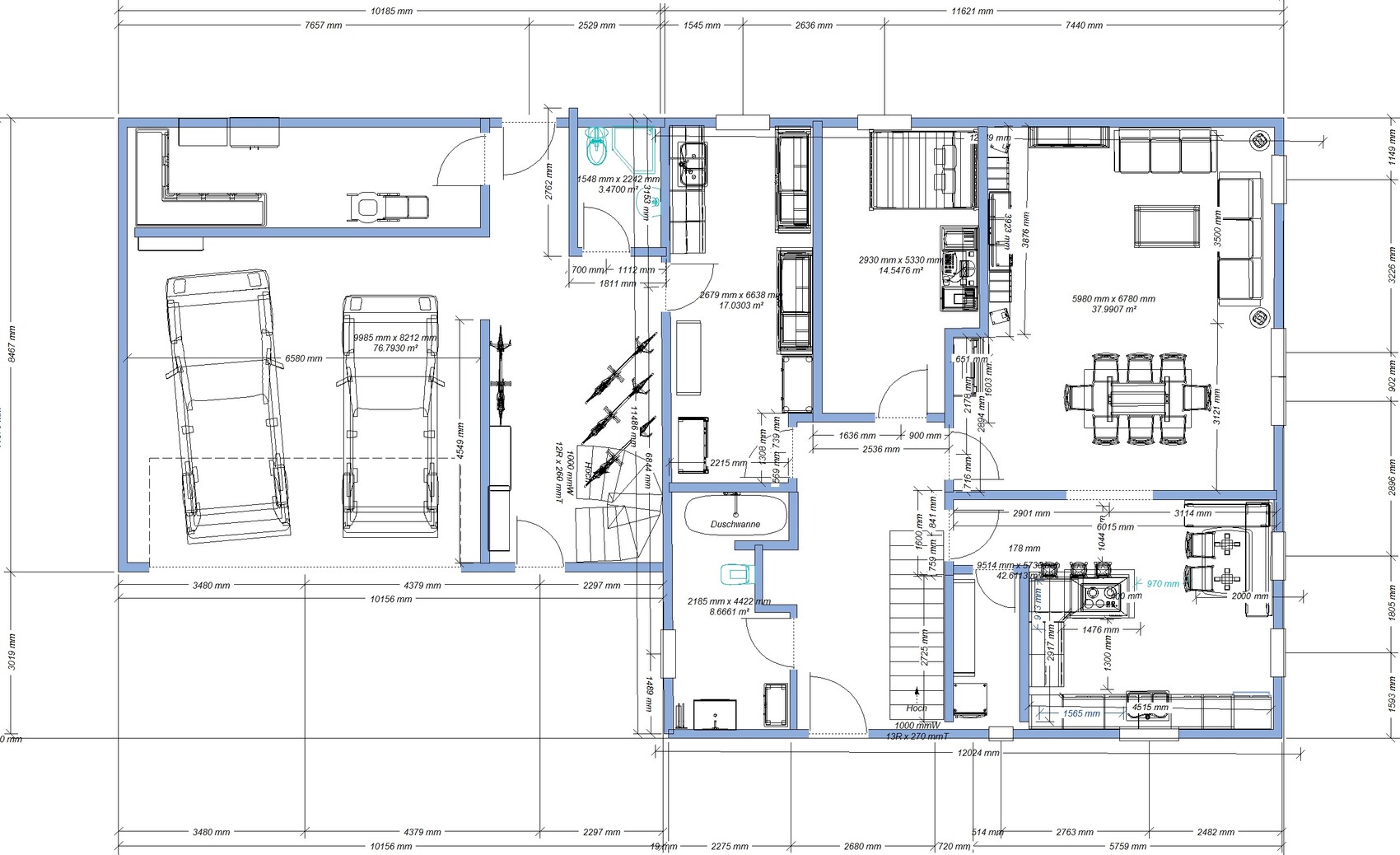
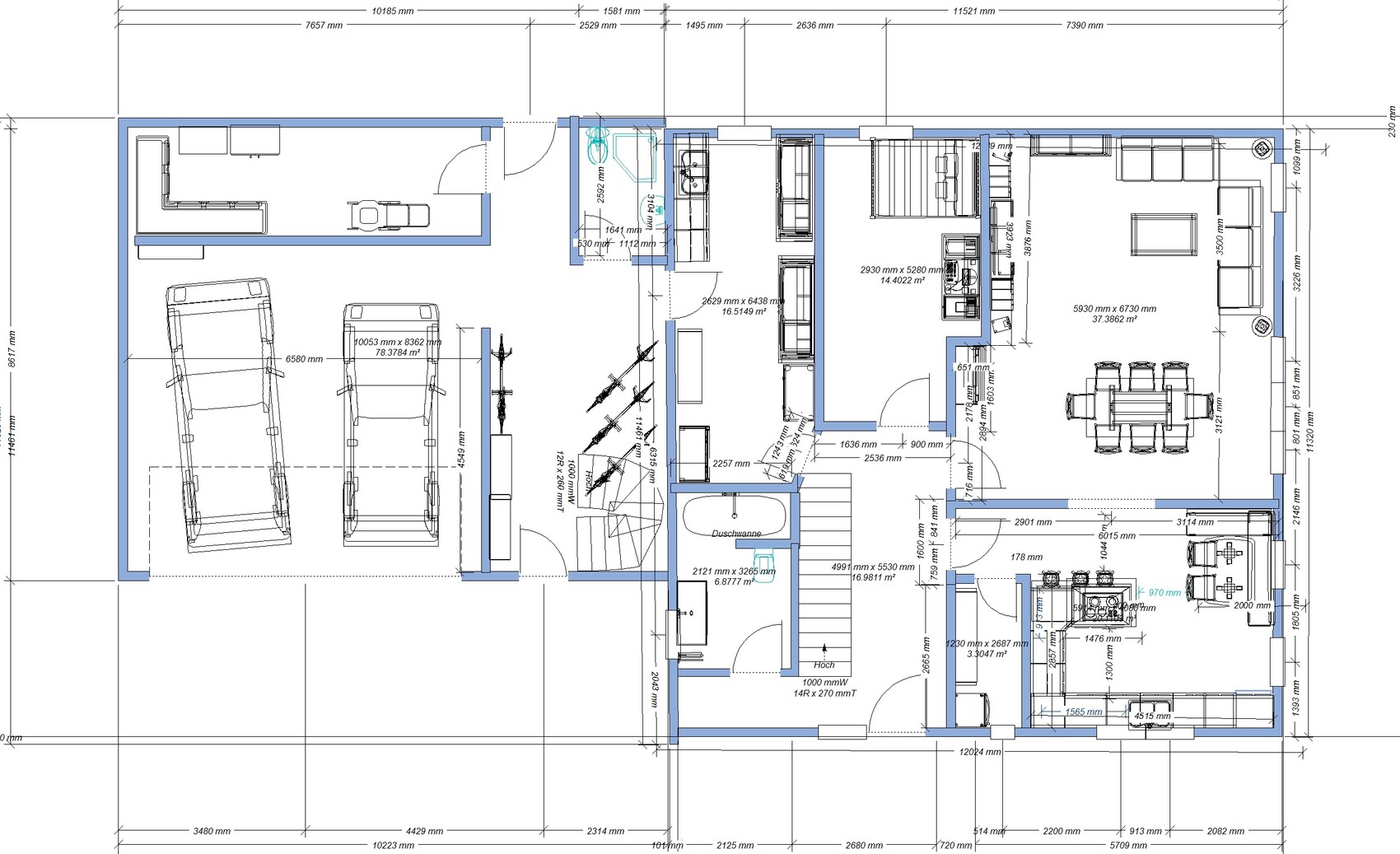
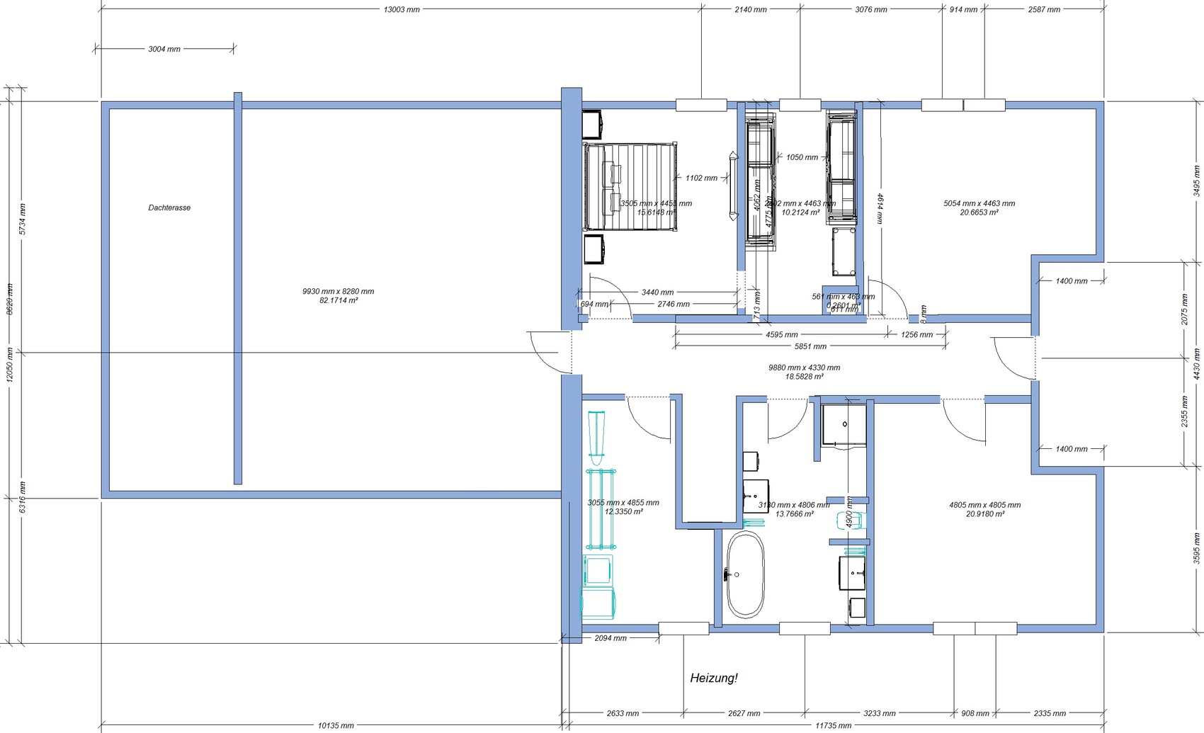
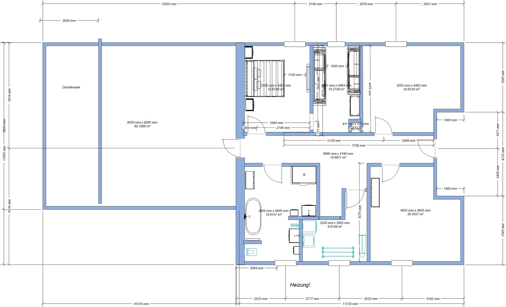
Wenn du dir das OG aus meiner letzten Planung genau ansiehst, dann kommt man die Treppe hoch direkt in den Partyraum. Alle anderen Räume sind mit dicken tragenden Wänden zum OG-Flur abgeschirmt und die Eingänge zu Kinder-Zimmern und Schlafzimmer alle ganz rechts.
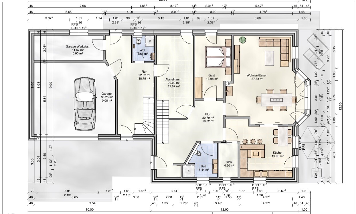
Ich sehe da kein Problem .. zentrale Klingelanlage mit Türöffnermöglichkeit von Diele und Partyraum. Vor allem leiden deine Pläne aktuell unter nicht passenden Treppengrößen. Wenn du die jeweils reell einstellst, werden auch die Räume recht anders.
Ich würde auch empfehlen von den Kostenlos-Programmen z. B. auf Virtual Architecture von eu-Software umzusteigen. Kostet nicht die Welt, erlaubt aber wirklich realistischere Darstellungen.
Aber, wie ich schon mehrfach sagte, und auch mit dem Hinweis auf das Dach, von dem ja so einiges auch in der Gestaltung abhängt, gehe zu einem Architekt.
Du sprachst von OG nur 2/3 vom EG .. das ist auch mit meinem letzten Plan nicht gegeben. Wirst du auch nicht gut hinbekommen, solange der Dachanschluss zum Partyraum über der Garage besteht, da dadurch die Dachschräge links vom Haupthaus praktisch aufgehoben ist.
Und, zu diesen ganzen zu beachtenden Zahlen gehören ja in aller Regel auch Werte wie Max. Traufhöhe, Firsthöhe usw. Das sind alles Daten, die wir Laien uns nur mühsam erarbeiten können, wir User hier aufgrund deiner Angaben schon gar nicht, aber ein Architekt sollte da firm sein.
Ich sehe da kein Problem .. zentrale Klingelanlage mit Türöffnermöglichkeit von Diele und Partyraum. Vor allem leiden deine Pläne aktuell unter nicht passenden Treppengrößen. Wenn du die jeweils reell einstellst, werden auch die Räume recht anders.
Ich würde auch empfehlen von den Kostenlos-Programmen z. B. auf Virtual Architecture von eu-Software umzusteigen. Kostet nicht die Welt, erlaubt aber wirklich realistischere Darstellungen.
Aber, wie ich schon mehrfach sagte, und auch mit dem Hinweis auf das Dach, von dem ja so einiges auch in der Gestaltung abhängt, gehe zu einem Architekt.
Du sprachst von OG nur 2/3 vom EG .. das ist auch mit meinem letzten Plan nicht gegeben. Wirst du auch nicht gut hinbekommen, solange der Dachanschluss zum Partyraum über der Garage besteht, da dadurch die Dachschräge links vom Haupthaus praktisch aufgehoben ist.
Und, zu diesen ganzen zu beachtenden Zahlen gehören ja in aller Regel auch Werte wie Max. Traufhöhe, Firsthöhe usw. Das sind alles Daten, die wir Laien uns nur mühsam erarbeiten können, wir User hier aufgrund deiner Angaben schon gar nicht, aber ein Architekt sollte da firm sein.