Grundriss Einfamilienhaus, ca. 200qm ohne Keller - Einschätzung

4,70 Stern(e) 3 Votes
Zuletzt aktualisiert 04.10.2025
Sie befinden sich auf der Seite 29 der Diskussion zum Thema: Grundriss Einfamilienhaus, ca. 200qm ohne Keller - Einschätzung
>> Zum 1. Beitrag <<

S

Slammer0909

Hoppla...
Da weiß ich ja gar nicht, wo ich anfangen soll.

Hammer hart, was du da gemacht hast! Danke schon mal.
Wie du einfach mal Garage und Haus als ein Element aufgegriffen hast, finde ich irgendwie stark. Das diesen Wohnzimmer könnte beinahe etwas kleiner.
Einerseits fast störend, dass ich am Esszimmertisch von der Straße aus direkt gesehen werde, aber das würde wohl schon klappen mit Plissees.

Echt ne coole Alternative, die ich mir genau ansehen muss und drüber nachdenken muss. Sehr viele Gedanken hast du dir gemacht und kennst mich ja nun auch schon besser, das merkt man finde ich sehr schön.

Eine Sache gebe ich zu bedenken bzw. ist mir aufgefallen. Ich fürchte, das mit der Dachschräge über dem Partyraum funktioniert so nicht bzw. diese würde auch mind. die 1,5m nach innen reichen, wie bei der Ansicht von der BU-Architektin.
Weißt du, das muss doch auch die 2m Linie (siehe ganz im Süden) irgendwo sein.
Denn ich habe eine Traufhöhe von 4,5m und somit sorgt das ja im normalen Haus schon dafür, dass ich einen Kniestock von ca. 1,1m habe und darauf dann eine Schräge von 30° (evtl. 35° möglich).
Wie soll es also im Partyraum jetzt höher klappen? Bzw. wenn es da ohne tiefe Schrägen funktioniert, dann verstehe ich grade nicht, wieso es beim normalen Haus nicht funktioniert die ganze Zeit....(?)

Mache ich da einen Denkfehler?


Eine zweite Sache: Du musst bitte die 2. Treppe und ein kleines Bad in der Garage mit unterbringen. Das wäre echt schön und wichtig. Habe dazu auch schon mal in deinem Entwurf rum gekritzelt.
Die Sitzecke in der Küche könnte man doch sogar auch über Eck ziehen, dann die Arbeitsplatte der Kochinsel entsprechend anpassen. Wobei generell schon eher der Wunsch war, eine Sitzecke mit Tischniveau zu haben und an der Kochinsel dann eine Art Bar mit erhöhtem Niveau. Das würde jetzt natürlich wegfallen, aber klar das nicht alles geht.
Irgendwie sind mir die 15qm Küche "zu wenig" Aktuell habe ich auch genau 15qm mit ca. 3,5 x 4,4m. Die ist als L ausgeführt und es passt auch ein Esstisch rein, ja. Aber wenn ich neu baue, hatte ich mehr erträumt...:-(

Und generell, wenn ich mir mal nur den Grundriss ansehen. Das sieht ja auch wie ein riesenbreites Friesenhaus mit integrierter Garage.
Warum denn in dem Fall nicht den Dachfirst komplett wie über dem Partyraum weiterziehen? Hätten die Kinder zum Süden große Fenster.
Allerdings zieht sich dann eben die Dachschräge auch schön blöd einmal über die gesamte Länge, sprich Schlafzimmer, Ankleide etc...auf der Westseite das gleiche. Aber würde von der Straßenansicht sehr schön aussehen, könnte ich mir vorstellen.

Man man man, da hast du dir ja echt was einfallen lassen...
Aber kannst du bitte auf die Fragen von mir eingehen?

Danke und Grüße


Grundriss eines Hauses mit Garage, Küche, Wohnzimmer, Essbereich, Flur, Treppe; pink/blau markiert.


EDIT: Ach so und noch eins, ich kann doch theoretisch jetzt das Badezimmer EG lang und schmal zerren, damit in den Flur noch die Treppe als komplett gerade oder zur Not unten gewendelt passt, oder? Kommt dann oben etwas anders heraus, aber müsste machbar sein.

Der Balkon ist zwar jetzt genau zu Straße raus, aber viel befahren ist sie nicht, dann muss da die Wäsche eben aufgehängt werden im Sommer.
 
kbt09

kbt09

Das, was du da skizziert hast, geht nicht auf. Ich habe lange mit dem Grundriss gespielt .. und einfach Wände verschieben geht nicht. Es geht die Gradlinigkeit vom Flur verloren, das Wohnzimmer bekommt einen 110 cm breiten aber 150 cm langen Eingangstunnel usw. Und warum willst du das Sofa unbedingt in dieser Position haben? Ist doch an der Ostwand viel schöner aufgehoben und bietet dazu noch die unauffällige Möglichkeit von Ostlicht. Im Winter stört auch keine tiefstehende Südsonne den Blick auf den Bildschirm.

Sicht auf den Essplatz von der Straße ... das Grundstück wird doch bepflanzt .. mir gefällt der große sonnendurchflutete Raum mit den 3 großen Fensterbereichen. Und die Westschiebetür ist ja quasi auch der Ausgang auf den Westteil der Terrasse, wo man im Sommer abends eh wohl eher grillen wird, um noch die letzten Sonnenstrahlen zu genießen.

Die zweite Treppe kostet den Fahrradstellplatz. Und ich sehe wirklich KEINEN Zusatznutzen für den Partyraum, ganz im Gegenteil Kostenerhöhung durch 2. Treppe, 2. Klingel usw. Der Weg über die erste Treppe in den Partyraum stört doch wirklich überhaupt nicht im Privatleben. Und dann wird nach oben einfach ein Türöffner gelegt und es gibt gar kein Problem.

Weshalb das WC in der Garage?

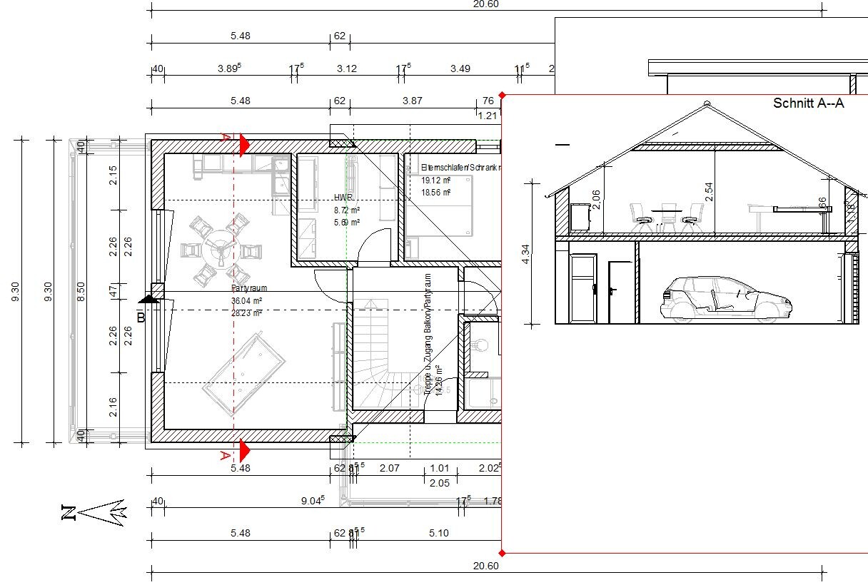
Das Dach über dem Partyraum habe ich als Gaube nach links rausgezogen. 20° Dachneigung und, ich glaube 220 cm Kniestock. Dass, das so gut aufgeht, liegt halt daran, dass das andere Dach viel breiter und mit 30° steiler ist.
Was du angedacht hattest, habe ich auch kurz überlegt. Aber nicht mehr den Nerv gehabt es auszuprobieren. Dachgestaltung ist nämlich haarig und kann ich nicht so gut, weil ich nicht genug davon verstehe. Und ... es ist eben das Problem, dass die Dachschrägen dann wieder in OG-Räumen sind, wo man sie überhaupt nicht gebrauchen kann.
 
S

Slammer0909

Ich sehe den Zusatznutzen aber schon.
Ich werde mich regelmäßig mit meinen Leuten da Treffen für Carrera-Abende.

Und dann können die Leute einfach kommen und gehen, ohne jemanden zu stören.

Wenn sich später die Kinder da öfters mal treffen wollen, könnten sie das ebenfalls nutzen. Das Bad ist dann eben für Partys.
Wenn die Kinder ihren 18 da freien, muss ich die nicht alle abends bei mir im Gäste-WC haben.
Generell finde ich diese Art Trennung für den Fall besser. Wenn wir normal Geburtstage etc im Haus feiern, sind alle im Haus. Wenn wir die Partys feiern, kann das gerne abgeschottet sein, dass nicht jeder noch mal durch das Haus laufen muss. Analog eines Kellers.
Bei einem Partykeller (im Keller) wäre sicherlich auch ein direktes Klo vorhanden.
Zudem kann man sich da bei der Gartenarbeit die Hände waschen oder mal schnell aufs Klo, also doppelter Nutzen.

Ich glaube einfach ohne die Treppe nicht so gut auszukommen.

Ok, also dürfte das mit dem Partyraum ja doch sehr eng werden mit 4,5m Traumhöhe über Bodengrenze / Straßenoberfläche. Denn EG hat doch schon eine Deckenhöhe von ca. 2,5m, dann noch die 2,2 oben darauf und ich bin leider drüber.
Eigentlich wollten wir eine Stadtvilla bauen, damit wir keine Schrägen haben.
Eingeschossigkeit ist da ja auch kein Problem, kann man durch Einzüge herstellen etc. Aber die Traufhöhe ist das Problem.

Bzw. wenn es so funktionieren sollte, warum sollte ich dann nicht überall den Kniestock auf 1,8m setzen und das Dach 20° machen. Es gibt da leider das Problem mit der Traumhöhe.

Ok einfach Wände verschieben geht nicht, den Durchgangsschlauch zum Wohnzimmer, hast du Recht, wäre blöd, weil zu lang.
Ich werde deine Idee mal in meinem Programm umsetzen und ein bisschen variieren. Dächer bekomme ich damit gar nicht hin.

Aber die Idee des überbreiten Friesengasse fände ich echt nicht schlecht.
 
kbt09

kbt09

Aber, du läßt doch auch die Nebentür nicht einfach offen. Die Leute müssen klingeln ... und wo ist die Störung der Privatsphäre bei Nutzung dieser einen Treppe?

WC für den Garten .. ok ... dann erläutere mal, welchen Stauraum du für was wirklich in der Garagenwerkstatt brauchst.

Oh ja, die Traufhöhe ... jetzt noch mal 2 Ansichten, Gaube bei Partyraum geändert. Und 2 Schnitte.

Grundriss: Elternschlafzimmer, zwei Kinderzimmer, Familienbad, Flur, Treppenhaus.


Grundriss eines Hauses: Erdgeschoss mit Wohnzimmer, Partyraum, Küche, Bad; Sektionsschnitt mit Garage.
 
T

tobia

Habe mir nicht alles durchgelesen. Mich würde mal interessieren: Was soll das kosten? Wir waren hier bei einem 08/15 Haus von der "Stange", 160qm (UG, EG, DG) ohne Böden, Garage, Garten, Parkplätze schon bei über 300.000€.
 
Zuletzt aktualisiert 04.10.2025
Im Forum Grundrissplanung / Grundstücksplanung gibt es 2509 Themen mit insgesamt 87147 Beiträgen


Ähnliche Themen zu Grundriss Einfamilienhaus, ca. 200qm ohne Keller - Einschätzung
Nr.ErgebnisBeiträge
1 2 Vollgeschosse, Durchgang Garage, Hauswirtschaftsraum unter Treppe 25
2Haus ohne Garage und Keller? Ausbau Dachboden? Fresswarze? - Seite 585
3Grundriss, längliches Einfamilienhaus, integrierte Garage kein Keller 16
4Grobe Schnitzer im Grundriss? Küche zu klein? - Seite 639
5Grundriss-Änderung Einfamilienhaus 150 m² aufgrund von Treppe 36
6Wohnzimmer Grundrissplanungs-Ideen? - Seite 239
7Treppe im Wohnzimmer als Hype - Pro & Contra? - Seite 426
8Kombination Fliesen und Parkett im Wohnzimmer mit offener Küche - Seite 330
9Grundrissplanung Wohnzimmer-Küche 18
10Kniestock erhöhen - Traufhöhe überschreiten? 22
11Kochinsel / Arbeitsinsel in der Küche - Welcher Dunstabzug? - Seite 349
12Grundrissfrage, Treppe, Fenster, Ausrichtung 12
13Grundriss Einfamilienhaus / Garage im EG? 10
14Esstisch in einer kleinen Küche - Seite 449
15Grundriss für 150qm Einfamilienhaus mit Wohnzimmer nach Norden 21
16Grundrissplanung Wohnzimmer und Flur zu schmal? 21
17REH - Grundrissplanung - Küche zu klein - Seite 430
18Grundrissplanung Satteldachhaus (Kniestock 2,20m) ca. 170qm 42
19Grundriss: 150qm Einfamilienhaus+Einliegerwohnung - Carport / Garage + Schuppen / Werkstatt - Seite 545
20Grundriss Einfamilienhaus mit Keller und Garage - Seite 850

Oben