ᐅ Grundriss Einfamilienhaus, ca. 200qm ohne Keller - Einschätzung
Erstellt am: 14.12.14 10:37
S
Slammer090914.12.14 10:37Hallo ins Forum,
ich lese schon seit längerer Zeit mit, schaue mir andere Threads an und ebenso deren Grundrisse und Kritiken.
Meine Frau und ich sind bereits in Kontakt mit einer Baufirma und ebenfalls der Grundriss steht schon einigermaßen. Das EG stammt ebenfalls zum Teil aus meiner Feder.
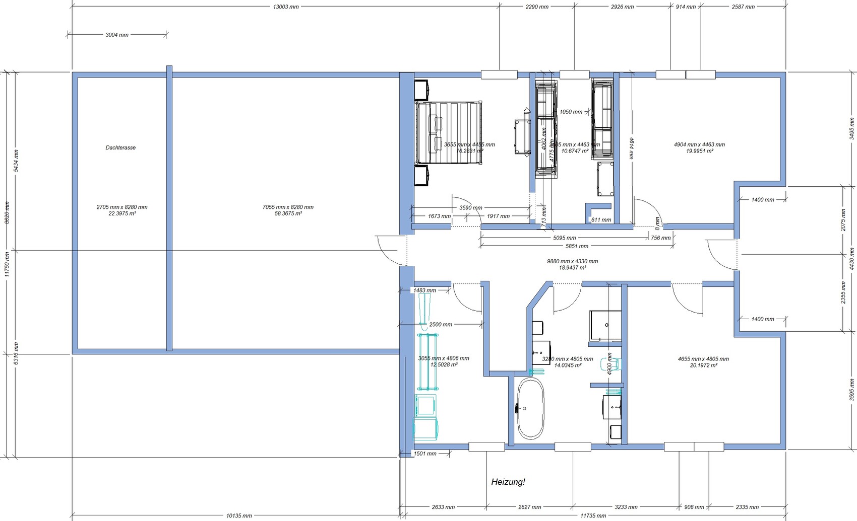
Am Obergeschoss gefällt es mir noch nicht, dass man durch den Ankleidebereich ins Schlafzimmer laufen muss.
Ich bin schon seit einem Jahr am planen und Wände verschieben, so langsam bin ich irgendwie wie "blind".
Ich würde mich sehr freuen, wenn ihr Kritik (positiv und negativ) zu dem Grundriss äußern würdet.
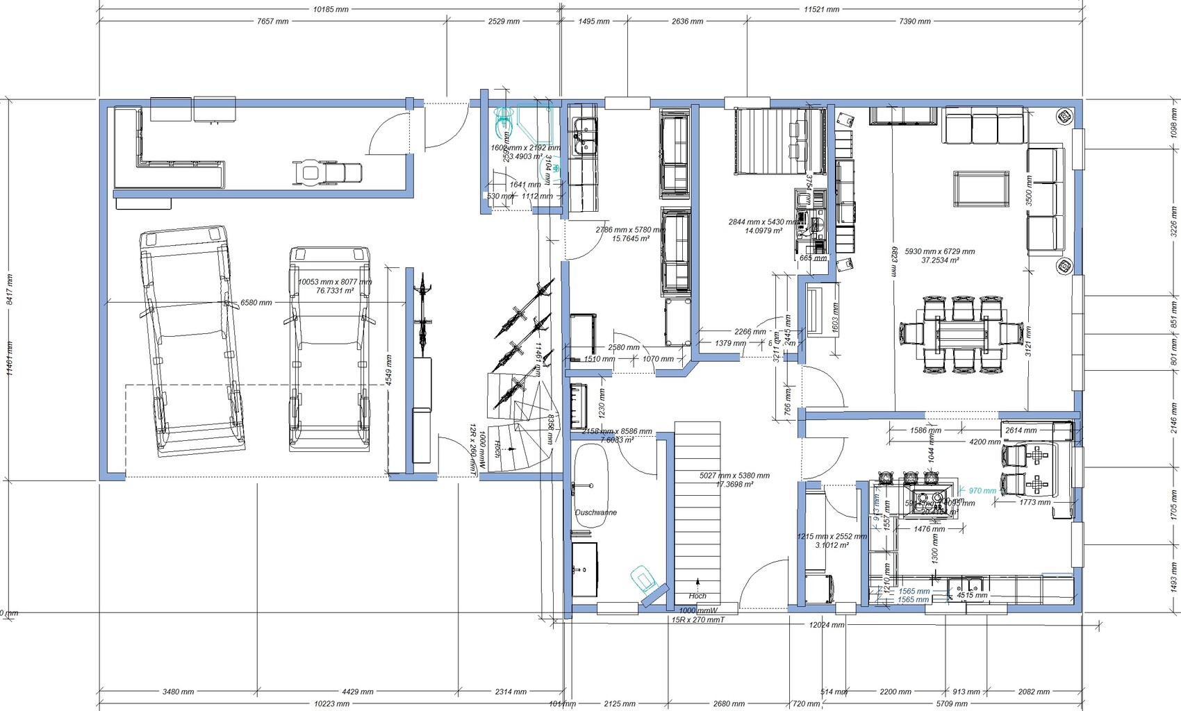
Die Räume sind sehr groß dimensioniert, wir möchten es aber gerne so haben (Kind ca. 20qm etc).
Eigentlich wollten wir voll unterkellern, was aufgrund des Grundwasserstands doch nicht gemacht wird.
Deshalb die Räume um die Garage, der große Hauswirtschaftsraum inkl. Garderobenraum im EG und der Waschraum im OG.
Die Draufsicht inkl. Grundstücksgrenze dient nur noch mal zum Visualisieren, welche Maße das Grundstück hat.
Anbei mal die Grundrisse.
Ich bedanke mich im Voraus.
Viele Grüße
Mathias



ich lese schon seit längerer Zeit mit, schaue mir andere Threads an und ebenso deren Grundrisse und Kritiken.
Meine Frau und ich sind bereits in Kontakt mit einer Baufirma und ebenfalls der Grundriss steht schon einigermaßen. Das EG stammt ebenfalls zum Teil aus meiner Feder.
Am Obergeschoss gefällt es mir noch nicht, dass man durch den Ankleidebereich ins Schlafzimmer laufen muss.
Ich bin schon seit einem Jahr am planen und Wände verschieben, so langsam bin ich irgendwie wie "blind".
Ich würde mich sehr freuen, wenn ihr Kritik (positiv und negativ) zu dem Grundriss äußern würdet.
Die Räume sind sehr groß dimensioniert, wir möchten es aber gerne so haben (Kind ca. 20qm etc).
Eigentlich wollten wir voll unterkellern, was aufgrund des Grundwasserstands doch nicht gemacht wird.
Deshalb die Räume um die Garage, der große Hauswirtschaftsraum inkl. Garderobenraum im EG und der Waschraum im OG.
Die Draufsicht inkl. Grundstücksgrenze dient nur noch mal zum Visualisieren, welche Maße das Grundstück hat.
Anbei mal die Grundrisse.
Ich bedanke mich im Voraus.
Viele Grüße
Mathias
Uff, da weiß ich ja gar nicht, wo ich anfangen soll ...
Großes Haus, aber von Großzügigkeit weit entfernt! Viele (zu) schmale Räume, die zwar insgesamt viele QM haben, leider blöd zu möblieren sind und deshalb einfach nur eng wirken.
Viele, viele schräge Wände und Türen, die einfach Platz wegnehmen, anstatt Platz zu schaffen.
Auf die Terrasse kommt man nur, wenn man sich zwischen Couch und Esstisch wirklich durchquetscht. Die Küche hat eine Insel, an der man sitzen kann, einen Meter weiter ist noch ein Esstisch. Große Küche aber nicht wirklich Arbeitsfläche oder Stauraum.
Im kleinen Bad unten quetscht man sich wieder an der (schrägen) Dusche vorbei um auf die Toilette zu kommen.
Nee, das kann man auf der Fläche wesentlich schöner und großzügiger hin bekommen.
Großes Haus, aber von Großzügigkeit weit entfernt! Viele (zu) schmale Räume, die zwar insgesamt viele QM haben, leider blöd zu möblieren sind und deshalb einfach nur eng wirken.
Viele, viele schräge Wände und Türen, die einfach Platz wegnehmen, anstatt Platz zu schaffen.
Auf die Terrasse kommt man nur, wenn man sich zwischen Couch und Esstisch wirklich durchquetscht. Die Küche hat eine Insel, an der man sitzen kann, einen Meter weiter ist noch ein Esstisch. Große Küche aber nicht wirklich Arbeitsfläche oder Stauraum.
Im kleinen Bad unten quetscht man sich wieder an der (schrägen) Dusche vorbei um auf die Toilette zu kommen.
Nee, das kann man auf der Fläche wesentlich schöner und großzügiger hin bekommen.
Wo ist denn Norden?
Und ich finde auch, dass da so einiges an Fläche an Stellen großzügig ist, wo man von der Großzügigkeit aber nichts hat. Z. B. der Hauswirtschaftsraum ..sehr verwinkelt, daher kaum richtig Staumöglichkeit. Der zusätzliche Aufgangsbereich im Anbau in das Freizeitgeschoß, die EG-Diele.
Kind 1 .. schlechte Schrankstellmöglichkeiten.
Dagegen finde ich den Zugang zum Elternschlafzimmer über den Ankleidebereich eigentlich nicht schlimm. Man kann dann auch noch mal an die Klamotten ohne noch mal an einer schlafenden zweiten Person vorbeizumüssen. Schade jedoch ist die schlechte Stellfläche wiederum für normaltiefe Kleiderschränke, wie z. B. Ikea-Pax Schränke etc.
Dann im Bad der Freiraum, dafür aber nur eine knapp 1x1 m große Dusche. Und das Waschbecken weitestmöglichst vom Fenster entfernt.
Küche sehe ich wie Jaydee.
Flur und Eingangsbereich .. da könnte für meinen Geschmack mehr Stauraum sein .. Familien mit 2 Kindern, da braucht man ja jede Menge Schuhe, Saisonjacken usw.
Dafür sieht die Treppe relativ kurz und steil aus. Welche Raum- bzw. Geschosshöhe und welches Trittmaß ist denn da vorgesehen?
Und ich finde auch, dass da so einiges an Fläche an Stellen großzügig ist, wo man von der Großzügigkeit aber nichts hat. Z. B. der Hauswirtschaftsraum ..sehr verwinkelt, daher kaum richtig Staumöglichkeit. Der zusätzliche Aufgangsbereich im Anbau in das Freizeitgeschoß, die EG-Diele.
Kind 1 .. schlechte Schrankstellmöglichkeiten.
Dagegen finde ich den Zugang zum Elternschlafzimmer über den Ankleidebereich eigentlich nicht schlimm. Man kann dann auch noch mal an die Klamotten ohne noch mal an einer schlafenden zweiten Person vorbeizumüssen. Schade jedoch ist die schlechte Stellfläche wiederum für normaltiefe Kleiderschränke, wie z. B. Ikea-Pax Schränke etc.
Dann im Bad der Freiraum, dafür aber nur eine knapp 1x1 m große Dusche. Und das Waschbecken weitestmöglichst vom Fenster entfernt.
Küche sehe ich wie Jaydee.
Flur und Eingangsbereich .. da könnte für meinen Geschmack mehr Stauraum sein .. Familien mit 2 Kindern, da braucht man ja jede Menge Schuhe, Saisonjacken usw.
Dafür sieht die Treppe relativ kurz und steil aus. Welche Raum- bzw. Geschosshöhe und welches Trittmaß ist denn da vorgesehen?
Oje, ich sehe das wir Jaydee.
Viel zu viel Verkehrsfläche, Räume, die nicht möbliert werden können, enge Küche und Wohn- und Esszimmer (warum zwei Tische plus Tresen?), so steht der Fernseher, oben zu wenig Fensterfläche, unten wie viele Türen nach draußen, Verbindung Haus und Garage ...
So viel Platz lässt sich m.E. Besser Einsetzen.
Viel zu viel Verkehrsfläche, Räume, die nicht möbliert werden können, enge Küche und Wohn- und Esszimmer (warum zwei Tische plus Tresen?), so steht der Fernseher, oben zu wenig Fensterfläche, unten wie viele Türen nach draußen, Verbindung Haus und Garage ...
So viel Platz lässt sich m.E. Besser Einsetzen.
S
Slammer090914.12.14 12:36Hallo zusammen,
erst mal danke. Das sind ja einige Kommentare. Ich hoffe ich komme durch eure Hilfe zu wesentlichen Verbesserungen.
Einmal meine Gedanken, wie ich es eingeschätzt habe und dadurch so geplant wurde:
Aus der Garage kommen wir nach Hause und gehen wir in den großen Hauswirtschaftsraum/Garderobenraum. Darin befinden sich Jacken- und Schuhschränke. Das ist also unser Zwischenraum, wo die dreckigen Sachen bleiben und danach gehts in Haus.Im Flur nur Gästegarderobe.
Flur mit den Schrägen stelle ich mir optisch nicht schlecht vor, sonst ist es natürlich eher von Nachteil.
Küche muss geschlossen sein, es soll aber da, wo jetzt der Kamin ist, eine doppelte Schiebetür rein. Esseecke in Küche soll sein zum Frühstücken etc, ohne an den großen Esstisch zu müssen.
Die Theke ist nur eine "Spielerei", da ich versucht habe, eine Kochinsel (mit Blick ins Wohnzimmer) zu erzeugen. Ob da eine Theke dran ist oder nicht, spielt eine untergeordnete Rolle.
Die Schrankfläche der Küchenschränke sollte doch aber reichen, oder? Momentan haben wir ein L mit 3,5x4,5m plus Oberschränke.
Was mich richtig stört, ist das doch relativ kleine Wohnzimmer. Aber ich weiß nichts mit mir anzufangen, wie ich es besser hinbekommen soll.
Eingang an der Ecke und Treppe direkt nach oben fand ich gut, da kann man eine Wand einziehen und so EG vom OG abtrennen.
Das Gästezimmer ist erst mal noch Arbeitsraum. Später soll das potenzielles Schlafzimmer werden.Dort passt dann das Doppelbett in die obere Ecke und der Schrank an eine der Wände.
Wie kann ich unnötige Verkehrswege vermeiden, ohne auf meine "Wünsche" zu verzichten. Bad EG finde ich auch etwas klein.
Mir würde es sicherlich helfen, wenn ihr nur kurze Anregungen gebt, ich würde mich dann dransetzen, diese im Programm zu planen.
@Yvonne: nein, nicht ganz. Um ehrlich zu sein, kam unsere Hochzeit dazwischen, danach leider schwere Krankheit der Schwiegermutter...also nicht hauptsächlich am planen, sonder immer mal wieder in kurzen Anflügen. Und Ansätze habe ich gefühlt schon 5-6 unterschiedliche.
Norden ist die Garage, die Terrasse genau im Süden.
Danke an alle und Grüße
Mathias
erst mal danke. Das sind ja einige Kommentare. Ich hoffe ich komme durch eure Hilfe zu wesentlichen Verbesserungen.
Einmal meine Gedanken, wie ich es eingeschätzt habe und dadurch so geplant wurde:
Aus der Garage kommen wir nach Hause und gehen wir in den großen Hauswirtschaftsraum/Garderobenraum. Darin befinden sich Jacken- und Schuhschränke. Das ist also unser Zwischenraum, wo die dreckigen Sachen bleiben und danach gehts in Haus.Im Flur nur Gästegarderobe.
Flur mit den Schrägen stelle ich mir optisch nicht schlecht vor, sonst ist es natürlich eher von Nachteil.
Küche muss geschlossen sein, es soll aber da, wo jetzt der Kamin ist, eine doppelte Schiebetür rein. Esseecke in Küche soll sein zum Frühstücken etc, ohne an den großen Esstisch zu müssen.
Die Theke ist nur eine "Spielerei", da ich versucht habe, eine Kochinsel (mit Blick ins Wohnzimmer) zu erzeugen. Ob da eine Theke dran ist oder nicht, spielt eine untergeordnete Rolle.
Die Schrankfläche der Küchenschränke sollte doch aber reichen, oder? Momentan haben wir ein L mit 3,5x4,5m plus Oberschränke.
Was mich richtig stört, ist das doch relativ kleine Wohnzimmer. Aber ich weiß nichts mit mir anzufangen, wie ich es besser hinbekommen soll.
Eingang an der Ecke und Treppe direkt nach oben fand ich gut, da kann man eine Wand einziehen und so EG vom OG abtrennen.
Das Gästezimmer ist erst mal noch Arbeitsraum. Später soll das potenzielles Schlafzimmer werden.Dort passt dann das Doppelbett in die obere Ecke und der Schrank an eine der Wände.
Wie kann ich unnötige Verkehrswege vermeiden, ohne auf meine "Wünsche" zu verzichten. Bad EG finde ich auch etwas klein.
Mir würde es sicherlich helfen, wenn ihr nur kurze Anregungen gebt, ich würde mich dann dransetzen, diese im Programm zu planen.
@Yvonne: nein, nicht ganz. Um ehrlich zu sein, kam unsere Hochzeit dazwischen, danach leider schwere Krankheit der Schwiegermutter...also nicht hauptsächlich am planen, sonder immer mal wieder in kurzen Anflügen. Und Ansätze habe ich gefühlt schon 5-6 unterschiedliche.
Norden ist die Garage, die Terrasse genau im Süden.
Danke an alle und Grüße
Mathias
Ähnliche Themen