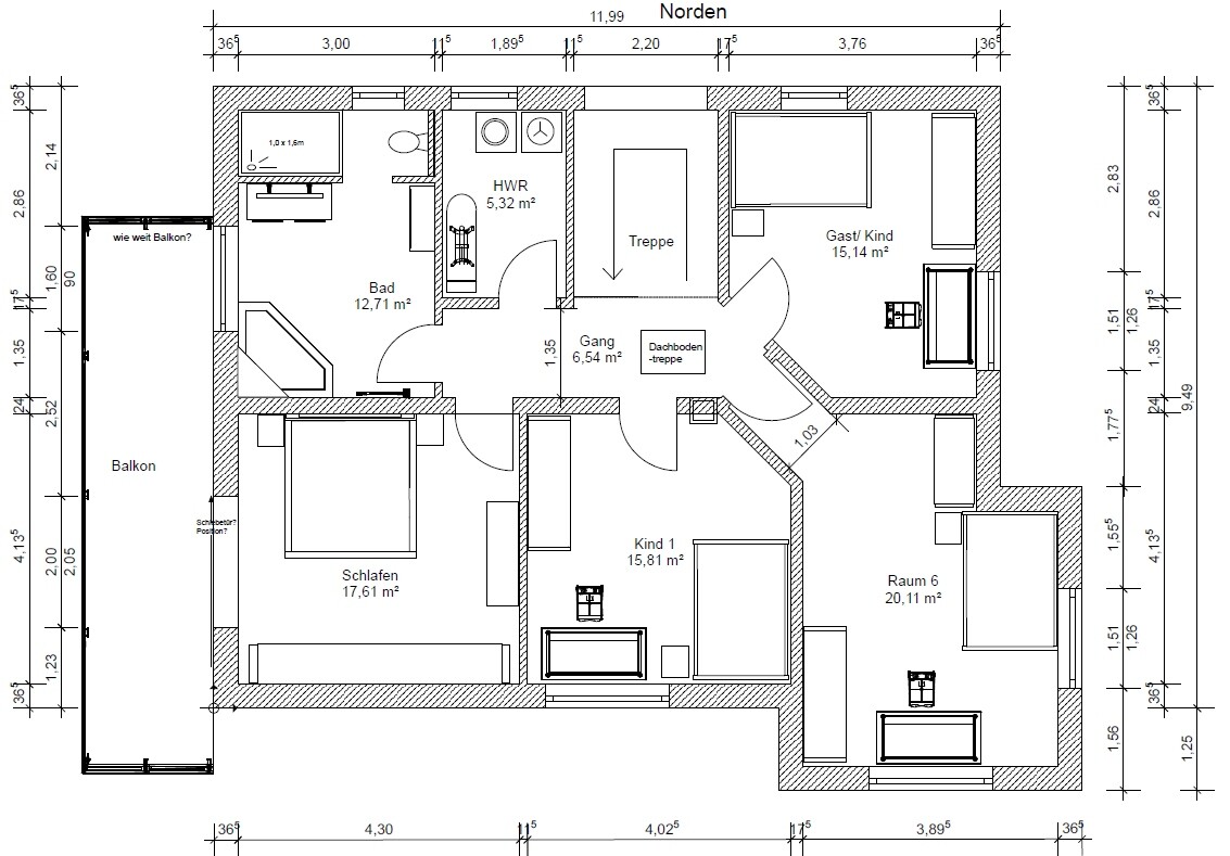
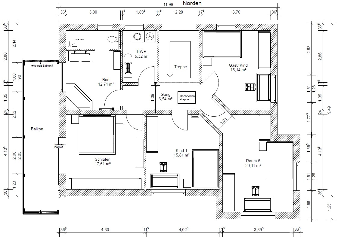
In Kürze stelle ich fest, dass das WZ 12 qm, die Treppensteigung zu hoch und das OG vermurkst ist.
Stell doch mal bitte den Plan vom GU ein. Wenn er diese Punkte gezeichnet hat, Obacht!
Das Grundstück scheint sehr schön gelegen
Edit: die Küche mit 3 Türen, die die Zeilen in 4 Teile unterbrechen, finde ich auch etwas zerstückelt. Der Zugang zum Allraum an sich wird durch die Insel ausgebremst.
Stell doch mal bitte den Plan vom GU ein. Wenn er diese Punkte gezeichnet hat, Obacht!
Das Grundstück scheint sehr schön gelegen
Edit: die Küche mit 3 Türen, die die Zeilen in 4 Teile unterbrechen, finde ich auch etwas zerstückelt. Der Zugang zum Allraum an sich wird durch die Insel ausgebremst.
Dass du keine Diskussion über den Sinn oder Unsinn einer Speisekammer willst, verstehe ich. Allerdings machst du den Eindruck als würdest du dir von der Speisekammer im neuen Haus die gleichen Vorteile erwarten, wie die deiner Jetzigen. Und das ist einfach durch die moderne Bauweise nicht mehr gegeben.
Als Rümpelkammer ok, aber zum Lagern von Speisen wird sie ihren ursprünglichen Zweck schlicht und ergreifend nicht erfüllen können.
Als Rümpelkammer ok, aber zum Lagern von Speisen wird sie ihren ursprünglichen Zweck schlicht und ergreifend nicht erfüllen können.
Ein kleines Update von mir:
Nachdem wir nun beim Küchenbauer und Badplaner waren, habe ich nun den Grundriss entsprechend aktualisiert. Vor allem der Eingangsbereich in die Küche sollte nun stimmiger sein.
Treppe müsste nun auch passen.
-Aktuell überlegen wir noch, ob wir auf die Terrassentür im Wohnbereich verzichten, da man ohnehin über die danebenliegende große Schiebetür nach draußen kann.
-Von den Dachfenster sind wir mittlerweile auch etwas abgekommen und verzichten vertml. darauf (DEcke nun komplett über das OG)
-Kaminofen ist noch nicht im Detail geplant, da haben wir demnächst einen Termin
Würd mich über ein paar Meinungen freuen

Nachdem wir nun beim Küchenbauer und Badplaner waren, habe ich nun den Grundriss entsprechend aktualisiert. Vor allem der Eingangsbereich in die Küche sollte nun stimmiger sein.
Treppe müsste nun auch passen.
-Aktuell überlegen wir noch, ob wir auf die Terrassentür im Wohnbereich verzichten, da man ohnehin über die danebenliegende große Schiebetür nach draußen kann.
-Von den Dachfenster sind wir mittlerweile auch etwas abgekommen und verzichten vertml. darauf (DEcke nun komplett über das OG)
-Kaminofen ist noch nicht im Detail geplant, da haben wir demnächst einen Termin
Würd mich über ein paar Meinungen freuen
Wo kommt der E-Schrank mit dieser 2 Meter-Fallfläche davor hin? Der muss, falls der Elektriker einen Schlag bekommt, einen Sicherheitsabstand davor von ca. 2 Metern (oder waren es 1,80?) haben.
Ansonsten noch der Hinweis: es kann irgendwann störend sein, nur durch die Küche das WZ zu betreten. Ich persönlich habe nichts dagegen.
Und oben ist es immer noch ne Katastrophe. Bitte frag nicht, warum oder wie man das ändern kann. Am besten alles neu da oben
Ansonsten noch der Hinweis: es kann irgendwann störend sein, nur durch die Küche das WZ zu betreten. Ich persönlich habe nichts dagegen.
Und oben ist es immer noch ne Katastrophe. Bitte frag nicht, warum oder wie man das ändern kann. Am besten alles neu da oben
Ähnliche Themen