E
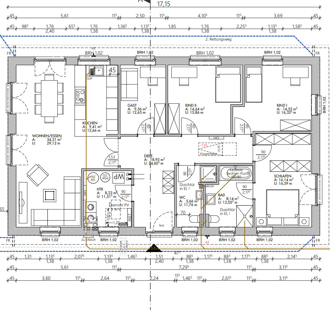
EinmalimLeben24.02.23 12:37Ich lade mal unseren Plan mit Möbeln hoch. Das erklärt es dann vielleicht besser. Wir wollten das Bett schon gerne mittig lassen. Das gefällt uns einfach besser als an einer Wand.
Die Dusche an der Wand stört und beide grundsätzlich auch nicht, wir kennen das beide aus den USA und ein bisschen Wasserrauschen empfinden wir als beruhigend oder sollte das noch andere Gründe haben?

Die Dusche an der Wand stört und beide grundsätzlich auch nicht, wir kennen das beide aus den USA und ein bisschen Wasserrauschen empfinden wir als beruhigend oder sollte das noch andere Gründe haben?
J
Jurassic13524.02.23 12:55kbt09 schrieb:
Das ist doch aber in den meisten Schlafzimmern ... viel schlimmer finde ich eine Tür direkt neben dem Kopf 😉Stimmt, oft ist die Tür an der gegenüberliegenden Wand zum Kopfteil, aber direkt gegenüber dem Fußende? Meist ist sie doch eher näher an der nächsten Wand und nicht so mittig.
Direkt neben dem Kopf ist aber auch schlimm, sehe ich auch so.
Am besten ist es laut Feng Shui, nicht im Durchgang zu schlafen, also nicht dort, wo die Energie fließt ("high traffic areas", nahe Tür, Fenster...).
Lässt sich natürlich nicht bei jedem Grundriss perfekt umsetzen, aber wenn man schon baut und das beeinflussen kann, würde ich es machen.
Was mir aber auch aufgefallen ist:
Dadurch, dass das große Bad nur vom Schlafzimmer zu erreichen ist, wird es später nicht möglich sein, mal die Zimmer zu tauschen. Wenn z.B. ein Kind wegen irgendwas mal ein größeres Zimmer braucht, oder ein Kind zieht aus und man möchte genau das Zimmer anders nutzen und selbst in einem der kleinen Zimmer schlafen, oder oder. Die persönlichen Bedürfnisse ändern sich ja mit der Zeit. Da beraubt man sich der Flexibilität. Das kann man machen, wollte es aber angemerkt haben.
E
EinmalimLeben24.02.23 13:04Wir haben 180 cm Matratzenbreite, also bleibt ein wenig mehr Platz. Wir wollten gerne Platz für Schränke, das Bett an sich ist halt zum schlafen und rein und raus kommen wir so schon.
Den Einwand mit dem Zimmertausch finde ich gut. Andererseits kann ich mir auch vorstellen einem Kind, wenn nötig das Zimmer zu geben und selbst das andere Bad zu nutzen. Ich glaube, wir sind da nicht so festgefahren, aber guter Einwand!
Den Einwand mit dem Zimmertausch finde ich gut. Andererseits kann ich mir auch vorstellen einem Kind, wenn nötig das Zimmer zu geben und selbst das andere Bad zu nutzen. Ich glaube, wir sind da nicht so festgefahren, aber guter Einwand!
H
hanghaus202324.02.23 14:09Steffi33 schrieb:
Direkt unter unserem Bett lief schon die Leitung zu unserem Heizungkörper entlang.Hihi, auch eine Form von Wasserader ;-)https://www.instagram.com/11antgmxde/
https://www.linkedin.com/company/bauen-jetzt/
Ähnliche Themen