Hallo zusammen,
wir planen gerade unser Einfamilienhaus und „hängen“ aktuell noch an ein paar Punkten (siehe unten). Würde mich freuen falls der eine oder andere uns hier neue Impulse geben könnte . Falls ihr mit eurem geschultem Auge darüber hinaus weitere Verbesserungsideen für Grundriss / Außenbereich seht - gerne her damit.
Bitte beachtet, dass ich gegenüber der ursprünglichen Architektenplanung schon ein paar Änderungen eingezeichnet (ja, ich weiß ist nicht besonders schön geworden) und für die geänderten Bereiche die original Zeichnung und die von mir erstellte Zeichnung angehängt habe.
Danke & Viel Glück
J.
Bebauungsplan/Einschränkungen
Größe des Grundstücks: 635qm
Hang: Nein
Grundflächenzahl: 0,4
Geschossflächenzahl: Nicht im Bebauungsplan gefunden
Baufenster, Baulinie und -grenze: Vorhanden
Randbebauung: Möglich mit Garage
Anzahl Stellplatz: 1 (in den Plänen noch 2)
Geschossigkeit: Indirekt eingeschränkt durch max. First- (8,4m) und Traufhöhe (5,4m) über Straßenniveau
Dachform: Satteldach vorgeschrieben
Stilrichtung: Keine Vorgabe
Ausrichtung: First ost -west
Maximale Höhen/Begrenzungen: Max. First- (8,4m) und Traufhöhe (5,4m) über Straßenniveau
Anforderungen der Bauherren
Stilrichtung, Dachform, Gebäudetyp: Klinkerhaus; Satteldach mit flachen Dachziegeln;
Keller, Geschosse: Kein Keller; 2 Vollgeschosse, Spitzboden
Anzahl der Personen, Alter: 2 Erwachsene, 2 Kinder (6 + 8)
Raumbedarf im EG, OG:
Büro: Familiennutzung oder Homeoffice? Ja
Schlafgäste pro Jahr: 4-5 mal pro Jahr
offene oder geschlossene Architektur: Offener Ess-Wohnbereich + Küche, Flur geschlossen
konservativ oder moderne Bauweise: Modern
offene Küche, Kochinsel: Ja
Anzahl Essplätze: 8
Kamin: Nein
Musik/Stereowand: Stereo an der Kopfseite des Wohnzimmers
Balkon, Dachterrasse: Nein
Garage, Carport: Carport
Nutzgarten, Treibhaus: Nein
weitere Wünsche/Besonderheiten/Tagesablauf, gern auch Begründungen, warum dieses oder das nicht sein soll
Hausentwurf
Von wem stammt die Planung: Architekt des Bauunternehmers nach unseren Vorgaben
Was gefällt? Warum?
Großer Wohn-Essbereich mit Sitzfenster mit Blick ins Naturschutzgebiet und offener Küche
Küche mit Zugang zur Terrasse / Garten
Arbeitszimmer oben (als Hauswirtschaftsraum bezeichnet) mit Blick ins Naturschutzgebiet
Vergleichsweise großzügig gehalten (Größe Kinderzimmer, Diele / Flure, Bad oben)
Moderne Klinker Optik
Gauben
Folgende Dinge sollen am aktuellen Entwurf werden wir noch ändern:
Folgende Fragen beschäftigen uns derzeit








wir planen gerade unser Einfamilienhaus und „hängen“ aktuell noch an ein paar Punkten (siehe unten). Würde mich freuen falls der eine oder andere uns hier neue Impulse geben könnte . Falls ihr mit eurem geschultem Auge darüber hinaus weitere Verbesserungsideen für Grundriss / Außenbereich seht - gerne her damit.
Bitte beachtet, dass ich gegenüber der ursprünglichen Architektenplanung schon ein paar Änderungen eingezeichnet (ja, ich weiß ist nicht besonders schön geworden) und für die geänderten Bereiche die original Zeichnung und die von mir erstellte Zeichnung angehängt habe.
Danke & Viel Glück
J.
Bebauungsplan/Einschränkungen
Größe des Grundstücks: 635qm
Hang: Nein
Grundflächenzahl: 0,4
Geschossflächenzahl: Nicht im Bebauungsplan gefunden
Baufenster, Baulinie und -grenze: Vorhanden
Randbebauung: Möglich mit Garage
Anzahl Stellplatz: 1 (in den Plänen noch 2)
Geschossigkeit: Indirekt eingeschränkt durch max. First- (8,4m) und Traufhöhe (5,4m) über Straßenniveau
Dachform: Satteldach vorgeschrieben
Stilrichtung: Keine Vorgabe
Ausrichtung: First ost -west
Maximale Höhen/Begrenzungen: Max. First- (8,4m) und Traufhöhe (5,4m) über Straßenniveau
Anforderungen der Bauherren
Stilrichtung, Dachform, Gebäudetyp: Klinkerhaus; Satteldach mit flachen Dachziegeln;
Keller, Geschosse: Kein Keller; 2 Vollgeschosse, Spitzboden
Anzahl der Personen, Alter: 2 Erwachsene, 2 Kinder (6 + 8)
Raumbedarf im EG, OG:
- EG, so geplant, dass man ggf im Alter zu zweit unten leben könnte
- Flur: Zwei Nischen für schuhschrank und Garderobe
- Gästezimmer / Büro: Ein Elternteil 2-3 / Woche im Homeoffice; der andere Elternteil 1x pro Woche
- Großer Wohn-Essbereich mit Blick ins Naturschutzgebiet mit offener Küche (Nische unter der Treppe für Vorräte)
- Badezimmer mit Dusche und WC
- OG:
- Büro für Home-Office (Bezeichnung Hauswirtschaftsraum), falls beide Elternteile von daheim aus arbeiten
- Zwei Kinderzimmer
- Elternschlafzimmer
- Größeres (Haupt)Badezimmer
- Kleiner Abstellraum für Wäsche, Putzmittel, Staubsauger etc
Büro: Familiennutzung oder Homeoffice? Ja
Schlafgäste pro Jahr: 4-5 mal pro Jahr
offene oder geschlossene Architektur: Offener Ess-Wohnbereich + Küche, Flur geschlossen
konservativ oder moderne Bauweise: Modern
offene Küche, Kochinsel: Ja
Anzahl Essplätze: 8
Kamin: Nein
Musik/Stereowand: Stereo an der Kopfseite des Wohnzimmers
Balkon, Dachterrasse: Nein
Garage, Carport: Carport
Nutzgarten, Treibhaus: Nein
weitere Wünsche/Besonderheiten/Tagesablauf, gern auch Begründungen, warum dieses oder das nicht sein soll
Hausentwurf
Von wem stammt die Planung: Architekt des Bauunternehmers nach unseren Vorgaben
Was gefällt? Warum?
Großer Wohn-Essbereich mit Sitzfenster mit Blick ins Naturschutzgebiet und offener Küche
Küche mit Zugang zur Terrasse / Garten
Arbeitszimmer oben (als Hauswirtschaftsraum bezeichnet) mit Blick ins Naturschutzgebiet
Vergleichsweise großzügig gehalten (Größe Kinderzimmer, Diele / Flure, Bad oben)
Moderne Klinker Optik
Gauben
Folgende Dinge sollen am aktuellen Entwurf werden wir noch ändern:
- Die beiden südlichen Fenster auf beiden Giebelseiten nicht Bodentief für flexiblere Nutzungsmöglichkeit der Räume
- EG: Bereich zwischen Gästezimmer / Flur / Wohnzimmer -> Siehe händisch Zeichnung
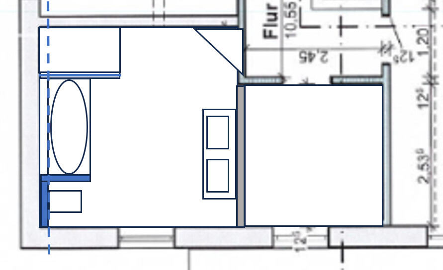
- OG: Bad -> Abstellkammer (u.a. für Waschmaschine Trockner) verlegt damit diese etwas größer wird und vom Bad getrennt ist -> Siehe händische Zeichnung:
- Begehbare Dusche mit feststehender Glasscheibe
- Toilette mit halbhoher Trockenbauwand von Dusche getrennt
- Halb freistehende Badewanne
- Wärmepumpe hinter den Geräteschuppen versetzen
- 2. Stellplatz entfällt
Folgende Fragen beschäftigen uns derzeit
- Sollen wir den Flur im OG zum Dach hin öffnen und ein schmales Lichtband ins Dach auf der Nordseite einziehen (max. 50cm Höhe möglich). Südseite geht nicht aufgrund von Photovoltaikanlage.
- Vorteile:
- Tageslicht im Flur
- Großzügigkeit (Optik)
- Nachteil:
- Sonderlösung / zusätzliche Kosten
- Unfunktional: Sommerliche Wärme?, Stellfläche Spitzboden geht verloren, streichen / Fenster sauber machen umständlich …
- Alternative wäre ein Fensterelement über der Tür zum Abstellraum
- Flur unten: Wir mussten bei der Treppe ganz schön quetschen. Wie „wirkt“ der Treppenaufgang. Wir tendieren das Fensterelement zum Wohnzimmer doch wegzulassen, da der Flur wahrscheinlich ausreichend hell ist, wir das Wohnzimmer dann noch flexibler gestalten können (möbel / Bilder) und der Treppenaufgang dann optisch besser wirkt. Weitere Veränderungsideen?
- Bad oben: Gibt es nach der Änderung (siehe händische Zeichnung) weitere Optimierungsmöglichkeiten – z.B. Idee das Fenster in der Abstellkammer leicht (10-20cm) nach Süden versetzen, damit die Nische der Badewanne noch etwas tiefer wird.
- Gewässerrandstreifen: Das Grundstück wird bis zum Gewässerrandstreifen bis Straßenniveau aufgeschüttet. Der Gewässerrandstreifen darf nicht aufgeschüttet werden. Wir würden hier gerne eine 1m hohe Natursteinmauer setzen. Blöderweise geht der Gewässerstreifen bis ans Baufenster. Habt ihr Ideen wie man dies lösen kann?
- Geräteschuppen hinter dem Carport wie Carport mit Stahl + Holzverkleidung und gepflastertem Boden oder massiv gemauert + verklinkert mit Fundament. Vor- und Nachteile? Optische Wirkung?
- Breite des Wegs von der Zufahrt zum Hauseingangs: Der Weg vom Carport / Einfahrt zum Hauseingang ist für uns aktuell unnötig breit. Was wäre eine großzügige / sinnvolle Breite?
Dringende Empfehlung ... alle Grundrisszeichnungen immer in derselben Ausrichtung einstellen. Das im Eingangsbeitrag ist Kuddelmuddel.
Bad ... die händischen Änderungen, wo ist denn da die Dachschräge verplant? Die Dusche wäre doch dann unterhalb der Dachschräge ... oder? Also Murks.
Bad ... die händischen Änderungen, wo ist denn da die Dachschräge verplant? Die Dusche wäre doch dann unterhalb der Dachschräge ... oder? Also Murks.
H
hanghaus202313.03.24 11:20kbt09 schrieb:
Dringende Empfehlung ... alle Grundrisszeichnungen immer in derselben Ausrichtung einstellen. Das im Eingangsbeitrag ist Kuddelmuddel.
Bad ... die händischen Änderungen, wo ist denn da die Dachschräge verplant? Die Dusche wäre doch dann unterhalb der Dachschräge ... oder? Also Murks.Das mit der Ausrichtung geht leider nicht mehr zu ändern.
So richtig Murks ist das nicht. Die 2m Linie ist gleich vor der Wand ca. 20cm? Schön ist aber Anders.
an sich ist die Idee die Abstelle aus dem Bad zu bekommen schon eine Überlegung wert.
H
hanghaus202313.03.24 12:00H
hanghaus202313.03.24 12:21Ähnliche Themen