Grundleitungsplan - Abwasserabführung und Höhenplanung

4,50 Stern(e) 4 Votes
Zuletzt aktualisiert 07.10.2025
Sie befinden sich auf der Seite 6 der Diskussion zum Thema: Grundleitungsplan - Abwasserabführung und Höhenplanung
>> Zum 1. Beitrag <<

Tolentino

Tolentino

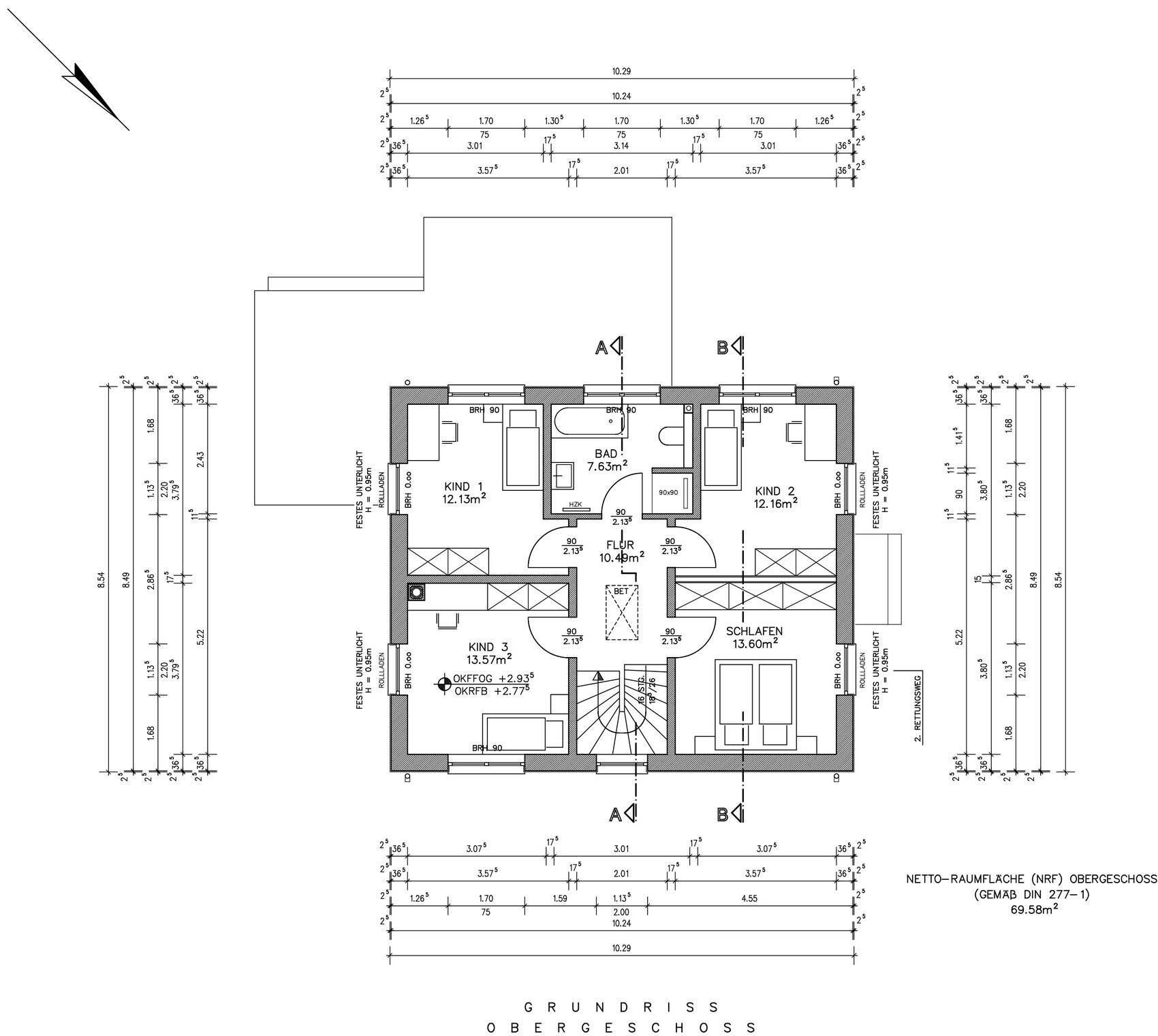
Ja, anbei die Grundrisse des Nachbarn. Die Einzeichnung auf dem Lageplan oben sollte auch stimmen. Achtung gedrehte Himmelsrichtung (Fragt mich nicht warum der Architekt das hier andersrum gemacht hat, war der gleiche).

Grundriss Obergeschoss: drei Kinderzimmer, Schlafzimmer, Bad, Flur, Treppenaufgang.


Grundriss Erdgeschoss: Wohnzimmer mit Essecke, Küche, Diele, Bad, HWR, Terrasse.
 
Nida35a

Nida35a

wenn 2 getrennte Abwasserleitungen, kann der Nachbar doch nicht über dein Grundstück zum Schacht verlegen, da ist kein GFL, und wenn seine Schwiegermutter den Wischlappen im Klo versenkt hilfst du ihm noch deinen Garten aufzugraben
 
Tolentino

Tolentino

stimmt. Es ist zwar im KV eine Stichleitung zum Abwasserschacht zugesichert, aber die ist m.W. nicht im Grundbuch, auf jedenfall nicht als Baulast, eingetragen.
spricht ja fast dafür doch einen Schacht ins GFL zu legen... obwohl, das könnte man auch später noch machen...
 
Tolentino

Tolentino

So, der Bauleiter stimmt meiner Variante zu. Für Abwasser ist das mindestens genauso gut, bzw. sogar besser.
Er macht sich keine Sorgen bzgl. Höhenanschluss. Wir können selbst unter der Zufahrt auf 1m Tiefe bleiben, solange nur gut verdichtet wird.
Er meinte außerdem, bis zu 75m Leitungslänge wäre noch ok, mit unseren max. 50m sind wir also gut dabei.
Er glaubt, man könne das auch schon in Eigenleistung machen, seine Empfehlung wäre aber das durch einen Tiefbauer machen zu lassen.
Ich hole jetzt Angebote ein und dann entscheide ich mit meinem Nachbarn, wie wir vorgehen.
An sich haben wir aber auch noch ein bisschen Zeit für den Medienanschluss.
 
Zuletzt aktualisiert 07.10.2025
Im Forum Bauplanung gibt es 5061 Themen mit insgesamt 100646 Beiträgen


Ähnliche Themen zu Grundleitungsplan - Abwasserabführung und Höhenplanung
Nr.ErgebnisBeiträge
1Mögliches Baugrundstück - Schacht auf Grundstück 28
2Abdeckung Schacht 1.5 x 1.5 betonieren wie Aufbau 25
3Wasser im Schacht der Hebeanlage 19

Oben