geschuldeter Schallschutz Reihenhaus Neubau

4,70 Stern(e) 6 Votes
Zuletzt aktualisiert 19.11.2025
Sie befinden sich auf der Seite 7 der Diskussion zum Thema: geschuldeter Schallschutz Reihenhaus Neubau
>> Zum 1. Beitrag <<

P

Pacmansh

So, wir sind einen kleinen Schritt weiter, dass Schallschutzgutachten liegt nun vor. Folgender Sachverhalt ist für mich nach Abstimmung mit dem Anwalt, Baugutachter und Studium der aktuellen Rechtsprechung klar und unstrittig:

1) Obwohl es ein WEG-geteiltes Reihenhaus bzw. Wohnung ist, sind die schalltechnisch die Anforderungen an ein Reihen-/Doppelhaus zu erfüllen.
2) Es sind die Anfordernungen an einen erhöhten Schallschutz zu erfüllen. Als Ergänzung: Selbst die Vertragsklausel "Die Firma ### GmbH errichtet die Baumaßnahme nach der Schallschutznorm 4109. Ein erhöhter Schallschutz wird ausdrücklich nicht vereinbart" ist unwirksam und folglich war in diesem Fall ein erhöhter Schallschutz geschuldet.
3) Welcher Schallschutz nun exakt geschuldet ist, muss anhand des Vertrags festgelegt werden. Dies wären dann typischerweise das Beiblatt 2 der DIN 4109 oder die Schallschutzstufen II oder auch III der VDI 4100 oder DEGA-Empfehlung 103 Stufe A, also irgendwas >= 67dB (Luftschall) und <=35-39 dB (Trittschall)

Außerdem hat mir der GU mitgeteilt (darf er bestimmt nicht, aber das Verhältnis ist gut zwischen uns), dass er dem Bauträger vertraglich das Mindesmaß gem. DIN 4109 schuldet und gem. Schallschutzgutachten durch die Vorsatzschalen erfüllt. Er hat mir auch bestätigt, dass ein erhöhter Schallschutz damit nicht erfüllt ist. Dies betrifft aber, womit er auch richtig liegt, nur das Verhältnis zwischen mir und dem Bauträger. Ein gemeinsamer Termin mit Bauträger, GU und uns ist für den 25.04. terminiert.

Mich würde auch mal der Schallschutznachweis interessieren.
Wenn der vorliegt muss du diesen unbedingt hier reinstellen (Adressen und Namen natürlich schwärzen).
Den Nachweis habe ich in geschwärzter Form angehängt. Auf Seite 11 ist das Bild falsch, davon bitte nicht irritieren lassen. Sollten weitere Informationen gewünscht sein, bitte Bescheid geben. Das Gutachten ist noch etwas umfangreicher, ich wollte nur nicht direkt 20 Seiten hochladen. Ich freue mich auf eure Einschätzungen, ich selbst muss mich da erstmal ein bisschen durchkämpfen.
Grundriss W05: Küche/Wohnen mit einseitiger Vorsatzschale und Maßen

Schematische 3D-Darstellung zweier Räume mit farbigen Volumenflächen (blau/lila, gelb).

Grundriss eines Flurs mit W06-Vorsatzschale (einseitig) und Maßangaben.

3D-Raum-Schema: Flur mit angrenzenden Räumen, Maße und Trennbauteile

Technische Grundrisszeichnung mit Treppenflur, Maßen und Schallschutz WE14/WE15.

3D-Schema der Raumsituation: Treppenräume WE 14/WE 15 mit Abmessungen.
 
P

Pacmansh

Ich habe mal versucht mich etwas einzulesen. Es sind einige Fehler hinsichtlich der Raumgrößen und -volumen drin. Ich denke aber nicht, dass das eine große Relevanz hat. Drei Fragen haben sich zusätzlich ergeben, vielleicht mag jemand eine Einschätzung abgeben:

1) Es scheint für mich so zu sein, dass an der Wand zwischen unserem Wohn-Essbereich und dem Wohn-Essbereich + Flur/Treppe ausschließlich die Trennwand zwischen den beiden Wohnbereichen betrachtet wird und der Treppenbereich vollkommen außer Acht gelassen wird (ersten beiden jpg vom Gutachten). Nach meiner Einschätzung geht doch von der Trennwand zwischen dem Flur-/Treppenbereich des Mittelhauses zu unserer Wohnküche ein deutlich größeres Schallrisiko aus. Die Fläche des Trennbauteils ist auch mit 12,12 m² angegeben, die Vorsatzschale und die Trennwand zum Nachbarn sind aber 14,86 m² (Habe noch einen Ausschnitt angehängt).
2) Die Werte bei den letzten beiden Seiten (Rw=997.7dB und Lnw=3.0dB) sind ja absurd. Sind die für den Fall irrelevant und wurden so gelassen oder hat einfach jemand seinen Fehler nicht gemerkt?
3) Ebenfalls bei den beiden letzten Seiten wo die Treppen beachtet werden, letztlich sind aber alle drei Fälle betroffen: Ist im Treppenbereich nur die Raumhöhe des jeweiligen Geschosses zu beachten oder nicht vielmehr die gesamte Höhe des Treppenbereichs? Oder hat das vielleicht gar keine Auswirkung?
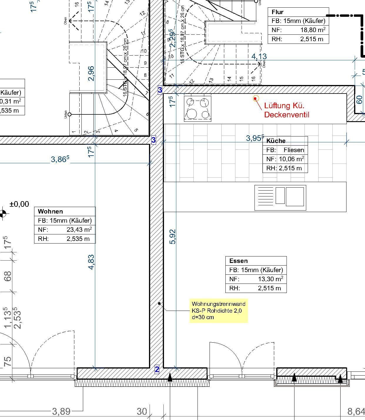
Grundriss eines Wohnraums mit Küche, Essen, Wohnen und Flur; Lüftung Deckenventil.
 
P

Pacmansh

So, wir hatten nun den potenziellen Klärungstermin mit Bauträger, GU und uns. Wer war nicht da: der Bauträger. Somit war der Termin auch schon wieder obsolet. Wir sind immerhin mal ins Nachbarhaus gegenagen. Sind die Treppen runtergepoltert und haben etwas rumgeschrien um mal einen ersten Eindruck zu bekommen. Es war etwas besser als befürchtet aber natürlich nicht so wie gewünscht. Nach den Erstgesprächen mit dem Anwalt und Schallsachverständigen, dem Studium unterschiedlicher Planungshandbücher, Architektenblatt, Fachbeiträgen und Urteilen bin ich mir sicher, dass ein erhöhter Schallschutz geschuldet ist, ob nun nach DIN 4109 Beiblatt 2, VDI 4100 SSt II oder III, DEGA Empfehlung oder was auch immer, darüber ließe sich sicherlich noch streiten. Das wird ggf. nochmal wichtig, Ist aber zunächst sekundär, da nichts davon erfüllt wird.

Ob der Bauträger nun einsieht, dass die vertraglichen Anforderungen nicht erfüllt sind und eine Lösung zusammen mit unseren beiden Nachbarn gesucht werden soll oder ob er sich auf die Mindestanforderungen der Norm zurückzieht und das durchfechten möchte, müssen wir nun mal abwarten.

Da möglicherweise auch andere Leser mit ähnlichen Fragestellungen mal über diesen Thread stolpern, möchte ich aber nochmal zwei Sachen klarstellen.

1) Die These, die hier von einigen Nutzern vehement vertreten wurde, dass bei einem WEG-geteilten Einfamilien-Reihenhaus (oder Wohnung im Reihenhauscharakter, senkrechte Wohneinheiten oder was auch immer) die Schallschutzanforderungen aus dem Geschosswohnungsbau einzuhalten sind, ist vollkommener Unfug.
2) Die Mindestmaße der DIN 4109 können nicht als Maß herangezogen werden, da sie lediglich die Mindestanforderungen zur Vermeidung unzumutbarer Belästigungen regelt. Wird ein üblicher Qualitäts- und Komfortstandard geschuldet (also keine Sozialwohnungen, Studentenwohnheim, etc.) so ist das geschuldete Schalldämmmaß höher. Eine Schallschutzklausel, die auf diese Mindestmaße abzielt oder sogar einen erhöhten Schallschutz explizit ausschließt, ist gem. § 307 Baugesetzbuch unwirksam.

Ein Ergebnis kann ich bis dato noch nicht präsentieren. Ihr könnt euch aber sicher sein, dass ihr es hier irgendwann werdet lesen können.
 
P

Pacmansh

Es hat gedauert, Ich habe nun die Werte der Messungen erhalten. Es handelt sich um einen recht stark gekürzten Bericht, den mir der Bauträger zur Verfügung gestellt hat. Eine Veröffentlichung im Internet wird ausdrücklich ausgeschlossen, weswegen ich hiervon erstmal absehe. Dennoch möchte ich gerne die gemessenen Werte mit euch teilen.

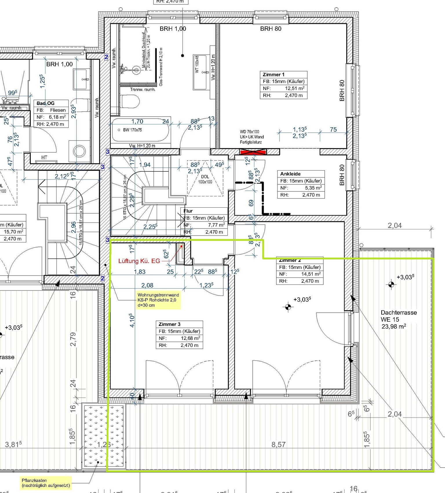
Anbei erhaltet ihr noch einmal den Grundriss. Meine Einheit ist rechts zu finden. Der Grundriss ist vom Obergeschoss, das Wohnzimmer im EG (der einzige angrenzende Schutzbedürftige Raum) habe ich in grün zur Orientierung eingezeichnet.

Folgende Werte wurden gemessen:
Trennwand Erdgeschoss R'w (C; Ctr): 65 (-2;-5) dB
Trennwand Obergeschoss Dn,w (C; Ctr): 65 (-2;-5) dB (Trennfläche kleiner 10m²)

Treppe mittlere Wohneinheit zu unserem Wohnzimmer L'n,w (C1): 33 (-2) dB

Geschossdecke zu unserem Wohnzimmer, Bad EG ist direkt unter Bad OG und grenzt bei uns an den Technikraum.
aus Bad OG: L'n,w (C1): 40 (-1) dB
aus Bad EG: L'n,w (C1): 33 (-5) dB

Über eine Einschätzung würde ich mich freuen. Ein Termin mit dem Anwalt hinsichtlich des weiteren Vorgehens bzgl. der einschaligen Trennwand und den Schallanforderungen folgt hoffentlich noch diese Woche.
Detaillierter Grundriss eines Hauses mit mehreren Zimmern, Fluren, Treppenhaus und Dachterrasse
 
11ant

11ant

Das technische Problem ist an der Wurzel verbockt worden und aus meiner Sicht nachträglich nicht heilbar. Die Beplankung mit weiterer Wandmasse mag in der Theorie etwas bringen, aber in der Praxis sind Globuli dagegen "hoch wirksam". Mehr als eine geldliche Kompensation sehe ich hier nicht erreichbar, und auch da - Du schildertest eingangs das problematische Konstrukt mit einer Projekt-GmbH als Deinem rechtlich eigentlichen Vertragspartner - mußt Du wohl aufpassen, nicht verlierender Gewinner zu sein, d.h. am Ende ein Urteil gegen einen dann liquidierten Gegner zu haben. Nimm, was Du auf dem Gütewege kriegen kannst, mäste die Anwälte nicht zu reichlich, und danke einem Heiligen Deiner Wahl, daß Andere mehr Leid zu tragen haben.
 
P

Pacmansh

Na klar, heilbar ist das nicht, finanzielle Kompensation das Mittel der Wahl. Ich hoffe zumindest, dass die Maßnahmen bei der Treppe einen entsprechenden Effekt hatten und nicht umsonst waren. Zumindest das gemessene Ergebnis hat mich positiv überrascht. Am 31.08. soll die Übergabe erfolgen, danach werde ich Erfahrungen aus dem realen Leben sammeln können.

Wenn ich auf dem aktuellen Stand bin, sind 2 von 15 Wohneinheiten noch nicht verkauft, es ist also zumindest noch Vermögen in der GmbH. Des Weiteren haben ich noch gute 50.000 € an Zahlungen ausstehend, nachdem die Übergabe erfolgt ist. Wie damit sinnvoll umzugehen ist wird der Anwalt sicherlich beantworten können. Das Risiko "verlierender Gewinner" wird in den weiteren Entscheidungsprozess mit einfließen.
 
Zuletzt aktualisiert 19.11.2025
Im Forum Bauland / Baurecht / Baugenehmigung / Verträge gibt es 3159 Themen mit insgesamt 42905 Beiträgen


Ähnliche Themen zu geschuldeter Schallschutz Reihenhaus Neubau
Nr.ErgebnisBeiträge
1Schallschutz VDI Richtlinie 4100 & DIN 4109 im Fertighausbau 49
2Schallschutz DIN 4109-1 bei Reihenmittelhaus ausreichend? 19
3Din 4109 Lärmende ll - Was ist zu beachten? 13
4Miserabler Schallschutz nach außen bei Wärmedämmziegeln - Seite 316
5Schallschutz nach DIN Norm 4109 für Baugenehmigung relevant? - Seite 216
6Reicht als Schallschutz gemäß DIN4109 in Einfamilienhaus? 11
7Welches Innenwandmaterial/Innenwanddicke für guten Schallschutz? 22
8Reihenmittelhaus von Bauträger kaufen - Vertragsinhalt? - Seite 271
9ungedämmter Keller = nasser Keller? - Seite 220
10Elektroplanung Treppenbereich + Außenanlage - Seite 213
11Einfamilienhaus Energieeinsparverordnung 2016 Bauträger empfiehlt Mehrdämmung - sinnvoll? - Seite 339
12Schallschutz - schwächstes Glied? (Fenster?) 26
13Wandstärke Trennwand Doppelhaus. Statiker plant 17,5cm 14
14Lärmprobleme Schallschutz Neubau Doppelhaushälfte? - Seite 438
15Grundriss-Optimierung Reihenhaus 160qm, ca. 145 NWF - Seite 1198
16Bauträger - Rücktritt vom Kaufvertrag möglich? 11
17Massive Probleme mit Bauträger - Vertragsauflösung möglich? - Seite 233
18Bauträger hat uns im Stich gelassen - was nun tun? - Seite 342
19Ärger mit dem Bauträger wissen nicht mehr weiter 13
20Bauträger will pauschalen Schadenersatz nicht mit Raten verrechnen - Seite 319

Oben