Grüß Euch!
Platze hier gleich einmal mit einer Frage hinein.
Meine Frau und ich (29 & 31, derzeit 1 Kind, zweites Kind im kommen) planen den Ausbau des Hauses ihrer Eltern.
Westseitig des Hauses befindet sich derzeit ein Durchgang (mit Pellettank) sowie im Anschluss die Garage.
Alles überdacht natürlich. Auf dem der Garage/Durchgang befindet sich derzeit eine Solaranlage für das Warmwasser.
Geplant ist das Hinzufügen einer Doppelgarage damit auf die Garagen & dem Durchgang zusätzlichen Wohnflächen geschaffen können.
Ihre Eltern sollen dann im Erdgeschoss wohnen, während uns dann der gesamte Obergeschoss zur Verfügung stehen würde.
Das Obergeschoss hat 3 Zimmer inklusive Bad & WC und hat die Maße ~ 8 m x 8 m.
Westseitig befindet sich ein Fenster beim Gang, welches durchbrochen werden soll und somit hätten wir einen Durchgang zum "neuen" Bereich.
Der neue Bereich hätte nach momentan Stand die Außenmaße 13 x 6 (Alternativ 13 x 7).
Hier wird ein weiteres Schlafzimmer sowie Wohn/Küchenkombination (sowie ein kleines Abstellraum) seinen Platz finden.
Eingang im Erdgeschoss ist momentan ebenfalls westseitig. Unser Eingang sollte dann nordseitig angebracht werden (wohl über einen Treppenaufgang)
Somit würden wir auf etwa ~ 120 bis 130 qm Wohnfläche im Obergeschoss kommen.
Die Doppelgarage wollen wir massiv bauen.
Jetzt stellt sich uns die Frage, ob wir das Obergeschoss massiv oder einen Holzaufbau machen sollen.
Was wären die Vorteile? Gibt es da überhaupt zB preisliche Unterschiede?
Wir haben noch keine Angebote oder ähnliches derzeit eingeholt. Abgeklärt gehört auch noch eine eventuelle Grundstückserweiterung (welche jedoch nördlich sowie westlich möglich ist)
Falls ich etwas näher beschreiben soll, bin ich natürlich gerne bereit diese zu beantworten
Platze hier gleich einmal mit einer Frage hinein.
Meine Frau und ich (29 & 31, derzeit 1 Kind, zweites Kind im kommen) planen den Ausbau des Hauses ihrer Eltern.
Westseitig des Hauses befindet sich derzeit ein Durchgang (mit Pellettank) sowie im Anschluss die Garage.
Alles überdacht natürlich. Auf dem der Garage/Durchgang befindet sich derzeit eine Solaranlage für das Warmwasser.
Geplant ist das Hinzufügen einer Doppelgarage damit auf die Garagen & dem Durchgang zusätzlichen Wohnflächen geschaffen können.
Ihre Eltern sollen dann im Erdgeschoss wohnen, während uns dann der gesamte Obergeschoss zur Verfügung stehen würde.
Das Obergeschoss hat 3 Zimmer inklusive Bad & WC und hat die Maße ~ 8 m x 8 m.
Westseitig befindet sich ein Fenster beim Gang, welches durchbrochen werden soll und somit hätten wir einen Durchgang zum "neuen" Bereich.
Der neue Bereich hätte nach momentan Stand die Außenmaße 13 x 6 (Alternativ 13 x 7).
Hier wird ein weiteres Schlafzimmer sowie Wohn/Küchenkombination (sowie ein kleines Abstellraum) seinen Platz finden.
Eingang im Erdgeschoss ist momentan ebenfalls westseitig. Unser Eingang sollte dann nordseitig angebracht werden (wohl über einen Treppenaufgang)
Somit würden wir auf etwa ~ 120 bis 130 qm Wohnfläche im Obergeschoss kommen.
Die Doppelgarage wollen wir massiv bauen.
Jetzt stellt sich uns die Frage, ob wir das Obergeschoss massiv oder einen Holzaufbau machen sollen.
Was wären die Vorteile? Gibt es da überhaupt zB preisliche Unterschiede?
Wir haben noch keine Angebote oder ähnliches derzeit eingeholt. Abgeklärt gehört auch noch eine eventuelle Grundstückserweiterung (welche jedoch nördlich sowie westlich möglich ist)
Falls ich etwas näher beschreiben soll, bin ich natürlich gerne bereit diese zu beantworten
Ausbau ist vom Bauamt genehmigt
So ... die letzten Wochen war es ein wenig stressig.
Haben uns einige Angebote eingeholt (Bauträger, Installateur, Elektriker, Fenster, usw.)
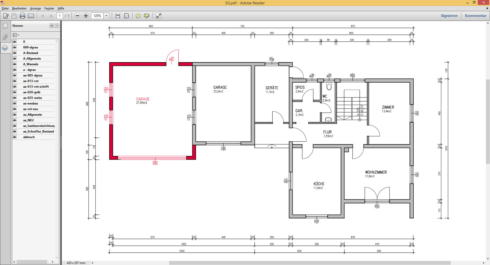
Angefügt habe ich einen Bildschirmabgriff von dem derzeit ungefähren Plan was wir haben wollen (rot = Neubau, weiß = Altbau)
Eingangsbereich wird von uns selber gemacht. Kommt nordseitig beim Stiegenhaus rein (Podest samt Treppe)
Dachboden des Neubaus soll mit dem alten verbunden und benutzbar sein.
Morgen haben wir noch einen Termin zwecks des Angebotes eines Bauträgers.
Danach werden wir uns relativ schnell entscheiden, mit wem wir bauen wollen.
Wir tendieren derzeit stark zu einem Holzmassivbau (nicht Riegel)
Derzeit sehen die Kosten ungefähr wie folgt aus
Elektriker 10k
Installateur 16k (samt Solar, neue Leitungen für den Altbereich sowie neuem Boiler)
2x Bad (Kernsanierung OG sowie neues "Bad" -hust- im EG statt Speis/tlw. Gard) 12k
Holzmassivbau mit Garage (Garage allerdings entweder mit Ziegel oder Holz), Dachstuhl und Bodenplatte ~ 100k
Fenster & Türen ~10k
Sind schon mal etwa 150k
Es fehlen noch diverse kleinere Nebenkosten sowie der Außen- und Innenputz, die Böden, eventuelle Sanierungen im OG, (Böden, Türrahmen und Türen), Baggerarbeiten, Pflaster für die Einfahrt, Grundstückerweiterung (~200 qm) usw. .
Allgemein ist das Haus ansonsten in einem sehr guten Zustand. (liegt an dem pensionierte Tischlermeister und passionierter Handwerker)
Fenster sind alle neu im Altbereich (2 Jahre alt), die Heizung ist 4 Jahre alt und auch ausgelegt für die Größe wie sie werden soll.
Da bin ich gespannt, welche Kosten da auf uns noch zukommen werden. 😀
Irgendwie habe ich das Gefühl, dass wir unser selbst gestecktes Budget (~ 250k) wohl sogar überschreiten werden.


Haben uns einige Angebote eingeholt (Bauträger, Installateur, Elektriker, Fenster, usw.)
Angefügt habe ich einen Bildschirmabgriff von dem derzeit ungefähren Plan was wir haben wollen (rot = Neubau, weiß = Altbau)
Eingangsbereich wird von uns selber gemacht. Kommt nordseitig beim Stiegenhaus rein (Podest samt Treppe)
Dachboden des Neubaus soll mit dem alten verbunden und benutzbar sein.
Morgen haben wir noch einen Termin zwecks des Angebotes eines Bauträgers.
Danach werden wir uns relativ schnell entscheiden, mit wem wir bauen wollen.
Wir tendieren derzeit stark zu einem Holzmassivbau (nicht Riegel)
Derzeit sehen die Kosten ungefähr wie folgt aus
Elektriker 10k
Installateur 16k (samt Solar, neue Leitungen für den Altbereich sowie neuem Boiler)
2x Bad (Kernsanierung OG sowie neues "Bad" -hust- im EG statt Speis/tlw. Gard) 12k
Holzmassivbau mit Garage (Garage allerdings entweder mit Ziegel oder Holz), Dachstuhl und Bodenplatte ~ 100k
Fenster & Türen ~10k
Sind schon mal etwa 150k
Es fehlen noch diverse kleinere Nebenkosten sowie der Außen- und Innenputz, die Böden, eventuelle Sanierungen im OG, (Böden, Türrahmen und Türen), Baggerarbeiten, Pflaster für die Einfahrt, Grundstückerweiterung (~200 qm) usw. .
Allgemein ist das Haus ansonsten in einem sehr guten Zustand. (liegt an dem pensionierte Tischlermeister und passionierter Handwerker)
Fenster sind alle neu im Altbereich (2 Jahre alt), die Heizung ist 4 Jahre alt und auch ausgelegt für die Größe wie sie werden soll.
Da bin ich gespannt, welche Kosten da auf uns noch zukommen werden. 😀
Irgendwie habe ich das Gefühl, dass wir unser selbst gestecktes Budget (~ 250k) wohl sogar überschreiten werden.
Ähnliche Themen