H
himbeertony25.11.09 23:49Ho,
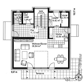
ich hätte gerne mal von euch gewußt ob es eine bestimmte Regel für die Verlegerichtung von Fliesen gibt 30x60cm.
Anhand mal ein Beispiel Grundriss im Anhang.
ich hätte jetzt gedacht
im EG Fliesen quer zum Fenster
im Flur Fliesen quer zur Eingangstür inkl Treppen bereich / Flur (mit 2 Dehnungsfugen)
im Wohnzimmer Laminat längs zur Terrassentür.
was sagt Ihr bei diesem Grundriss?


ich hätte gerne mal von euch gewußt ob es eine bestimmte Regel für die Verlegerichtung von Fliesen gibt 30x60cm.
Anhand mal ein Beispiel Grundriss im Anhang.
ich hätte jetzt gedacht
im EG Fliesen quer zum Fenster
im Flur Fliesen quer zur Eingangstür inkl Treppen bereich / Flur (mit 2 Dehnungsfugen)
im Wohnzimmer Laminat längs zur Terrassentür.
was sagt Ihr bei diesem Grundriss?
Anzeige
Ähnliche Themen