Hallo zusammen,
der Bauplan steht und wir sind kurz vor Baustart. Nun sind wir gerade dabei unsere Flachdachgarage zu planen. Dabei sind einige Fragen aufgekommen, weshalb wir um Eure Meinung bitten.
Müssen wir bei unserer Garage noch das Thema Dämmung beachten? Es ist kein Fenster vorhanden und keine Dämmung geplant. Könnte man hier Probleme mit der Luftzirkulation bekommen?
Wir haben uns bereits ein Angebot machen lassen (Bitumen und Kies) mit 2. Lagen Bitumen, Entwässerung auf dem Dach wg. Grenzbebauung für 14.000€. Grundsätzlich machen wir sehr viel in Eigenleistung, hier wären wir jedoch vorsichtig und würden einen Fachmann ausführen lassen.
Wir freuen uns über Eure Rückmeldung.
Vielen Dank und Grüße


der Bauplan steht und wir sind kurz vor Baustart. Nun sind wir gerade dabei unsere Flachdachgarage zu planen. Dabei sind einige Fragen aufgekommen, weshalb wir um Eure Meinung bitten.
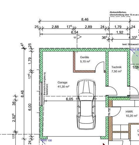
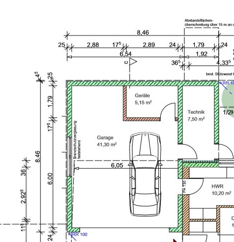
- Es handelt sich um eine Flachdachgarage in Grenzbebauung (Plan angehängt).
- Die Flachdachgarage soll von der Terrassentür im 1. Stock aus begehbar sein. Es soll möglich sein, dass man hier z.B. mal ein kleines Plateau errichtet für 2 Stühle (natürlich unter Einhaltung der notwendigen Grenzabstände).
Müssen wir bei unserer Garage noch das Thema Dämmung beachten? Es ist kein Fenster vorhanden und keine Dämmung geplant. Könnte man hier Probleme mit der Luftzirkulation bekommen?
Wir haben uns bereits ein Angebot machen lassen (Bitumen und Kies) mit 2. Lagen Bitumen, Entwässerung auf dem Dach wg. Grenzbebauung für 14.000€. Grundsätzlich machen wir sehr viel in Eigenleistung, hier wären wir jedoch vorsichtig und würden einen Fachmann ausführen lassen.
Wir freuen uns über Eure Rückmeldung.
Vielen Dank und Grüße
Anzeige
Ähnliche Themen