
Bubo bubo
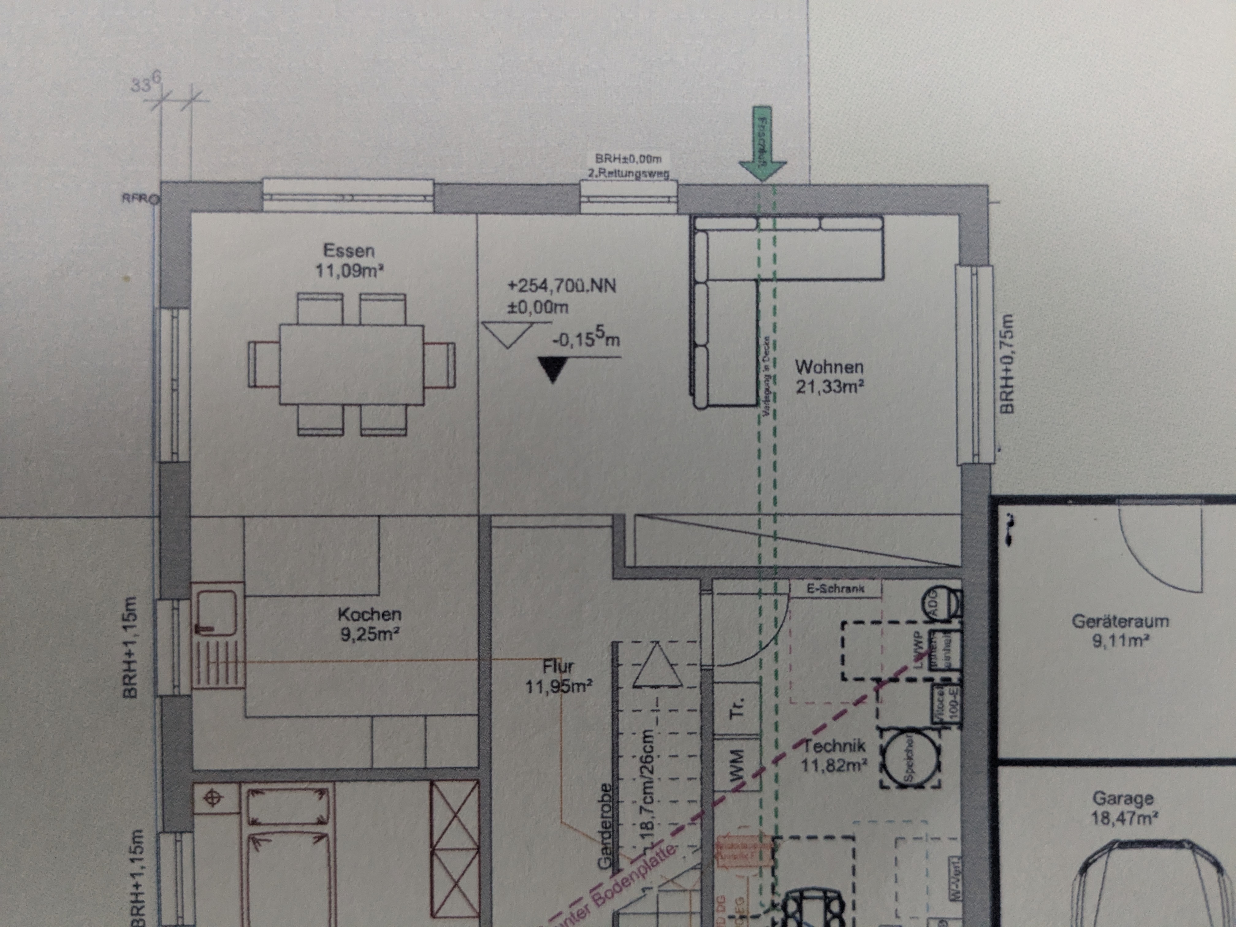
Auch wenn der TE vielleicht keine Antworten mehr möchte/ erwartet, hier kurz eine Erfahrung (eigene, wir haben 2021-2023 gebaut) in der Hoffnung, dass sie nützt.. Aufteilung Allraum ist, wie dem angehängten Foto zu entnehmen auf insgesamt knapp 42 qm. Wir haben einen 2m Esstisch und eine kleine! Küche. Diese ist okay, noch kleiner wäre wirklich unbequem, 2 qm größer inkl. Stauraum wären nice. Der Raum zwischen "Essen" und WoZi ( ist alles offen) wird als Lauffläche/ Stellplatz für Weihnachtsbaum/ Spielplatz des 4 jährigen gebraucht. Liste beliebig erweiterbar. Sind 2 Erw / 2 Kinder (4/0). Der Technikraum dürfte nicht kleiner sein, alleine Wärmepumpe/ Warmwasserspeicher, KWL und Waschmaschine fressen Platz! Bei uns stehen noch Regale, Waschmaschine und ein kleiner Eisschrank darin. Wenn ohne Keller gebaut wird, dann bitte nicht an Stellfläche sparen, das ist unsere Erkenntnis nach 2 Jahren darin leben. Mit Kleinkindern findet halt noch viel im WoZi statt. Zu den vorher gelaufenen Diskussionen: auch auf 11 qm Kinderzimmer kann man glücklich großwerden. Hatte früher auch nicht mehr und noch massive Dachschrägen dabei. Mehr ist natürlich schöner. (Unsere haben 14 und 15 qm, finde ich gut). Zur Arbeitsdiskussion, möchte ich dem TE ein bisschen beispringen, die ist in diesem Thread nicht gerade wohlwollend. Dem TE ist doch offenbar bewusst, dass man nicht alles haben kann. Wie die Waage Richtung Work- Life - Balance oder Investitionsmöglichkeiten ins Haus ausschlägt ist eine Lebensentscheidung die m.E. jedem selbst überlassen sein sollte, ohne dass man dadurch in der Kritik steht.
Anhänge
-
2,4 MB Aufrufe: 52