Hallo Zusammen,
wir planen zwei Häuser auf einem langen Grundstück zu bauen und stolpern immer wieder über die Feuerwehrflächen. Die HBO sagt
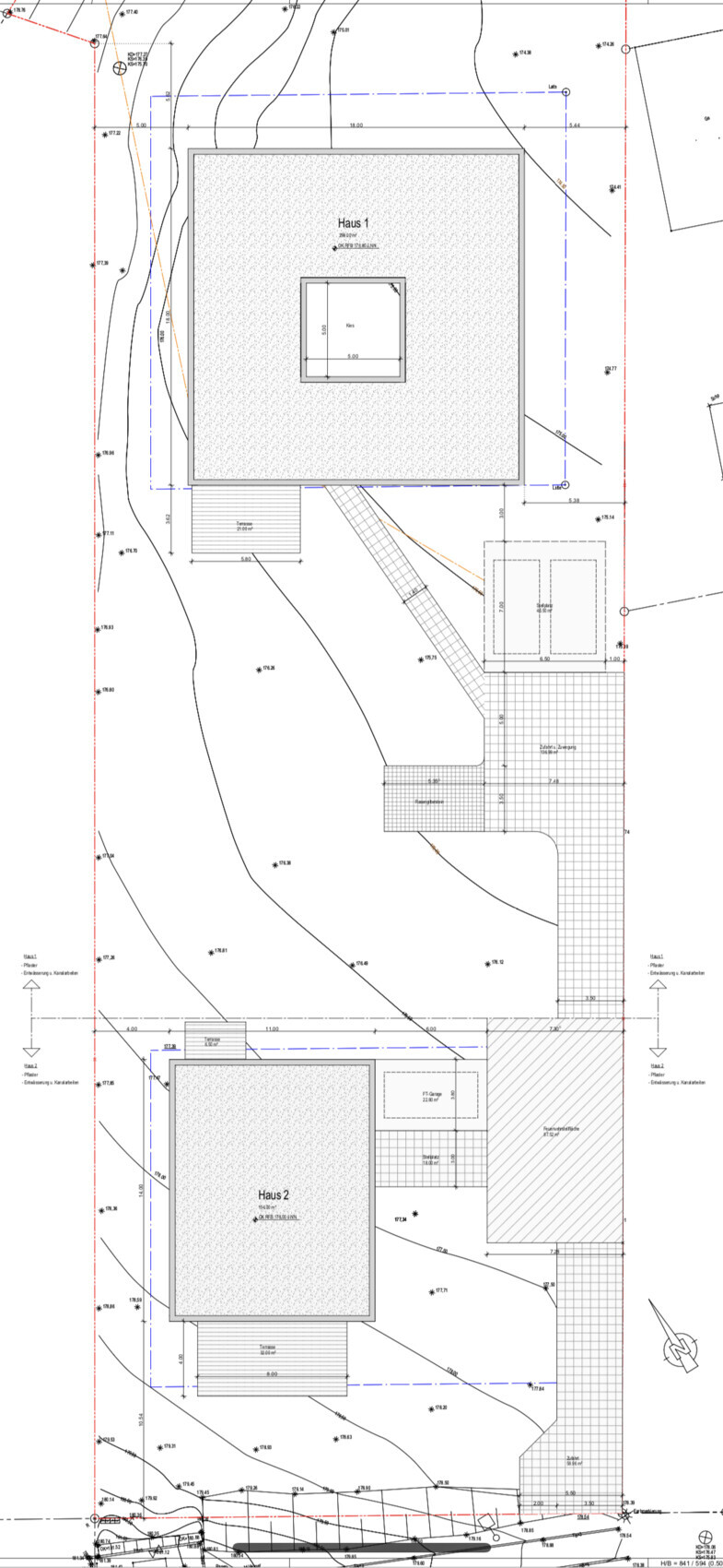
Unser Freiflächenplan sieht aktuell eine Aufstellfläche von 7x12 Metern vor dem vorderen Haus vor da dort sowieso Rangierfläche benötigt wird. Es ist keine Durchfahrt hinter das hintere Gebäude geplant (Grundflächenzahl verbraucht, pauschal heißt es „Befreiungen werden nicht erteilt“). Da beides Bungalows sind, fällt anleiteten an sich aus.
Weiß einer wie der letzte Satz in unserem Fall zu deuten ist? Wann sind Zufahrten und Bewegungsflächen hinter dem Haus nötig?

Das hintere Haus kann sich in der Form noch ändern, ich gehe aber nicht davon aus dass wir genug Fläche sparen können um eine Zufahrt bis hinter das Haus zu realisieren.
wir planen zwei Häuser auf einem langen Grundstück zu bauen und stolpern immer wieder über die Feuerwehrflächen. Die HBO sagt
Bei Gebäuden, die ganz oder mit Teilen mehr als 50 m von einer öffentlichen Verkehrsfläche entfernt sind, sind Zufahrten oder Durchfahrten nach Satz 2 zu den vor und hinter den Gebäuden gelegenen Grundstücksteilen und Bewegungsflächen herzustellen, wenn sie aus Gründen des Feuerwehreinsatzes erforderlich sind.
Unser Freiflächenplan sieht aktuell eine Aufstellfläche von 7x12 Metern vor dem vorderen Haus vor da dort sowieso Rangierfläche benötigt wird. Es ist keine Durchfahrt hinter das hintere Gebäude geplant (Grundflächenzahl verbraucht, pauschal heißt es „Befreiungen werden nicht erteilt“). Da beides Bungalows sind, fällt anleiteten an sich aus.
Weiß einer wie der letzte Satz in unserem Fall zu deuten ist? Wann sind Zufahrten und Bewegungsflächen hinter dem Haus nötig?
Das hintere Haus kann sich in der Form noch ändern, ich gehe aber nicht davon aus dass wir genug Fläche sparen können um eine Zufahrt bis hinter das Haus zu realisieren.
Anzeige
Inzwischen habe ich den Kreisbrandinspektor erreicht und eine Aussage erhalten, eventuell ist das für den ein oder anderen Mitleser interessant. Bundesland ist Hessen.
Da bei eingeschossiger Bauweise der zweite Rettungsweg auch ohne Feuerwehrgerät (anleitern) erreicht werden kann, ist eine Zufahrt hinter das Gebäude nicht notwendig.
Die Bewegungsfläche vor dem vorderen Haus kann so nicht dargestellt werden. Sie darf i.d.R. nicht Teil der Zufahrt sein, dies kann in Ausnahmefällen aber akzeptiert werden. Zudem muss bei weiterführenden Zufahrten auf einer Länge von 4 Meter ein Übergang geschaffen werden (wofür die Grundflächenzahl) nicht reicht.
Da bei eingeschossiger Bauweise der zweite Rettungsweg auch ohne Feuerwehrgerät (anleitern) erreicht werden kann, ist eine Zufahrt hinter das Gebäude nicht notwendig.
Die Bewegungsfläche vor dem vorderen Haus kann so nicht dargestellt werden. Sie darf i.d.R. nicht Teil der Zufahrt sein, dies kann in Ausnahmefällen aber akzeptiert werden. Zudem muss bei weiterführenden Zufahrten auf einer Länge von 4 Meter ein Übergang geschaffen werden (wofür die Grundflächenzahl) nicht reicht.
Ähnliche Themen