ᐅ Erster Entwurf Grundriss Einfamilienhaus (ca. 200qm) - Bitte um Feedback
Erstellt am: 24.02.17 22:45
S
SupaCrizSupaCriz schrieb:
Die Frage, die sich uns aktuell stellt, ist: Gibt es etwas, das ihr grundlegend anders machen würdet.Ja, aber das sagte ich schon: nämlich die Reihenfolge
1. Raumprogramm klären
2. Räume auf Etagen verteilen
3. Plan zeichnen
anstatt wie jetzt vorliegend
1. Plan zeichnen
2. Räume wechseln und Wände verschieben
3. Räume trotzdem in falschen Geschossen haben
https://www.instagram.com/11antgmxde/
https://www.linkedin.com/company/bauen-jetzt/
SupaCriz schrieb:
Gibt es irgendwas (außer Dachneigung und fehlender Drempel), das eurer Meinung nach im aktuellen Vorschlag gar nicht gut ist oder etwas was ihr an der Raumaufteilung ändern würdet?Definitiv das Standarddenken, dass ein UG Keller ist und der Eingang unbedingt in gleicher Ebene zur Küche und Leben sein muss.
Auch für mich wäre es undenkbar, keinen Außenaustritt zum Garten und Terrasse von Küche und Essbereich zu haben.
Bei einem Hanggrundstück muss man auf das Gelände eingehen und mal quer denken (obwohl ich unter quer ganz andere Sachen kenne).
Für konservative Häuslebauer: quer
Vielen Dank an alle für eure Beiträge. Ich habe die aktuellen Grundrisse und die Seitenansicht hier hochgeladen.
Wir sind weiterhin froh über jedes Feedback - vom Hauptwohnzimmer im UG werden wir weiterhin absehen. Hier soll ein mehr oder weniger autonomer Gästebereich sowie das "Zweitwohnzimmer" mit Terrassenzugang entstehen. Die Schlafräume wollen wir weiterhin im komplett im DG haben.
Habt ihr weitere Rückmeldungen? Gerne auch zum Thema Gaube ja/nein oder der Aufteilung der Wohnfläche auf die verschiedenen Räume?
Danke im Voraus!




Wir sind weiterhin froh über jedes Feedback - vom Hauptwohnzimmer im UG werden wir weiterhin absehen. Hier soll ein mehr oder weniger autonomer Gästebereich sowie das "Zweitwohnzimmer" mit Terrassenzugang entstehen. Die Schlafräume wollen wir weiterhin im komplett im DG haben.
Habt ihr weitere Rückmeldungen? Gerne auch zum Thema Gaube ja/nein oder der Aufteilung der Wohnfläche auf die verschiedenen Räume?
Danke im Voraus!
RobsonMKK schrieb:
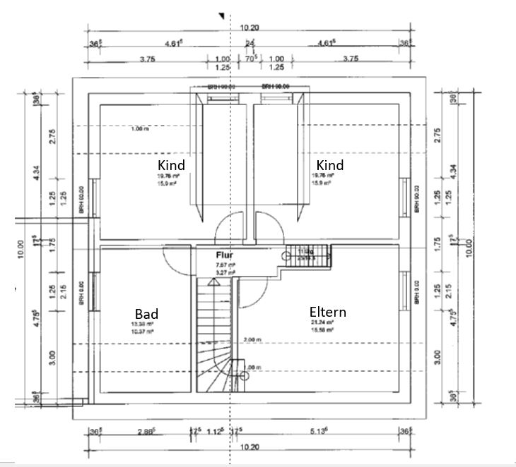
Eine Speisekammer die fast so groß ist wie die Küche? Eine Garderobe die größer ist als das WC? (wenn es nur ein Klo mit Waschbecken ist, wäre es etwas riesig)
Irgendwie mag mir das nicht so recht gefallen.Oha. RobsonMKK und meiner einer sind gleicher Meinung (sic !) - wenn das mal kein schlagender Hinweis auf einen vermurksten Plan ist ...
Die 20 cm mehr ggü. dem alten Plan hätte ich lieber der Tiefe als der Breite zugeschlagen, dann hätte man ohne den Treppenaustritt zu beschneiden die Mittelwand in allen Geschossen sauber unter die Firstpfette stellen können.
Der Wandvorsprung für das ohnehin üppig bemessene WC läßt einen von der Haustür auf eine Wandkante schauen, verleiht dem Flur Enge, und bringt dabei dem Wohnzimmer weniger als einen halben Quadratmeter.
Das Wanddetail Garage / Haus ist hoffentlich nicht ernst gemeint. Die Speisekammer reicht für zwei Jahreslieferungen vom Bofrostmann auf einen Schlag. Dafür ist die Küche zu spärlich bemessen, um dort auch zu essen - der Weg zum Servieren im Wohnbereich jedoch eine Pilgerreise.
Was Ihr da bauen wollt, sieht m.E. im Grundriss an keiner Stelle wie ein Neubau aus, sondern an buchstäblich allen Ecken wie ein in einem engen Korsett umgebautes Siedlungshaus der 50er Jahre. Wenn das fertig ist, werden alle Betrachter voll des Lobes sein, was der Putzer und der Maler aus so einem alten Kasten gemacht hätten und Euch bedauern, daß man damals so ganz anders gebaut hat und nun als Umbauer (doch sicherlich wegen der Statik, oder ?) so diffizil vorgehen müsse.
Niemand, der sich jemals mit Architektur beschäftigt hat, wird das für ein neues Haus halten.
Aber, daß ich nicht nur meckere: das Zwerchhaus ist ordentlich konstruiert.
https://www.instagram.com/11antgmxde/
https://www.linkedin.com/company/bauen-jetzt/
Ähnliche Themen