Hausbau - Ratgeber
Bauherrenhilfe
- Bauherrenhilfe vor Vertragsabschluss
-- Warum einen unabhängigen Baubetreuer?
-- Vertragsgrundlagen
-- Bausumme
-- Zahlungsplan zur Kostenkontrolle
-- Pflichten des Bauherren vor Vertragsabschluss
-- Unterlagen beim Hausbau vor Vertragsabschluss
- Bauherrenhilfe nach Vertragsabschluss
-- Bauantrag bei Behörden
-- Bau-Genehmigungsverfahren bei Baubehörden
-- Bauspezifische Versicherungen
-- Bauzeitenplan
-- Baubeginn - die Letzten Pflichten der Bauherrschaft
- Bauherrenhilfe während der Bauzeit
- Gewährleistungsansprüche
- Bauabnahme
Baufinanzierung
- Baufinanzierung - Allgemeine Fragen
- Kreditarten
- Kredit-Konditionen
- Bausparen
- Staatliche Förderungen
- Verkehrswert
- Haushaltsrechnung und Bonität
Hausbau Planung
- Haustypen
- Hausbau Vorbereitungsarbeiten
- Das Baugrundstück
- Baugrund beim Hausbau
- Baurecht
- Gebäudeschutz
- Erdarbeiten und Wasserhaltung
- Stützmauern
- Einfriedung
- Untergeschoss
- Kanalisation
- Tragende Elemente
- Nichttragende Innenwände
- Fundation / Fundament
- Deckenkonstruktionen
- Dächer
- Kaminanlagen
- Treppen Rampen Leitern
- Dachbeläge und Spengler
- Fenster
- Sonnen und Wetterschutz
- Aussenputze
- Einbauten, Küchen, Türen
- Bodenbeläge und Unterlagsböden
- Parkett
- Gips, Wand, Decke
Haustechnik und Energie
- Heiztechnik
- Lüftung und Klimatechnik
- Sanitärtechnik
- Elektrotechnik
- Erneuerbare Energie
Whirlpools / Jacuzzi
Hausbau Magazin
- Baufinanzierung trotz Krise?
- Das Blockhaus
- Moderne Dämmstoffe im Vergleich
- Erker Vor- und Nachteile
- Glasflächen beim Hausbau
- Günstig ein Haus Bauen
- Mediterraner Hausbaustil
- Mehrgenerationenhaus
- Moderne Architektur
- Gartengestaltung leicht gemacht
- Traditioneller Ziegelbau
- Villa als höchster Traum
- Im Eigenheim Ruhestand geniessen
- Altbau sanieren
- Kauf einer Holzgarage
- Immobilienmakler
- Arbeitshandschuhe für den Winter
- Zuhause verschönern
- Outdoor-Plissees
- Schlafzimmer planen
- Terrassenüberdachung
- Wohngebäudeversicherung
- Zaunarten und Eigenschaften
- Hauseingang gestalten
- Der perfekte Grundriss
- Sparsamer heizen im Altbau
- Einfamilienhaus smart finanzieren
- Planung einer PV-Anlage
- Neues Haus
- Immobilienfinanzierung
- Installation einer Photovoltaikanlage
- Asbest erkennen und entfernen
- Gartenpflege im Frühling – worauf achten
- Sauna im Fokus - Wellness zuhause
- Erfolgreich vermieten
- Die perfekte Winterbekleidung
- Das Niedrigenergiehaus
- Der April und seine Stürme
- Architektonische Vielfalt
- Ökologisch und nachhaltig bauen
- Das perfekte Schlafzimmer
- Nachhaltige Energieversorgung
- Zukunftsorientiert bauen
- Nachhaltigkeit beim Hausbau
- Tiny Houses
- Wärmepumpen als nachhaltige Heizvariante
- Maßgeschneiderten Kleiderschrank
- Der richtige Baukredit
- Ratgeber für erfolgreichen Hausbau
- Haus als Altersvorsorge
Do-it-yourself Anleitungen
- Verlegeanleitung für Bodenbeläge und Parkett
- Bodenbeläge und Parkett reinigen und pflegen
- Malerarbeiten am Haus
- Garten Tipps
- Umzug und Reinigung

ᐅ Entwurf für ein Einfamilienhaus mit 160-180qm - Verbesserungsvorschläge?

Erstellt am: 19.10.18 07:21
D
Duran
kbt0922.10.18 06:59
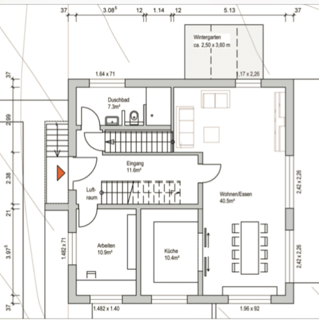
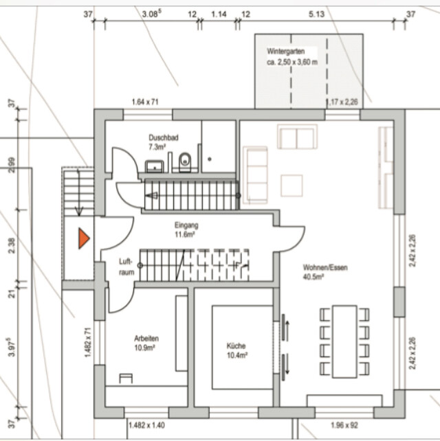
Ich finde ja, da ist ein Grundfehler im Plan. Wenn ich es richtig verstehe, dann wird der planobere Teil des Wohnzimmers auf der Gartenebene liegen.

Das ist doch aber eher unpraktisch. In dem Teil sollten eher Küche/Essen liegen, denn vor dort wirst du die Terrasse zum Grillen oder Chillen betreten.

Deshalb sind die Fragen nach Schlauch etc. halt ohne Einrichtungsskizzen etc. obsolet.
D
Duran
22.10.18 07:07
Die Gartenseite wäre rechts vom Wohnzimmer; dort wo die beiden großen Fenster bzw. Türe eingezeichnet lst
D
Duran
22.10.18 07:08
Die Gartenseite wäre rechts vom Wohnzimmer; dort wo die beiden großen Fenster bzw. Türe eingezeichnet lst.

Reicht 1.2m als Platz zwischen Treppe und flurwand oder ist dies zu schmal?
M
Maria16
22.10.18 09:00
Duran schrieb:
Das Bad Rutsch in seiner Form komplett nach links. Dafür bekommt das Wohnzimmer quasi eine Leseecke (1.3m breit und 2m tief)

Anhand der obigen Maße verstehe ich nicht, wo dann 5x3 m herkommen? *grübel*
H
haydee
22.10.18 09:01
Kannst du mal bitte einen aktuellen Plan vom EG und einen Lageplan oder und Außenansichten?

1,20 m Rohbaumaß ist eng und schlauchig
D
Duran
22.10.18 09:47
So würde es aussehen

Grundriss eines Hauses: Eingangsbereich, Flur, Küche, Arbeiten, Duschbad, Wohnen/Essen, Wintergarten
gartenseitewohnzimmerfenstertüre