Guten Abend Zusammen,
ich arbeite gerade an der Vorlage für den Elektriker und separat eingesetzten Systemintegrator. Das (hoffentlich) positive an der Besetzung für unseren Hausbau ist, das der Elektriker aufgeschlossen und KNX erfahren ist, gerne mit dem von uns gewählten Elektriker zusammen in unser Bauprojekt starten möchte.
Da ich zum Elektriker eine ganz gute Verbindung habe, "dürfen" wir KNX Komponenten die notwendig werden als Bauherren selbst beschaffen und er wird sie dann entsprechend verbauen.
Der Systemintegrator soll in seiner Rolle wie es üblich ist in der Planung zur Seite stehen und die Koordination mit dem Elektriker, sowie eventuell das Parametrieren übernehmen. Mit einem guten Freund der im kommenden Jahr sein Hausbau plant habe ich nun die ETS Lite beschafft und werde ein Übungsboard bauen.
Mit unserem Beruf als IT Berater trauen wir uns grundsätzlich erst mal zu das Parametrieren zu übernehmen.
Reichlich Lektüre zur Theorie, Topologie und Grundsystematik wurde beschafft und gelesen. Diese Entscheidung wollen wir aber erst in ein paar Monaten treffen, wenn wir ein genaues Gefühl für das Doing entwickelt haben. Wenn das nicht sattelfest ist, wird extern vergeben.
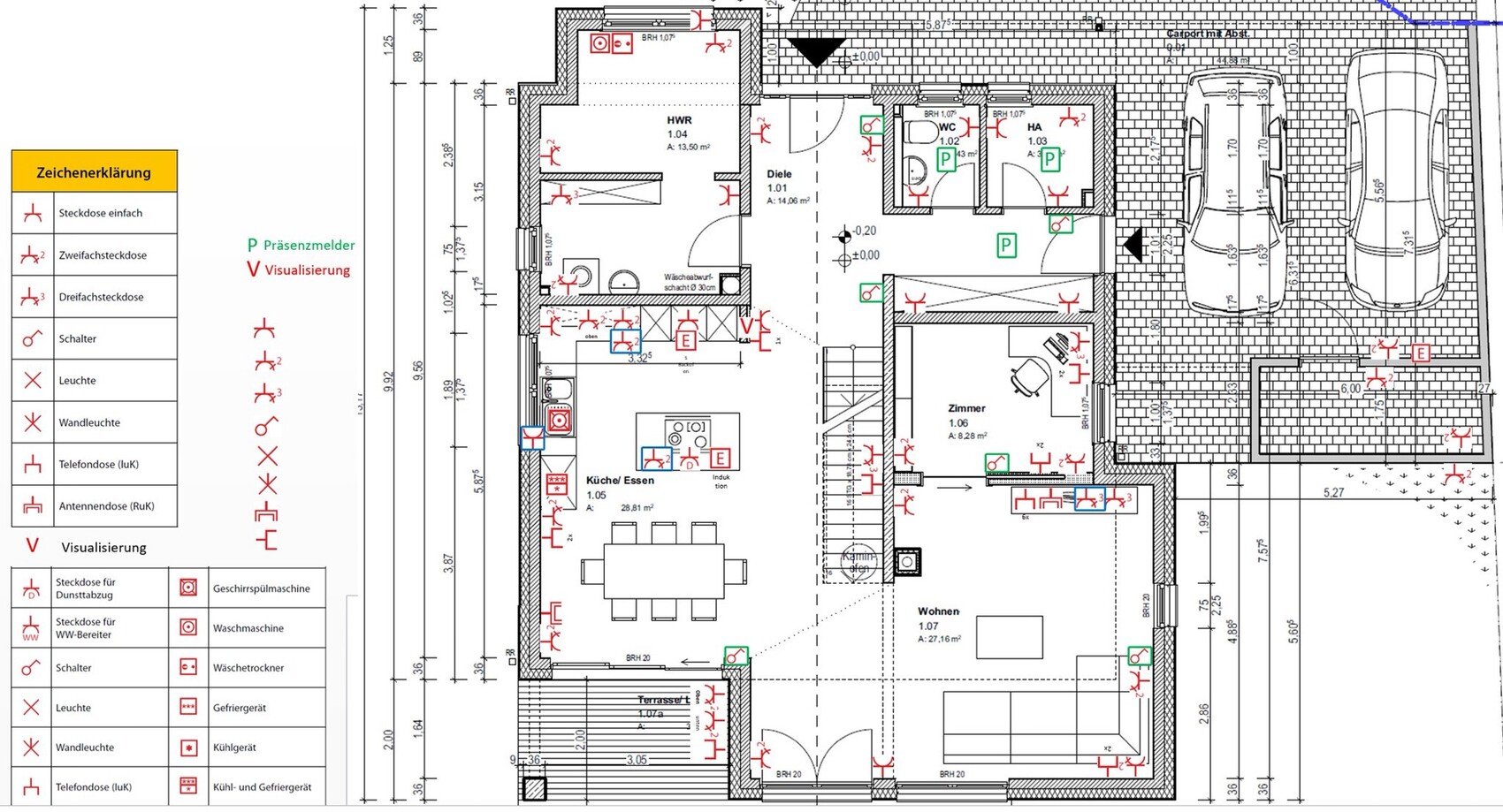
Nun zum aktuellen Anliegen, ich habe begonnen den finalen Grundriss mit Steckdosen (blau sollen definitiv schaltbar sein), KNX Schaltstellen und Netzwerk/SAT Verkabelung zu bestücken.
Es fehlt noch die Platzierung von Sensorik im Bereich Präsenzmelder, da bin ich mir noch nicht klar, wie weit das verbaut werden soll.
Fenster/Türen sollen allesamt mit Sensoren ausgestattet werden (ist nicht explizit eingezeichnet)
Gerne nehme ich vorab mal euer Feedback zur aktuellen Ausstattung entgegen, da ich absolut kein Gefühl bei den Steckdosen habe.
Bei den Punkten für KNX Schalter haben wir uns an die Verkehrswege im Haus gehalten, rechts von der Küchenzeile soll Platz für eine Unterputz montierte Visualisierung vorgesehen werden.
Viel Glück,
Jan

ich arbeite gerade an der Vorlage für den Elektriker und separat eingesetzten Systemintegrator. Das (hoffentlich) positive an der Besetzung für unseren Hausbau ist, das der Elektriker aufgeschlossen und KNX erfahren ist, gerne mit dem von uns gewählten Elektriker zusammen in unser Bauprojekt starten möchte.
Da ich zum Elektriker eine ganz gute Verbindung habe, "dürfen" wir KNX Komponenten die notwendig werden als Bauherren selbst beschaffen und er wird sie dann entsprechend verbauen.
Der Systemintegrator soll in seiner Rolle wie es üblich ist in der Planung zur Seite stehen und die Koordination mit dem Elektriker, sowie eventuell das Parametrieren übernehmen. Mit einem guten Freund der im kommenden Jahr sein Hausbau plant habe ich nun die ETS Lite beschafft und werde ein Übungsboard bauen.
Mit unserem Beruf als IT Berater trauen wir uns grundsätzlich erst mal zu das Parametrieren zu übernehmen.
Reichlich Lektüre zur Theorie, Topologie und Grundsystematik wurde beschafft und gelesen. Diese Entscheidung wollen wir aber erst in ein paar Monaten treffen, wenn wir ein genaues Gefühl für das Doing entwickelt haben. Wenn das nicht sattelfest ist, wird extern vergeben.
Nun zum aktuellen Anliegen, ich habe begonnen den finalen Grundriss mit Steckdosen (blau sollen definitiv schaltbar sein), KNX Schaltstellen und Netzwerk/SAT Verkabelung zu bestücken.
Es fehlt noch die Platzierung von Sensorik im Bereich Präsenzmelder, da bin ich mir noch nicht klar, wie weit das verbaut werden soll.
Fenster/Türen sollen allesamt mit Sensoren ausgestattet werden (ist nicht explizit eingezeichnet)
Gerne nehme ich vorab mal euer Feedback zur aktuellen Ausstattung entgegen, da ich absolut kein Gefühl bei den Steckdosen habe.
Bei den Punkten für KNX Schalter haben wir uns an die Verkehrswege im Haus gehalten, rechts von der Küchenzeile soll Platz für eine Unterputz montierte Visualisierung vorgesehen werden.
Viel Glück,
Jan
hanse987 schrieb:
Einfach mal ein paar Gedankenspiele von mir.
Eine Frage zum Anfang: Mit Telefondose (IuK) ist LAN gemeint?
Alle Steckdosen im Außenbereich (Terrasse und Carport inclusive Geräteraum) würde ich schaltbar machen. LAN auf Terrasse extra sichern gegen fremde Benutzung.
Steckdosen für WA und Trockner evtl. auf Schaltaktor mit Leistungsmessung hängen. Wenn die WA fertig ist kommt eine Meldung aufs Smartphone. (Spielerei!)
LAN in der Nähe der WA und Trockner. Man weiß ja nie was die Technik bringt.
Sollen irgendwo Kameras hin? -> Netzwerkkabel legen!
Je nach Türsprechanlage an passende Verkabelung denken.
LAN und Antennendose in beide Kinderzimmer.
LAN ins Bad? Ich plane es bei mir nachzurüsten.
Wenn der Router irgendwo im Netzwerkschrank verschwindet dann noch Accesspoint vorsehen -> Steckdose in der Nähe vorsehen oder PoE
So dass wars fürs erste.
MarkusIch habe endlich wieder Zeit gefunden ein wenig dran zu schrauben. Habe auch eine falsche Version des OG hochgeladen ohne Sat/LAN Dosen.
Die LuK Symbole sind in der Tat für Lan plus Kommentar wie viele Anschlüsse LAN an der Dose geplant sind.
Was mich aktuell beschäftigt:
- Präsenzmelder (einige sind gesetzt) ja oder nein im offenen Bereich EG, wenn ja Positionen?!
- Wie Treppenlicht sauber schalten (automatisch)
- Temp Sensoren in den Estrich (Dusche, Wohnzimmer wegen dem Kamin)
- zusätzliche Unterverteilung in den Carport Schuppen? Da wäre ich später womöglich immer flexibler noch mal nen Erdkabel oder KNX im Außenbereich zu ziehen.
Das sind so die aktuellen Gedankenspiele.
Viel Glück,
Jan
Ähnliche Themen