B
Bertram10007.08.17 12:08Hallo kbt,
Eure und deine Vorschläge haben mir viel Denkstoff mitgegeben. Ich habe lange mit ausgeschnittenen Möbeln auf Papier hin und her geschoben. Bis mir klar wurde dass ich auch ein paar Fakten vom Projektplaner benötige: was ist möglich, was kostet was?
Weiterhin habe ich inzwischen gemerkt dass mein Budgets für Extras schmaler ausfällt als gedacht (mein ursprünglicher Plan war meine heutige Wohnung zu verkaufen und damit die neue Wohnung zu bezahlen. Mit viel Gepuzzel hat sich ergeben dass ich "nur" 60k zufinanzien muss um meine heutige Wohnung zu behalten und langfristig Mieteinnahmen zu erzielen). Ich habe mich entschieden das zu probieren meine heutige Wohnung zu halten und muss deshalb bei den Extras knapsen. Die Finanzierung ist bis zu den ersten Mieteinnahmen auf Kante genäht.
Ich probiere natürlich, die strukturellen Extras doch bereits beim Bau einzubauen und die schönen, flexibleren Dinge auf später zu verschieben.
Fenster: die planunteren lassen sich nicht verschieben (Vorderseite Ansicht), die planoberen schon. Da wo die Terrasse ist kann das Fenster nur ein paar cm innerhalb des Terrassenbereichs verschoben werden. Das Fenster im Bad ist flexibel, Schlafzimmer 1 auch.
Mauer: die Idee zur Mauer entstand aus dem Eindruck dass das sofa so offen zum Raum steht dass es eventuell nicht gemütlich sein würde. Aber die Mauer ist bereits Geschichte
letzter Stand: ja, der letzte Stand gefällt mir immer noch recht gut. Ich finde die Küche an der Wand zu lang und würde die Hochschränke auf 3x60 beschränken (Geschirrspüler, Kühlschrank, Backofen), ohne Vorrat.
L-Form: die L-Form so wie von Yvonne vorgeschlagen, habe ich mit ausgeschnittenen Möbeln nachgestellt. Da habe ich gemerkt dass ich eine Max lange Zeile nicht so schön finde. Ein L ist auch so offen.
Gerade dachte ich dass ich das L eventuell auch in den Winkel Planungen rechts unterhalb des Leitungsschachts und links von Zimmer 2 probieren kann.
Wandlänge Ecke bis Fenster planoben. Die Rohbaumaße für die Ecken bis zum Terrassenfenster planeben sind jeweils 170cm Rohbaumaße rechts und links vom Fenster (ich kann kein Schlafzimmer auf meiner Tastatur. Blöd bei dem Wort...). Mein Sofa ist 160cm x 80 und könnte eventuell auch dort an der Wand stehen.
Heizung: ich will gerne Fußbodenheizung probieren. Je nach Aufpreis und den dazugehörigen Bodenbelägen würde ich das sehr gerne machen. Alleine schon um keine Heizkörper mehr im Raum unterbringen zu müssen.
Ich puzzel weiter. Ich habe jetzt einen massstabsgerechten Plan zur Hand an dem ich zumindest mit dem Lineal ein paar Grössenverhältnisse abschätzen kann. Das hilft auch schon.
Eure und deine Vorschläge haben mir viel Denkstoff mitgegeben. Ich habe lange mit ausgeschnittenen Möbeln auf Papier hin und her geschoben. Bis mir klar wurde dass ich auch ein paar Fakten vom Projektplaner benötige: was ist möglich, was kostet was?
Weiterhin habe ich inzwischen gemerkt dass mein Budgets für Extras schmaler ausfällt als gedacht (mein ursprünglicher Plan war meine heutige Wohnung zu verkaufen und damit die neue Wohnung zu bezahlen. Mit viel Gepuzzel hat sich ergeben dass ich "nur" 60k zufinanzien muss um meine heutige Wohnung zu behalten und langfristig Mieteinnahmen zu erzielen). Ich habe mich entschieden das zu probieren meine heutige Wohnung zu halten und muss deshalb bei den Extras knapsen. Die Finanzierung ist bis zu den ersten Mieteinnahmen auf Kante genäht.
Ich probiere natürlich, die strukturellen Extras doch bereits beim Bau einzubauen und die schönen, flexibleren Dinge auf später zu verschieben.
Fenster: die planunteren lassen sich nicht verschieben (Vorderseite Ansicht), die planoberen schon. Da wo die Terrasse ist kann das Fenster nur ein paar cm innerhalb des Terrassenbereichs verschoben werden. Das Fenster im Bad ist flexibel, Schlafzimmer 1 auch.
Mauer: die Idee zur Mauer entstand aus dem Eindruck dass das sofa so offen zum Raum steht dass es eventuell nicht gemütlich sein würde. Aber die Mauer ist bereits Geschichte
letzter Stand: ja, der letzte Stand gefällt mir immer noch recht gut. Ich finde die Küche an der Wand zu lang und würde die Hochschränke auf 3x60 beschränken (Geschirrspüler, Kühlschrank, Backofen), ohne Vorrat.
L-Form: die L-Form so wie von Yvonne vorgeschlagen, habe ich mit ausgeschnittenen Möbeln nachgestellt. Da habe ich gemerkt dass ich eine Max lange Zeile nicht so schön finde. Ein L ist auch so offen.
Gerade dachte ich dass ich das L eventuell auch in den Winkel Planungen rechts unterhalb des Leitungsschachts und links von Zimmer 2 probieren kann.
Wandlänge Ecke bis Fenster planoben. Die Rohbaumaße für die Ecken bis zum Terrassenfenster planeben sind jeweils 170cm Rohbaumaße rechts und links vom Fenster (ich kann kein Schlafzimmer auf meiner Tastatur. Blöd bei dem Wort...). Mein Sofa ist 160cm x 80 und könnte eventuell auch dort an der Wand stehen.
Heizung: ich will gerne Fußbodenheizung probieren. Je nach Aufpreis und den dazugehörigen Bodenbelägen würde ich das sehr gerne machen. Alleine schon um keine Heizkörper mehr im Raum unterbringen zu müssen.
Ich puzzel weiter. Ich habe jetzt einen massstabsgerechten Plan zur Hand an dem ich zumindest mit dem Lineal ein paar Grössenverhältnisse abschätzen kann. Das hilft auch schon.
@ypg .. die Fernsehvariante hatte ich anfangs auch noch ... In Form einer halbhohen Trennwand an der Kücheninsel (orange)

... war dann aber ganz froh, als die Aussage "TV-frei" kam ... das erschwert es nämlich wirklich
Oder halt doch Insel mit ca. 140 cm hoher Wand nach planlinks, damit dann keine echte Insel, aber die Küche optisch etwas abgetrennt und doch TV-Möglichkeit.
... war dann aber ganz froh, als die Aussage "TV-frei" kam ... das erschwert es nämlich wirklich
Oder halt doch Insel mit ca. 140 cm hoher Wand nach planlinks, damit dann keine echte Insel, aber die Küche optisch etwas abgetrennt und doch TV-Möglichkeit.
B
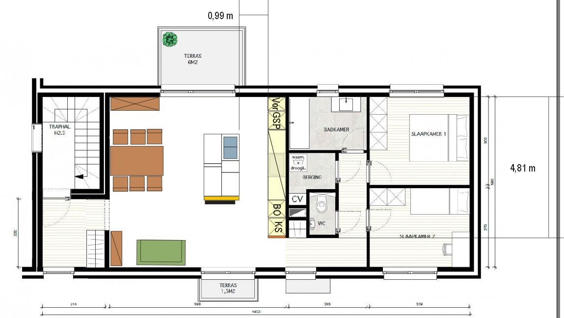
Bertram10007.08.17 15:47hier nur auf die Schnelle (bin auf dem Sprung zur Arbeit): ein vermasster Plan, Maßstabsgetreu. Leider sind nicht alle Abstände vermasst. Pff, Pappnasen. Aber immerhin kann man jetzt messen. Der interessante Abstand planoben links Ecke - Beginn Terrassenfenster ist 170 im Rohbaumaß. An der anderen Seite planoben rechts ebenso.
B
Bertram10007.08.17 15:50Zum Plan: die Küche war eine schnelle Idee des Projektplaners während unseres Gesprächs. Darum ist dort so ein sehr tiefer Vorratsschrank eingezeichnet. Die Idee habe ich schon verworfen, ist also nicht weiter wichtig.
Ähnliche Themen