Hallo zusammen,
wir haben jetzt endlich unser Grundstückchen gefunden und sind schon fleißig am planen.
Nachdem ich mir hier im Forum schon so viele Ideen und Anregungen geholt habe und gerade hier im Grundriss-Bereich so viele wertvolle Tipps gegeben werden, wollte ich jetzt auch mal von Eurer Erfahrung Gebrauch machen.
Bebauungsplan/Einschränkungen
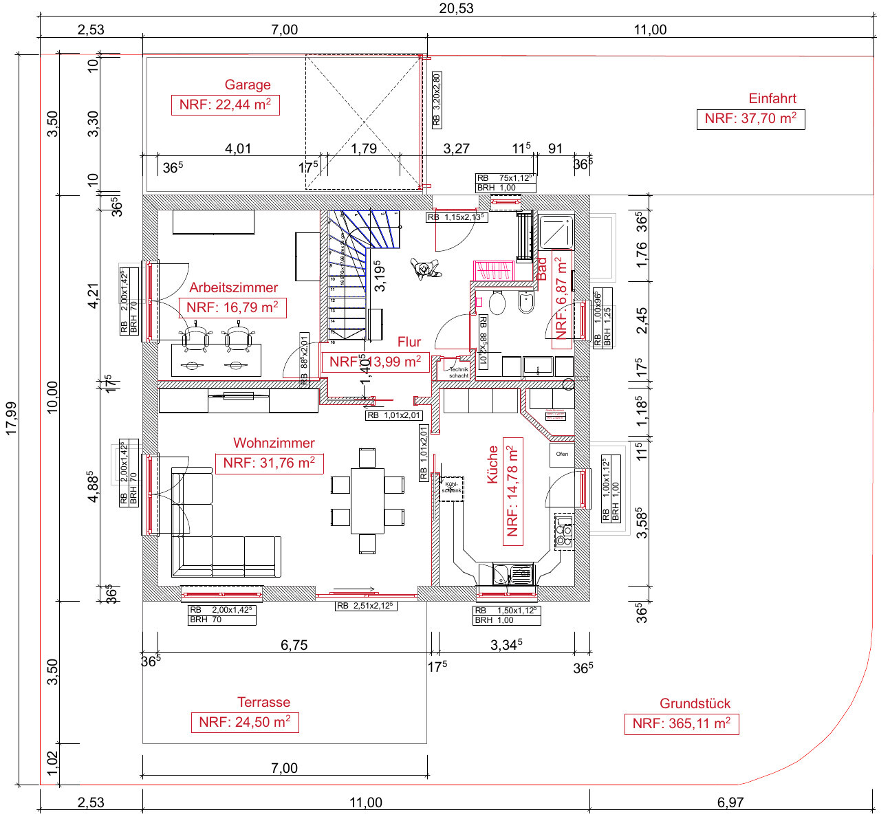
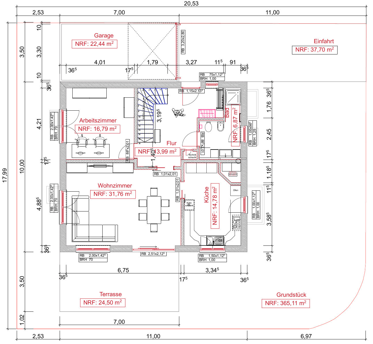
Größe des Grundstücks: 365m2
Hang: Ja (Norden am höchsten, Süden am niedrigsten, im Baufenster ca. 1m Abfall von N nach S, über das ganze Grundstück 1.5m)
Grundflächenzahl: 0.3
Geschossflächenzahl: -
Baufenster, Baulinie und -grenze: ca. 10 x 11 m, Vorgabe für Garage + Carport Lage siehe Plan
Randbebauung: Nein
Anzahl Stellplatz: 1 Garage, 1 Stellplatz davor
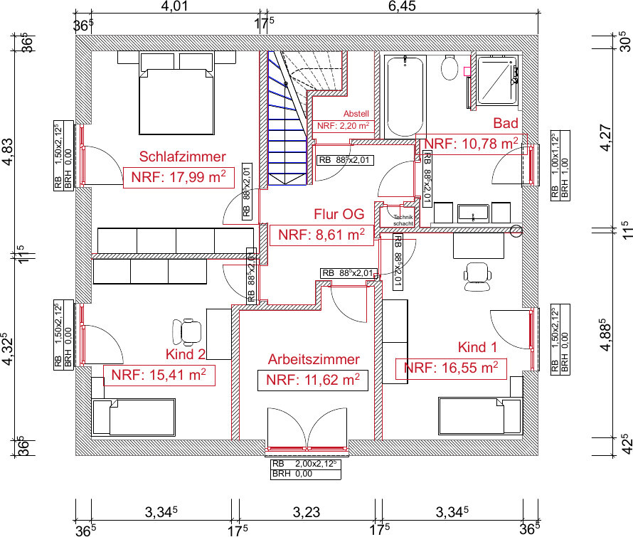
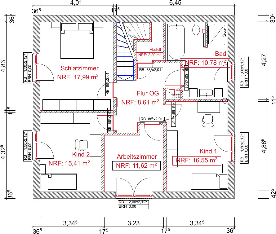
Geschossigkeit: Keller, Erdgeschoss, Obergeschoss mit Kniestock bei ca. 125cm
Dachform: Satteldach, Dachneigung 35-40°
Stilrichtung: ?
Ausrichtung: Firstrichtung von O nach W (siehe Plan)
Maximale Höhen/Begrenzungen: FH Max. 9.00m, TH Max. 4.50
weitere Vorgaben
Anforderungen der Bauherren
Stilrichtung, Dachform, Gebäudetyp: Massivhaus, Satteldach, Einfamilienhaus
Keller, Geschosse: KG, EG, OG
Anzahl der Personen, Alter: 2 Erwachsene, 2 Kinder geplant
Raumbedarf im EG, OG:
Schlafgäste pro Jahr: 4
offene oder geschlossene Architektur: eher offen
konservativ oder moderne Bauweise: konservativ
offene Küche, Kochinsel: geschlossene Küche
Anzahl Essplätze: 6
Kamin: Nein
Musik/Stereowand: nein
Balkon, Dachterrasse: nein
Garage, Carport: 1 Garagenstellplatz und 1 Stellplatz davor
Nutzgarten, Treibhaus: nein
weitere Wünsche/Besonderheiten/Tagesablauf, gern auch Begründungen, warum dieses oder das nicht sein soll:
Von wem stammt die Planung: Planer eines Bauunternehmens / eigene Zeichnung
Was gefällt besonders? Aufteilung generell in Ordnung, alles Gewünschte untergebracht
Was gefällt nicht?
Persönliches Preislimit fürs Haus, inkl Ausstattung: 450k
favorisierte Heiztechnik: Warmwasserpumpe und Photovoltaik auf dem Dach
Wenn Ihr verzichten müsst, auf welche Details/Ausbauten
-könnt Ihr verzichten:
-könnt Ihr nicht verzichten: Keller, Anzahl der Räume
Warum ist der Entwurf so geworden, wie er jetzt ist?
Verschiedene Planungen von Bauträgern und eigene Ideen
Was ist die wichtigste/grundlegende Frage zum Grundriss in 130 Zeichen zusammengefasst?
Falls noch Fragen sind bitte einfach schreiben. Recht herzlichen Dank schon mal vorab!








wir haben jetzt endlich unser Grundstückchen gefunden und sind schon fleißig am planen.
Nachdem ich mir hier im Forum schon so viele Ideen und Anregungen geholt habe und gerade hier im Grundriss-Bereich so viele wertvolle Tipps gegeben werden, wollte ich jetzt auch mal von Eurer Erfahrung Gebrauch machen.
Bebauungsplan/Einschränkungen
Größe des Grundstücks: 365m2
Hang: Ja (Norden am höchsten, Süden am niedrigsten, im Baufenster ca. 1m Abfall von N nach S, über das ganze Grundstück 1.5m)
Grundflächenzahl: 0.3
Geschossflächenzahl: -
Baufenster, Baulinie und -grenze: ca. 10 x 11 m, Vorgabe für Garage + Carport Lage siehe Plan
Randbebauung: Nein
Anzahl Stellplatz: 1 Garage, 1 Stellplatz davor
Geschossigkeit: Keller, Erdgeschoss, Obergeschoss mit Kniestock bei ca. 125cm
Dachform: Satteldach, Dachneigung 35-40°
Stilrichtung: ?
Ausrichtung: Firstrichtung von O nach W (siehe Plan)
Maximale Höhen/Begrenzungen: FH Max. 9.00m, TH Max. 4.50
weitere Vorgaben
Anforderungen der Bauherren
Stilrichtung, Dachform, Gebäudetyp: Massivhaus, Satteldach, Einfamilienhaus
Keller, Geschosse: KG, EG, OG
Anzahl der Personen, Alter: 2 Erwachsene, 2 Kinder geplant
Raumbedarf im EG, OG:
- EG: Wohnzimmer, Küche, Bad mit Dusche+WC, Arbeitszimmer
- OG: Schlafzimmer, 2 Kinderzimmer, Arbeitszimmer, Bad
Schlafgäste pro Jahr: 4
offene oder geschlossene Architektur: eher offen
konservativ oder moderne Bauweise: konservativ
offene Küche, Kochinsel: geschlossene Küche
Anzahl Essplätze: 6
Kamin: Nein
Musik/Stereowand: nein
Balkon, Dachterrasse: nein
Garage, Carport: 1 Garagenstellplatz und 1 Stellplatz davor
Nutzgarten, Treibhaus: nein
weitere Wünsche/Besonderheiten/Tagesablauf, gern auch Begründungen, warum dieses oder das nicht sein soll:
- im OG Zwerchgiebel oder Schleppgaube nach Süden
- Treppe soll gut zu gehen sein, nicht zu viele dreieckige Stufen
- Das untere Arbeitszimmer, soll im Alter auch als Schlafzimmer nutzbar sein um die Möglichkeit zu haben auf einer Ebene zu leben
- EG-Bad sollte deshalb auch Platz für eine Waschmaschine haben
- Das Haus soll eine KNX Installation bekommen, deshalb soll ein Elektro-Technikschacht vorgesehen werden
- Wäscheabwurfschacht mit Klappe aus beiden Bädern
- Terrasse soll nach vorne aufgeschüttet werden
- Einzelgarage mit min. 3.5 x 7 m
- Regenwasserzisterne für Gartenbewässerung
Von wem stammt die Planung: Planer eines Bauunternehmens / eigene Zeichnung
Was gefällt besonders? Aufteilung generell in Ordnung, alles Gewünschte untergebracht
Was gefällt nicht?
- Eingangstüre so nahe bei Garage
- Lage Garage aufgrund Bebauungsplan, wir würden die gerne nach hinten schieben
- EG: Eingangsbereich / Treppe / Flur / Technik-Schacht Zusammenspiel
Persönliches Preislimit fürs Haus, inkl Ausstattung: 450k
favorisierte Heiztechnik: Warmwasserpumpe und Photovoltaik auf dem Dach
Wenn Ihr verzichten müsst, auf welche Details/Ausbauten
-könnt Ihr verzichten:
-könnt Ihr nicht verzichten: Keller, Anzahl der Räume
Warum ist der Entwurf so geworden, wie er jetzt ist?
Verschiedene Planungen von Bauträgern und eigene Ideen
Was ist die wichtigste/grundlegende Frage zum Grundriss in 130 Zeichen zusammengefasst?
- Hat noch jemand Anmerkungen zur Planung?
- Verbesserung Eingangsbereich EG: Diele/Treppe/Technik-Schacht und Bad ?
- Sonstige Verbesserungsvorschläge?
Falls noch Fragen sind bitte einfach schreiben. Recht herzlichen Dank schon mal vorab!
Ich find das schon ganz nett.
Das OG ist ein bissl zu "eckig". Prüf doch mal, wie viel Stufen Du überbauen kannst, so dass noch ca. 2,10m Kopffreiheit für den Treppenaufgang bleiben. Entsprechend die Wand vom Abstell versetzen. Die Klappe für die Technik sollte in den Flur versetzt werden und entsprechend die ganze Wand vom Bad gerade gezogen. Die Wand vom Arbeitszimmer würde ich auch begradigen. Im Bad würd ich das Fenster genauso groß machen, wie nebenan.
Die Speisekammer in der Küche find ich zu klein und deshalb Quark. Das Gäste-WC würde ich vermutlich zu Gunsten der Garderobe noch etwas verkleinern.
Dem Arbeitszimmer würd ich noch ein Fenster gönnen.
Ansonsten recht knuffig.
Das OG ist ein bissl zu "eckig". Prüf doch mal, wie viel Stufen Du überbauen kannst, so dass noch ca. 2,10m Kopffreiheit für den Treppenaufgang bleiben. Entsprechend die Wand vom Abstell versetzen. Die Klappe für die Technik sollte in den Flur versetzt werden und entsprechend die ganze Wand vom Bad gerade gezogen. Die Wand vom Arbeitszimmer würde ich auch begradigen. Im Bad würd ich das Fenster genauso groß machen, wie nebenan.
Die Speisekammer in der Küche find ich zu klein und deshalb Quark. Das Gäste-WC würde ich vermutlich zu Gunsten der Garderobe noch etwas verkleinern.
Dem Arbeitszimmer würd ich noch ein Fenster gönnen.
Ansonsten recht knuffig.
Wie viel m2 sind es denn? Mal grob überschlagen mit den angegebenen Raumgrößen bist du jenseits von 200 m2.
In BW musst bei leicht gehobener Ausstattung mit min 2500€ pro m2 rechnen. Hinzu kommen Garage, Außenanlage, Baunebenkosten und Ausstattung.
Ist gerade total verrückt. Wir sind aktuell kurz vor dem Baustart und es liegen aktuelle Angebote vor.
Auf den ersten Blick passt das Budget nicht.
Wenn du KNX richtig machst und nicht nur um das Licht per Handy zu schalten wird es teurer da du einige Sensoren, Programmierung bzw. Software...benötigst.
Ausreichend LAN-Verkabelung einplanen. Vor allem an den Decken für die APs.
In BW musst bei leicht gehobener Ausstattung mit min 2500€ pro m2 rechnen. Hinzu kommen Garage, Außenanlage, Baunebenkosten und Ausstattung.
Ist gerade total verrückt. Wir sind aktuell kurz vor dem Baustart und es liegen aktuelle Angebote vor.
Auf den ersten Blick passt das Budget nicht.
Wenn du KNX richtig machst und nicht nur um das Licht per Handy zu schalten wird es teurer da du einige Sensoren, Programmierung bzw. Software...benötigst.
Ausreichend LAN-Verkabelung einplanen. Vor allem an den Decken für die APs.
M
Mottenhausen31.03.19 20:29Auch auf die Gefahr hin, dass ich schon wieder falsch liege:
Grundflächenzahl 0,3 ergeben bei euch knapp 110qm, also eure Hausgrundfläche. Garage, Einfahrt, Terrasse? Apropos Terrasse, die benötigt auch Grenzabstand, da passt die Animation also nicht so ganz.
Grundflächenzahl 0,3 ergeben bei euch knapp 110qm, also eure Hausgrundfläche. Garage, Einfahrt, Terrasse? Apropos Terrasse, die benötigt auch Grenzabstand, da passt die Animation also nicht so ganz.
Mottenhausen schrieb:
Auch auf die Gefahr hin, dass ich schon wieder falsch liege:
Grundflächenzahl 0,3 ergeben bei euch knapp 110qm, also eure Hausgrundfläche. Garage, Einfahrt, Terrasse? Apropos Terrasse, die benötigt auch Grenzabstand, da passt die Animation also nicht so ganz.Normal kann man die Grundflächenzahl bis zu 100%, aber nur bis 0,8 mit Nebenanlagen überbauen.
Terrasse gehört normal (wie das obige normal) zum Hauptgebäude, Grundflächenzahl ist also um genau diese Terrassenfläche zu viel überbaut.
Und normal muss sie auch die Abstandsfläche einhalten.
Normal heißt: wenn es anders ist, steht’s in der Landesbauordnung bzw im Bebauungsplan.
Davon abgesehen, stimme ich dem zu:
- Speis stört
- WC ist die Dusche mit dem RBM nicht barrierefrei
- Küche ist tatsächlich kein Highlight, eher ein Nachbau 80er-Jahre-Küchen
- Wand AZ/K2 begradigen
Ich denk mal, dass hier der Original-Bebauungsplan interessant sein könnte
Mir scheint die Grenzgarage zu viel Wandhöhe zu haben.
https://www.instagram.com/11antgmxde/
https://www.linkedin.com/company/bauen-jetzt/
https://www.instagram.com/11antgmxde/
https://www.linkedin.com/company/bauen-jetzt/
Ähnliche Themen