Chrisi1906 schrieb:
So ein Doppelflügelfenster kostet aber auch recht viel.Ihr gebt so viel Geld für eine riesige Grundfläche aus, die vielleicht nicht an allen Stellen benötigt wird, da gibt es sicher wichtigere Dinge wie Doppelflügelfenster.C
Chrisi190612.05.20 09:50chrisw81 schrieb:
Ihr gebt so viel Geld für eine riesige Grundfläche aus, die vielleicht nicht an allen Stellen benötigt wird, da gibt es sicher wichtigere Dinge wie Doppelflügelfenster.Ja, da hast du recht. Ich glaube es ist schlimmer wenn man am Ende merkt das man viel Geld ausgeben hat und trotzdem in Teilen nicht zufrieden ist.
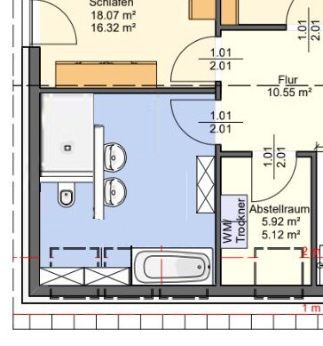
Wenn Du an die Badplanung gehst: Du stehst ja nicht so auf Fenster und Einblicke von Seiten der Nachbarn, hast aber ein bodentiefes Fenster Richtung östlichem Nachbarn im Badezimmer. Da würde es selbst mich stören Ich würde hier mit zwei großen (!) Dachflächenfenstern arbeiten und darunter eine schöne freistehende Wanne mit Blick in die Sterne stellen. Bringt viel Licht und Dich sieht keiner!
Chrisi1906 schrieb:
Die Antwort reicht mir nicht.Dann mußt Du Dich an Ranga Yogeshwar wenden, Hoimar von Ditfurth ist leider schon tot.Chrisi1906 schrieb:
Ich sehe aktuell kein Problem mit Legionellen.Niemand sagt, daß Du Dich mit dieser Leitungslänge unausweichlich vergiftest - aber potenziell würdest Du im gezeigten Langleitungsbad bei jedem Zähneputzen nur abgestandenes Wasser nachzapfen.https://www.instagram.com/11antgmxde/
https://www.linkedin.com/company/bauen-jetzt/
C
Chrisi190612.05.20 17:01Würfel* schrieb:
Hier mal eine schnelle Idee mit 3 angedeuteten Dachflächenfenstern. Freistehende Wanne passt gar nicht. Dusche ca. 120 x 180, Wanne ca. 180 x 90. Das ist alles nicht übergroß und schon ist das Bad "voll". Was dein GU da eingezeichnet hat, war ja winzig.

Danke. Da sieht man das es doch kein Tanzsaal ist.
Ähnliche Themen