Hallo Zusammen,
da es unser erster Post ist, stellen wir uns doch einfach mal kurz vor. Wir sind ein junges Paar von 29 Jahren und wohnen seit 8 Jahren zusammen in Mietwohnungen. Da wir beruflich nun endlich sesshaft werden konnten haben wir über den Kauf eines Grundstückes und Bau eines Hauses nachgedacht und konnten uns mit dem Gedanken gut anfreunden.
Wir haben jetzt auch ein schönes Grundstück gefunden, welches leider Bauträgergebunden ist. Da es sehr schwer ist Grundstücke zu finden, haben wir uns dennoch ein Angebot eingeholt. Als Vorgabe haben wir ihm ein Preislimit vom 450.000 Euro (inklusive nebenkosten) gesetzt. Das Angebot lag jedoch bei 407.000 Euro ohne Nebenkosten. Die Bauleistungsbeschreibung ist auch nicht völlig zufriedenstellend, sodass auch noch Mehrkosten in Höhe von 20.000 Euro auf uns zu kämen. Mit Nebenkosten und Außenanlage etc. (ich hoffe ich habe nichts vergessen und großzügig gerechnet) kämen wir auf 520.000 Euro was leider deutlich zu viel ist.
An sich sind wir mit dem Entwurf halbwegs zufrieden, bloß wir werden uns Einschränken müssen, um die Kosten zu senken. Unsere Anforderungen an Quadratmeter und Ausstattung habe ich unten aufgeführt.
Wir sind auf euere Meinungen gespannt und wünschen ein schönes Wochenende.
Liebe Grüße aus OStwestfalen
Bebauungsplan/Einschränkungen
Größe des Grundstücks 478m²
Hang nein
Grundflächenzahl 0,4
Geschossflächenzahl 0,8
Baufenster, Baulinie und -grenze
Randbebauung
Anzahl Stellplatz
Geschossigkeit 2
Dachform Satteldach
Stilrichtung
Ausrichtung
Maximale Höhen/Begrenzungen - max Traufhöhe 4,80m, Firsthöhe 11m
weitere Vorgaben
Anforderungen der Bauherren
Stilrichtung, Dachform, Gebäudetyp Satteldach, modern
Keller, Geschosse kein Keller, 2 Geschosse
Anzahl der Personen, Alter Paar (29 Jahre alt) + geplante 2 Kinder
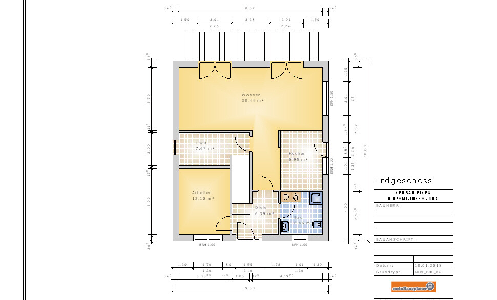
Raumbedarf im EG, OG EG: 65m² ohne Flur OG 58m² ohne Flur
Büro: Familiennutzung oder Homeoffice? nur Familie
Schlafgäste pro Jahr 1-2
offene oder geschlossene Architektur gerne großer offener Wohn-Essbereich mit Teiloffener Küche
konservativ oder moderne Bauweise gerne modern
offene Küche, Kochinsel - wäre schön, aber nicht notwendig
Anzahl Essplätze - ein Essplatz für 6-8 Personen
Kamin - nein
Musik/Stereowand - nein
Balkon, Dachterrasse - nein
Garage, Carport - Doppelgarage mit Abstellraum
Nutzgarten, Treibhaus - nein
weitere Wünsche/Besonderheiten/Tagesablauf, gern auch Begründungen, warum dieses oder das nicht sein soll
Hausentwurf
Von wem stammt die Planung:
Bauträger / Architekt
Was gefällt besonders: Garage und Wohn- / Essbereich und großer Hauswirtschaftsraum
Was gefällt nicht: Kinderzimmer oben etwas zu klein, Bad zu groß, Sauna nicht erforderlich. Treppe direkt im Bereich der Hauseingangstür
Preisschätzung lt Architekt/Planer: 300.000 Euro + Grundstück
Persönliches Preislimit fürs Haus, inkl Ausstattung: ca. 250.000
favorisierte Heiztechnik: Gas
Wenn Ihr verzichten müsst, auf welche Details/Ausbauten
-könnt Ihr verzichten: Ankleidezimmer, Garage dafür dann jedoch Doppelcarport
-könnt Ihr nicht verzichten: großer Wohn-Essraum, Gäste-Wc mit Dusche, Arbeits- /Gästezimmer
Warum ist der Entwurf so geworden, wie er jetzt ist? ZB
Standardentwurf vom Planer, Wir würden gerne den Erker an die Nordseite setzen.
Was ist die wichtigste/grundlegende Frage zum Grundriss in 130 Zeichen zusammengefasst?
Unsere Vorstellung war:
- Einfamilienhaus
- OG: 3 Schlafzimmern (15 - 18 m²) + Bad (ca. 10m²) 55 - 64m²
- EG: kleines Duschbad (4m²), Hauswirtschaftsraum (ca. 10m²), Wohn-Essbereich (ca. 30m²), Küche (ca. 10m²), Büro- / Gästezimmer (8m²) = 62m²
117-126 m² ohne Flur / Windfang etc. da wissen wir leider nicht, wieviel man einrechnen muss.
- Doppelgarage mit Eingang in Hauswirtschaftsraum ( wäre ein Traum, aber kein Muss)
Unser Limit mit allen Nebenkosten waren 450.000 Euro - das Grundstück kostet 130.000 Euro. Das Grundstück besitzt Bauträgerbindung.
Wir sind gespannt auf eure Meinungen.



da es unser erster Post ist, stellen wir uns doch einfach mal kurz vor. Wir sind ein junges Paar von 29 Jahren und wohnen seit 8 Jahren zusammen in Mietwohnungen. Da wir beruflich nun endlich sesshaft werden konnten haben wir über den Kauf eines Grundstückes und Bau eines Hauses nachgedacht und konnten uns mit dem Gedanken gut anfreunden.
Wir haben jetzt auch ein schönes Grundstück gefunden, welches leider Bauträgergebunden ist. Da es sehr schwer ist Grundstücke zu finden, haben wir uns dennoch ein Angebot eingeholt. Als Vorgabe haben wir ihm ein Preislimit vom 450.000 Euro (inklusive nebenkosten) gesetzt. Das Angebot lag jedoch bei 407.000 Euro ohne Nebenkosten. Die Bauleistungsbeschreibung ist auch nicht völlig zufriedenstellend, sodass auch noch Mehrkosten in Höhe von 20.000 Euro auf uns zu kämen. Mit Nebenkosten und Außenanlage etc. (ich hoffe ich habe nichts vergessen und großzügig gerechnet) kämen wir auf 520.000 Euro was leider deutlich zu viel ist.
An sich sind wir mit dem Entwurf halbwegs zufrieden, bloß wir werden uns Einschränken müssen, um die Kosten zu senken. Unsere Anforderungen an Quadratmeter und Ausstattung habe ich unten aufgeführt.
Wir sind auf euere Meinungen gespannt und wünschen ein schönes Wochenende.
Liebe Grüße aus OStwestfalen
Bebauungsplan/Einschränkungen
Größe des Grundstücks 478m²
Hang nein
Grundflächenzahl 0,4
Geschossflächenzahl 0,8
Baufenster, Baulinie und -grenze
Randbebauung
Anzahl Stellplatz
Geschossigkeit 2
Dachform Satteldach
Stilrichtung
Ausrichtung
Maximale Höhen/Begrenzungen - max Traufhöhe 4,80m, Firsthöhe 11m
weitere Vorgaben
Anforderungen der Bauherren
Stilrichtung, Dachform, Gebäudetyp Satteldach, modern
Keller, Geschosse kein Keller, 2 Geschosse
Anzahl der Personen, Alter Paar (29 Jahre alt) + geplante 2 Kinder
Raumbedarf im EG, OG EG: 65m² ohne Flur OG 58m² ohne Flur
Büro: Familiennutzung oder Homeoffice? nur Familie
Schlafgäste pro Jahr 1-2
offene oder geschlossene Architektur gerne großer offener Wohn-Essbereich mit Teiloffener Küche
konservativ oder moderne Bauweise gerne modern
offene Küche, Kochinsel - wäre schön, aber nicht notwendig
Anzahl Essplätze - ein Essplatz für 6-8 Personen
Kamin - nein
Musik/Stereowand - nein
Balkon, Dachterrasse - nein
Garage, Carport - Doppelgarage mit Abstellraum
Nutzgarten, Treibhaus - nein
weitere Wünsche/Besonderheiten/Tagesablauf, gern auch Begründungen, warum dieses oder das nicht sein soll
Hausentwurf
Von wem stammt die Planung:
Bauträger / Architekt
Was gefällt besonders: Garage und Wohn- / Essbereich und großer Hauswirtschaftsraum
Was gefällt nicht: Kinderzimmer oben etwas zu klein, Bad zu groß, Sauna nicht erforderlich. Treppe direkt im Bereich der Hauseingangstür
Preisschätzung lt Architekt/Planer: 300.000 Euro + Grundstück
Persönliches Preislimit fürs Haus, inkl Ausstattung: ca. 250.000
favorisierte Heiztechnik: Gas
Wenn Ihr verzichten müsst, auf welche Details/Ausbauten
-könnt Ihr verzichten: Ankleidezimmer, Garage dafür dann jedoch Doppelcarport
-könnt Ihr nicht verzichten: großer Wohn-Essraum, Gäste-Wc mit Dusche, Arbeits- /Gästezimmer
Warum ist der Entwurf so geworden, wie er jetzt ist? ZB
Standardentwurf vom Planer, Wir würden gerne den Erker an die Nordseite setzen.
Was ist die wichtigste/grundlegende Frage zum Grundriss in 130 Zeichen zusammengefasst?
Unsere Vorstellung war:
- Einfamilienhaus
- OG: 3 Schlafzimmern (15 - 18 m²) + Bad (ca. 10m²) 55 - 64m²
- EG: kleines Duschbad (4m²), Hauswirtschaftsraum (ca. 10m²), Wohn-Essbereich (ca. 30m²), Küche (ca. 10m²), Büro- / Gästezimmer (8m²) = 62m²
117-126 m² ohne Flur / Windfang etc. da wissen wir leider nicht, wieviel man einrechnen muss.
- Doppelgarage mit Eingang in Hauswirtschaftsraum ( wäre ein Traum, aber kein Muss)
Unser Limit mit allen Nebenkosten waren 450.000 Euro - das Grundstück kostet 130.000 Euro. Das Grundstück besitzt Bauträgerbindung.
Wir sind gespannt auf eure Meinungen.
Warum ist das Grundstück so teuer? und dann soll ein Haus darauf gebaut werden, das unter 300.000 kostet? passt nicht so ganz finde ich! kenn jetzt die Baukosten bei euch nicht, aber unter 300.000 wird denke ich nur mit viel Eigenleistung irgendwie machbar sein.
Den Entwurf finde ich persönlich wirklich nicht verkehrt. Persönliche Bedürfnisse kann hier keiner beurteilen ob der Grundriss zu euch passt, aber finde die Aufteilung sinnvoll und gute Raumgrößen.
Den Entwurf finde ich persönlich wirklich nicht verkehrt. Persönliche Bedürfnisse kann hier keiner beurteilen ob der Grundriss zu euch passt, aber finde die Aufteilung sinnvoll und gute Raumgrößen.
Vielen Dank für eure Meinungen.
Wir haben gedacht, dass wir vielleicht Hauswirtschaftsraum und Büro kleiner setzen und oben ankleide weglassen und Bad ebenfalls auf 10 qm2 verkleinern.
Zudem überlegen wir anstelle einer Doppelgarage (31000€) vielleicht auf ein Doppelcarport für 15.000€ zu setzen.
Wieviel Quadratmeter sind denn für einen Hauswirtschaftsraum in einem Einfamilienhaus ohne Keller sinnvoll?
Wir haben gedacht, dass wir vielleicht Hauswirtschaftsraum und Büro kleiner setzen und oben ankleide weglassen und Bad ebenfalls auf 10 qm2 verkleinern.
Zudem überlegen wir anstelle einer Doppelgarage (31000€) vielleicht auf ein Doppelcarport für 15.000€ zu setzen.
Wieviel Quadratmeter sind denn für einen Hauswirtschaftsraum in einem Einfamilienhaus ohne Keller sinnvoll?
Ich kann mir einen Hauswirtschaftsraum, in dem Haustechnik und Waschmaschine stehen sollen, nicht unter 8qm vorstellen. Hab aber auch nicht so die Erfahrung...
Ohne Keller würde ich wohl auch kein Carport nehmen, zumal wenn der Hauswirtschaftsraum unter 10qm haben soll, man ja irgendwo noch Platz zum trockenen Verstauen braucht. Dann lieber eine Fertiggarage.
Ohne Keller würde ich wohl auch kein Carport nehmen, zumal wenn der Hauswirtschaftsraum unter 10qm haben soll, man ja irgendwo noch Platz zum trockenen Verstauen braucht. Dann lieber eine Fertiggarage.
kaho674 schrieb:
Finde es reichlich sinnfrei über einen Grundriss zu diskutieren, der so weit außerhalb des Budgets liegt.So ist es, und dann ist es ja gut, daß ...loxor schrieb:
haben wir über den Kauf eines Grundstückes und Bau eines Hauses nachgedacht und konnten uns mit dem Gedanken gut anfreunden.
Wir haben jetzt auch ein schönes Grundstück gefunden, welches leider Bauträgergebunden ist.... über den Kauf bislang nur nachgedacht wird. Und da sollte dieser Film dann auch schon enden, denn: ein Bauträger plant typischerweise mit einem Standard, der kaum noch senkbar ist, ohne das Haus zur Baracke downzugraden. Das bedeutet praktisch: Einsparungen gehen nur mit dem Hebel "Haus verkleinern", solange sich keine Mustnichthaves wie Erker, Galerien und (denn "oder" reicht da nicht) Drittbäder danach drängeln, auf die Streichliste zu kommen. Mit billigerem Putz in der Abstellkammer schafft man so hohe Einsparziele nimmer.Bauträgerbindung ist nicht ganz so übel wie Dioxinfässer im Boden, aber m.E. dennoch ein unterschätzter guter Grund zum Weitersuchen, wenn der einem nicht zufällig das Traumhaus kredenzt. Bauträger leben von Geschäften mit Leuten, denen Variante 08/15 spätestens in Version B wie angegossen paßt.
https://www.instagram.com/11antgmxde/
https://www.linkedin.com/company/bauen-jetzt/
Ähnliche Themen