ᐅ Einfamilienhaus 172qm, Fragen zum Schnitt, Dachstuhl und Klinker
Erstellt am: 28.03.18 08:59
S
spochtsfreundspochtsfreund schrieb:
Bei dem Flur habt ihr sicherlich recht, allerdings kannst du bei unserer Variante dann mal fast unbekleidet zum Gästebad nach unten gehen, ohne von der Haustür aus gesehen zu werden.Also ich geh regelmäßig unbekleidet durch mein ganzes Haus. Sollte ich mir Gedanken machen? spochtsfreund schrieb:
Bei der Grenzbebauung mag ich persönlich einfach nicht ungenutzten Raum an den Seiten, zudem wirkt das Haus dadurch in meinen Augen nicht so klobig, aber auch da sind Geschmäcker echt verschieden.Schade. Ich find gerade den ungenutzten Raum wichtig. Wäre eine Chance für Kletterrosen oder Büsche, das ganze einzurahmen.Ja so ein Giebel ist echt mega! Stell ich mir aber auch nicht gerade als Schnapp vor...
Von Velux gibt es Tageslicht-Spots - vielleicht ne günstigere Alternative?! (ohne zu wissen, was sowas kostet...)
Klinker ist jetzt auch nicht wirklich mein Favorite aber das Haus gefällt mir super!
Alles, was keine Stadtvilla ist, ist mir immer SEHR sympathisch!
Von Velux gibt es Tageslicht-Spots - vielleicht ne günstigere Alternative?! (ohne zu wissen, was sowas kostet...)
Klinker ist jetzt auch nicht wirklich mein Favorite aber das Haus gefällt mir super!
Alles, was keine Stadtvilla ist, ist mir immer SEHR sympathisch!
S
spochtsfreund29.03.18 10:42Die Veluxfenster bzw. Lichtkamine sind auch ne Überlegung, aber meine Frau hat sich aktuell in den Kopf gesetzt das ganze offener zu gestalten. Wobei das sicherlich eine Sache des Geldes ist. Wenn wir Zahlen auf dem Tisch haben, entscheiden wir das dann.
Danke, dass wir aber auch Klinkergegner ein wenig von Klinker überzeugen können
Danke, dass wir aber auch Klinkergegner ein wenig von Klinker überzeugen können
S
spochtsfreund07.04.18 22:25Hallo zusammen,
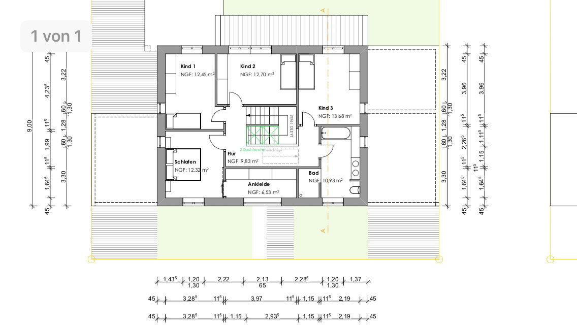
Dank auch einiger Tipps von euch, ist dies jetzt unser finaler Entwurf. Die Skizze zeigt eine Möglichkeit für den Dachboden, so dass wir sowohl Stellfläche, als auch eine Fläche für die Kinder bekommen. Der Lichtschacht würde auch eingeplant, Fenster lassen sich natürlich nur mit einer großen Leiter putzen, aber das wird schon. Als Klinker haben wir uns für den Deppe DF 1622ek entschieden.
Unser Architekt hat das ganze gute Stück in KFW55 auf 340000€ geschätzt. Ich bin gespannt, wie viel es wirklich wird.
Also noch mal Danke und ich werd sicher hier noch mal das ein oder andere erfragen oder bei Interesse auch einfach mal berichten.
LG
Henning








Dank auch einiger Tipps von euch, ist dies jetzt unser finaler Entwurf. Die Skizze zeigt eine Möglichkeit für den Dachboden, so dass wir sowohl Stellfläche, als auch eine Fläche für die Kinder bekommen. Der Lichtschacht würde auch eingeplant, Fenster lassen sich natürlich nur mit einer großen Leiter putzen, aber das wird schon. Als Klinker haben wir uns für den Deppe DF 1622ek entschieden.
Unser Architekt hat das ganze gute Stück in KFW55 auf 340000€ geschätzt. Ich bin gespannt, wie viel es wirklich wird.
Also noch mal Danke und ich werd sicher hier noch mal das ein oder andere erfragen oder bei Interesse auch einfach mal berichten.
LG
Henning
spochtsfreund schrieb:
oder bei Interesse auch einfach mal berichten.Wir erwarten natürlich, auch später im Hausbilder-Thread auf dem Laufenden gehalten zu werden https://www.instagram.com/11antgmxde/
https://www.linkedin.com/company/bauen-jetzt/
Ähnliche Themen