Deutsche Reihenhaus Erfahrungen - 145 m2 Familienglück im Ruhrpott

4,90 Stern(e) 30 Votes
Zuletzt aktualisiert 23.11.2025
Sie befinden sich auf der Seite 2 der Diskussion zum Thema: Deutsche Reihenhaus Erfahrungen - 145 m2 Familienglück im Ruhrpott
>> Zum 1. Beitrag <<

11ant

11ant

Die Deutsche Reihenhaus arbeite viel mit Farbe und das lockert doch deutlich auf.
Oh ja, das ist eine Wohltat und sehr praktisch: weiß UND anthrazit UND Reihenhaus ist normalerweise schon an der Grenze zur bedenklichen Überdosis Nullachtfuffzehn; und mit verschiedenfarbigen Häusern finden die Kinder nach dem Spielen ihr Elternhaus auch wieder, ohne schon Hausnummerzahlen lesen können zu müssen.
Wieso würdest Du nicht mischen? Wir haben von 7 Bauherren und -Damen keinen kennen gelernt, der das Komplettpaket genommen hätte.
Ich würde v.a. deshalb normalerweise nicht mischen, weil u.a. Schlitzen im Wandtafelbau nichttrivial ist; Systembauweisen mit Einzelvergaben zu kreuzen, bringt üblicherweise wenig Freude. Wenn Ihr jedoch schon erfahrene Veteranen solcher Schlachten kennt, ist das etwas anderes - und wenn es quasi zum Konzept des Anbieters gehört, Angebote zu machen die man in Teilen gerne ablehnt, dann natürlich erst recht.
 
M

minimini

Ah - verstehe & stimme voll zu! Derlei ist bei uns nicht vorgesehen. Wir wollen z.B. die Bäder in genau dem Layout wie es die Deutsche Reihenhaus anbietet, nur eben nicht mit den Fliesen und dem waschtisch und drei mal nicht dem Spiegel. Versetzen von Leitungen ist hier nicht trivial, dessen muss man sich bewusst sein. Wer sich im Haus nochmal komplett selbst verwirklichen will, ist hier falsch.

Und ja, es macht total Sinn, sich auf die Suche zu begeben und ggf in der Nachbarstadt dreist am Zaun zu fragen wer das Bad oder die Böden oder weiß der Geier gemacht hat. Wenn man nett ist, darf man oft sogar mal gucken ;-)

Es ist bei der Deutsche Reihenhaus halt Vor- und Nachteil zugleich, dass die absoluten Standard bauen. Wir nehmen die Nachteile in Kauf bzw. überwiegt für uns die gefühlte Sicherheit und insbesondere Kostentransparenz. Außerdem würde ich mir selbst in die Tasche lügen, wenn nicht die Lage bei Schwiegers auch von Vorteil für uns ist :-D
Wenn es in 15 Jahren nicht mehr passt, kann man neu denken.

@Farbe: unseres wird wohl so Kamelhaarfarben.....naja. ;-)
 
Y

ypg

Herzlichen Glückwunsch - aber auch mit der gesunden Einstellung zum Thema Reihenhaus.
Ich selbst habe in einem von 65 Häusern gewohnt - es hatte oft einen Campingcharakter, was nicht unbedingt negativ ist.
Als Filmtipp: ein Reihenhaus steht selten allein, aber nur Teil 1
Was kannst Du zum googeln anbieten? Oder stell doch einfach mal den Grundriss ein und ein paar Farbbilder :)
 
11ant

11ant

Versetzen von Leitungen ist hier nicht trivial, dessen muss man sich bewusst sein. Wer sich im Haus nochmal komplett selbst verwirklichen will, ist hier falsch.
Leider muß man das immer wieder sagen - die Verzweiflung treibt auch solche Leute zum Interesse für Bauträgerreihenhäuser, die vom Typ her Individualbauherren sind, und auf diesem Wege nur unglücklich werden können (was die Häuser nicht verdient haben).
Als Filmtipp: ein Reihenhaus steht selten allein, aber nur Teil 1
Unbedingt - niemand bräuchte Phantasie, um sich vorzustellen, wie Teil 4 aussähe. Teil 1 ist äußerst sehenswert - aber Teil 2 dann nur noch zum Mitsingen oder für Leute, denen der Arzt jegliche Aufregung verboten hat.
 
M

minimini

Danke für den Filmtipp, ich bin gespannt!

Zum Thema Camping: meine Freundin wohnt in einer ähnlichen Lage und meinte nur: „Du kannst das Kind rausschicken und es wird 57382 Spielkameraden haben DU musst Dich dafür nicht mit anderen (nervigen) Eltern verabreden“ - ein nicht wegzudiskutierender Vorteil, finde ich! :-D

Wer mag gugelt mal die Deutsche Reihenhaus und schaut sich im „virtuellen Rundgang“ das „145m2 Familienglück“ im virtuellen Rundgang an. Aber Obacht, der Eindruck trügt etwas, die Räume fühlten sich für uns vor Ort großzügiger an, vor allem im DG.

Grundrisse stelle ich am Nachmittag mal ein und schaue mal ob ich ein ähnliches Kamel finde :)
 
M

minimini

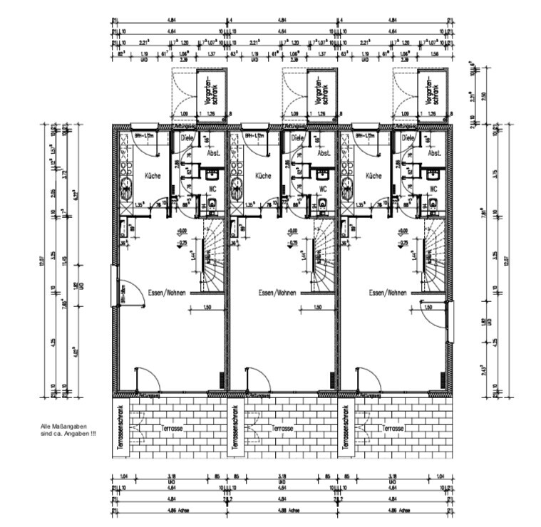
Hier nun einmal Grundrisse für Euch:

Im EG nehmen wir das Gäste-WC dazu (Abstellraum aber nicht), im DG werden die Anschlüsse für das Bad gelegt. Nutzen werden wir das DG-Bad erst einmal als Hauswirtschaftsraum bis unser Kind größer ist und ggf. seine Körperpflege-Sessions dort oben durchführen möchte ;-)

Grundriss: Drei identische Wohneinheiten mit Zimmer 1, Zimmer 2, Bad, Flur, Abstellraum.


Grundriss eines Mehrfamilienhauses mit drei identischen Wohneinheiten: Flur, Dusche, Zimmer 3/4.


Drei nebeneinanderliegende Wohnungen mit Küche, Diele, WC, Essen/Wohnen, Abstellraum, Terrasse.
 
Zuletzt bearbeitet:
Zuletzt aktualisiert 23.11.2025
Im Forum Deutsche Reihenhaus AG gibt es 6 Themen mit insgesamt 169 Beiträgen


Ähnliche Themen zu Deutsche Reihenhaus Erfahrungen - 145 m2 Familienglück im Ruhrpott
Nr.ErgebnisBeiträge
1Deutsche Reihenhaus AG Bauprojekt in Bretten - Seite 223
2Passende Grundrisse zu all unseren Anforderungen - Seite 466
3auf welchen dieser Grundrisse können wir weiter aufbauen? - Seite 2287
4Grundriss Fails Sammelthread - Grundrisse die keiner wollte 25
5Zum Notartermin verschiedene Grundrisse erhalten 10
6Welcher der Zwei Grundrisse ist besser? 20
7Beispiel-Grundrisse für lange, schmale Häuser? 18

Oben