ᐅ Deckenpanel-Abzug ausreichend? Sind günstige Geräte verlässlich?
Erstellt am: 15.04.18 09:50
J
jeti79Hallo zusammen,
nach Generalunternehmer-Insolvenz und sehr aufwändiger Mängelbeseitigung planen wir langsam wieder in alle Richtungen (Rohbau ist schon gestartet). Leider ist das Geld natürlich knapp geworden und wir müssen gucken, ob wir unsere Planungen aufrecht erhalten können. Eine von vielen (teuren) Überlegungen ist:
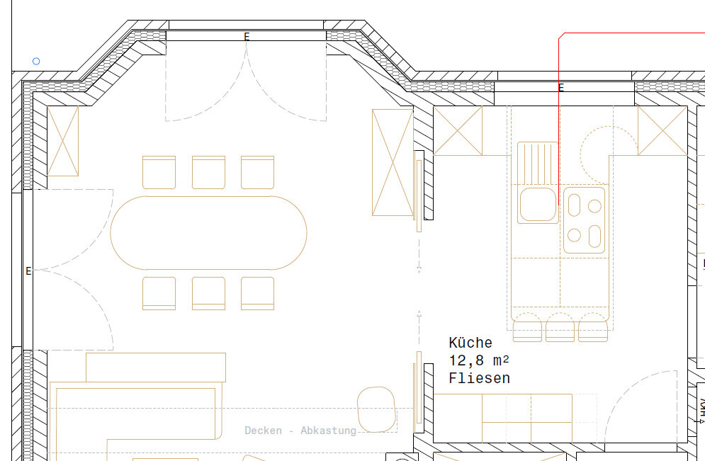
Kommen wir mit einem Deckenpanel als dunstabzug aus? (Umluft/Abluft ist offen)
- Die Küche ist durch eine 1,76m Doppelschiebetür vom Wohn/Ess-Bereich getrennt
- Deckenhöhe 2,51m
- Küchenarbeitsplatte soll ca. 90cm hoch sein.
- unter die Decke kommt eine Abkastung mit ca. 30cm Höhe
- Kochplatz ist (mehr oder weniger) mitten im Raum
Der Dunstabzug müsste also ca. 1,30m "schaffen".
Könnt Ihr mir da Tipps geben, ob das überhaupt verlässlich funktioniert und ggf. ob es "günstige" Geräte gibt, die dafür geeignet sind? (zum Küchenbauer kommen wir wohl erst in den nächsten Wochen)

nach Generalunternehmer-Insolvenz und sehr aufwändiger Mängelbeseitigung planen wir langsam wieder in alle Richtungen (Rohbau ist schon gestartet). Leider ist das Geld natürlich knapp geworden und wir müssen gucken, ob wir unsere Planungen aufrecht erhalten können. Eine von vielen (teuren) Überlegungen ist:
Kommen wir mit einem Deckenpanel als dunstabzug aus? (Umluft/Abluft ist offen)
- Die Küche ist durch eine 1,76m Doppelschiebetür vom Wohn/Ess-Bereich getrennt
- Deckenhöhe 2,51m
- Küchenarbeitsplatte soll ca. 90cm hoch sein.
- unter die Decke kommt eine Abkastung mit ca. 30cm Höhe
- Kochplatz ist (mehr oder weniger) mitten im Raum
Der Dunstabzug müsste also ca. 1,30m "schaffen".
Könnt Ihr mir da Tipps geben, ob das überhaupt verlässlich funktioniert und ggf. ob es "günstige" Geräte gibt, die dafür geeignet sind? (zum Küchenbauer kommen wir wohl erst in den nächsten Wochen)
jeti79 schrieb:
nach Generalunternehmer-Insolvenz und sehr aufwändiger Mängelbeseitigung planen wir langsam wieder in alle Richtungen (Rohbau ist schon gestartet).Habt Ihr rückgebaut oder ist nun die Rede von einem anderen Objekt ?https://www.instagram.com/11antgmxde/
https://www.linkedin.com/company/bauen-jetzt/
Wenn das eingezeichnete der Küchenplan ist, dann solltet ihr den vielleicht erst noch optimieren. Immer um die Halbinsel rum, um von Vorbereitungsplatz zu Kochplatz zu wechseln oder Sachen abzugießen ist unpraktisch.
Und, wenn du mit Deckenpaneel eine Decken-Dunstabzugshaube meinst ... sinnvoll geht es da ab eher 1000 Euro los. Gute Empfehlung ist da immer Novy. Habe ich seit 6,5 Jahren und bin sehr zufrieden. Gut und leise.
Und, wenn du mit Deckenpaneel eine Decken-Dunstabzugshaube meinst ... sinnvoll geht es da ab eher 1000 Euro los. Gute Empfehlung ist da immer Novy. Habe ich seit 6,5 Jahren und bin sehr zufrieden. Gut und leise.
T
toxicmolotof16.04.18 08:09Das Layout kenne ich aus Großküchen. Mit 2-3 solcher Blöcke und mind. 4 Köchen. Da gibt's dann noch eine Spüle hinter einem.
Mal im Ernst, das geht gar nicht und nur der (Halb-)Insel wegen... ich weiß ja nicht. Ich sehe da viele Optimierungsmöglichkeiten. Okay, dabei bleibt kein Schrank da stehen wo er stand, aber egal.
Mal im Ernst, das geht gar nicht und nur der (Halb-)Insel wegen... ich weiß ja nicht. Ich sehe da viele Optimierungsmöglichkeiten. Okay, dabei bleibt kein Schrank da stehen wo er stand, aber egal.
11ant schrieb:
Habt Ihr rückgebaut oder ist nun die Rede von einem anderen Objekt ? Wir haben bis auf die Grundmauern zurückgebaut und sind von dort aus neu gestartet.toxicmolotow schrieb:
... Mal im Ernst, das geht gar nicht...jansens schrieb:
Schließe mich da kbt an: Das Küchen-Layout ist schon sehr „ungewöhnlich“...Das Layout steht nicht zur Debatte. Darüber haben wir schon in diversen Foren diskutiert. Es wurde von uns schon in Küchenstudios erprobt und für "gut" befunden. Hier geht es einzig und allein um die Höhe und Typ der möglichen Abzugshaube und möglichst "günstige" Varianten, die (noch) funktionieren.
kbt09 schrieb:
Wenn das eingezeichnete der Küchenplan ist, dann solltet ihr den vielleicht erst noch optimieren. Immer um die Halbinsel rum, um von Vorbereitungsplatz zu Kochplatz zu wechseln oder Sachen abzugießen ist unpraktisch.Wenn es so wäre, würde ich Dir Recht geben. Ist aber nicht sokbt09 schrieb:
...
Und, wenn du mit Deckenpaneel eine Decken-Dunstabzugshaube meinst ... sinnvoll geht es da ab eher 1000 Euro los. Gute Empfehlung ist da immer Novy. Habe ich seit 6,5 Jahren und bin sehr zufrieden. Gut und leise.Ja, genau - es soll dann eine 30cm hohe Abkastung unter die Decke und darin soll dann der Abzug untergebracht werden. So kommen wir auf einen Abstand von ca. 1,30m zwischen Kochfeld und Abzugshaube. Danke, für den Tipp mit der Novy - werde ich gleich mal nach googeln!
Ähnliche Themen