ypg schrieb:
Ich würde auch den Ess/Koch als Mittelpunkt planen, wo dann das WZ hinkommt, ergibt sich. Es muss ja nicht am Esszimmer dranhängen.
Kerstins Vorschläge sind immer wieder gut... ich habe zwar auch gestern noch skizziert, aber leider abbrechen müssen.
Ein Tipp noch: schau Dir mal die Bungalows von Danwood ab und hol Dir dort Anregungen - zB das Brave 176 hat zwei Zonierungen für Kinder und Eltern. Einen Abstellraum kann man immer irgendwie noch anbringen
Gruß, YvonneIch gehe gleich mal schauen, Zonierungen hören sich sehr gut an.
Aber, dies ist die korrekt Lage?
so dass die Geschwister-Scholl-Straße eher Südwest wäre als Süd .. oder?
Die Mauer, die schon vorhanden ist, ist quasi ein V, Spitze und am Grundriss. Führt die dazu, dass ihr die Garage soweit in den Westen geplant habt? Könnt ihr die beliebig durchlöchern, abreissen oder was auch immer? Wie hoch ist sie?
Welche Abstände zu Geschwister-Scholl-Straße und Schmidts Gasse müsst ihr mit der Garage einhalten?
so dass die Geschwister-Scholl-Straße eher Südwest wäre als Süd .. oder?
Die Mauer, die schon vorhanden ist, ist quasi ein V, Spitze und am Grundriss. Führt die dazu, dass ihr die Garage soweit in den Westen geplant habt? Könnt ihr die beliebig durchlöchern, abreissen oder was auch immer? Wie hoch ist sie?
Welche Abstände zu Geschwister-Scholl-Straße und Schmidts Gasse müsst ihr mit der Garage einhalten?
kbt09 schrieb:
Aber, dies ist die korrekt Lage?
so dass die Geschwister-Scholl-Straße eher Südwest wäre als Süd .. oder?genau, die Karte ist genordet
kbt09 schrieb:
Die Mauer, die schon vorhanden ist, ist quasi ein V, Spitze und am Grundriss. Führt die dazu, dass ihr die Garage soweit in den Westen geplant habt? Könnt ihr die beliebig durchlöchern, abreissen oder was auch immer? Wie hoch ist sie??Richtig, die Mauer ist an den zwei Seiten. Wir dürften sie komplett abreissen. Mein Mann möchte sie aber behalten , Natursteinsockel mit Ziegel auf 2m Höhe errichtet. Ich hätte es gerne offener und finde sie auch optisch nicht passend zu meinem Wunsch, weißes Haus mit anthrazit , aber das können wir uns ja noch überlegen ob Bungalow als Toskana Stil .
kbt09 schrieb:
Welche Abstände zu Geschwister-Scholl-Straße und Schmidts Gasse müsst ihr mit der Garage einhalten?Es müssen keine Abstände eingehalten werden. Fast jedes Grundstück dort hat Grenzbebauung, dürfen wir auch lt. Gemeinde.
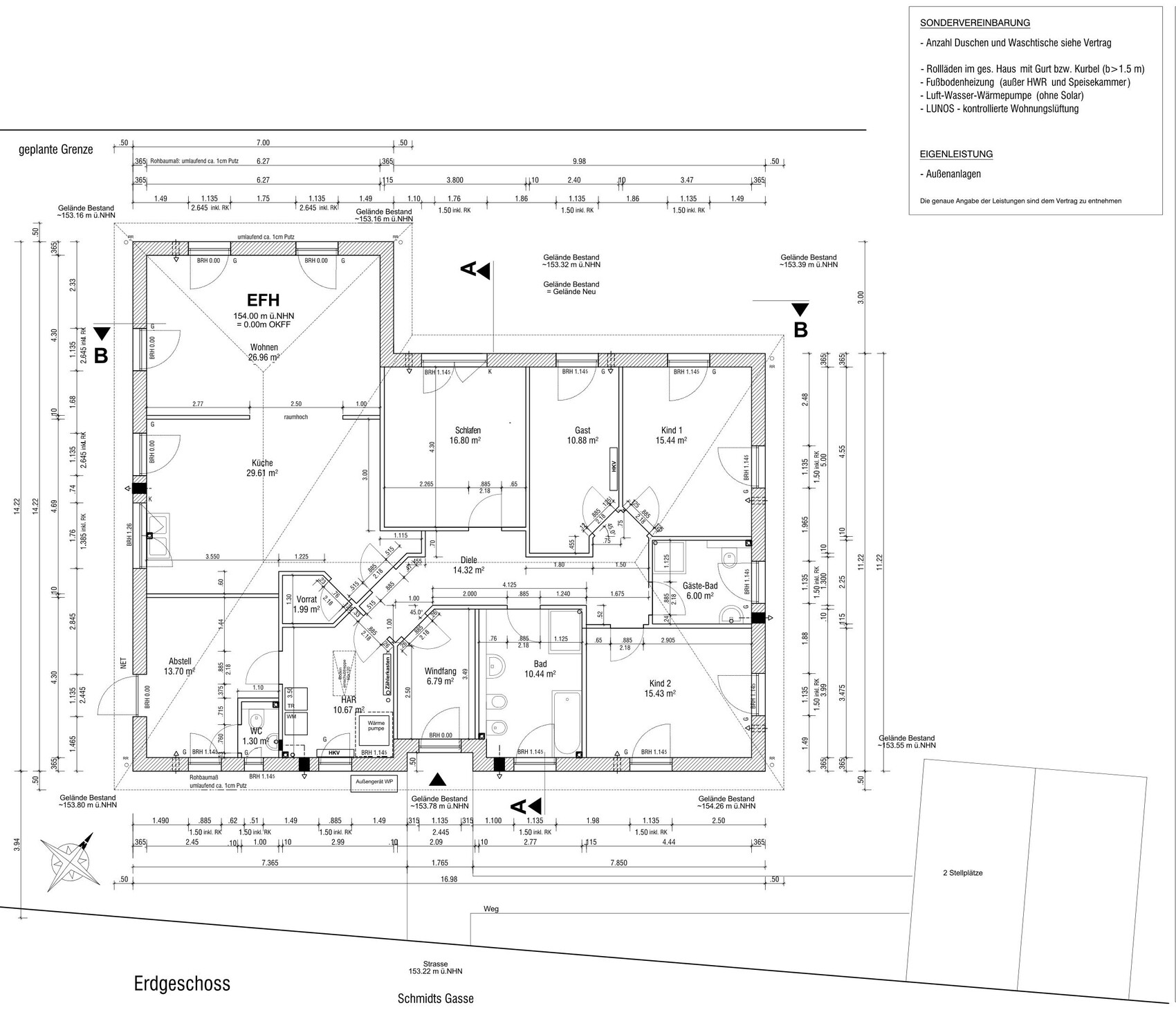
ich hole den Beitrag mal aus der Versenkung
Der Bauantrag läuft.
Am Grundriss hat sich nicht viel verändert, ua.
weil Kochen/Essen als absoluter Mittelpunkt dann doch zu unruhig erschien, wenn Kinder Besuch bekommen
weil der Bereich Kinder/Gäste später getrennt werden soll
weil Schlafen und Bad getrennt sein soll
Dafür konnten wir uns aber bei der Gemeinde durchsetzen und die Zufahrt mit Garage kommt jetzt auf die Gassen Seite. Das WC im Abstellraum ist immer noch bloß schematisch zu sehen, Anschlüsse werden vorgesehen mehr nicht.
Nun sind wir an der Küchenplanung und werden wohl den Vorrat Raum streichen. Er sollte eh nicht für Vorräte dienen, sondern für Gelben Sack und Staubsauger, dafür werden sich andere Ecken finden. Hier ist jetzt die Frage, Küchenwand einfach durchziehen oder als Nische in der Küche lassen?

Der Bauantrag läuft.
Am Grundriss hat sich nicht viel verändert, ua.
weil Kochen/Essen als absoluter Mittelpunkt dann doch zu unruhig erschien, wenn Kinder Besuch bekommen
weil der Bereich Kinder/Gäste später getrennt werden soll
weil Schlafen und Bad getrennt sein soll
Dafür konnten wir uns aber bei der Gemeinde durchsetzen und die Zufahrt mit Garage kommt jetzt auf die Gassen Seite. Das WC im Abstellraum ist immer noch bloß schematisch zu sehen, Anschlüsse werden vorgesehen mehr nicht.
Nun sind wir an der Küchenplanung und werden wohl den Vorrat Raum streichen. Er sollte eh nicht für Vorräte dienen, sondern für Gelben Sack und Staubsauger, dafür werden sich andere Ecken finden. Hier ist jetzt die Frage, Küchenwand einfach durchziehen oder als Nische in der Küche lassen?
yvonnebo schrieb:
ich hole den Beitrag mal aus der VersenkungIch erinnere mich dunkel ...yvonnebo schrieb:
Der Bauantrag läuft.Dazu erst mal alles Gute - das heißt aber auch, viel meckern nützt jetzt nicht mehr ...yvonnebo schrieb:
Nun sind wir an der Küchenplanung und werden wohl den Vorrat Raum streichen. Er sollte eh nicht für Vorräte dienen, sondern für Gelben Sack und Staubsauger, dafür werden sich andere Ecken finden. Hier ist jetzt die Frage, Küchenwand einfach durchziehen oder als Nische in der Küche lassen?Dieses Leergut-Altglas-etcetera-Abstellräumchen ist ein Verbündeter der Wohnlichkeit, den ich dort lassen würde. Auch gliedert der Wandverlauf dort gut. Ändern würde ich eher gegenüber, hinter der Wohnzimmertür, diese merkwürdige Ecke wo der Wandverlauf kurz vor der Einmündung noch mal keck von schräg auf rechtwinklig umschlenkert. Da würde ich die schräge Flucht durchziehen.Ich bin gerade offen gesagt zu faul zurückzublättern: hatte ich schon meine Irritation darüber ausgedrückt, die Zwischenwände sämtlich in offenbar Leichtbau zu erstellen ?
In dem Punkt bin ich auch nicht sicher, ob das so schon wirklich antragsreif ist. Ich könnte mir auch vorstellen, daß eine klassische Statik mit tragenden Wänden da günstiger würde als das alles den Dachbindern abzuverlangen, auch unter dem Gesichtspunkt der Aussteifung.
Im übrigen ist Leichtbau weil mitnichten trivialer auch die falsche Hoffnung, wenn es günstiger werden soll. Selbst für Heimwerker-Eigenleistung eignet sich Porenbeton mindestens ebensogut.
Architektonisch habe ich zuweilen das Gefühl, das Schachtel-Image früherer Fertighäuser erlebe gerade bei einigen Massivbauern eine unerwartete Renaissance.
https://www.instagram.com/11antgmxde/
https://www.linkedin.com/company/bauen-jetzt/
11ant schrieb:
Da würde ich die schräge Flucht durchziehen.Die Ecke machen wir auch später in der Flucht selbst zu, da kommt ein "spezieller Einbau" von meinen Mann hin.
11ant schrieb:
In dem Punkt bin ich auch nicht sicher, ob das so schon wirklich antragsreif ist. Ich könnte mir auch vorstellen, daß eine klassische Statik mit tragenden Wänden da günstiger würde als das alles den Dachbindern abzuverlangen, auch unter dem Gesichtspunkt der Aussteifung.
Im übrigen ist Leichtbau weil mitnichten trivialer auch die falsche Hoffnung, wenn es günstiger werden soll. Selbst für Heimwerker-Eigenleistung eignet sich Porenbeton mindestens ebensogut.Der GU macht die Innenwände mit Porenbeton bzw. Gipsdielenwand. Da die Statik noch nicht fertig ist, entscheidet sich noch welche Wand wie wird. Aber keine Leichtbauwände aus Gipskartonplatten.
Ähnliche Themen