Hausbau - Ratgeber
Bauherrenhilfe
- Bauherrenhilfe vor Vertragsabschluss
-- Warum einen unabhängigen Baubetreuer?
-- Vertragsgrundlagen
-- Bausumme
-- Zahlungsplan zur Kostenkontrolle
-- Pflichten des Bauherren vor Vertragsabschluss
-- Unterlagen beim Hausbau vor Vertragsabschluss
- Bauherrenhilfe nach Vertragsabschluss
-- Bauantrag bei Behörden
-- Bau-Genehmigungsverfahren bei Baubehörden
-- Bauspezifische Versicherungen
-- Bauzeitenplan
-- Baubeginn - die Letzten Pflichten der Bauherrschaft
- Bauherrenhilfe während der Bauzeit
- Gewährleistungsansprüche
- Bauabnahme
Baufinanzierung
- Baufinanzierung - Allgemeine Fragen
- Kreditarten
- Kredit-Konditionen
- Bausparen
- Staatliche Förderungen
- Verkehrswert
- Haushaltsrechnung und Bonität
Hausbau Planung
- Haustypen
- Hausbau Vorbereitungsarbeiten
- Das Baugrundstück
- Baugrund beim Hausbau
- Baurecht
- Gebäudeschutz
- Erdarbeiten und Wasserhaltung
- Stützmauern
- Einfriedung
- Untergeschoss
- Kanalisation
- Tragende Elemente
- Nichttragende Innenwände
- Fundation / Fundament
- Deckenkonstruktionen
- Dächer
- Kaminanlagen
- Treppen Rampen Leitern
- Dachbeläge und Spengler
- Fenster
- Sonnen und Wetterschutz
- Aussenputze
- Einbauten, Küchen, Türen
- Bodenbeläge und Unterlagsböden
- Parkett
- Gips, Wand, Decke
Haustechnik und Energie
- Heiztechnik
- Lüftung und Klimatechnik
- Sanitärtechnik
- Elektrotechnik
- Erneuerbare Energie
Whirlpools / Jacuzzi
Hausbau Magazin
- Baufinanzierung trotz Krise?
- Das Blockhaus
- Moderne Dämmstoffe im Vergleich
- Erker Vor- und Nachteile
- Glasflächen beim Hausbau
- Günstig ein Haus Bauen
- Mediterraner Hausbaustil
- Mehrgenerationenhaus
- Moderne Architektur
- Gartengestaltung leicht gemacht
- Traditioneller Ziegelbau
- Villa als höchster Traum
- Im Eigenheim Ruhestand geniessen
- Altbau sanieren
- Kauf einer Holzgarage
- Immobilienmakler
- Arbeitshandschuhe für den Winter
- Zuhause verschönern
- Outdoor-Plissees
- Schlafzimmer planen
- Terrassenüberdachung
- Wohngebäudeversicherung
- Zaunarten und Eigenschaften
- Hauseingang gestalten
- Der perfekte Grundriss
- Sparsamer heizen im Altbau
- Einfamilienhaus smart finanzieren
- Planung einer PV-Anlage
- Neues Haus
- Immobilienfinanzierung
- Installation einer Photovoltaikanlage
- Asbest erkennen und entfernen
- Gartenpflege im Frühling – worauf achten
- Sauna im Fokus - Wellness zuhause
- Erfolgreich vermieten
- Die perfekte Winterbekleidung
- Das Niedrigenergiehaus
- Der April und seine Stürme
- Architektonische Vielfalt
- Ökologisch und nachhaltig bauen
- Das perfekte Schlafzimmer
- Nachhaltige Energieversorgung
- Zukunftsorientiert bauen
- Nachhaltigkeit beim Hausbau
- Tiny Houses
- Wärmepumpen als nachhaltige Heizvariante
- Maßgeschneiderten Kleiderschrank
- Der richtige Baukredit
- Ratgeber für erfolgreichen Hausbau
- Haus als Altersvorsorge
Do-it-yourself Anleitungen
- Verlegeanleitung für Bodenbeläge und Parkett
- Bodenbeläge und Parkett reinigen und pflegen
- Malerarbeiten am Haus
- Garten Tipps
- Umzug und Reinigung

ᐅ Bungalow aus Porenbeton - Erfahrungen? DIY Anfängerfragen!

Erstellt am: 24.04.18 10:38
G
GooSe_77
G
GooSe_77
28.04.18 12:06

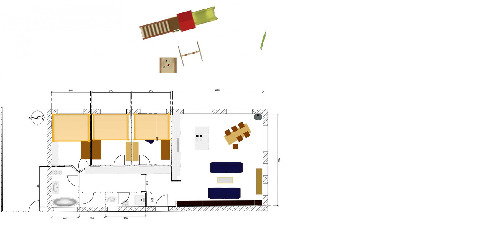
Grundriss einer Wohnung mit Schlafzimmern, Bad und Wohnzimmer; Spielzeug liegt über dem Plan.


So wäre auch ca. das Grundstück. Hauswirtschaftsraum wäre wirklich nur für Heizung und Wasser, Lagerraum ist im Regal, im Kriechboden über Bad/Hauswirtschaftsraum/Bad. Die Schlafzimmer sind 3x4m, also nicht wirklich klein und mit Hochbett steht der komplette Boden zur Verfügung ... Das Bad mit Dusche könnte was breiter sein, gibt das mir bis jetzt bekannte Baufenster nicht her. Die Aussage war aber recht "schwammig" da kein Plan vorlag zum Gespräch ...
ares8328.04.18 12:25
Euer Bad ist kaum 6qm groß, aber dann noch ein Gäste-WC in dem dann die Dusche ist? Der Hauswirtschaftsraum ist trotzdem viel zu klein. Wo soll die Heizung hin? Eine Waschmaschine ?
Für mich funktioniert das in echt alles nicht.
11ant28.04.18 13:34
ares83 schrieb:
Für mich funktioniert das in echt alles nicht.
Ich denke auch: für diesen Totenschein braucht man nicht extra den Chefarzt zu wecken.
https://www.instagram.com/11antgmxde/
https://www.linkedin.com/company/bauen-jetzt/
G
GooSe_77
28.04.18 17:52
ares83 schrieb:
Euer Bad ist kaum 6qm groß
Und damit größer als unser jetziges Bad und auch alle die wir bis jetzt hatten
ares83 schrieb:
aber dann noch ein Gäste-WC in dem dann die Dusche ist?
Ja, irgendwann müssen sich ja 4 Leute morgens fertig machen.
ares83 schrieb:
Der Hauswirtschaftsraum ist trotzdem viel zu klein. Wo soll die Heizung hin?
Ich hab mich da an Gas Komithermen orientiert, mehr soll da nicht rein auch vll mal etwas Wäsche zum trocknen.
ares83 schrieb:
Eine Waschmaschine ?
Kommt immer noch in den Einbauschrank in den Flur.
ares83 schrieb:
Für mich funktioniert das in echt alles nicht.
Für mich bis jetzt in Gedanken schon
11ant28.04.18 18:20
GooSe_77 schrieb:
Für mich bis jetzt in Gedanken schon
Ist es in den Gedanken denn auch schön, oder siehst Du, daß da "noch Luft nach oben" ist ?
https://www.instagram.com/11antgmxde/
https://www.linkedin.com/company/bauen-jetzt/
C
Caspar2020
28.04.18 20:49
Geh mal bei euch in den Heizungskeller / Hauswirtschaftsraum wo ihr jetzt wohnt.. Da siehst du was allein sonst noch für Technik und Anschlüsse in nem Raum ankommen. Außerdem brauchst schon allein für den warmwassertank und der Verrohung

Und Strom HV / Telekomiker Anschluss und andere Dinge auch Mindestabstände von gewissen Dingen verlangen.


HK-Verteiler ist auch noch irgendwo unterzubringen.

Die Badezimmer so funktionieren gar nicht; allein weil der Platz für vorwandinstallationen nicht bedacht sind; Bzw. Zum Beispiel die auch die Tür mit dem Gäste-Waschbecken kollidiert.

Wie dick sind eigentlich die Wände? Ich hoffe nicht nur 12cm?
GooSe_77 schrieb:
im Kriechboden über Bad/Hauswirtschaftsraum/Bad.

Der ist wahrsten Sinne des Wortes ein reiner kriechboden; bei normaler Deckenhöhe; Decke und den 3,50m Deckenhöhe gefordert im Wohnzimmer in Kombi mit Flachdach.
hauswirtschaftsraumheizungkriechbodenduschedeckenhöhe