Hausbau - Ratgeber
Bauherrenhilfe
- Bauherrenhilfe vor Vertragsabschluss
-- Warum einen unabhängigen Baubetreuer?
-- Vertragsgrundlagen
-- Bausumme
-- Zahlungsplan zur Kostenkontrolle
-- Pflichten des Bauherren vor Vertragsabschluss
-- Unterlagen beim Hausbau vor Vertragsabschluss
- Bauherrenhilfe nach Vertragsabschluss
-- Bauantrag bei Behörden
-- Bau-Genehmigungsverfahren bei Baubehörden
-- Bauspezifische Versicherungen
-- Bauzeitenplan
-- Baubeginn - die Letzten Pflichten der Bauherrschaft
- Bauherrenhilfe während der Bauzeit
- Gewährleistungsansprüche
- Bauabnahme
Baufinanzierung
- Baufinanzierung - Allgemeine Fragen
- Kreditarten
- Kredit-Konditionen
- Bausparen
- Staatliche Förderungen
- Verkehrswert
- Haushaltsrechnung und Bonität
Hausbau Planung
- Haustypen
- Hausbau Vorbereitungsarbeiten
- Das Baugrundstück
- Baugrund beim Hausbau
- Baurecht
- Gebäudeschutz
- Erdarbeiten und Wasserhaltung
- Stützmauern
- Einfriedung
- Untergeschoss
- Kanalisation
- Tragende Elemente
- Nichttragende Innenwände
- Fundation / Fundament
- Deckenkonstruktionen
- Dächer
- Kaminanlagen
- Treppen Rampen Leitern
- Dachbeläge und Spengler
- Fenster
- Sonnen und Wetterschutz
- Aussenputze
- Einbauten, Küchen, Türen
- Bodenbeläge und Unterlagsböden
- Parkett
- Gips, Wand, Decke
Haustechnik und Energie
- Heiztechnik
- Lüftung und Klimatechnik
- Sanitärtechnik
- Elektrotechnik
- Erneuerbare Energie
Whirlpools / Jacuzzi
Hausbau Magazin
- Baufinanzierung trotz Krise?
- Das Blockhaus
- Moderne Dämmstoffe im Vergleich
- Erker Vor- und Nachteile
- Glasflächen beim Hausbau
- Günstig ein Haus Bauen
- Mediterraner Hausbaustil
- Mehrgenerationenhaus
- Moderne Architektur
- Gartengestaltung leicht gemacht
- Traditioneller Ziegelbau
- Villa als höchster Traum
- Im Eigenheim Ruhestand geniessen
- Altbau sanieren
- Kauf einer Holzgarage
- Immobilienmakler
- Arbeitshandschuhe für den Winter
- Zuhause verschönern
- Outdoor-Plissees
- Schlafzimmer planen
- Terrassenüberdachung
- Wohngebäudeversicherung
- Zaunarten und Eigenschaften
- Hauseingang gestalten
- Der perfekte Grundriss
- Sparsamer heizen im Altbau
- Einfamilienhaus smart finanzieren
- Planung einer PV-Anlage
- Neues Haus
- Immobilienfinanzierung
- Installation einer Photovoltaikanlage
- Asbest erkennen und entfernen
- Gartenpflege im Frühling – worauf achten
- Sauna im Fokus - Wellness zuhause
- Erfolgreich vermieten
- Die perfekte Winterbekleidung
- Das Niedrigenergiehaus
- Der April und seine Stürme
- Architektonische Vielfalt
- Ökologisch und nachhaltig bauen
- Das perfekte Schlafzimmer
- Nachhaltige Energieversorgung
- Zukunftsorientiert bauen
- Nachhaltigkeit beim Hausbau
- Tiny Houses
- Wärmepumpen als nachhaltige Heizvariante
- Maßgeschneiderten Kleiderschrank
- Der richtige Baukredit
- Ratgeber für erfolgreichen Hausbau
- Haus als Altersvorsorge
Do-it-yourself Anleitungen
- Verlegeanleitung für Bodenbeläge und Parkett
- Bodenbeläge und Parkett reinigen und pflegen
- Malerarbeiten am Haus
- Garten Tipps
- Umzug und Reinigung

ᐅ Barrierefreies Gäste-Duschbad planen

Erstellt am: 04.12.12 11:29
P
Philiboy83
P
Philiboy83
04.12.12 11:29
Hallo ihr,

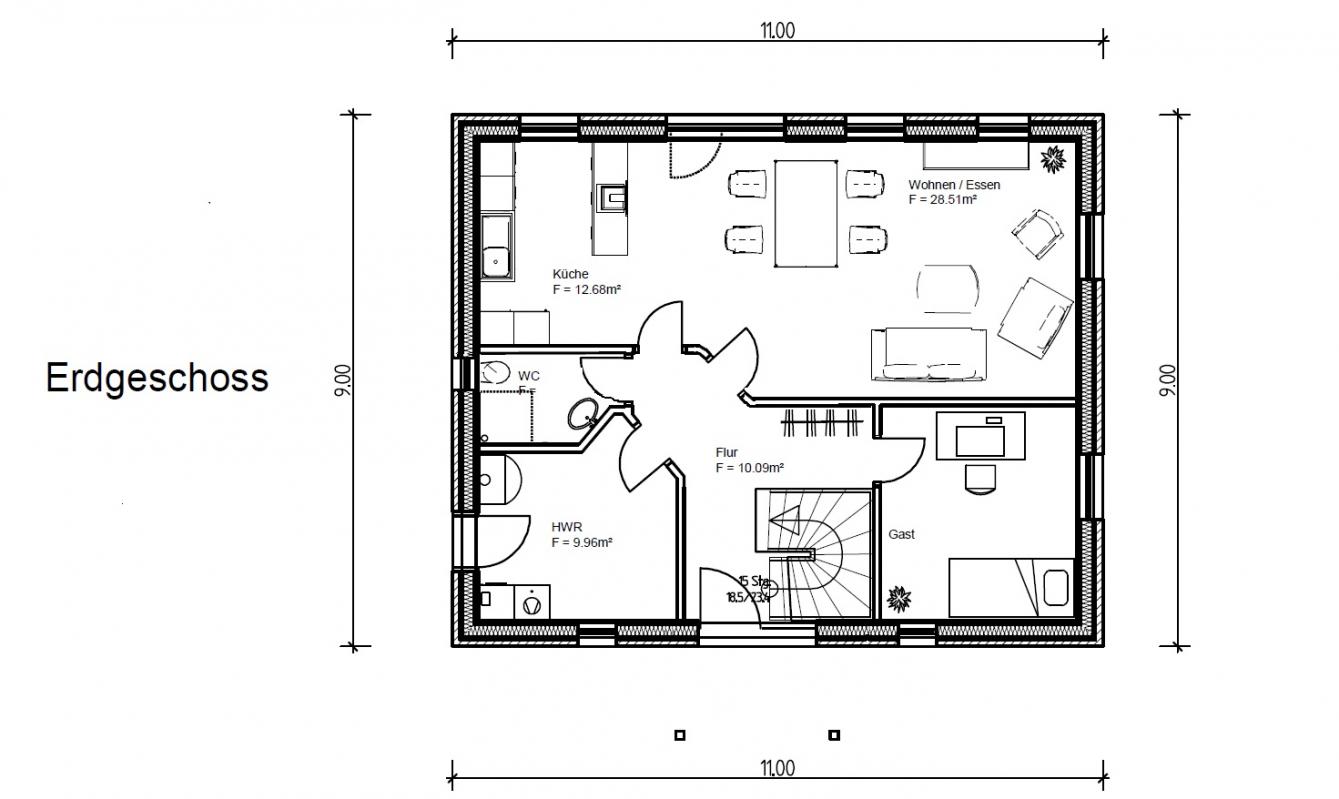
wir planen derzeit einen Einfamilienhaus Neubau und wollen im Erdgeschoss ein Barrierefreies Gäste-Duschbad haben, da der Opa meiner Freundin im Rollstuhl sitzt und dieser öfters bei uns sein wird, zudem weiß man ja selbst auch nie was einem mal so widerfährt und ist dann für die Zukunft gerüstet.

Nur ob es im wahren leben genauso barrierefrei ist wie auf dem Papier ist ja so eine Sache.
Wir haben einen Grundriss erhalten wo es so eingeplant ist, was meint ihr? Ist das ok um als Rollstuhlfahrer auf Klo zu kommen, sich die Hände zu waschen und zu duschen bzw. sich abduschen zu lassen? (Keine Duschwanne sondern eine offene Dusche mit Bodenablauf und ggf. eine Klappwand oder ein Vorhang zur Toilette hin. Der Raum würde sich ja noch vergrößern wenn man den Hauswirtschaftsraum verkleinert.

Schönen Gruß

Grundriss Erdgeschoss eines Hauses mit Küche, WC, HWR, Flur, Gastzimmer und Wohnbereich.
B
Bauexperte
04.12.12 13:04
Philiboy83 schrieb:

Wir haben einen Grundriss erhalten wo es so eingeplant ist, was meint ihr? Ist das ok um als Rollstuhlfahrer auf Klo zu kommen, sich die Hände zu waschen und zu duschen bzw. sich abduschen zu lassen? (Keine Duschwanne sondern eine offene Dusche mit Bodenablauf und ggf. eine Klappwand oder ein Vorhang zur Toilette hin.
Hast Du Deinem Planer nicht gesagt, daß das DU-Bad behindertengerecht sein muß ?

Wenn Du ein behinderten-/rollstuhlgerechtes Du-Bad planst, muß ein Radius von 1,50 m für den Rollstuhlfahrer möglich sein (siehe Beispiel einer behindertengerechten Einliegerwohnung). Das Durchgangsmaß der Innentüre muß ebenfalls verbreitert werden.

Freundliche Grüße

Grundriss eines Hauses: Küche, Wohnzimmer, Essküche, Schlafzimmer, Bad, Diele, Garderobe, Terrasse
P
Philiboy83
04.12.12 14:50
Naja, wir haben gesagt, dass jemand der im Rollstuhl sitzt die Möglichkeit haben muss unten auf Klo und duschen gehen zu können und natürlich auch ins Wohnzimmer und Gästezimmer zu kommen, es aber kein Alltagszustand ist.

Also es soll nicht als Barrierefreies Erdgeschoss abgenommen oder zugelassen sein, sondern den Besuch im Rollstuhl erleichtern (für jeden Beteiligten)
Wenn man selbst mal im Rollstuhl sitzen sollte, was man natürlich nicht hofft und ja auch eher selten der Fall ist, muss man dann aufjedenfall umbauen, nur für den Fall der Fälle wollen wir ja nun nicht extra Geld finanzieren und ihr Opa muss dann halt auch irgendwo damit rechnen, wenn er bei anderen zu Besuch ist, dass nicht alles auf ihn zugeschnitten ist.

Aber so habe ich ja schon mal einen Anhaltspunkt, in wie fern man das Gäste-Duschbad ändern müsste, es ist ja auch noch potenzial drin, der Hauswirtschaftsraum könnte durchaus kleiner werden da wir dort z. B. nur eine Heizungsanlage stehen haben werden die wenig Platz benötigt und ja an sich nur nötige Dinge wie Waschmaschine, Trockner und Gartenklamotten sein werden
erdgeschossduschbadkloduschenhauswirtschaftsraum