wie wäre es wenn du die Toilette auf die rechte Seite mittig platzierst? So hast du mehr Platz am Waschbecken...
Sonst vllt so eine offene Aufteilung? Ich denke eine Trennwand in einem kleinen Raum macht das Zimmer noch kleiner.
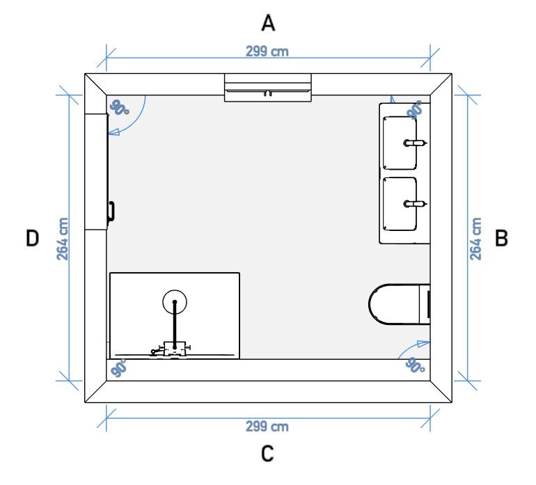
Hier sind 2 Varianten:
1.Dusche ist auf der rechten Seite
2. Dusche ist direkt vorne auf der linken Seite, je nachdem was von der Optik gefällt





Sonst vllt so eine offene Aufteilung? Ich denke eine Trennwand in einem kleinen Raum macht das Zimmer noch kleiner.
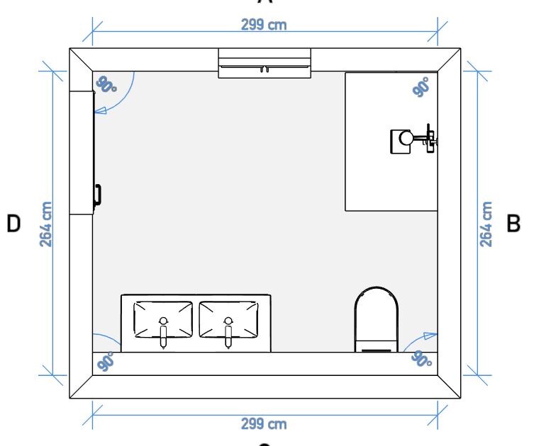
Hier sind 2 Varianten:
1.Dusche ist auf der rechten Seite
2. Dusche ist direkt vorne auf der linken Seite, je nachdem was von der Optik gefällt
Ähnliche Themen