ᐅ Auslegung Lüftung kfw55 mit Fensterfalzlüftern und Lüftungsanlage
Erstellt am: 05.03.23 12:25
A
Andii87Hallo zusammen,
wir haben eine neue ETW in einem 5-Parteien kfw55 Haus gekauft (Grundriss und Lüftungskonzept im Anhang). Das Haus übererfüllt die Anforderungen an die Luftdichtigkeit, was der Blower Door Test ergeben hat.
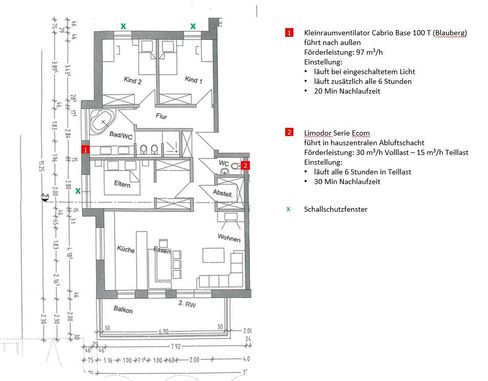
Bislang wurde ein Lüftungsgerät (Kleinraumventilator) im Badezimmer (Abluft nach außen) und eine Lüftungsgerät (zentrale Abluft) im innenliegenden Gäste-WC (Abluft in Entlüftungskanal) eingebaut:
- Lüftung im Bad: Leistung: 92 m3/h ; Steuerung über Lichtschalter und zusätzlich alle 6 Stunden, 20 Min Nachlaufzeit
- Lüftung in Gäste-WC: Leistung: 30m3/h Volllast, 15 m3/h Teillast ; Steuerung über Lichtschalter (Volllast) und zusätzlich alle 6 Stunden für 30min Teillast
Trotz der Lüftungsanlagen ist die Luftfeuchtigkeit in den Räumen nicht ideal. Die Luftfeuchtemessungen im Badezimmer zeigen, dass diese immer wieder relativ stark steigt (durch normale Nutzung des Bad) und die Lüftung trotz des o.g. Betriebs diese nicht senken kann.
Da wir vermuten, dass die Lüftungsleistung durch fehlenden Luftnachzug eingeschränkt sein könnte, haben wir die Lüftungen nun auch einmal mit gekippten Fenstern in anderen Räumen getestet und festgestellt, dass das Ergebnis dadurch besser ist.
Die Dichtigkeit des Hauses verursacht unter Umständen, dass auf natürliche Weise keine Nachströmung von Luft bei eingeschalteten Lüftungsgeräten möglich ist.
Nun überlegen wir daher, in welchen Räumen/Fenstern Fensterfalzlüfter (die bislang noch nicht eingebaut wurden) helfen könnten.
Eine besondere Herausforderung ist dabei, dass in den Schlafzimmern Fenster mit erhöhter Schallschutzanforderung eingebaut sind und wir den erzielten Schallschutz, wenn möglich, unbedingt aufrechterhalten wollen.
Wer kann uns mit einer Auskunft helfen, wie viele Fensterfalzlüfter und in welchen Räumen (siehe Wohnungsgrundriss und ggf. Lüftungskonzept) platziert werden müssen, um mindestens im Bad eine optimale Leistung des Lüftungsgerätes zu erzielen und in den übrigen Räumen ein angenehmes Raumklima zu erzeugen?
Im Hinblick auf die Schlafzimmer: Falls aus eurer Sicht aufgrund einer ggf. erforderlichen Mindestanzahl von FFL auch FFL in den Schlafzimmern notwendig sind:
Könnt ihr ggf. Fensterfalzlüfter empfehlen, die hohen Schallschutzanforderungen entsprechen? Habt ihr damit eigene Erfahrungen machen können?
Vielen Dank für eure Hilfe!




wir haben eine neue ETW in einem 5-Parteien kfw55 Haus gekauft (Grundriss und Lüftungskonzept im Anhang). Das Haus übererfüllt die Anforderungen an die Luftdichtigkeit, was der Blower Door Test ergeben hat.
Bislang wurde ein Lüftungsgerät (Kleinraumventilator) im Badezimmer (Abluft nach außen) und eine Lüftungsgerät (zentrale Abluft) im innenliegenden Gäste-WC (Abluft in Entlüftungskanal) eingebaut:
- Lüftung im Bad: Leistung: 92 m3/h ; Steuerung über Lichtschalter und zusätzlich alle 6 Stunden, 20 Min Nachlaufzeit
- Lüftung in Gäste-WC: Leistung: 30m3/h Volllast, 15 m3/h Teillast ; Steuerung über Lichtschalter (Volllast) und zusätzlich alle 6 Stunden für 30min Teillast
Trotz der Lüftungsanlagen ist die Luftfeuchtigkeit in den Räumen nicht ideal. Die Luftfeuchtemessungen im Badezimmer zeigen, dass diese immer wieder relativ stark steigt (durch normale Nutzung des Bad) und die Lüftung trotz des o.g. Betriebs diese nicht senken kann.
Da wir vermuten, dass die Lüftungsleistung durch fehlenden Luftnachzug eingeschränkt sein könnte, haben wir die Lüftungen nun auch einmal mit gekippten Fenstern in anderen Räumen getestet und festgestellt, dass das Ergebnis dadurch besser ist.
Die Dichtigkeit des Hauses verursacht unter Umständen, dass auf natürliche Weise keine Nachströmung von Luft bei eingeschalteten Lüftungsgeräten möglich ist.
Nun überlegen wir daher, in welchen Räumen/Fenstern Fensterfalzlüfter (die bislang noch nicht eingebaut wurden) helfen könnten.
Eine besondere Herausforderung ist dabei, dass in den Schlafzimmern Fenster mit erhöhter Schallschutzanforderung eingebaut sind und wir den erzielten Schallschutz, wenn möglich, unbedingt aufrechterhalten wollen.
Wer kann uns mit einer Auskunft helfen, wie viele Fensterfalzlüfter und in welchen Räumen (siehe Wohnungsgrundriss und ggf. Lüftungskonzept) platziert werden müssen, um mindestens im Bad eine optimale Leistung des Lüftungsgerätes zu erzielen und in den übrigen Räumen ein angenehmes Raumklima zu erzeugen?
Im Hinblick auf die Schlafzimmer: Falls aus eurer Sicht aufgrund einer ggf. erforderlichen Mindestanzahl von FFL auch FFL in den Schlafzimmern notwendig sind:
Könnt ihr ggf. Fensterfalzlüfter empfehlen, die hohen Schallschutzanforderungen entsprechen? Habt ihr damit eigene Erfahrungen machen können?
Vielen Dank für eure Hilfe!
Anzeige
Hallo Andii87,
schau mal hier: Auslegung Lüftung kfw55 mit Fensterfalzlüftern und Lüftungsanlage. Da wird jeder fündig!
schau mal hier: Auslegung Lüftung kfw55 mit Fensterfalzlüftern und Lüftungsanlage. Da wird jeder fündig!
Ähnliche Themen