ᐅ Abstand Nischenschrank zu Seitenwänden
Erstellt am: 02.10.19 09:29
Hallo,
wir haben in unserem Schlafzimmer eine Nische für einen schrank und wollen diesen maßgenau anfertigen lassen. Bei Höffner gibt es ein Programm, wo man auf den mm genau Breite, Höhe, Tiefe festlegen kann. Wir sind also sehr flexibel.
Nun die Fragen, wie groß sollte der Abstand zu den Seiten (und nach hinten und oben) sein, damit die Belüftung ausreichend ist und es nicht zu Schimmelbildung kommt?
Im Möbelhaus wurden uns glaube ich 5 cm genannt. Das wäre ganz gut, so könnten wir eine Tiefen von 65 cm erreichen und hätten noch Platz bis zum Fenster.
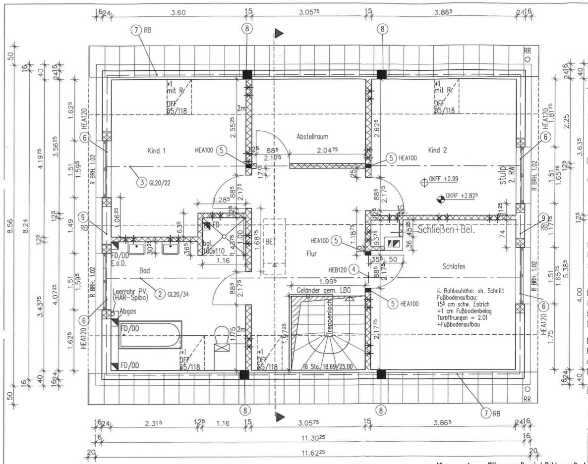
Anbei die Bauzeichung, Schrank soll in Nische neben Kamin.
Vielen Dank schon mal für eure Antworten.

wir haben in unserem Schlafzimmer eine Nische für einen schrank und wollen diesen maßgenau anfertigen lassen. Bei Höffner gibt es ein Programm, wo man auf den mm genau Breite, Höhe, Tiefe festlegen kann. Wir sind also sehr flexibel.
Nun die Fragen, wie groß sollte der Abstand zu den Seiten (und nach hinten und oben) sein, damit die Belüftung ausreichend ist und es nicht zu Schimmelbildung kommt?
Im Möbelhaus wurden uns glaube ich 5 cm genannt. Das wäre ganz gut, so könnten wir eine Tiefen von 65 cm erreichen und hätten noch Platz bis zum Fenster.
Anbei die Bauzeichung, Schrank soll in Nische neben Kamin.
Vielen Dank schon mal für eure Antworten.
H
hampshire02.10.19 10:37Hatten 17 Jahre lang einen passenden Schrank mit 2cm Abstand in einer Nische. Kein Schimmel. Allerdings erst nach einem Jahr nach Fertigstellung des Hauses eingebaut.
B
benutzer 100402.10.19 14:28Alternativ echter Einbauschrank, der wäre dann seitlich bündig und ggf hinten offen, sodass hier auch kein Schimmel entsteht.
M
Mottenhausen02.10.19 14:35Steht das Haus schon? Anhand des Planes würde ich keine Maßanfertigung beauftragen. Erstens stehen nicht alle Wände exakt dort wo geplant und zweitens kann die Innenputzstärke variieren von ... bis. Das auf beiden Seiten der Schranknische und plötzlich fehlen euch 5cm. Bei der Küche ging es nicht anders und es wurden daher Passleisten rechts und links eingeplant, die erst vor Ort zugeschnitten werden. Eigentlich nicht optimal die Lösung, aber sonst wäre die Verzögerung bei der Küchenplanung zu lang gewesen.
BigFoot schrieb:
Alternativ echter Einbauschrank, der wäre dann seitlich bündig und ggf hinten offen, sodass hier auch kein Schimmel entsteht.Habe ich auch schon überlegt. Aber ist ziemlich schwierig, sowas so genau bündig an den Seiten hinzukriegen. Und der Anbieter hat (noch) keine Passleisten im Angebot, wo man noch ein paar cm ausgleichen würde.Mottenhausen schrieb:
Steht das Haus schon? Anhand des Planes würde ich keine Maßanfertigung beauftragen. Erstens stehen nicht alle Wände exakt dort wo geplant und zweitens kann die Innenputzstärke variieren von ... bis. Das auf beiden Seiten der Schranknische und plötzlich fehlen euch 5cm. Bei der Küche ging es nicht anders und es wurden daher Passleisten rechts und links eingeplant, die erst vor Ort zugeschnitten werden. Eigentlich nicht optimal die Lösung, aber sonst wäre die Verzögerung bei der Küchenplanung zu lang gewesen.Ja das Haus steht schon und der Putz ist auch schon drin bzw. Trockenbau fertig verputzt.Die genauen Maße gibt es, allerdings sind ja Wände auch nicht immer 100% gerade etc., so dass ich mir nicht trauen würde auf den mm genau zu bestellen. Würde gehen, aber wenn es dann nicht passt....
Daher dachte ich, an allen Seiten ein paar cm freizulassen, sieht ja auch nicht schlecht aus.
Bei der Küche haben wir auch Passleisten, die ein paar cm ausgleichen können.
Ähnliche Themen