Tja, ein EG kann man eben nicht so einfach losgelöst betrachten. Außerdem ist es viel sinnvoller, wenn du mal beschreibst, was eure Ziele sind, und das Gesamtvorhaben vorstellst. So spielt hier jeder "rate mal mit Rosenthal" und das ist irgendwie auch vergeblich. 3-D-Bilder sind zwar schön, aber Lagepläne, vermaßte Grundrisse mit angemessen eingezeichneter Möblierung etc. sind relevanter 😉
Bezüglich Kaminposition etc. kann ich mich @toxicmolotow nur anschließen. Riesenräume und Minimal-Durchgänge.
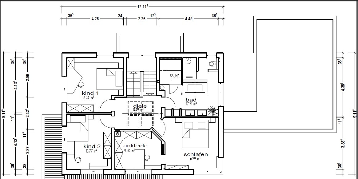
Gäste-WC mit Dusche im Windfang? Wer soll denn da duschen?
Bezüglich Kaminposition etc. kann ich mich @toxicmolotow nur anschließen. Riesenräume und Minimal-Durchgänge.
Gäste-WC mit Dusche im Windfang? Wer soll denn da duschen?
Vielen Dank erstmal für die Einschätzungen!
@toxicmolotow
Ja, die Tisch-Problematik ist mir auch aufgefallen.
Die Alternative, den Tisch um 90 Grad zu drehen (und somit wohl auch den Kamin), wie auch Karlstraße vorgeschlagen hat, würde jedoch bedeuten, dass man vom Wohnbereich direkt zur Küche rüber sehen könnte.
Ich befürchte, dass der eh schon sehr offene Wohnbereich dann noch viel "weitläufiger" wirken würde, und das Wohnzimmer nicht mehr gemütlich wäre..?! Ein Sichtschutz zur Küche sollte nämlich dringend bestehen bleiben.
Was meinst du mit dem Tor zur Hölle? Esstisch zu nahe an der Küche?
Könntest du bei der Küche Vorschläge geben, wie man die langen Wege verhindern könnte, ohne die Kochinsel und die angrenzende Frühstücksplatform verwerfen zu müssen?
Hauswirtschaftsraum: soll als Kellerersatz (neben dem Carport-Anbau) dienen. Hinein kommen Wärmespeicher, Gasheizung, Elektrik und Wäsche (Waschen + Trocknen).
@Karlstraße
Den Kamin um 90 Grad zu drehen, würde, wie oben beschrieben, leider ein zu offenes Wohnzimmer bedeuten.
Leider gehen mir die Ideen aus, wie ich 1. einen großen Kamin realisieren, 2. den Kamin im Raum platzieren und 3. den Kamin gleichzeitig als Sichtschutz zur Küche einsetzen kann... :-/ (ganz zu schweigen vom sehr schmalen Esszimmer..)
Windfang: ja, leider sehr langgezogen, aber ich wüsste auch hier nicht, wie ich dies verhindern könnte, ohne groß die Küche zu verschieben.
ach ja, das Programm heißt übrigens Roomeon.
@BeHaElJa
Danke für den Tipp mit der WC-Tür, wird geändert! :-)
Das Obergeschoss nun auch als Anhang sowie 3D-Bilder vom Bad, Schlafzimmer und Ankleide :-)
Besten Dank





@toxicmolotow
Ja, die Tisch-Problematik ist mir auch aufgefallen.
Die Alternative, den Tisch um 90 Grad zu drehen (und somit wohl auch den Kamin), wie auch Karlstraße vorgeschlagen hat, würde jedoch bedeuten, dass man vom Wohnbereich direkt zur Küche rüber sehen könnte.
Ich befürchte, dass der eh schon sehr offene Wohnbereich dann noch viel "weitläufiger" wirken würde, und das Wohnzimmer nicht mehr gemütlich wäre..?! Ein Sichtschutz zur Küche sollte nämlich dringend bestehen bleiben.
Was meinst du mit dem Tor zur Hölle? Esstisch zu nahe an der Küche?
Könntest du bei der Küche Vorschläge geben, wie man die langen Wege verhindern könnte, ohne die Kochinsel und die angrenzende Frühstücksplatform verwerfen zu müssen?
Hauswirtschaftsraum: soll als Kellerersatz (neben dem Carport-Anbau) dienen. Hinein kommen Wärmespeicher, Gasheizung, Elektrik und Wäsche (Waschen + Trocknen).
@Karlstraße
Den Kamin um 90 Grad zu drehen, würde, wie oben beschrieben, leider ein zu offenes Wohnzimmer bedeuten.
Leider gehen mir die Ideen aus, wie ich 1. einen großen Kamin realisieren, 2. den Kamin im Raum platzieren und 3. den Kamin gleichzeitig als Sichtschutz zur Küche einsetzen kann... :-/ (ganz zu schweigen vom sehr schmalen Esszimmer..)
Windfang: ja, leider sehr langgezogen, aber ich wüsste auch hier nicht, wie ich dies verhindern könnte, ohne groß die Küche zu verschieben.
ach ja, das Programm heißt übrigens Roomeon.
@BeHaElJa
Danke für den Tipp mit der WC-Tür, wird geändert! :-)
Das Obergeschoss nun auch als Anhang sowie 3D-Bilder vom Bad, Schlafzimmer und Ankleide :-)
Besten Dank
Also, der Weg in die Dusche oder aufs WC sind im OG ja ... hmm eng, Slalom 😉
Vollgeschosse? Oder gibt es eine Kniestockhöhe und Dachneigung?
Yvonne hat genau aus den Gründen, dass sonst diese Fragen irgendwo im Thread gestellt werden und die Antworten irgendwo im Thread kommen, eigentlich mal in https://www.hausbau-forum.de/threads/grundrissplanung-bitte-vor-thread-erstellung-lesen.11714/ das typische sinnvolle Raster für die Threaderöffnung beschrieben. Finde ich wirklich schade, sich einfach so darüberhinwegzusetzen.
Vollgeschosse? Oder gibt es eine Kniestockhöhe und Dachneigung?
Yvonne hat genau aus den Gründen, dass sonst diese Fragen irgendwo im Thread gestellt werden und die Antworten irgendwo im Thread kommen, eigentlich mal in https://www.hausbau-forum.de/threads/grundrissplanung-bitte-vor-thread-erstellung-lesen.11714/ das typische sinnvolle Raster für die Threaderöffnung beschrieben. Finde ich wirklich schade, sich einfach so darüberhinwegzusetzen.
Beitrag zu spät gelesen, also jetzt im Nachtrag, zumindest was ich davon beantworten kann 😉
Vornweg: Die Dusche im Gäste-WC wird vorerst nicht ausgebaut, sondern erst wenn das Haus voll ist (2 Kinder da sind), sodass zumindest eine Ausweich-Dusche irgendwo vorhanden ist falls es schnell gehen muss.
Bebauungsplan/Einschränkungen
Größe des Grundstücks: 600 qm
Hang: sehr geringe Hangneigung (wird noch gemessen)
Ausrichtung: Süd-Ost
Anforderungen der Bauherren
Stilrichtung: Landhaus
Dachform: Satteldach (geringe Neigung)
Gebäudetyp: Einfamilienhaus
Keller: nein
Geschosse: EG und OG (2 Vollgeschosse, keine Dachschrägen im OG)
Anzahl der Personen: max. 4
Büro: nein
offene Architektur
Bauweise: Poroton
offene Küche, Kochinsel
Anzahl Essplätze: 4 (max. 6)
Kamin: gemauert, zentral
Carport mit Anbau (Kellerersatz)
Hausentwurf
Von wem stammt die Planung: Architekt
Was gefällt besonders: Offener Wohnraum
Was gefällt nicht: Windfang, enger Essbereich
favorisierte Heiztechnik: Gas
Vornweg: Die Dusche im Gäste-WC wird vorerst nicht ausgebaut, sondern erst wenn das Haus voll ist (2 Kinder da sind), sodass zumindest eine Ausweich-Dusche irgendwo vorhanden ist falls es schnell gehen muss.
Bebauungsplan/Einschränkungen
Größe des Grundstücks: 600 qm
Hang: sehr geringe Hangneigung (wird noch gemessen)
Ausrichtung: Süd-Ost
Anforderungen der Bauherren
Stilrichtung: Landhaus
Dachform: Satteldach (geringe Neigung)
Gebäudetyp: Einfamilienhaus
Keller: nein
Geschosse: EG und OG (2 Vollgeschosse, keine Dachschrägen im OG)
Anzahl der Personen: max. 4
Büro: nein
offene Architektur
Bauweise: Poroton
offene Küche, Kochinsel
Anzahl Essplätze: 4 (max. 6)
Kamin: gemauert, zentral
Carport mit Anbau (Kellerersatz)
Hausentwurf
Von wem stammt die Planung: Architekt
Was gefällt besonders: Offener Wohnraum
Was gefällt nicht: Windfang, enger Essbereich
favorisierte Heiztechnik: Gas
C333B schrieb:
Was gefällt besonders: Offener WohnraumC333B schrieb:
Den Kamin um 90 Grad zu drehen, würde, wie oben beschrieben, leider ein zu offenes Wohnzimmer bedeuten.Was ist denn für Dich ein offener Wohnraum?
Für mich ein Raum, indem Couch und TV steht, sich zentral grosszügig im Haus vorfindet und mehrere Wohnbereiche miteinander verbindet.
Bei Euch ist der Wohnraum ein ganz normal integrierter Raum, der allerdings in seiner Größe zu den anderen Bereichen im EG herausragt.
C333B schrieb:
Viel Spaß beim Ansehen der 3D-Bilder und des Grundrisses 🙂Auf den 3D-Pics ist das Wohnzimmer ja weniger zu sehen, dafür allerdings der Hauptbereich (Sofa +Durchsicht TV/Kamin), der mir bei der Ansicht schon sehr klein daherkommt. Abstand TV/Kamin + Sofa sehr gering, dafür dahinter ein Wohnbereich, der eigentlich nur als Möbelstellplatz genutzt wird?
Essbereich nicht nutzbar wegen Enge und Kamin, Küche finde ich die Wege auch sehr eng. In 3D kann man die Stühle um den Tresen in die Möbel hineinschieben, live funktioniert das nicht, da werden diese Stühle dann laufend im Wege stehen.
C333B schrieb:
Hallo, anbei der Grundriss mit Maßen.Was wird denn da vermaßt? Mir fehlt zB das Maß von der Breite des Essbereiches (2, irgendwas oder 3 irgendwas?), das Maß zwischen den Küchenfeldern...
C333B schrieb:
man die langen Wege verhindern könnte, ohne die KochinselEine U-Form mit Kochinsel, auf der einen Seite Kühlschrank, auf der anderen die Arbeitsfläche... sind immer lange Wege. L-Form bietet zB eine ruhige Laufwand, an der Barhocker nicht stören würden.
C333B schrieb:
Leider gehen mir die Ideen aus, wie ich 1. einen großen Kamin realisieren, 2. den Kamin im Raum platzieren und 3. den Kamin gleichzeitig als Sichtschutz zur Küche einsetzen kann... :-/ (ganz zu schweigen vom sehr schmalen Esszimmer..)C333B schrieb:
Windfang: ja, leider sehr langgezogen, aber ich wüsste auch hier nicht, wie ich dies verhindern könnte, ohne groß die Küche zu verschieben.Ich dachte, der Entwurf ist von einem Architekt? Warum geht es hier um Deine Ideen?
C333B schrieb:
ach ja, das Programm heißt übrigens Roomeon.C333B schrieb:
und würde mich über ein paar Meinungen, Anregungen und Verbesserungsvorschläge freuen.Das Problem eines 3D-Programms ist zB: hat man einmal den Button gedrückt und sieht seine Zeichnung in 3D, ist man verliebt, ohne neutral abzuwägen. Man hält an den Mauern fest und will nicht loslassen, könnte ja einstürzen 😉
Für mich ist der Wohnraum zu gross, der Essbereich zu klein (eigentlich gibts den gar nicht, weil in der Verkehrsfläche vor der Treppe gelagert) die Küche zu unüberlegt, der Zugang von Eingang zur Küche zu lang. Oben verhält es sich mit dem langen Weg im Bad zur Toilette gleich, die Ankleide könne man auch besser vom Flur aus begehen.
Irgendwie muss man andauernd um etwas herum gehen - es finden sich keine schlüssigen Wege.
Was ich gut finde: den Mut, Eingang und Gartenöffnungen auf eine Seite (Süd) zu planen. Das geht, nur wenige haben diese Fantasie dafür! 🙂
Gruss Yvonne
T
toxicmolotof20.09.15 23:27C333B schrieb:
Was meinst du mit dem Tor zur Hölle? Esstisch zu nahe an der Küche?Haha, ja, das wäre auch eine gute Assoziation. Ich meine damit, dass derjenige der "oben links" oder "oben am Kopfende" sitzende Mitbewohner oder Gast bei befeuertem Kamin rückseitig bzw. rechtsseitig langsam aber sicher angeflämmt wird. Wir haben einen recht kleinen Kamin von Scan (6kW) mit Panoramascheibe und in etwa 150cm Abstand haben wir Sitzplätze. Selbst dort wird es, wenn man den Kamin ordentlich betreibt, nach spätestens einer halben Stunde unangenehm warm, so dass man sich dort schnell verzieht. Diesen Abstand dürftest du dort locker unterschreiten und dementsprechend wird man dort gegrillt.C333B schrieb:
Könntest du bei der Küche Vorschläge geben, wie man die langen Wege verhindern könnte, ohne die Kochinsel und die angrenzende Frühstücksplatform verwerfen zu müssen?Ofen, Kochfeld, Arbeitsbereich und Kühlschrank sollten in einem Dreieck angelegt sein, ohne dass man dazwischen Hindernisse oder Stoßkanten findet. Auch der Vorrat sollte dann nicht all zu weit weg sein. Außer die Frau des Hauses wird nach Kilometern bezahlt.C333B schrieb:
Hauswirtschaftsraum: soll als Kellerersatz (neben dem Carport-Anbau) dienen. Hinein kommen Wärmespeicher, Gasheizung, Elektrik und Wäsche (Waschen + Trocknen).Wir haben auf knapp 7qm alles genannte, außer Waschmaschine und Trockner. Und außer einem Regal ist da nicht mehr viel Platz. Dort würde ich nicht meine Wäsche waschen wollen. Wo soll denn in deiner Skizze die Heizung noch hin? Und wenn du die untergebracht hast, wo der Gasanschluss, wo der Stromanschluss, wo die Gas- und Stromzähler und die Sicherungen? Bei Fußbodenheizung noch ein Heizkreisverteiler und es ist alles mehr als voll. Ich sehe da arge Platzprobleme denn das ist alles, aber kein Kellerersatz mehr. Ein Kinderwagen oder 4 Eimer Farbe rein und nichts geht mehr.Ähnliche Themen