Guten Tag,
ich bzw. wir überlegen aktuell eine Bestandsimmobilie zu kaufen.
Wer ist Wir ?
Meine Frau, meine 2 Kinder und ich sowie meine Schwiegereltern (58/60).
Es handelt sich um ein klassisches 2 Familienhaus Bj.80.
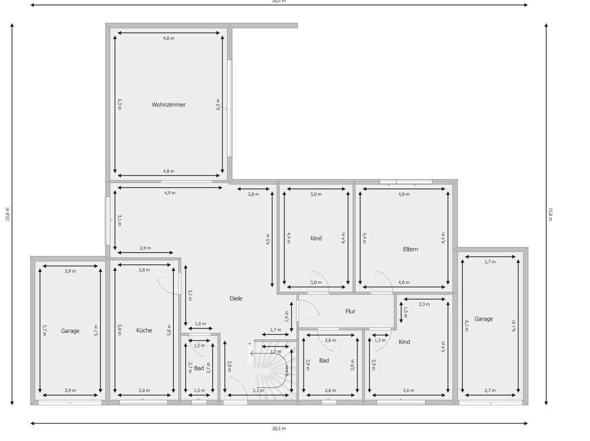
Wohnfläche. 236 m² Grundstück 643
EG: 136 m²
OG: 100 m²
Bauweise: Massiv
###
Geschosszahl: 1
Bauweise: Offen
Grundflächenzahl: 0,4
Geschossflächenzahl: 0,5
###
Nun überlege ich hin und her, wie man den Grundriss umgestalten könnte, so, das meine Schwiegereltern (welche eine Einliegerwohnung bekommen sollen) klar kommen, wir aber genug Platz für uns und die Kinder haben. Klassisch übereinander wäre am einfachsten, wäre allerdings nicht unser Traum.
Angedacht habe ich, ggf. die rechte Hälfte EG und OG mit einer neuen Treppe zu verbinden ?!
Platzbedarf Schwiegereltern liegt bei ca. 80 m²
Entsprechend blieben und 156 m²
Einen Statiker haben wir noch nicht befragt.
Mir geht es vorrangig erst mal um genrelle Ideen (hoffe das ist okay)
Evtl. kann mir jemand hier aus dem Forum helfen ?
Ich bin über jede Anregung dankbar.
Danke






ich bzw. wir überlegen aktuell eine Bestandsimmobilie zu kaufen.
Wer ist Wir ?
Meine Frau, meine 2 Kinder und ich sowie meine Schwiegereltern (58/60).
Es handelt sich um ein klassisches 2 Familienhaus Bj.80.
Wohnfläche. 236 m² Grundstück 643
EG: 136 m²
OG: 100 m²
Bauweise: Massiv
###
Geschosszahl: 1
Bauweise: Offen
Grundflächenzahl: 0,4
Geschossflächenzahl: 0,5
###
Nun überlege ich hin und her, wie man den Grundriss umgestalten könnte, so, das meine Schwiegereltern (welche eine Einliegerwohnung bekommen sollen) klar kommen, wir aber genug Platz für uns und die Kinder haben. Klassisch übereinander wäre am einfachsten, wäre allerdings nicht unser Traum.
Angedacht habe ich, ggf. die rechte Hälfte EG und OG mit einer neuen Treppe zu verbinden ?!
Platzbedarf Schwiegereltern liegt bei ca. 80 m²
Entsprechend blieben und 156 m²
Einen Statiker haben wir noch nicht befragt.
Mir geht es vorrangig erst mal um genrelle Ideen (hoffe das ist okay)
Evtl. kann mir jemand hier aus dem Forum helfen ?
Ich bin über jede Anregung dankbar.
Danke
dein Problem verstehe ich nicht ganz.Auch nicht deine angedachte Lösung: 100 m2 haben, 80 wollen sie. Baust du ein zusätzliches Treppenhaus ein sind wieder 10 m2 weg- oben UND unten. Und 50 bis 80 Kiloeuro noch dazu.
Wieso wollen die Eltern unten wohnen, was ist die Intention dabei? Magst du den Trittschall von ihnen nicht? Wollen die einen Garten ebenerdig? Oder...?
Wieso wollen die Eltern unten wohnen, was ist die Intention dabei? Magst du den Trittschall von ihnen nicht? Wollen die einen Garten ebenerdig? Oder...?
Ähnliche Themen