A
alter002904.07.16 00:02Hallo zusammen,
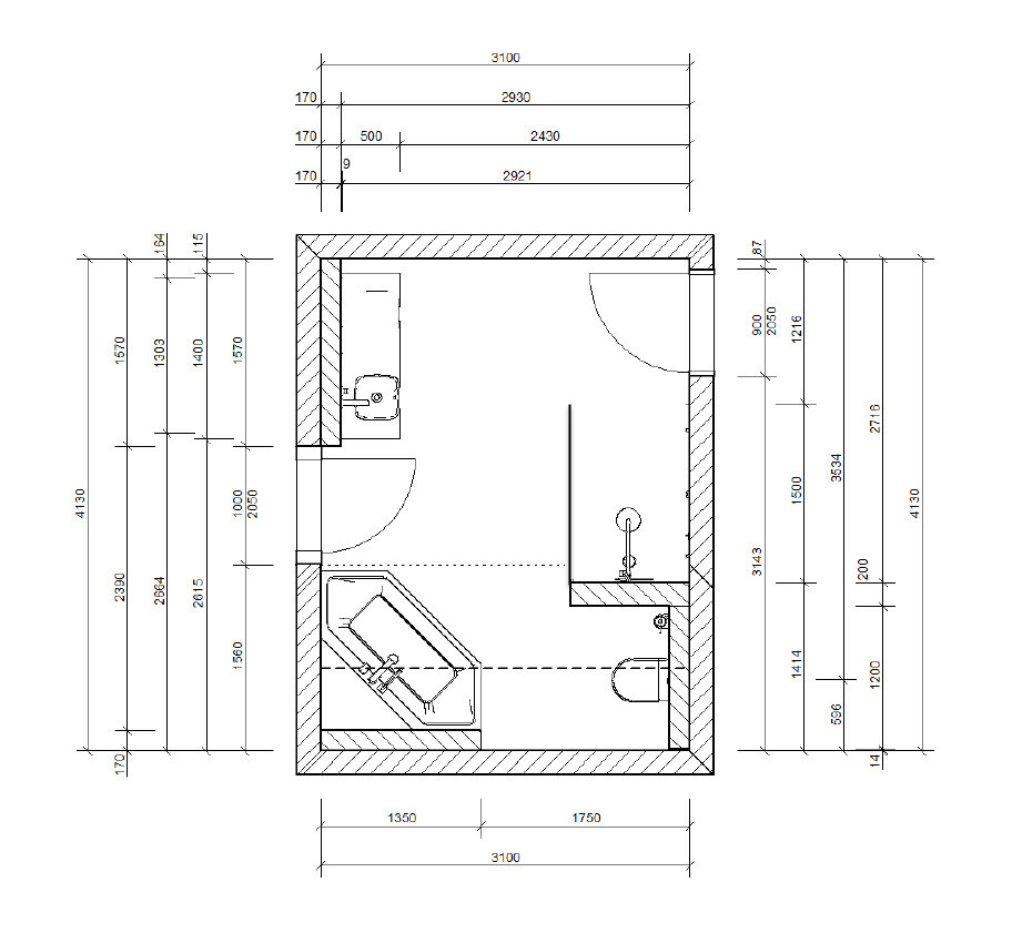
wir haben zwei Vorschläge für unser Bad im Obergeschoss. Der erste stammt vom Architekten, der ist 08/15, den zweiten Vorschlag bekam ich vom Installateur. Der gefällt mir besser, jedoch frage ich mich, wie das wirkt, wenn man beim Betreten des Bades gleich links die Dusche hat. ....für sachdienliche Hinweise......
wir haben zwei Vorschläge für unser Bad im Obergeschoss. Der erste stammt vom Architekten, der ist 08/15, den zweiten Vorschlag bekam ich vom Installateur. Der gefällt mir besser, jedoch frage ich mich, wie das wirkt, wenn man beim Betreten des Bades gleich links die Dusche hat. ....für sachdienliche Hinweise......
Hallo,
das ist ja ein richtig großes Bad, aber so eine umwerfende Idee habe ich leider auch nicht. Aber ein paar Tipps zur Optimierung der 2. Variante:
das ist ja ein richtig großes Bad, aber so eine umwerfende Idee habe ich leider auch nicht. Aber ein paar Tipps zur Optimierung der 2. Variante:
- Türanschlag ändern
- Duschkopf an die Stirnseite der Dusche mit Deckenmontage in Höhe der 2,30m-Linie
- Leerraum hinter der Dusche für Abstellniesche in der Dusche nutzen.
A
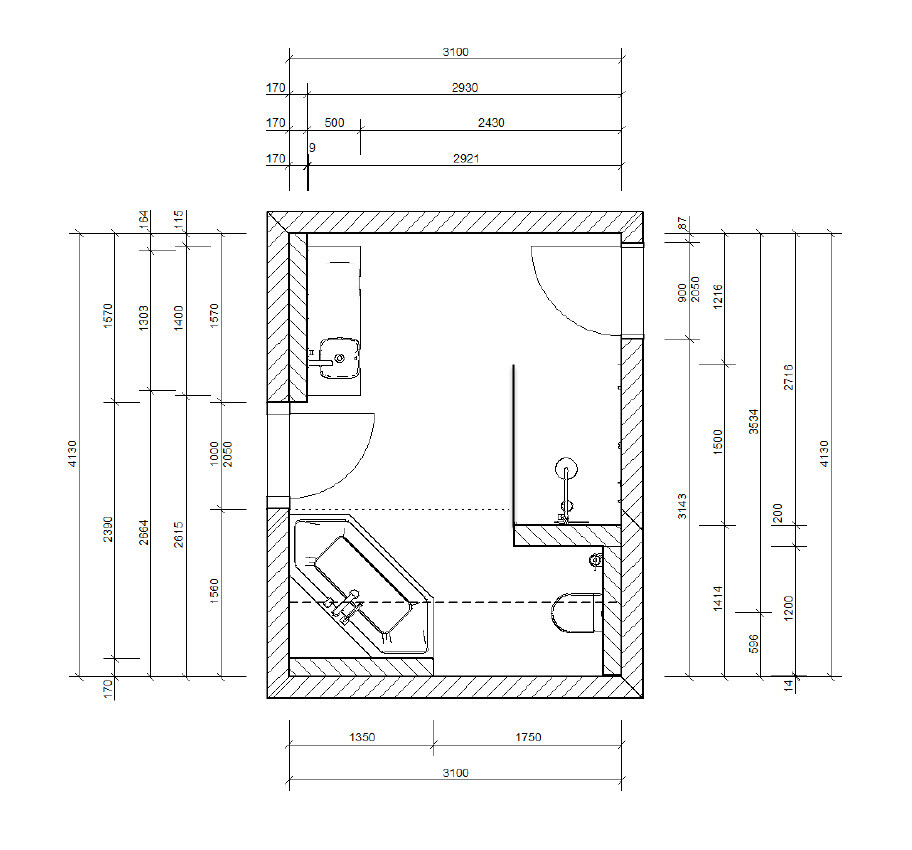
alter002904.07.16 12:26Der Türanschlag muss natürlich geändert werden. Das war ein Geniestreich des Architekten, über den wir uns sowieso schon die ganze Zeit herumärgern.
Ich bin kein großer Freund von diesen schräg über Eck stehenden Badewannen... Das kostet immens Platz und ich behaupt ja immer, wer sowas plant, hat noch nie ein Bad geputzt: schon mal überlegt, wie unpraktisch dieses tote Eck hinter der Wanne zu putzen ist?
Mir ist nicht so ganz klar, wie niedrig euer Kniestock ist. Beim zweiten Entwurf stört ich dieser leere, ungenutzte Streifen am Kniestock. Wenn der nicht gerade nur 1,2m ist, bin ich ja persönlich ein Fan davon, das Klo dahin zu verlegen, weil da auch der penetranteste Stehbiesler zum Hinsetzen gezwungen wird *harharhar*, ansonsten kann man da auch die Badewanne gut hintun, weil man da ja nicht so viel Kopffreiheit braucht. Also ich zumindest stehe nicht in der Wanne, sondern liege 😉
Vielleicht kann man ja auch das Dachfenster etwas größer planen? Dann die Wanne mit Fußende zum Kniestock (wenn der eher niedriger ist), ggf. kann man die Wanne auch ganz an die Kniestockwand machen. Wenn dann da drüber ein großes Dachflächenfenster ist, ist das doch sehr schön. Der Architekt hat das Klo ja auch mehr zur Wand hin geplant, müßte also von der Höhe aus passen, oder?
Die Öffnung nach draußen ist auch eine Tür, oder? Und Türanschlag, ganz klar, andersrum. So ist ja bescheuert.
Mir ist nicht so ganz klar, wie niedrig euer Kniestock ist. Beim zweiten Entwurf stört ich dieser leere, ungenutzte Streifen am Kniestock. Wenn der nicht gerade nur 1,2m ist, bin ich ja persönlich ein Fan davon, das Klo dahin zu verlegen, weil da auch der penetranteste Stehbiesler zum Hinsetzen gezwungen wird *harharhar*, ansonsten kann man da auch die Badewanne gut hintun, weil man da ja nicht so viel Kopffreiheit braucht. Also ich zumindest stehe nicht in der Wanne, sondern liege 😉
Vielleicht kann man ja auch das Dachfenster etwas größer planen? Dann die Wanne mit Fußende zum Kniestock (wenn der eher niedriger ist), ggf. kann man die Wanne auch ganz an die Kniestockwand machen. Wenn dann da drüber ein großes Dachflächenfenster ist, ist das doch sehr schön. Der Architekt hat das Klo ja auch mehr zur Wand hin geplant, müßte also von der Höhe aus passen, oder?
Die Öffnung nach draußen ist auch eine Tür, oder? Und Türanschlag, ganz klar, andersrum. So ist ja bescheuert.
Ähnliche Themen