Grym
04.01.2016 20:12:21
- #1
Voici une idée de notre part, qui existe déjà depuis plusieurs semaines. Voici donc une base pour la discussion, peut-être sommes-nous désormais complètement aveugles aux défauts et ne voyons plus toutes les erreurs.
Plan d’urbanisme / Restrictions
Taille du terrain : 595
Pente : 2-7 %
Coefficient d’occupation du sol-1 : 0,35
Coefficient d’occupation du sol-2 : 0,45
Fenêtre de construction, ligne et limite de construction : distance de 3 mètres de la limite pour le bâtiment principal
Construction en bordure : autorisée pour les annexes, garage, carport, place de stationnement
Nombre de places de stationnement : 2
Nombre d’étages : 1 ou 2 étages complets
Forme du toit : 25-35 degrés ; toit à pignon ; toit en croupe
Orientation : sans restriction
Hauteurs maximales / limitations : hauteur de la gouttière 6,30 m ; aucune autre exigence
Exigences des maîtres d’ouvrage
Cave, étages : peu importe
Nombre de personnes, âge : prévu pour 4-5 personnes (29, 29, 1 et 1-2 autres enfants prévus)
Bureau : utilisation familiale ou télétravail ?
Balcon, terrasse sur le toit : non
Garage, carport : 2 places ; éventuellement plus tard un garage au même endroit (dans x ou xx années)
Conception de la maison
Auteur de la planification :
- Do-it-Yourself par vous
Rez-de-chaussée :

Étage :

Grenier comme remplacement de cave / réserve d’aménagement :

Implantation sur le terrain :

Quelques vues simples :



Quelques détails :
- Le local technique / local de rangement est au rez-de-chaussée ; il est possible que la chaudière à gaz et le ballon d’eau chaude soient même placés au grenier ; en contrepartie, un peu de matériel de jardin pourrait être rangé ici
- L’escalier au rez-de-chaussée est conçu de sorte que les deux dernières marches disparaissent déjà dans le plafond (plafond en béton 20 cm + construction du sol de l’étage supérieur incluant ventilation encore 15-20 cm)
- Nous ne sommes pas encore décidés sur le type et la forme des portes entre le couloir et le séjour ou le couloir et la cuisine (porte normale ou cadre de passage vers le séjour, porte coulissante vers la cuisine, ou autre... un ami nous a même dit qu’il peindrait la porte de la cuisine :O )
- La forme de la cuisine ne semble pas trop mauvaise, j’ai lu en tout cas qu’il fallait éviter les angles ; selon l’emplacement de l’évier (sur l’îlot ou pas), une bonne partie des armoires côté droit de la cuisine pourrait être des colonnes
- Le bureau est principalement une pièce pour PC ; rangement de dossiers ; il n’est absolument pas destiné à être un vrai bureau
- Sinon, le vestiaire de 2 m de largeur devrait être suffisant au quotidien ; dans le cas où beaucoup d’invités viendraient en hiver, je pourrais aussi accepter que quelques vestes se retrouvent ce jour-là dans le bureau
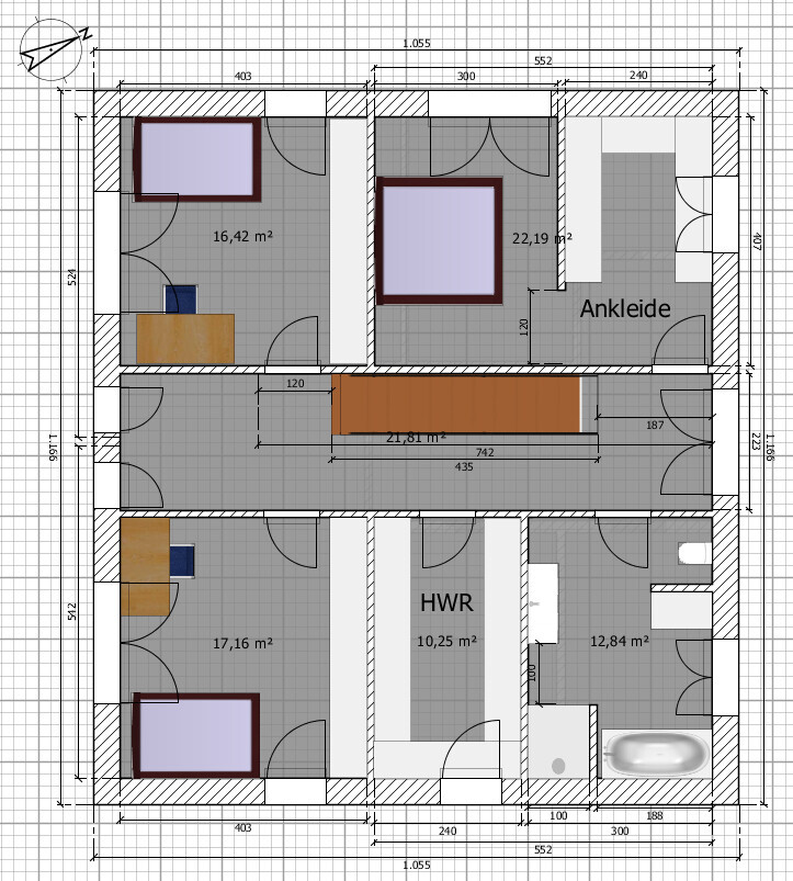
- Concernant l’étage : le mur de séparation entre la chambre et le dressing sera peut-être un mur en plaques de plâtre (sur chape) ; ainsi, en cas de besoin, cela pourrait devenir une troisième chambre d’enfant complète (et les parents iraient dormir au grenier)
- La planification de la salle de bains n’est certainement pas finale
- Buanderie à l’étage avec sèche-linge, lave-linge, aspirateur, stockage, repassage (peu chez nous), étendage du linge, etc.
- Le grenier est totalement non planifié pour l’instant ; il sert de remplacement de cave ; salle de loisirs (fitness), réserve d’aménagement ; il y a environ 55 m² de surface habitable selon la réglementation (à partir de 2 m hauteur comptabilisés entièrement ; entre 1 et 2 m comptabilisés à moitié).
- Concernant l’escalier : c’est bien sûr un escalier sur escalier ; éventuellement, l’escalier du grenier pourrait prendre encore un quart de tour à la fin
Plan d’urbanisme / Restrictions
Taille du terrain : 595
Pente : 2-7 %
Coefficient d’occupation du sol-1 : 0,35
Coefficient d’occupation du sol-2 : 0,45
Fenêtre de construction, ligne et limite de construction : distance de 3 mètres de la limite pour le bâtiment principal
Construction en bordure : autorisée pour les annexes, garage, carport, place de stationnement
Nombre de places de stationnement : 2
Nombre d’étages : 1 ou 2 étages complets
Forme du toit : 25-35 degrés ; toit à pignon ; toit en croupe
Orientation : sans restriction
Hauteurs maximales / limitations : hauteur de la gouttière 6,30 m ; aucune autre exigence
Exigences des maîtres d’ouvrage
Cave, étages : peu importe
Nombre de personnes, âge : prévu pour 4-5 personnes (29, 29, 1 et 1-2 autres enfants prévus)
Bureau : utilisation familiale ou télétravail ?
Balcon, terrasse sur le toit : non
Garage, carport : 2 places ; éventuellement plus tard un garage au même endroit (dans x ou xx années)
Conception de la maison
Auteur de la planification :
- Do-it-Yourself par vous
Rez-de-chaussée :
Étage :
Grenier comme remplacement de cave / réserve d’aménagement :
Implantation sur le terrain :
Quelques vues simples :
Quelques détails :
- Le local technique / local de rangement est au rez-de-chaussée ; il est possible que la chaudière à gaz et le ballon d’eau chaude soient même placés au grenier ; en contrepartie, un peu de matériel de jardin pourrait être rangé ici
- L’escalier au rez-de-chaussée est conçu de sorte que les deux dernières marches disparaissent déjà dans le plafond (plafond en béton 20 cm + construction du sol de l’étage supérieur incluant ventilation encore 15-20 cm)
- Nous ne sommes pas encore décidés sur le type et la forme des portes entre le couloir et le séjour ou le couloir et la cuisine (porte normale ou cadre de passage vers le séjour, porte coulissante vers la cuisine, ou autre... un ami nous a même dit qu’il peindrait la porte de la cuisine :O )
- La forme de la cuisine ne semble pas trop mauvaise, j’ai lu en tout cas qu’il fallait éviter les angles ; selon l’emplacement de l’évier (sur l’îlot ou pas), une bonne partie des armoires côté droit de la cuisine pourrait être des colonnes
- Le bureau est principalement une pièce pour PC ; rangement de dossiers ; il n’est absolument pas destiné à être un vrai bureau
- Sinon, le vestiaire de 2 m de largeur devrait être suffisant au quotidien ; dans le cas où beaucoup d’invités viendraient en hiver, je pourrais aussi accepter que quelques vestes se retrouvent ce jour-là dans le bureau
- Concernant l’étage : le mur de séparation entre la chambre et le dressing sera peut-être un mur en plaques de plâtre (sur chape) ; ainsi, en cas de besoin, cela pourrait devenir une troisième chambre d’enfant complète (et les parents iraient dormir au grenier)
- La planification de la salle de bains n’est certainement pas finale
- Buanderie à l’étage avec sèche-linge, lave-linge, aspirateur, stockage, repassage (peu chez nous), étendage du linge, etc.
- Le grenier est totalement non planifié pour l’instant ; il sert de remplacement de cave ; salle de loisirs (fitness), réserve d’aménagement ; il y a environ 55 m² de surface habitable selon la réglementation (à partir de 2 m hauteur comptabilisés entièrement ; entre 1 et 2 m comptabilisés à moitié).
- Concernant l’escalier : c’est bien sûr un escalier sur escalier ; éventuellement, l’escalier du grenier pourrait prendre encore un quart de tour à la fin